Sale of apartment in El Puerto, Denia

Alicante, Denia, The Port, El Puerto
1 098 000 €
3 486 € / m2
Leave review
Flats Property type
2 Bathrooms
3 Bedrooms
315 m² built square meters
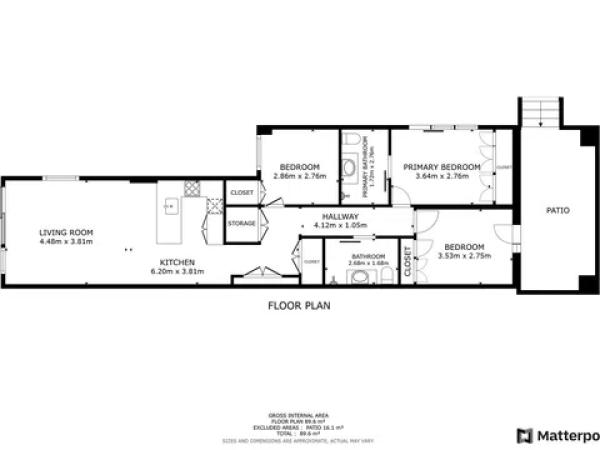
El complejo residencial Albamar está situado en el municipio de Dénia, en KM. 0 de Las Marinas, en primera línea de playa, a un paso del centro de Denia y rodeado de una gran oferta cultural, gastronómica y de ocio. El apartamento se encuentra en la planta baja, con piscina y jardín privado. Dispone de: amplio salón - comedor, 3 dormitorios, 2 baños completos, recibidor, tiene superficie construida total de 313 m2. Útiles de la vivienda 88 m2, varias terrazas: una terraza descubierta de 32m2, otra cubierta de 13,81 m2 y jardín privado de 156 m2. Armarios empotrados, calefacción radiante, aire acondicionado por conductos. Los armarios y muebles de la cocina son de primera calidad (italiana). El complejo incluye grandes zonas verdes con jardines de estilo mediterráneo y piscina desde la que se accede directamente al mar, parking exterior*, trastero*, Parking Box* *Plaza de parking exterior - incluido en el precio. *Trasteros desde 12.000€ *Plaza de parking interior cerrada, box con instalación de cargador eléctrico, puerta automática y puerta peatonal 69.000€ La finalización de obra esta previsto para DICIEMBRE DEL 2024 Recomendamos la visita. [IW].

Property characteristics

Complex information

  • Property type
    Flats

Property data

  • Bedrooms
    3
  • Bathrooms
    2
  • built square meters
    315 m²
  • Design type
    Mediterranean
  • Property type
    Second hand

Facilities

Housing Amenities:

Air conditioning
Terrace

In building:

Swimming Pool
Elevator
Garden

Views:

Sea Views

Plans

Market price statistics for Piso en El Puerto

425 359 € (3 917 €/m2)
Average price of primary Flats in city Denia
275 542 € (2 838 €/m2)
Average price of secondary Flats in city Denia

Map

Alicante, Denia, The Port, El Puerto Going to this location!
Leave a review about Piso en El Puerto
0
0 reviews
1
0% (0)
2
0% (0)
3
0% (0)
4
0% (0)
5
0% (0)
PIRIS PROPERTIES
1 098 000 €
from 3 486 € / m2
Contact advertiser

For more information contact the platform

REF: 214048

Reviews about Piso en El Puerto
Loading...

No reviews have been left for this object yet

Nearest properties

Explore nearby properties we've discovered in close proximity to this location

Discover the new residential development in Denia, offering modern living spaces and an exceptional lifestyle.

Alicante, Denia, The Marines/Las Marinas, Calle Boga, 31
718 000 €

is a unique residential complex located in the municipality of Denia, specific...

0
0 reviews

Discover the new residential development in Denia, offering modern living spaces and an exceptional lifestyle.

Alicante, Denia, The Marines/Las Marinas, Calle Boga, 31
898 000 €

is a unique residential complex located in the municipality of Denia, specific...

0
0 reviews

Discover the new residential development in Denia, offering modern living spaces and an exceptional lifestyle.

Alicante, Denia, The Marines/Las Marinas, Calle Boga, 31
1 098 000 €

is a unique residential complex located in the municipality of Denia, specific...

0
0 reviews

Apartamentos en Venta, Pedreguer

Alicante, Pedreguer
515 000 €

Feeling embraced by nature, sitting on the terrace and enjoying wonderful sea vi...

0
0 reviews

Apartamentos en Venta, Pedreguer

Alicante, Pedreguer
546 000 €

Feeling embraced by nature, sitting on the terrace and enjoying wonderful sea vi...

0
0 reviews

New development at the golf suites in Pedreguer.

Alicante, Pedreguer
395 000 €

These exquisite homes offer three bedrooms, each with direct access to a terrac...

0
0 reviews

New development at the golf suites in Pedreguer.

Alicante, Pedreguer
450 000 €

These exquisite homes offer three bedrooms, each with direct access to a terrac...

0
0 reviews

New development at the golf suites in Pedreguer.

Alicante, Pedreguer
410 000 €

These exquisite homes offer three bedrooms, each with direct access to a terrac...

0
0 reviews

Apartamentos en Venta en Calle del Voltor s/n, Denia

Alicante, Denia, The Marines/Las Marinas, Calle del Voltor s/n
352 000 €

Exclusivo residencial de lujo ubicado en la hermosa ciudad de Dénia, a tan solo...

0
0 reviews
Call

We use our own and third-party cookies to analyze website usage and show you advertisements related to your preferences based on a profile created from your browsing habits (e.g., pages visited). More information. Do you accept cookies?