Spain Houses Spain Houses Alicante Houses Finestrat Casa independiente en calle de Serra Cortina s/n

New construction Casa independiente en calle de Serra Cortina s/n in Finestrat

Alicante, Finestrat, Finestrat Village, Calle de Serra Cortina s/n
1 095 000 €
3 883 € / m2
Leave review
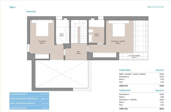
3 Bedrooms
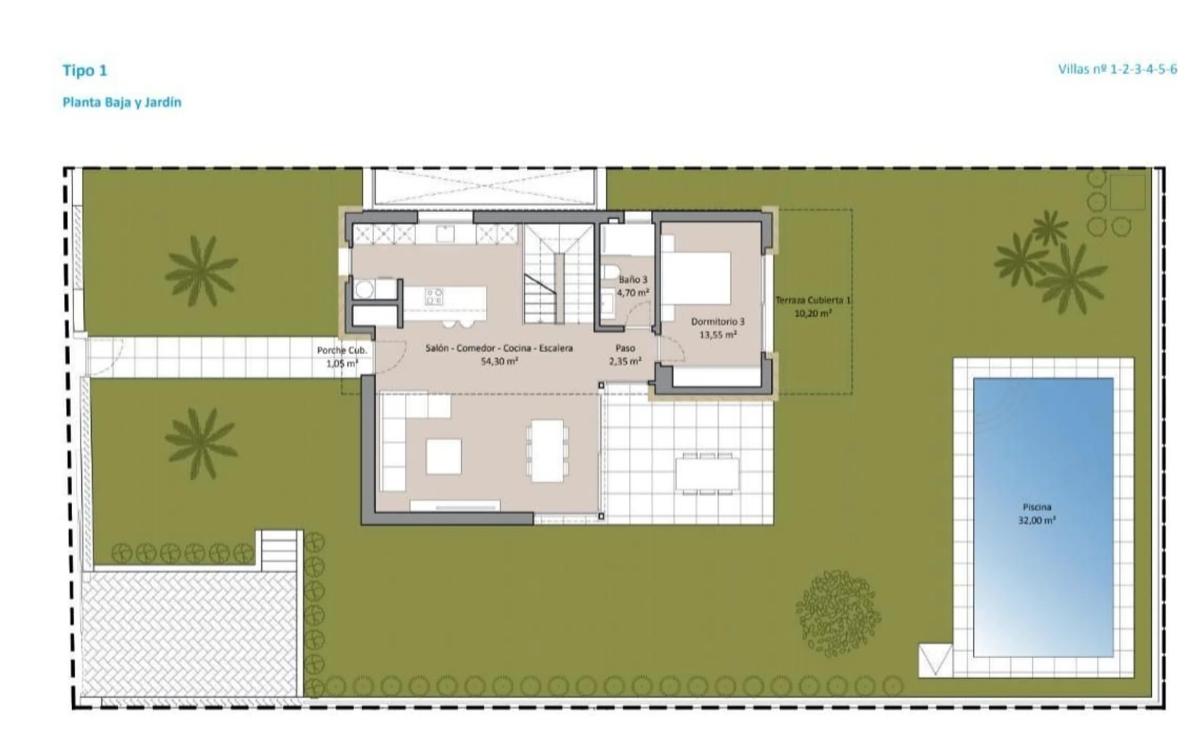
282 m² built square meters
585 m² Land area
3 Bathrooms
Good condition Property status
Esta villa independiente de dos plantas se encuentra en una parcela de 585 m² y tiene una superficie construida de 282 m². La propiedad, ubicada a solo 5 minutos en coche de la playa y de Benidorm, ofrece un entorno cómodo y moderno para vivir. En la planta inferior, hay un dormitorio, un baño completo, un amplio salón comedor con cocina integrada y una isla, un porche y una terraza. El jardín incluye una piscina de 32 m², acabada en gresite, rodeada de césped y árboles naturales con riego automático e iluminación exterior. La planta superior alberga dos dormitorios adicionales, dos baños y una terraza, proporcionando un espacio privado y relajante. La villa cuenta con un sistema completo de aire acondicionado por conductos (frío/calor) en ambas plantas. Para el agua caliente sanitaria, dispone de una instalación de placas solares con refuerzo de un termo eléctrico. La cocina está equipada con electrodomésticos de alta calidad, incluyendo campana empotrada, placa de inducción, lavavajillas, horno, frigorífico y microondas. Además, la propiedad está cercada con acero y lamas orientadas hacia el mar, ofreciendo seguridad y vistas espectaculares. Esta villa es ideal para quienes buscan una residencia moderna, bien equipada y cercana a la playa y a la ciudad de Benidorm. RESERVALA POR SOLO 10.000€! FECHA PREVISTA DE ENTREGA: MARZO 2025 �✨Aviso legal: Impuestos, notario y gestión no incluidos. Aviso legal: la información descrita es meramente informativa, no vinculante jurídicamente pudiendo contener algún error.

Featured promotions in Spain

10 units

Nature Views 2

Alicante, Torrevieja, Los Balcones - The Heights of Eden, Denia s/n
310 000 € - 379 000 €
1 units

Hotel en venta en Benidorm centro

Alicante, Benidorm, Poniente Beach
2 250 000 € - 2 250 000 €
32 units

Residencial Los Balcones De Calpe

Alicante, Calpe, Calpe Town, Avenida de Madrid, 1
299 000 € - 892 125 €
7 units

Nature Views

Alicante, Torrevieja, Lago Jardín II, Avenida Denia s/n
305 000 € - 330 000 €
5 units

ALONIS VILLAS

Alicante, La Villajoyosa / Vila Joiosa, Torres Beach, Partida Torres s/n
675 000 € - 775 000 €
1 units

Residencial Royal Beach

Alicante, Guardamar del Segura, town, Miguel Hernández 102
349 500 € - 349 500 €
7 units

Royal Star

Alicante, Guardamar del Segura
229 500 € - 269 500 €

Property characteristics

Complex information

Project information / Work status

  • Property status
    Good condition

Property data

  • Bedrooms
    3
  • Bathrooms
    3
  • built square meters
    282 m²
  • Orientation
    South
  • Property type
    Second hand

Surfaces

  • Land area
    585 m²

Base

Energy certification

  • Energy certificate
    G
  • Issuances
    57 kg CO2/m² year
  • Energy consumption
    154 kwh/m² year

Facilities

Housing Amenities:

Air conditioning

In building:

Swimming Pool

State:

Good condition

Market price statistics for Casa independiente en calle de Serra Cortina s/n

735 823 € (3 451 €/m2)
Average price of primary in city Finestrat
820 205 € (3 137 €/m2)
Average price of secondary in city Finestrat

Map

Alicante, Finestrat, Finestrat Village, Calle de Serra Cortina s/n Going to this location!
Leave a review about Casa independiente en calle de Serra Cortina s/n
0
0 reviews
1
0% (0)
2
0% (0)
3
0% (0)
4
0% (0)
5
0% (0)
Embassy Levante Torrevieja
1 095 000 €
from 3 883 € / m2
Contact advertiser

For more information contact the platform

REF: 408190

Reviews about Casa independiente en calle de Serra Cortina s/n
Loading...

No reviews have been left for this object yet

Nearest properties

Explore nearby properties we've discovered in close proximity to this location

Chalet independiente en Venta en Calle roma, 23, Finestrat

Alicante, Finestrat, Bahía Golf, Calle roma, 23
1 750 000 €

Nueva villa terminada en Sierra Cortina de Finestrat (Alicante).Les ofrecemos un...

0
0 reviews

Independent chalet for sale in Finestrat, offering a perfect blend of privacy and stunning natural surroundings. This property boasts a modern design and is situated in a desirable location, ideal for those seeking a tranquil lifestyle while remaining clo

Alicante, Finestrat, Balcón de Finestrat-Terra Marina, Calle d'Equador s/n
545 000 €

This newly constructed residential complex is located in a picturesque area and...

0
0 reviews

Independent chalet for sale in Finestrat, nestled in a serene location. This charming property offers a perfect combination of comfort and privacy, ideal for those seeking a tranquil retreat.

Alicante, Finestrat, Balcón de Finestrat-Terra Marina, Calle d'Equador s/n
635 000 €

This new residential complex is located in a picturesque area, offering a divers...

0
0 reviews

Independent chalet available for sale in a serene location, offering a perfect blend of privacy and comfort. This residence is situated in a peaceful setting and is designed to provide an ideal living experience.

Alicante, Finestrat, Balcón de Finestrat-Terra Marina, Calle d'Equador s/n
1 250 000 €

This newly constructed residential complex is located in an enchanting area that...

0
0 reviews

Independent chalet for sale in Finestrat.

Alicante, Finestrat, Balcón de Finestrat-Terra Marina, Calle d'Equador s/n
550 000 €

This newly constructed residential complex is located in a picturesque area and...

0
0 reviews

Independent chalet for sale in a prime location in Finestrat.

Alicante, Finestrat, Balcón de Finestrat-Terra Marina, Calle d'Equador s/n
640 000 €

This newly developed residential complex is situated in a picturesque area and o...

0
0 reviews

Spacious independent chalet for sale in a serene location in Finestrat. This charming property offers a perfect blend of comfort and elegance, making it an ideal retreat. Enjoy the tranquility of the surroundings while being just a short distance from loc

Alicante, Finestrat, Balcón de Finestrat-Terra Marina, Calle d'Equador s/n
645 000 €

This newly constructed residential complex is located in a picturesque area and...

0
0 reviews

Spacious independent chalet available for sale in a desirable location in Finestrat. This charming property offers a perfect blend of comfort and style, making it an ideal retreat for those seeking tranquility and luxury in a picturesque setting.

Alicante, Finestrat, Balcón de Finestrat-Terra Marina, Calle d'Equador s/n
639 000 €

This newly built residential complex is located in a picturesque area and offers...

0
0 reviews

Independent chalet for sale in Finestrat.

Alicante, Finestrat, Balcón de Finestrat-Terra Marina, Calle d'Equador s/n
1 900 000 €

This newly constructed residential complex is located in a picturesque area and...

0
0 reviews
Call

We use our own and third-party cookies to analyze website usage and show you advertisements related to your preferences based on a profile created from your browsing habits (e.g., pages visited). More information. Do you accept cookies?