Terreno en E-9

Barcelona, Manresa, Balconada - Cal Gravat, E-9
1 713 000 €
Leave review
Urban Property type
4 495 m² Land area
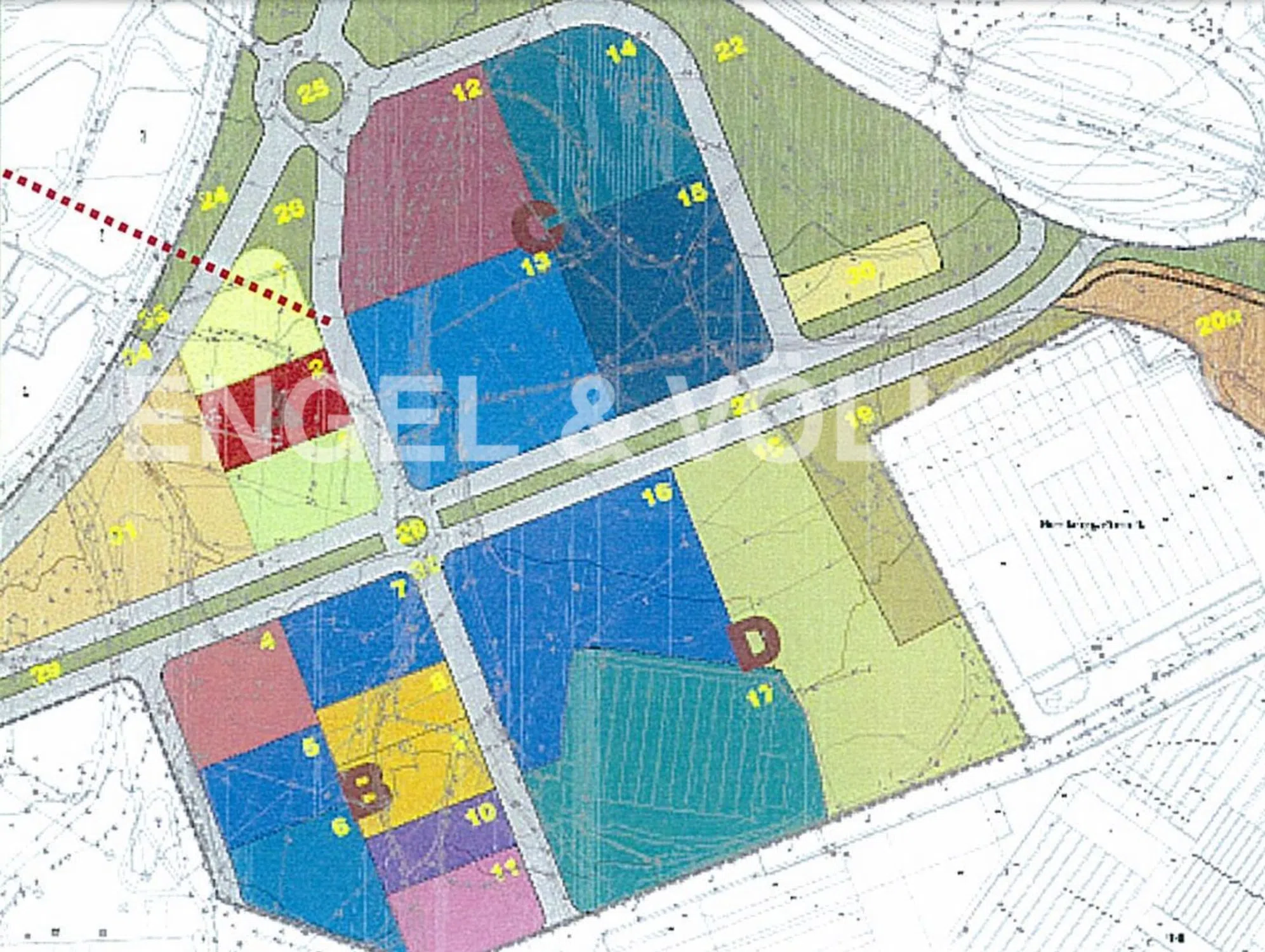
Suelo industrial en Manresa comarca del Bages (Barcelona) en el centro de Cataluña de 4.495 m2 y edificabilidad de 5.710 m2 altura máxima de edificación 16 metros. Comunicaciones excelentes con salida directa al Eix Transversal C-25. Comienzo de las obras de urbanización a finales del año 2023 con una estimación de duración de las mismas de 24 meses. La ubicación del polígono dispondrá de unas comunicaciones excelentes accesos a la C55 C37, C16, C25. CARACTERISTICAS M2 de superficie 4.495 M2 de edificabilidad 5.710 Ocupación del solar 65% Altura 16 m Edificabilidad 1m2 sostre/1m2 suelo Uso principal industrial y usos auxiliares como comercios industriales, almacenes, aparcamientos, restauración (para uso del polígono), estaciones de servicio y talleres de reparación de vehículos. La urbanización dotará a las parcelas de todos los servicios adaptados a las nuevas tecnologías, así como se prevén aspectos innovadores a nivel medioambiental. CATALAN Sòl industrial a Manresa comarca del Bages (Barcelona) al centre de Catalunya de 3.848 m2 i edificabilitat de 4.887 m2 alçada màxima d'edificació 16 metres. Comunicacions excel·lents amb sortida directa a l'Eix Transversal C-25. Començament de les obres d'urbanització a finals de l'any 2023 amb una estimació de durada de 24 mesos. La ubicació del polígon disposarà d'unes comunicacions excel·lents accessos a C55 C37, C16, C25. CARACTERÍSTIQUES M2 de superfície 4.495 M2 d'edificabilitat 5.710 Ocupació del solar 65% Alçada 16 mts Edificabilitat 1m2 sostre/1m2 terra Ús principal industrial i usos auxiliars com a comerços industrials, magatzems, aparcaments, restauració (per a ús del polígon), estacions de servei i tallers de reparació de vehicles. La urbanització dotarà les parcel·les de tots els serveis adaptats a les noves tecnologies, així com es preveuen aspectes innovadors a nivell mediambiental. ENGLISH Industrial land in Manresa region of Bages (Barcelona) in the center of Catalonia of 3,848 m2 and buildable land of 4,887 m2 maximum building height 16 meters. Excellent communications with direct access to the Eix Transversal C-25. Start of urbanization works at the end of 2023 with an estimated duration of 24 months. The location of the industrial estate will have excellent communications and access to the C55 C37, C16, C25. CHARACTERISTICS SQM of surface 4.495 SQM of buildable area 5.710 Lot occupancy 65% Height 16 meters Buildability 1sqm basement/1sqm floor Main industrial use and auxiliary uses such as industrial shops, warehouses, parking lots, restaurants (for industrial estate use), service stations and vehicle repair workshops. The urbanization will provide the plots with all the services adapted to new technologies, as well as innovative environmental aspects are planned. FRANÇOISE Terrain industriel dans la région de Manresa du Bages (Barcelone) au centre de la Catalogne de 3.848 m2 et terrain constructible de 4.887 m2 hauteur de construction maximale 16 mètres. Excellentes communications avec accès direct à l'Eix Transversal C-25. Démarrage des travaux d'urbanisation fin 2023 pour une durée estimée à 24 mois. L'emplacement de la zone industrielle aura d'excellentes communications et un accès aux C55 C37, C16, C25. CARACTÉRISTIQUES M2 de superficie 4.495 M2 de surface constructible 5.710 Occupation du terrain 65% Hauteur 16 mètres Constructibilité 1m2 sous-sol/1m2 étage Utilisation industrielle principale et utilisations auxiliaires telles que magasins industriels, entrepôts, parkings, restaurants (à usage de zone industrielle), stations-service et ateliers de réparation de véhicules. L'urbanisation fournira aux parcelles tous les services adaptés aux nouvelles technologies, ainsi que des aspects environnementaux innovants sont prévus.

Property characteristics

Complex information

  • Property type
    Urban

Property data

  • Property type
    Second hand

Surfaces

  • Land area
    4 495 m²

Base

Market price statistics for Terreno en E-9

Map

Barcelona, Manresa, Balconada - Cal Gravat, E-9 Going to this location!
Leave a review about Terreno en E-9
0
0 reviews
1
0% (0)
2
0% (0)
3
0% (0)
4
0% (0)
5
0% (0)
Engel & Völkers Commercial Barcelona
1 713 000 €
Contact advertiser

For more information contact the platform

REF: 372793

Reviews about Terreno en E-9
Loading...

No reviews have been left for this object yet

Nearest properties

Explore nearby properties we've discovered in close proximity to this location

Terreno en venta en calle dels Til.lers s/n

Barcelona, Castellgalí
54 000 €

terreno edificable, muy accesible, buenas vistas a la montaña de Montserrat, urb...

0
0 reviews

Urban land For sell in Manresa in Barcelona

Barcelona, Manresa
1 685 000 €

Parcela (número 1) situada en el polígono industrial sector La Plana del Pont No...

0
0 reviews

Urban land For sell in Sant Vicenç De Castellet in Barcelona

Barcelona, Sant Vicenç de Castellet
108 000 €

Características destacadas: Uso permitido: Construcción de una casa unifamiliar...

0
0 reviews

Terreno en calle Manresa

Barcelona, Sant Vicenç de Castellet, Calle Manresa
385 000 €

Tu suelo al mejor precio en venta en San Vicente de Castellet? /Sant Vicenç de C...

0
0 reviews

Terreno en calle 6

Barcelona, El Pont de Vilomara i Rocafort, Calle 6
50 000 €

Buve vende Terreno en venta en Marquet Paradís con ref 43231 Se ofrece parcela u...

0
0 reviews

Terreno en Sagrada Familia

Barcelona, Manresa, Sagrada Familia, Sagrada Familia
108 000 €

Terreno urbano en venta en Calle Terrassa 15 – 461 m² Oportunidad para construir...

0
0 reviews

Terreno en calle de les Flors de Maig, 3

Barcelona, Manresa, Vic - Remei Road, Calle de les Flors de Maig, 3
245 000 €

¡Oportunidad única en el corazón del casco antiguo! Este terreno en venta, ubica...

0
0 reviews

Terreno en calle Josep Pla, 94

Barcelona, Castellgalí, Calle Josep Pla, 94
42 000 €

Parcela de superficie total de 303 m² para vivienda adosada con vistas directas...

0
0 reviews

Terreno en calle Josep Pla, 98

Barcelona, Castellgalí, Calle Josep Pla, 98
47 000 €

Parcela de superficie total de 348 m² para vivienda adosada con vistas directas...

0
0 reviews
Call

We use our own and third-party cookies to analyze website usage and show you advertisements related to your preferences based on a profile created from your browsing habits (e.g., pages visited). More information. Do you accept cookies?