Obra nueva Casa independiente en Benidorm (Revista)

Alicante, Benidorm, Rincón de Loix, Barrio Zona Sierra Helada
495 000 €
1 049 € / m2
Dejar reseña
4 Dormitorios
1955 Año de entrega
472 m² m2 construidos
390 m² m2 útiles
1 154 m² Superficie del terreno
4 Baños
Incluido en el precio Garaje
Buen estado Estado inmueble
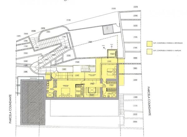
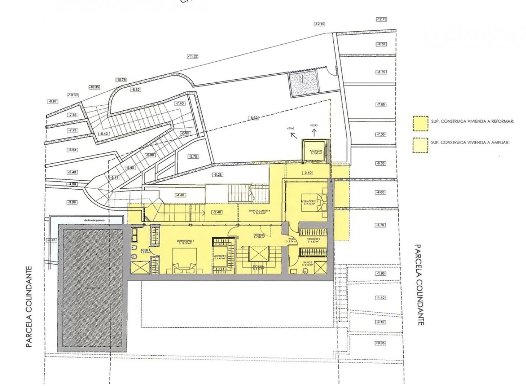
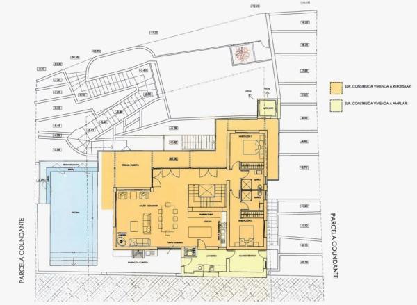
INMOBRISA BENIDORM les ofrece esta magnífica ocasión: Chalet para reformar: el chalet acabado cuesta 1.800. 000 Eur. Lo que se vende es lo que hay: el chalet para reformar, el proyecto completo y la licencia de obra para empezar de inmediato. Zona exclusiva para hacer Villa de lujo moderna con bonito diseño. Ubicada en la zona de Rincón de Loix de Benidorm; cerca de la playa de Levante y con vistas al mar. También tiene cerca supermercados y varios comercios. Al estar cerca de la playa, tiene todo a mano. Vivienda que destaca desde donde se vea con marcado diseño moderno. Se distribuye en 2 plantas: la planta principal tiene salón - comedor - cocina, 2 dormitorios, 2 baños (1 de ellos en suite), lavadero, cuarto técnico, zona de barbacoa, piscina infinity desbordante y gran terra cubierta con vistas al mar. La planta primera tiene 2 grandes dormitorios y dos baños (los 2 en suite) y también con vestidor cada uno de ellos. Desde aquí se puede acceder a otra terraza y a unas escaleras interiores conducen a la hermosa terraza solárium de 125 m2. IMPORTANTE: A la planta principal y primera se llega desde un ascensor privado que en la planta de calle, que es donde están los 2 grandes garajes cerrados y un trastero. Puede verlo todo en los planos que facilitamos junto a las fotografías. Este proyecto se ha hecho para poder llevar a cabo los más altos estándares y las mejores calidades de construcción. Entre el equipamiento se encuentra un sistema de ventilación de calor y frío por aerotermia, carpinteria exterior oscilobatiente de la mejor calidad (de seguridad y con puente térmico), gres porcelánico con calefacción por suelo radiante, sistema de domótica (casa inteligente) y otros. Está muy cerca de parada de autobús, supermercados como Unide, Dia y Mas y Mas, parroquia - iglesia Nuestra Señora del Mar, farmacia, bancos, parques, Mundo Mar, Benidorm Palace, Aqualandia, colegio Lope de Vega y Serra Gelada (Sierra Helada), ambulatorio y centros médicos y consultorio auxiliar del Rincón de Loix, Mercadillo y Mercaloix, hospital Imed Levante y muchas cosas más. Para más información, no dude en contactarnos y uno de nuestros agentes estará encantado de atenderle.

Promociones destacadas en España

10 unidades

Nature Views 2

Alicante, Torrevieja, Los Balcones - Los Altos del Edén, Denia s/n
310 000 € - 379 000 €
1 unidades

Hotel en venta en Benidorm centro

Alicante, Benidorm, Playa de Poniente
2 250 000 € - 2 250 000 €
32 unidades

Residencial Los Balcones De Calpe

Alicante, Calpe, Calpe Pueblo, Avenida de Madrid, 1
299 000 € - 892 125 €
7 unidades

Nature Views

Alicante, Torrevieja, Lago Jardín II, Avenida Denia s/n
305 000 € - 330 000 €
5 unidades

ALONIS VILLAS

Alicante, La Villajoyosa / Vila Joiosa, Platja de Torres, Partida Torres s/n
675 000 € - 775 000 €
1 unidades

Residencial Royal Beach

Alicante, Guardamar del Segura, pueblo, Miguel Hernández 102
349 500 € - 349 500 €
7 unidades

Royal Star

Alicante, Guardamar del Segura
229 500 € - 269 500 €

Características de la propiedad

Complex information

Información del proyecto / Estado de obra

  • Año de entrega
    1955
  • Estado inmueble
    Buen estado

Datos de la propiedad

  • Garaje
    Incluido en el precio
  • Dormitorios
    4
  • Baños
    4
  • m2 construidos
    472 m²
  • m2 útiles
    390 m²
  • Tipo de la propiedad
    Segunda mano

Superficies

  • Superficie del terreno
    1 154 m²

Base

Certificación energética

  • Consumo energético
    G

Instalaciones

Comodidades de la vivienda:

Aire acondicionado
Terraza

En edificio:

Piscina
Jardin
Parking privado

Vistas:

Vistas al mar

Planos

Estadísticas de precios del mercado para Casa independiente

Mapa

Alicante, Benidorm, Rincón de Loix, Barrio Zona Sierra Helada Ir a la propiedad
Deja una opinión sobre Casa independiente
0
0 reseñas
1
0% (0)
2
0% (0)
3
0% (0)
4
0% (0)
5
0% (0)
Inmobrisa
495 000 €
desde 1 049 € / m2
Contactar con la plataforma

para obtener más información contacta con el catálogo

REF: 249519

Opiniones sobre Casa independiente
Loading...

No reviews have been left for this object yet

Propiedades más cercanas

Explora propiedades cercanas que hemos descubierto en las proximidades de esta ubicación.

Chalet independiente en Venta en Calle roma, 23, Finestrat

Alicante, Finestrat, Golf Bahía, Calle roma, 23
1 750 000 €

Nueva villa terminada en Sierra Cortina de Finestrat (Alicante).Les ofrecemos un...

0
0 opiniones

COSTABELLA RESIDENCES FASE II

Alicante, Finestrat, Golf Bahía, Calle Praga, 52
552 000 €

Inmuebles en COSTABELLA RESIDENCES FASE IILas pre-reservas están abiertas. Aprov...

0
0 opiniones

COSTABELLA RESIDENCES FASE II

Alicante, Finestrat, Golf Bahía, Calle Praga, 52
723 000 €

Las pre-reservas están abiertas. Aprovecha la oportunidad de elegir las mejores...

0
0 opiniones

Chalet independiente en Venta en Calle Turquesa , 4, Alfaz del Pi

Alicante, Alfaz del Pi, Colonia Escandinavia-Cautivador, Calle Turquesa , 4
667 000 €

PROMOCIÓN PIONERA EN LA COSTA BLANCA de 12 viviendas independientes con envolven...

0
0 opiniones

Chalet independiente en Venta en Calle Turquesa , 4, Alfaz del Pi

Alicante, Alfaz del Pi, Colonia Escandinavia-Cautivador, Calle Turquesa , 4
655 000 €

PROMOCIÓN PIONERA EN LA COSTA BLANCA de 12 viviendas independientes con envolven...

0
0 opiniones

Chalet independiente en Venta en Calle Turquesa , 4, Alfaz del Pi

Alicante, Alfaz del Pi, Colonia Escandinavia-Cautivador, Calle Turquesa , 4
595 000 €

PROMOCIÓN PIONERA EN LA COSTA BLANCA de 12 viviendas independientes con envolven...

0
0 opiniones

Chalet independiente en Venta en Calle Turquesa , 4, Alfaz del Pi

Alicante, Alfaz del Pi, Colonia Escandinavia-Cautivador, Calle Turquesa , 4
640 000 €

PROMOCIÓN PIONERA EN LA COSTA BLANCA de 12 viviendas independientes con envolven...

0
0 opiniones

Chalet independiente en Venta en Calle Turquesa , 4, Alfaz del Pi

Alicante, Alfaz del Pi, Colonia Escandinavia-Cautivador, Calle Turquesa , 4
625 000 €

PROMOCIÓN PIONERA EN LA COSTA BLANCA de 12 viviendas independientes con envolven...

0
0 opiniones

Chalet independiente en Venta en Calle Turquesa , 4, Alfaz del Pi

Alicante, Alfaz del Pi, Colonia Escandinavia-Cautivador, Calle Turquesa , 4
660 000 €

PROMOCIÓN PIONERA EN LA COSTA BLANCA de 12 viviendas independientes con envolven...

0
0 opiniones
Llamada

Utilizamos cookies propias y de terceros para analizar el uso del sitio web y mostrarte publicidad relacionada con tus preferencias sobre la base de un perfil elaborado a partir de tus hábitos de navegación (por ejemplo, páginas visitadas). Más información. ¿Aceptas las cookies?