Vente d'appartement à Barrio Mercado, Alicante / Alacant

Alicante, Alicante / Alacant, Centre, Barrio Mercado
Vendre
Laisser un commentaire
Appartements Type de bien
568 m² m2 construits
5 Salles de bains
8 Chambres
4 Plante
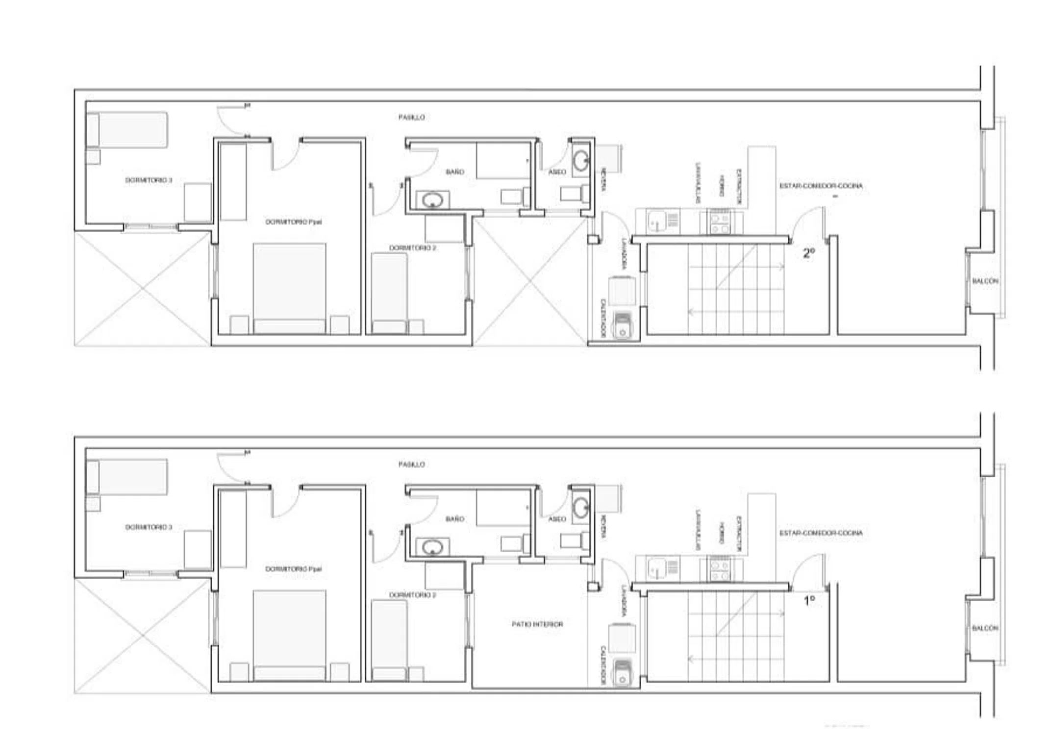
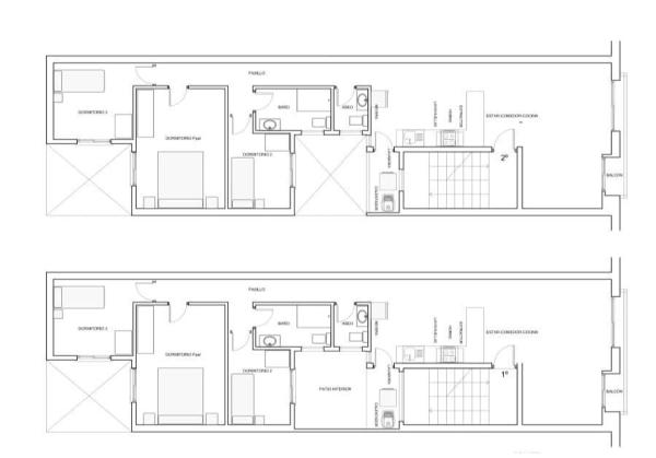
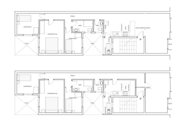
� Edificio Residencial en el Centro Urbano – Oportunidad de Inversión Única � Se pone a la venta un edificio completo entre medianeras, construido en 1976, con gran potencial de rehabilitación y rentabilidad. Situado en una ubicación estratégica, este inmueble destaca por su distribución funcional y por su excelente orientación y ventilación natural. � Distribución del edificio: Planta baja con local comercial Cuatro plantas con una vivienda por planta Última planta destinada a castillete de escalera y acceso a cubierta Superficie de solar: 114,55 m² Altura libre interior de 2,65 m Cada vivienda ofrece un diseño abierto con espacios bien iluminados gracias a dos patios interiores, y detalles diferenciados que aportan valor añadido: Primera planta con patio de uso privativo Tercera planta con cocina independiente del salón-comedor ✨ Ideal para inversión como edificio residencial, alquiler turístico o apartamentos por planta. Aunque no dispone de ascensor, el edificio se encuentra en buen estado estructural y permite adecuaciones conforme a normativa actual en accesibilidad y protección contraincendios. � Una oportunidad perfecta para promotores, inversores o familias que buscan un proyecto con carácter y ubicación. � Contacta ahora para más información o agendar una visita.

Caractéristiques du bien

Complex information

  • Type de bien
    Appartements

Données de la propriété

  • Plante
    4
  • Chambres
    8
  • Salles de bains
    5
  • m2 construits
    568 m²
  • Type de propriété
    Occasion

Plans

Statistiques des prix du marché pour Piso en Barrio Mercado

326 001 € (3 421 €/m2)
Prix moyen du Appartements primaire dans la ville de Alicante / Alacant
296 217 € (2 608 €/m2)
Prix moyen du Appartements secondaire dans la ville de Alicante / Alacant
307 473 € (3 239 €/m2)
Prix moyen du Appartements primaire dans le quartier Centre
304 686 € (2 657 €/m2)
Prix moyen du Appartements secondaire dans le quartier Centre

Carte

Alicante, Alicante / Alacant, Centre, Barrio Mercado Aller à cet endroit
Laisser un commentaire sur Piso en Barrio Mercado
0
0 revues
1
0% (0)
2
0% (0)
3
0% (0)
4
0% (0)
5
0% (0)
Inmo Mash Alicante
Vendre
Contacter l'annonceur

Pour plus d’informations, contactez la plateforme

REF: 246946

Critiques à propos de Piso en Barrio Mercado
Loading...

No reviews have been left for this object yet

Propriétés les plus proches

Explorez les biens immobiliers que nous avons découverts à proximité de ce site

Apartamentos en Venta en Calle Deportista Pitu Perramón, 3, Alicante / Alacant

Alicante, Alicante / Alacant, San Blas-Pau, Calle Deportista Pitu Perramón, 3
228 800 €

AEDAS Homes lanza una moderna y exclusiva promoción de 28 viviendas de 2 y 3 hab...

0
0 commentaires

Apartamentos en Venta en Calle Deportista Pitu Perramón, 3, Alicante / Alacant

Alicante, Alicante / Alacant, San Blas-Pau, Calle Deportista Pitu Perramón, 3
308 400 €

AEDAS Homes lanza una moderna y exclusiva promoción de 28 viviendas de 2 y 3 hab...

0
0 commentaires

Apartamentos en Venta en Calle Deportista Pitu Perramón, 3, Alicante / Alacant

Alicante, Alicante / Alacant, San Blas-Pau, Calle Deportista Pitu Perramón, 3
216 000 €

AEDAS Homes lanza una moderna y exclusiva promoción de 28 viviendas de 2 y 3 hab...

0
0 commentaires

Apartamentos en Venta en Calle Deportista Pitu Perramón, 3, Alicante / Alacant

Alicante, Alicante / Alacant, San Blas-Pau, Calle Deportista Pitu Perramón, 3
262 350 €

AEDAS Homes lanza una moderna y exclusiva promoción de 28 viviendas de 2 y 3 hab...

0
0 commentaires

Apartamentos en Venta en Calle Deportista Pitu Perramón, 3, Alicante / Alacant

Alicante, Alicante / Alacant, San Blas-Pau, Calle Deportista Pitu Perramón, 3
281 750 €

AEDAS Homes lanza una moderna y exclusiva promoción de 28 viviendas de 2 y 3 hab...

0
0 commentaires

Apartamentos en Venta en Calle Deportista Pitu Perramón, 3, Alicante / Alacant

Alicante, Alicante / Alacant, San Blas-Pau, Calle Deportista Pitu Perramón, 3
216 000 €

AEDAS Homes lanza una moderna y exclusiva promoción de 28 viviendas de 2 y 3 hab...

0
0 commentaires

Apartamentos en Venta en Calle Deportista Pitu Perramón, 3, Alicante / Alacant

Alicante, Alicante / Alacant, San Blas-Pau, Calle Deportista Pitu Perramón, 3
373 250 €

AEDAS Homes lanza una moderna y exclusiva promoción de 28 viviendas de 2 y 3 hab...

0
0 commentaires

Apartamentos en Venta en Calle Deportista Pitu Perramón, 3, Alicante / Alacant

Alicante, Alicante / Alacant, San Blas-Pau, Calle Deportista Pitu Perramón, 3
280 260 €

AEDAS Homes lanza una moderna y exclusiva promoción de 28 viviendas de 2 y 3 hab...

0
0 commentaires

Apartamentos en Venta en Calle Deportista Pitu Perramón, 3, Alicante / Alacant

Alicante, Alicante / Alacant, San Blas-Pau, Calle Deportista Pitu Perramón, 3
278 750 €

AEDAS Homes lanza una moderna y exclusiva promoción de 28 viviendas de 2 y 3 hab...

0
0 commentaires
Appeler

Nous utilisons nos propres cookies et ceux de tiers pour analyser l’utilisation du site Web et vous montrer des publicités en lien avec vos préférences, sur la base d’un profil établi à partir de vos habitudes de navigation (ex. : pages visitées). Plus d’informations. Acceptez-vous les cookies ?