Nouvelle œuvre Villa La Colina à Calpe

Alicante, Calpe, Gargasindi, Gargasindi
de 2 300 000 €
Laisser un commentaire
Surfaces des biens
Nombre de chambres
Bains
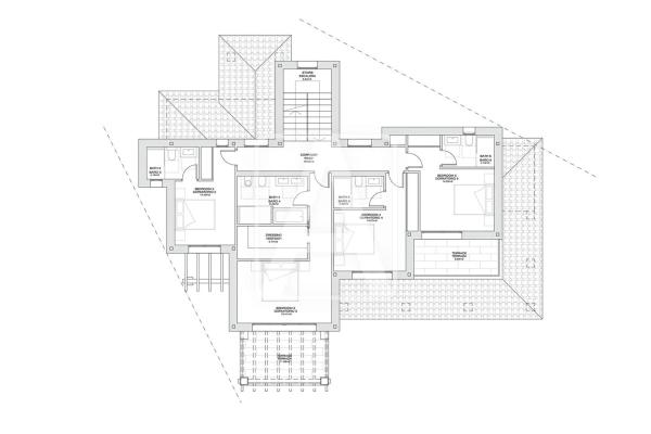
Villa de lujo en venta en Calpe, en urbanización Colina del Sol, situada en una zona residencial consolidada, a 2,5 Km (5 minutos en coche) del centro urbano de Calpe que ofrece las mejores playas y todo tipo de servicios y facilidades. Disfruta de magníficas vistas panorámicas al mar y al Peñón de Ifach (símbolo de la Costa Blanca), de mucho sol (orientación Sureste) y de máxima privacidad y tranquilidad (calle sin tráfico). Esta villa de estilo ibicenco está ubicada en una parcela llana de 1.190 m2 y tiene una superficie total construida de 350 m2 distribuidos en dos plantas y planta sótano, de la siguiente manera: en la planta principal tenemos el porche y hall de entrada de 10 m2 (con armario empotrado), 1 dormitorio de 13 m2 con 1 baño en-suite, 1 aseo de cortesía, impresionante salón comedor cocina (concepto todo abierto, en conjunto 80 m2, con isla), y estupendo porche de 40 m2 que comunica con una amplia terraza exterior donde tenemos una piscina rectangular climatizada de 11x4 metros, una zona de barbacoa y 1 baño completo. Se accede a la planta alta y a la planta sótano a través de la escalera interior. En la planta alta tenemos el vestíbulo de 10 m2, 4 dormitorios (20 m2 + 15 m2 + 15 m2 + 13 m2), 4 baños en-suite y 2 terrazas privadas de 20 m2 (10 m2 + 10 m2). En la planta sótano tenemos una superficie total de 105 m2 que se distribuyen en vestíbulo de 10 m2, amplio garaje de 45 m2 (para 2 vehículos) y varios espacios abiertos (35 m2 + 8 m2 + 7 m2), que ofrecen posibilidad de crear un gimnasio, cine, etc. Esta villa de diseño ibicenco destaca por su calidez, por su luminosidad y por sus acabados y calidades. Está equipada con climatización por conductos (frío y calor), suelo radiante (sistema aerotermia que ofrece mayor eficiencia y rendimiento y muy bajo consumo), pavimentos de gres porcelánico de gran formato, tanto para la vivienda como las zonas de terraza, cocina de diseño totalmente equipada, baños alicatados de gres porcelánico junto con aparatos sanitarios de excelente calidad, carpintería exterior de alta gama con cristales inteligentes y persianas automáticas + mosquiteras, carpintería interior de diseño, iluminación LED, domótica… Además, disfruta de amplia zona de aparcamiento exterior ubicada estratégicamente junto a la entrada principal. El jardín está incluido y es de bajo mantenimiento (equipado con sistema de regadío de automático). Para recibir más información sobre esta propiedad, póngase en contacto con AREA Costa Blanca. AREA Costa Blanca - su agente para propiedades en venta en Calpe - Costa Blanca - España. AREA Costa Blanca está orgullosa de ser una de las mejores agencias inmobiliarias en la Costa Blanca. En AREA Costa Blanca trabajamos para ofrecer el mejor servicio asesorando a nuestros clientes en la compraventa de propiedades inmobiliarias. Contamos con un equipo profesional de larga experiencia en el sector inmobiliario. Nuestro principio fundamental es la calidad del servicio prestado y la satisfacción del cliente. Nuestra experiencia y actitud, su garantía de éxito.

Promotions remarquables en Espagne

10 unités

Nature Views 2

Alicante, Torrevieja, Les Balcons - Les Hauts de l'Éden, Denia s/n
310 000 € - 379 000 €
1 unités

Hotel en venta en Benidorm centro

Alicante, Benidorm, Plage de Poniente
2 250 000 € - 2 250 000 €
32 unités

Residencial Los Balcones De Calpe

Alicante, Calpe, Calpe Pueblo, Avenida de Madrid, 1
299 000 € - 892 125 €
7 unités

Nature Views

Alicante, Torrevieja, Lago Jardín II, Avenida Denia s/n
305 000 € - 330 000 €
5 unités

ALONIS VILLAS

Alicante, La Villajoyosa / Vila Joiosa, Plage de Torres, Partida Torres s/n
675 000 € - 775 000 €
1 unités

Residencial Royal Beach

Alicante, Guardamar del Segura, village, Miguel Hernández 102
349 500 € - 349 500 €
7 unités

Royal Star

Alicante, Guardamar del Segura
229 500 € - 269 500 €
Ces informations proviennent de sources publiques et peuvent ne pas être à jour. Elles ne représentent pas un lien avec le promoteur.

Caractéristiques du bien

Complex information

Données de la propriété

  • Type de la propriété
    Programme neuf

Base

Installations

Dans l'immeuble:

Sous-sol

Statistiques des prix du marché pour Villa La Colina

418 057 € (3 650 €/m2)
Prix moyen du Appartements primaire dans la ville de Calpe
791 667 € (2 794 €/m2)
Prix moyen du Maison primaire dans le quartier Gargasindi

Carte

Alicante, Calpe, Gargasindi, Gargasindi Aller à cet endroit
Laisser un commentaire sur Villa La Colina
0
0 revues
1
0% (0)
2
0% (0)
3
0% (0)
4
0% (0)
5
0% (0)
AREA Costa Blanca
2 300 000 €
Contacter l'annonceur

Pour plus d’informations, contactez la plateforme

REF: 408796

Critiques à propos de Villa La Colina
Loading...

No reviews have been left for this object yet

Propriétés les plus proches

Explorez les biens immobiliers que nous avons découverts à proximité de ce site

6 unités

Nouvelle construction de la Tour Seaway à Calpe.

Alicante, Calpe, Plage Arenal-Bol, Calle Alemania , 27
524 000 € - 1 390 000 €

Immobilier à Seaway Tower Découvrez un complexe moderne d'appartements de luxe d...

0
0 commentaires

Nouvelle villa à Altea Hills, située dans la belle région d'Altea.

Alicante, Altea, Altea Hills, Calle Munich s/n
-

Immobilier à Villa en Altea Hills Profitez de la vie de luxe dans cette magnifiq...

0
0 commentaires
7 unités

Nouveaux logements de luxe à Infinity Villas dans la région d'Altea Hills, Altea.

Alicante, Altea, Altea la Vella, Calle Costa del Azahar Altea Hills s/n
790 000 € - 1 386 000 €

Immobilier à Infinity Villas Altea Hills À Altea Hills, découvrez une nouvelle p...

0
0 commentaires
2 unités

Nouvelle construction Alexia à Calpe.

Alicante, Calpe, Plage Arenal-Bol, Calle Eslovaquia, 3
559 250 € - 559 250 €

Immobilier à Alexia Calpe Situé dans la charmante localité d'Alicante, Calpe,...

0
0 commentaires
2 unités

Nouveau projet immobilier à Calpe, Isea Views.

Alicante, Calpe, Playa del Bol, Avenida Europa, 29
890 000 € - 1 650 000 €

Immobilier à Isea Views Découvrez un nouveau complexe résidentiel dans la magnif...

0
0 commentaires
2 unités

Nouveau projet immobilier Camporrosso Golden Leaves à Calpe.

Alicante, Calpe, Plage Arenal-Bol, Avenida de Rumania, 32
625 000 € - 650 000 €

Immobilier à Camporrosso Golden Leaves Profitez d'une grande terrasse dans chaq...

0
0 commentaires

Nouvelle construction de maison dans la ville de Benissa.

Alicante, Benissa
-

Immobilier à Villa Paloma Découvrez une villa de luxe récemment construite à Ali...

0
0 commentaires
1 unités

Nouvelle construction A2825 et A2826 à Maryvilla, Calpe.

Alicante, Calpe
1 550 000 € - 1 550 000 €

Immobilier à Maryvilla A2825 Calpe Dans la charmante ville d'Alicante, Calpe, se...

0
0 commentaires
1 unités

Nouvelle construction à Calpe, dans le quartier de Cucarres.

Alicante, Calpe
1 850 000 € - 1 850 000 €

Immobilier à CUCARRES A2737 Calpe Découvrez une promotion exclusive à Calpe où s...

0
0 commentaires
Appeler

Nous utilisons nos propres cookies et ceux de tiers pour analyser l’utilisation du site Web et vous montrer des publicités en lien avec vos préférences, sur la base d’un profil établi à partir de vos habitudes de navigation (ex. : pages visitées). Plus d’informations. Acceptez-vous les cookies ?