Espagne Urbain Espagne Urbain Malaga Urbain Mijas Terreno en Barrio Mijas Pueblo

Terreno en Barrio Mijas Pueblo

Malaga, Mijas, Mijas Pueblo, Barrio Mijas Pueblo
380 000 €
Laisser un commentaire
Urbain Type de bien
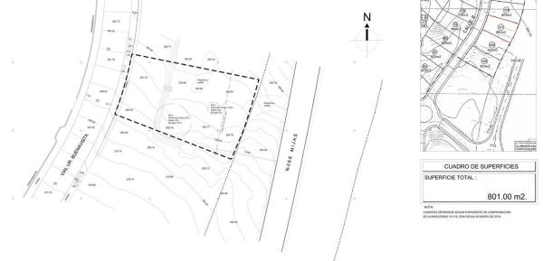
801 m² Superficie du terrain
2 Terrains constructibles
210 Constructibilité
Résidentiel Usage de la parcelle
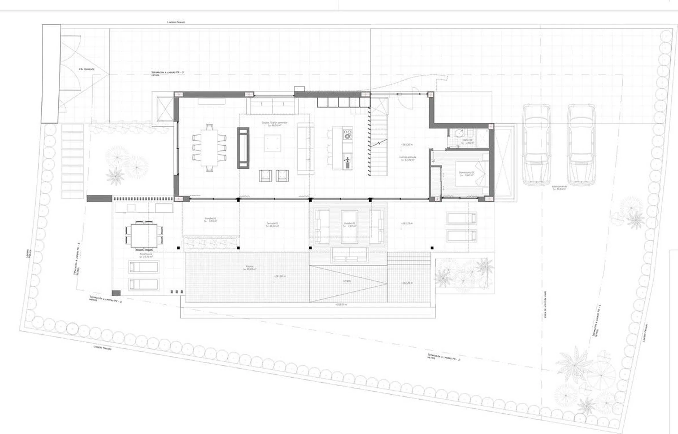
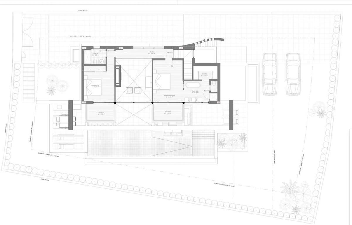
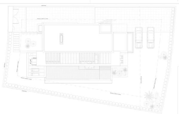
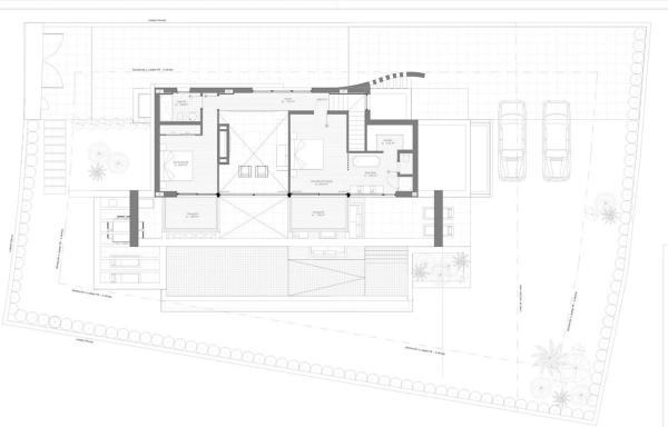
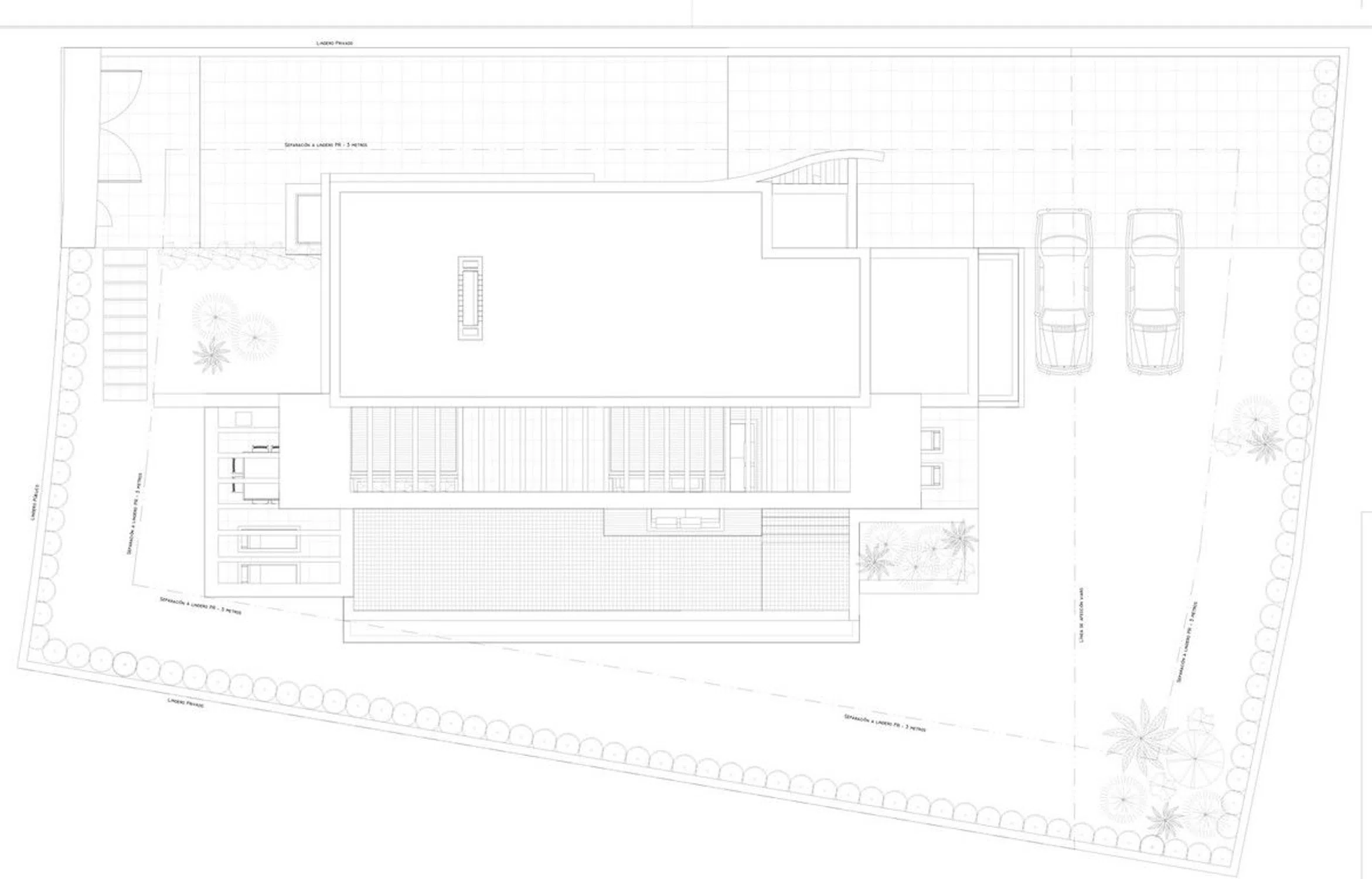
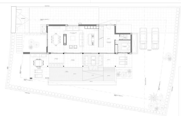
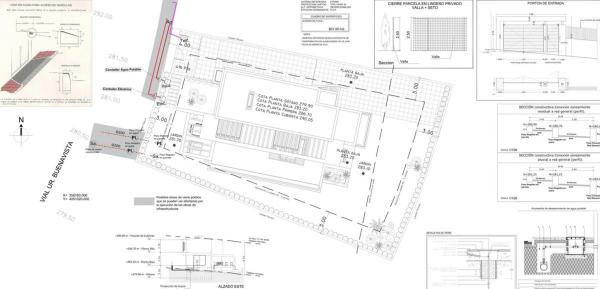
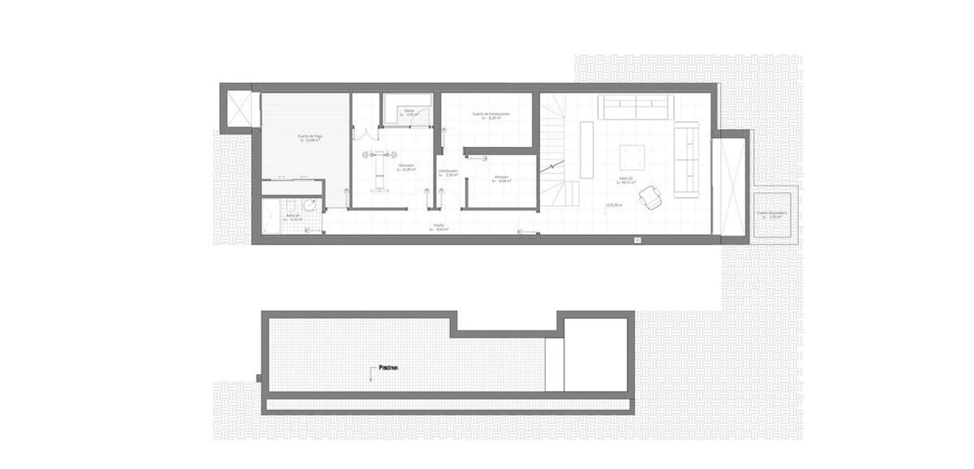
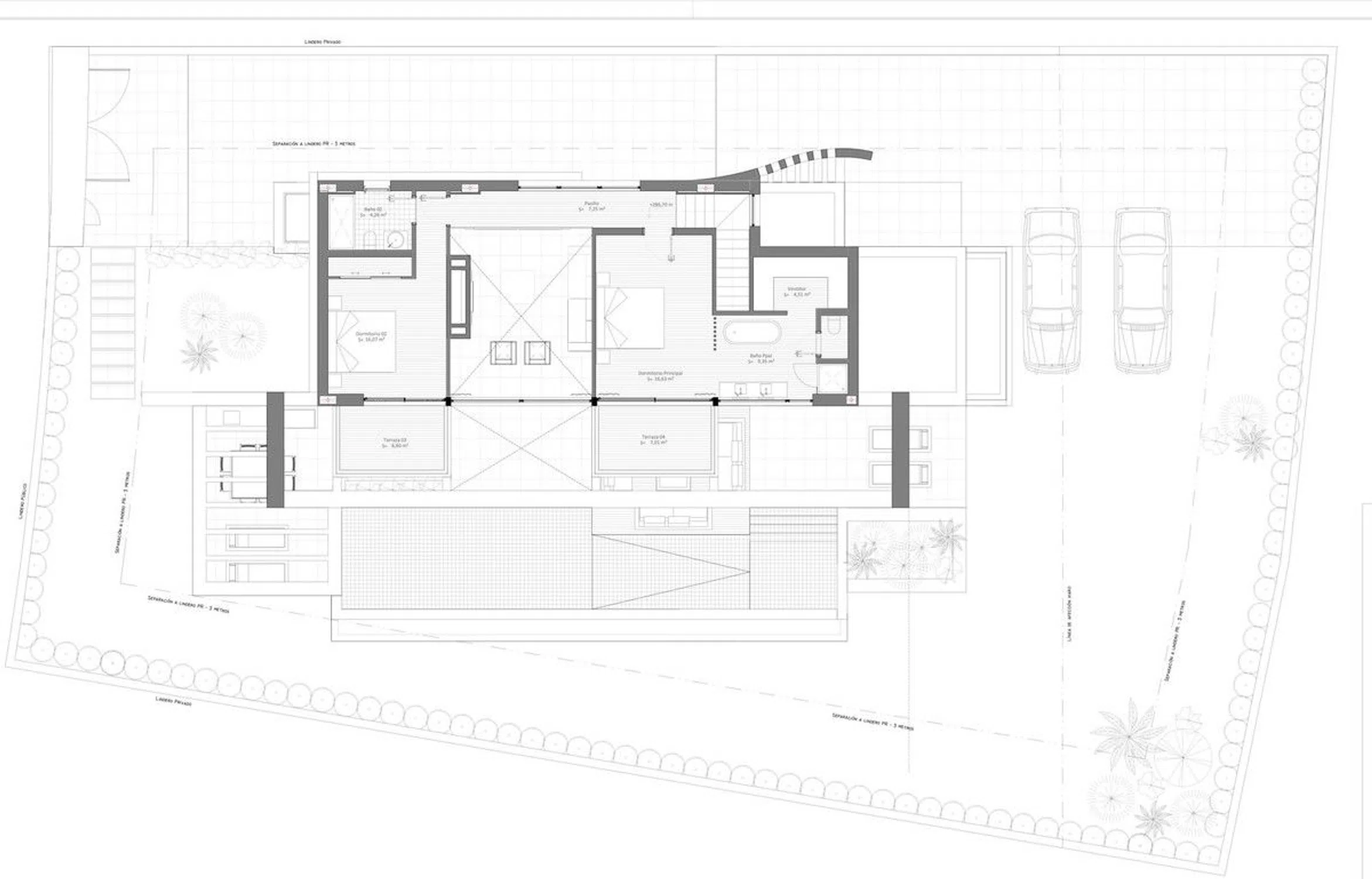
Parcela con Licencia de Construcción de Vivienda en MIJAS. 801m2 de superficie para esta parcela ubicada en una zona residencial de Mijas. Se ha aceptado la licencia de construcción para un proyecto de Villa con piscina. La entrada se sitúa en la fachada norte bajo pérgola. En el hall de entrada se sitúa la escalera que da acceso a las plantas situadas en otros niveles. En la planta baja de dispondrá de un dormitorio, un baño así como comedor y cocina abierta a salón configurado en dos alturas. Desde esta planta se accede desde la fachada acristalada sur a la terraza principal, dotada de pool house y piscina. En Planta alta se dispondrán 2 dormitorios con sus correspondientes baños en suite. El dormitorio principal estará dotado también de vestidor. Cada dormitorio tendrá acceso a una terraza con vistas al jardín y piscina. En el exterior de la planta baja se ejecutará un área de Pool‐House, destinado a albergar la barbacoa y un comedor exterior apergolado y solarium. En sótano se localizará, un salón, el gimnasio, sauna, sala de yoga, un baño, cuarto de instalaciones y almacén. Para más información: Plano, proyecto, etc.. . Contacta con nosotros lo antes posible Terreno Urbano, Mijas, Costa del Sol. Jardin/Terreno 801 m². Posición: Cerca de Golf, Cerca de Tiendas, Cerca del Mar, Cerca de Cuidad, Cerca de Colegios, Urbanización. Vistas: Mar, Jardín. Categoría: Ganga, Inversion, Con Permiso de Planificación.

Caractéristiques du bien

Complex information

  • Type de bien
    Urbain

Données de la propriété

  • Type de propriété
    Occasion

Surfaces

  • Superficie du terrain
    801 m²

Base

  • Parcelle minimale à vendre
    801 m²
  • Terrains constructibles
    2
  • Constructibilité
    210
  • Usage de la parcelle
    Résidentiel

Statistiques des prix du marché pour Terreno en Barrio Mijas Pueblo

Carte

Malaga, Mijas, Mijas Pueblo, Barrio Mijas Pueblo Aller à cet endroit
Laisser un commentaire sur Terreno en Barrio Mijas Pueblo
0
0 revues
1
0% (0)
2
0% (0)
3
0% (0)
4
0% (0)
5
0% (0)
Selectiva Real Estate
380 000 €
Contacter l'annonceur

Pour plus d’informations, contactez la plateforme

REF: 244634

Critiques à propos de Terreno en Barrio Mijas Pueblo
Loading...

No reviews have been left for this object yet

Propriétés les plus proches

Explorez les biens immobiliers que nous avons découverts à proximité de ce site

Terreno en venta en Urbanizacion Torreblanca del Sol

Malaga, Fuengirola, Los Pacos, Urbanizacion Torreblanca del Sol
175 000 €

¡Oportunidad única de inversión en la Costa del Sol! Se venden 6 Terrenos ubicad...

0
0 commentaires

Terreno en venta en calle Veleta s/n

Malaga, Benalmádena, Montealto, Calle Veleta s/n
3 000 000 €

Este terreno se encuentra en Calle Veleta, 29631, Benalmádena, Málaga. Es un sol...

0
0 commentaires

Terreno en Valtocado - La Alquería - La Atalaya

Malaga, Mijas, Valtocado - La Alquería - La Atalaya, Valtocado - La Alquería - La Atalaya
185 000 €

Parcela Rústica en El Hornillo Parcela rústica de aproximadamente 13.000 m2, muy...

0
0 commentaires

Terreno en avenida Esmeralda, 14

Malaga, Benalmádena, Arroyo de la Miel, Avenida Esmeralda, 14
420 000 €

SOLAR CON PROYECTO Y LICENCIA EN TRAMITE Si quieres construir tu casa a pocos me...

0
0 commentaires

Terreno en calle las Palomas, 11

Malaga, Fuengirola, Torreblanca del Sol, Calle las Palomas, 11
185 000 €

Espectacular solar de 436 m2 con vista lateral al mar.

0
0 commentaires

Terreno en Los Pacos

Malaga, Fuengirola, Los Pacos, Los Pacos
4 500 000 €

Parcela Edificable en Venta en Los Pacos (Fuengirola) ¡Oportunidad única para pr...

0
0 commentaires

Terreno en calle Pensamiento, 3

Malaga, Benalmádena, Benalmádena Pueblo, Calle Pensamiento, 3
1 530 000 €

Oportunidad Exclusiva para Inversores en la Costa del Sol. Descubre una oportuni...

0
0 commentaires

Terreno en calle Jilguero

Malaga, Fuengirola, Torreblanca del Sol, Calle Jilguero
2 150 000 €

Parcela urbana en venta en Urb. Torreblanca del Sol, Fuengirola (Málaga). Tiene...

0
0 commentaires

Terreno en camino de los Rios

Malaga, Mijas, Valtocado - La Alquería - La Atalaya, Camino de los Rios
250 000 €

Excelente oportunidad en Valtocado Si lo que buscas es paz y naturaleza, esta pa...

0
0 commentaires
Appeler

Nous utilisons nos propres cookies et ceux de tiers pour analyser l’utilisation du site Web et vous montrer des publicités en lien avec vos préférences, sur la base d’un profil établi à partir de vos habitudes de navigation (ex. : pages visitées). Plus d’informations. Acceptez-vous les cookies ?