Nowa nieruchomość de Auriga, 36 w Jávea/Xàbia

Alicante, Jávea/Xàbia, Montgó - Ermita, De Auriga, 36
od 2 975 000 €
3 920 € / m2
Zostaw recenzję
Powierzchnie nieruchomości
Liczba sypialni
Liczba łazienek
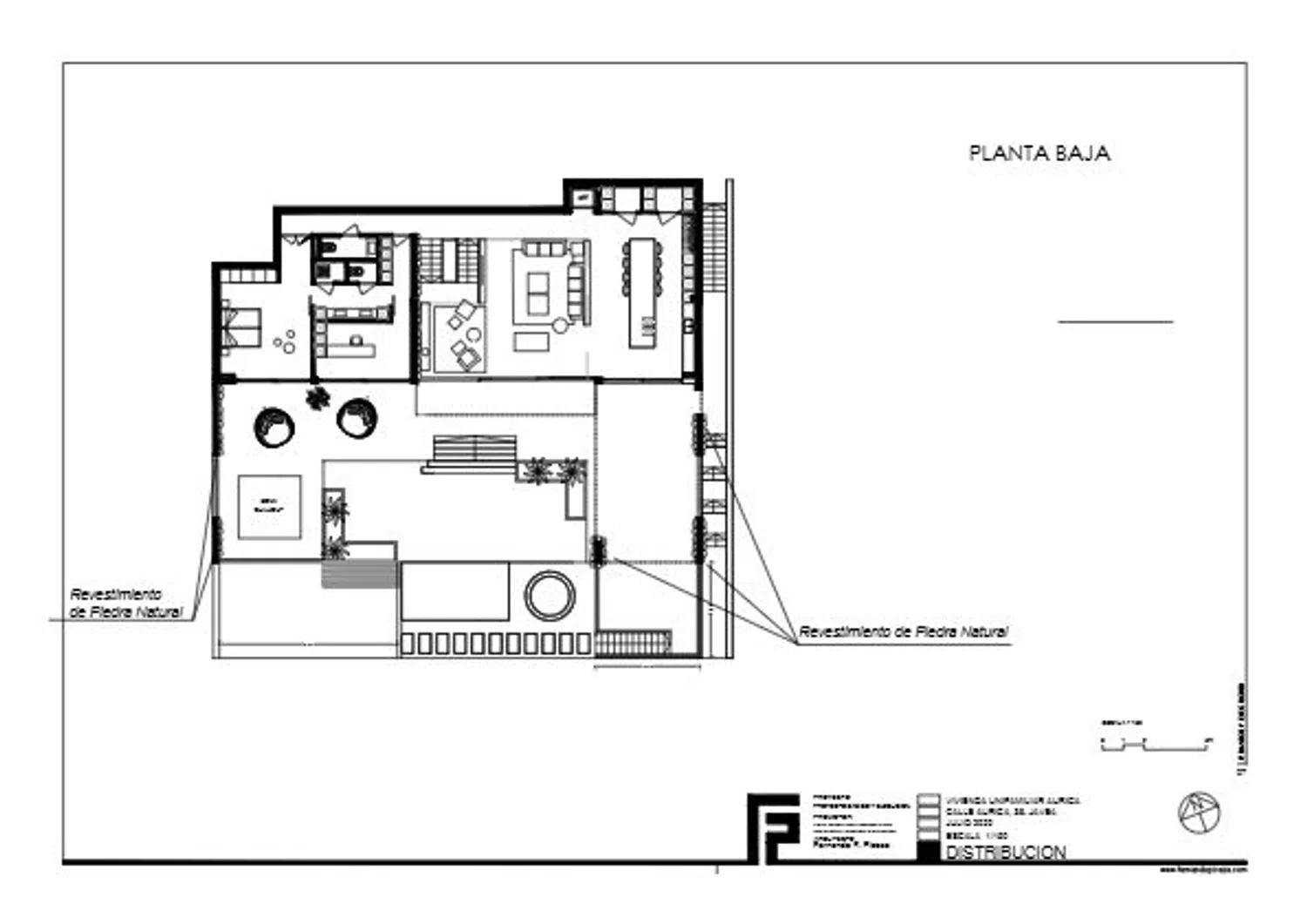
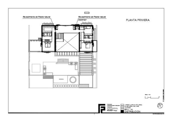
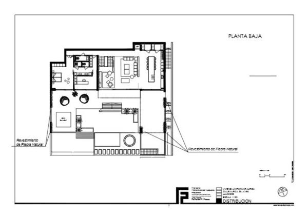
Te presentamos Villa Auriga 36, un exclusivo y lujoso proyecto gestionado por Eurojavea Projects, con licencia concedida, con todas las tasas y licencias pertinentes en vigor listas para iniciar su construcción, situado a los pies del Montgó y orientado al sur, ofreciendo impresionantes vistas panorámicas. Esta exclusiva villa se asienta en una amplia parcela de 2,330 m2 y cuenta con 323 m2 construidos, además de 270 m2 de amplias terrazas. La villa cuenta con un total de 5 dormitorios, 3 baños y un aseo. Destacan sus amplios ventanales, techos de doble altura y amplias terrazas. Planta principal con amplio salón-comedor con cocina integrada equipada con electrodomésticos de alta gama. En esta misma planta hay un dormitorio, un espacioso baño, un despacho que puede convertirse en el quinto dormitorio y un aseo de cortesía. Planta superior con tres dormitorios, dos baños, uno de los dormitorios con baño en suite y vestidor. Planta inferior amplios espacios donde podría hacer un gimnasio, zona de piscina y zona chillout. Zona de parking en la parte trasera de la vivienda. La casa está equipada con ascensor, calefacción por suelo radiante, aire acondicionado, paneles solares, carpintería de aluminio, revestimiento de fachada en piedra natural, punto de carga para coche eléctrico, etc.. . Sin duda, un lujoso y exclusivo proyecto pensado para construir la casa de tus sueños, utilizando materiales de alta calidad que garantizarán tu confort. Proyecto con licencia concedida, LOM 2019/217. Periodo de construcción 14 meses.

Wyróżnione promocje w Hiszpanii

10 jednostki

Nature Views 2

Alicante, Torrevieja, Los Balcones - Los Altos del Edén, Denia s/n
310 000 € - 379 000 €
1 jednostki

Hotel en venta en Benidorm centro

Alicante, Benidorm, Plaża Poniente
2 250 000 € - 2 250 000 €
32 jednostki

Residencial Los Balcones De Calpe

Alicante, Kalpe, Calpe Pueblo, Avenida de Madrid, 1
299 000 € - 892 125 €
7 jednostki

Nature Views

Alicante, Torrevieja, Lago Jardín II, Avenida Denia s/n
305 000 € - 330 000 €
5 jednostki

ALONIS VILLAS

Alicante, La Villajoyosa / Vila Joiosa, Plaża de Torres, Partida Torres s/n
675 000 € - 775 000 €
1 jednostki

Residencial Royal Beach

Alicante, Guardamar del Segura, pueblo, Miguel Hernández 102
349 500 € - 349 500 €
7 jednostki

Royal Star

Alicante, Guardamar del Segura
229 500 € - 269 500 €
Informacje te pochodzą ze źródeł publicznych i mogą być nieaktualne. Nie stanowią one powiązania z deweloperem.

Charakterystyka nieruchomości

Complex information

Informacje o projekcie / Stan budowy

  • Pozwolenie na budowę
    Przyznana

Pamięć o Jakości

  • Ogrzewanie
    Ogrzewanie podłogowe

Dane nieruchomości

  • M2 średnie
    759 m²
  • Typ nieruchomości
    Z drugiej ręki

Base

Certyfikat energetyczny

  • Zużycie energii
    En trámite

Udogodnienia

W budynku:

Basen

Plany

Statystyki cen rynkowych dla de Auriga, 36

418 203 € (3 800 €/m2)
Średnia cena pierwotnego Mieszkania w mieście Jávea/Xàbia
1 298 929 € (3 650 €/m2)
Średnia cena pierwotnego Domy w dzielnicy Montgó - Ermita

Mapa

Alicante, Jávea/Xàbia, Montgó - Ermita, De Auriga, 36 Iść do tego miejsca
Zostaw opinię o de Auriga, 36
0
0 recenzje
1
0% (0)
2
0% (0)
3
0% (0)
4
0% (0)
5
0% (0)
EURO JAVEA Real Estate Est. 1998
2 975 000 €
od 3 920 € / m2
Kontakt z reklamodawcą

Aby uzyskać więcej informacji, skontaktuj się z platformą

REF: 181425

Opinie o de Auriga, 36
Loading...

No reviews have been left for this object yet

Najbliższe nieruchomości

Poznaj pobliskie nieruchomości, które znaleźliśmy w pobliżu tej lokalizacji

Nowa inwestycja mieszkaniowa Albamar Residencial w Denii.

Alicante, Dénia, Les Marines/Las Marinas, Calle Boga, 31
-

Nieruchomość w Albamar Residencial Albamar Residencial to ekskluzywna inwestycj...

0
0 recenzji
7 jednostki

Nowe luksusowe wille w Denii - San Nicolás

Alicante, Dénia, Les Rotes/Las Rotas, Calle Caronte, 6
1 622 700 € - 2 613 287 €

Odkryj te ekskluzywne wille luksusowe położone na wzgórzu San Nicolás, niedaleko...

0
0 recenzji

Nowe osiedle domów jednorodzinnych w Denii.

Alicante, Dénia, La Pedrera-Vessanes, Calle de Idas, 22
-

Nieruchomość w Rosario's Villas Projekt wyjątkowej willi wolnostojącej, stanowią...

0
0 recenzji

Nowa inwestycja mieszkaniowa Corona Boreal w Denii.

Alicante, Dénia, El Montgó, Camino dels Lladres, 20
-

Nieruchomość w Residencial Corona Boreal Znajdujący się w jednym z najbardziej c...

0
0 recenzji
1 jednostki

Nowa inwestycja Unic w Jávea/Xàbia

Alicante, Jávea/Xàbia, Centro Ciudad, Avenida Rei Juan Carlos I s/n
543 000 € - 543 000 €

Nieruchomość w Unic Vive el Mediterráneo desde tu nuevo hogar en Jávea 🌿☀️ Desc...

0
0 recenzji
3 jednostki

Nowa inwestycja mieszkaniowa Tossal Gros w Denii.

Alicante, Dénia, El Montgó, Camino Assagador de Cabanes , 37
675 000 € - 710 000 €

Nieruchomość w Odkryj tę nową ofertę w jednej z najbardziej pożądanych lokaliza...

0
0 recenzji

Nowa inwestycja mieszkaniowa w malowniczej miejscowości nadmorskiej oferuje nowoczesne apartamenty doskonale wkomponowane w naturalne otoczenie.

Alicante, Dénia, El Montgó, Camino Pou de la Muntanya, 10
-

Nieruchomość w Residencial Denia Nature Położony zaledwie 200 metrów od centrum...

0
0 recenzji
1 jednostki

Villa de lujo Denia La Pedrera

Alicante, Dénia, La Pedrera-Vessanes, Camino de la Pedrera, 17
729 000 € - 729 000 €

Descubre un nuevo proyecto residencial que da vida a dos exquisitas villas unifa...

0
0 recenzji

Can Brisa

Alicante, Jávea/Xàbia, Partida Comunes-Adsubia, Calle Río Cabriel, 3
-

Can Brisa es una villa de lujo en Jávea que combina el estilo mediterráneo, cont...

0
0 recenzji

Używamy własnych plików cookie oraz plików cookie stron trzecich do analizy korzystania z witryny i wyświetlania reklam dopasowanych do Twoich preferencji, na podstawie profilu utworzonego na podstawie Twoich nawyków przeglądania (np. odwiedzonych stron). Więcej informacji. Czy akceptujesz pliki cookie?