Новостройка Casa independiente en calle de Serra Cortina s/n в Финестрат

Аликанте, Финестрат, Финестрат Пueblo, Calle de Serra Cortina s/n
1 065 000 €
3 777 € / m2
Оставить отзыв
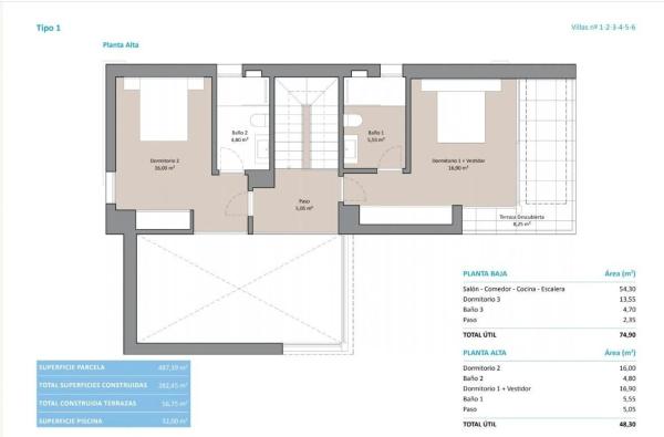
282 m² м2 построенных
491 m² Площадь участка
3 Ванные комнаты
3 Спальни
Хорошее состояние Состояние недвижимости
Esta villa independiente de dos plantas se encuentra en una parcela de 491 m² y tiene una superficie construida de 282 m². La propiedad, ubicada a solo 5 minutos en coche de la playa y de Benidorm, ofrece un entorno cómodo y moderno para vivir. En la planta inferior, hay un dormitorio, un baño completo, un amplio salón comedor con cocina integrada y una isla, un porche y una terraza. El jardín incluye una piscina de 32 m², acabada en gresite, rodeada de césped y árboles naturales con riego automático e iluminación exterior. La planta superior alberga dos dormitorios adicionales, dos baños y una terraza, proporcionando un espacio privado y relajante. La villa cuenta con un sistema completo de aire acondicionado por conductos (frío/calor) en ambas plantas. Para el agua caliente sanitaria, dispone de una instalación de placas solares con refuerzo de un termo eléctrico. La cocina está equipada con electrodomésticos de alta calidad, incluyendo campana empotrada, placa de inducción, lavavajillas, horno, frigorífico y microondas. Además, la propiedad está cercada con acero y lamas orientadas hacia el mar, ofreciendo seguridad y vistas espectaculares. Esta villa es ideal para quienes buscan una residencia moderna, bien equipada y cercana a la playa y a la ciudad de Benidorm. RESERVALA POR SOLO 10.000€! FECHA PREVISTA DE ENTREGA: MARZO-SEPTIEMBRE 2025 �✨Aviso legal: Impuestos, notario y gestión no incluidos. Aviso legal: la información descrita es meramente informativa, no vinculante jurídicamente pudiendo contener algún error.

Топ новостройки Испании

Обратите ваше внимание на эти ЖК

10 единиц

Nature Views 2

Аликанте, Торревьеха, Лос-Балконес - Лос-Альтос дель Эден, Denia s/n
310 000 € - 379 000 €
1 единиц

Hotel en venta en Benidorm centro

Аликанте, Бенидорм, Плая де Поньенте
2 250 000 € - 2 250 000 €
32 единиц

Residencial Los Balcones De Calpe

Аликанте, Кальпе, Кальпе Пуэбло, Avenida de Madrid, 1
299 000 € - 892 125 €
7 единиц

Nature Views

Аликанте, Торревьеха, Лаго Хардин II, Avenida Denia s/n
305 000 € - 330 000 €
5 единиц

ALONIS VILLAS

Аликанте, Ла Виллахойоса / Вила Хойоса, Платха де Торрес, Partida Torres s/n
675 000 € - 775 000 €
1 единиц

Residencial Royal Beach

Аликанте, Гуардамар-дель-Сегура, побло, Miguel Hernández 102
349 500 € - 349 500 €
7 единиц

Royal Star

Аликанте, Гуардамар-дель-Сегура
229 500 € - 269 500 €

Характеристики недвижимости

Complex information

Информация о проекте / Статус работы

  • Состояние недвижимости
    Хорошее состояние

Данные о недвижимости

  • Спальни
    3
  • Ванные комнаты
    3
  • м2 построенных
    282 m²
  • Ориентация
    Юг
  • Тип недвижимости
    Вторичка

Площади

  • Площадь участка
    491 m²

Base

Энергетическая сертификация

  • Энергоаудитный сертификат
    G
  • Эмиссии
    57 kg CO2/m² year
  • Энергопотребление
    154 kwh/m² year

Удобства

Удобства жилья:

Кондиционер

В здании:

Бассейн

Эстадо:

Хорошее состояние

Статистика рыночных цен на Casa independiente en calle de Serra Cortina s/n

735 823 € (3 451 €/m2)
Средняя цена на первичные в городе Финестрат
820 205 € (3 137 €/m2)
Средняя цена на вторичные в городе Финестрат

Карта

Аликанте, Финестрат, Финестрат Пueblo, Calle de Serra Cortina s/n Поехать в это место
Оставьте отзыв о Casa independiente en calle de Serra Cortina s/n
0
0 reviews
1
0% (0)
2
0% (0)
3
0% (0)
4
0% (0)
5
0% (0)
Embassy Levante Torrevieja
1 065 000 €
от 3 777 € / m2
Свяжитесь с рекламодателем

Для получения дополнительной информации свяжитесь с платформой

REF: 408189

Отзывы о Casa independiente en calle de Serra Cortina s/n
Loading...

No reviews have been left for this object yet

Покинутые деревни 16485 Дома для ремонта 18606 Дешевые дома 45081 Дома до 50.000€ 16714 Дома класса люкс 21666 Квартиры с вторичном рынке 39381 Продажа домов с 2 спальнями Аликанте 15231 Продажа домов с 3 спальнями Аликанте 20229 Продажа домов с 4 комнатами Аликанте 17233 Дома в хорошем состоянии Аликанте 15470 Дома для ремонта Аликанте 14152 Дешевые дома Аликанте 31251 Недорогие отдельные шале Аликанте 20443 Покинутые деревни Аликанте 12741 Роскошные дома Аликанте 15852 Дома до 50.000€ Аликанте 12883 Вторичное жилье Аликанте 30545 Частные дома Аликанте 7561 Casas con terreno Аликанте 10743 Продажа домов с 2 спальнями Финестрат 584 Продажа домов с 3 спальнями Финестрат 878 Продажа домов с 4 спальнями Финестрат 699 Дома в хорошем состоянии Финестрат 536 Дома для ремонта Финестрат 523 Дешевые дома Финестрат 1231 Недорогие отдельные дома Финестрат 1027 Роскошные дома Финестрат 674 Дома до 50.000€ Финестрат 507 Вторичные дома Финестрат 1164 Частные дома Финестрат 200

Ближайшие объекты

Исследуйте близлежащие объекты, которые мы обнаружили неподалеку от этого местоположения.

Chalet independiente en Venta en Calle roma, 23, Finestrat

Аликанте, Финестрат, Гольф Бахия, Calle roma, 23
1 750 000 €

Nueva villa terminada en Sierra Cortina de Finestrat (Alicante).Les ofrecemos un...

0
0 отзывов

Продается отдельный шале в живописном районе. Этот уникальный объект недвижимости предлагает комфорт и уединение, идеально подходящие для отдыха или постоянного проживания. Окруженный красивой природой, дом располагает всеми необходимыми удобствами для ко

Аликанте, Финестрат, Балькон де Финестрат-Терра Малина, Calle d'Equador s/n
545 000 €

Этот новый жилой комплекс расположен в красивом районе и предлагает разнообразны...

0
0 отзывов

Продается отдельный шале в живописном районе, окруженном великолепной природой. Этот уютный дом предлагает идеальное место для спокойной жизни и отдыха, а также удобный доступ ко всем необходимым удобствам. Просторные комнаты и продуманный интерьер создаю

Аликанте, Финестрат, Балькон де Финестрат-Терра Малина, Calle d'Equador s/n
635 000 €

Этот новый жилой комплекс расположен в Финестрате и предлагает различные вариант...

0
0 отзывов

Продаётся независимый шале в живописном районе Финестрат. Этот стильный дом предлагает комфортное проживание и прекрасные виды, идеально подходящие для жизни и отдыха. Проект включает в себя современные удобства и ландшафтный дизайн, создавая атмосферу уе

Аликанте, Финестрат, Балькон де Финестрат-Терра Малина, Calle d'Equador s/n
1 250 000 €

Этот современный жилой комплекс расположен в живописном районе, предлагая разноо...

0
0 отзывов

Продается отдельно стоящий шале в живописном районе Финестрата. Это идеальное место для ценителей уединения и комфорта. Просторные помещения и современный дизайн создают атмосферу уюта и стиля. Недвижимость окружена великолепной природой, что делает её ид

Аликанте, Финестрат, Балькон де Финестрат-Терра Малина, Calle d'Equador s/n
550 000 €

Этот новый жилой комплекс расположен в прекрасном районе и предлагает разнообраз...

0
0 отзывов

Продается отдельный шале в районе с живописными пейзажами. Это идеальное место для тех, кто ищет уединение и комфорт. Шале предлагает просторные зоны для отдыха и современный дизайн, который позволяет наслаждаться природой и атмосферой спокойствия.

Аликанте, Финестрат, Балькон де Финестрат-Терра Малина, Calle d'Equador s/n
640 000 €

В этом новом жилом комплексе, расположенном в живописном районе, предлагаются ра...

0
0 отзывов

Продаётся уютный отдельный шале в живописном районе Финестрата. Этот замечательный объект недвижимости идеально подходит для тех, кто ищет спокойствие и уединение, а также близость к природным красотам. Шале отличается продуманным дизайном и комфортабельн

Аликанте, Финестрат, Балькон де Финестрат-Терра Малина, Calle d'Equador s/n
645 000 €

Этот новый жилой комплекс расположен в живописной местности и предлагает широкий...

0
0 отзывов

Продается отдельный шале в живописном районе. Этот уютный дом создает идеальные условия для проживания и отдыха, окруженный природой и великолепными пейзажами. Просторное внутреннее пространство и стильный дизайн делают его отличным выбором для тех, кто ц

Аликанте, Финестрат, Балькон де Финестрат-Терра Малина, Calle d'Equador s/n
639 000 €

Этот новый жилой комплекс расположен в живописном районе и предлагает различные...

0
0 отзывов

Продаётся отдельный шале в живописном районе Финестрат. Это уютное жильё сочетает в себе комфорт и стиль, предлагая прекрасные виды и близость к природным красотам. Идеальное место для тех, кто ищет уединение и отдых вдали от городской суеты.

Аликанте, Финестрат, Балькон де Финестрат-Терра Малина, Calle d'Equador s/n
1 900 000 €

Этот новый жилой комплекс расположен в живописном месте и предлагает жилье разли...

0
0 отзывов
Звонок

Мы используем собственные и сторонние файлы cookie для анализа использования веб-сайта и показа вам рекламы, соответствующей вашим предпочтениям, на основе профиля, созданного по вашим привычкам просмотра (например, посещенные страницы). Подробнее. Вы принимаете файлы cookie?