Новостройка Marino в Гран-Алакант

Аликанте, Гран-Алакант
от 299 000 €
2 534 € / m2
Оставить отзыв
2026 Год сдачи
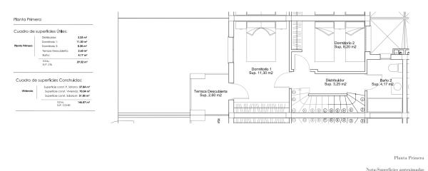
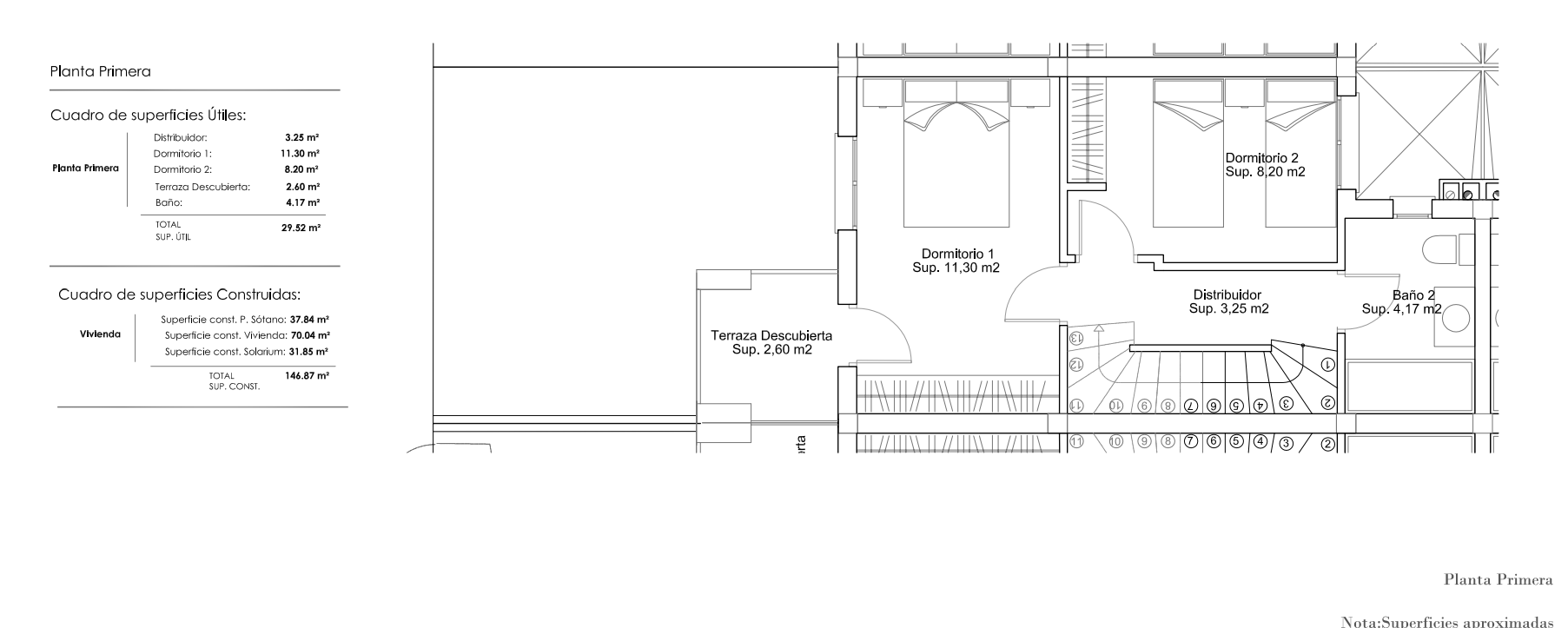
118 m² - 118 m² Площадь объекта
2 Количество спален
2 Ванные комнаты

Недвижимость в ЖК Marino

Эти семейные дома в стиле модерн и средиземноморском стиле выделяются функциональным, светлым и комфортным дизайном.
Построенные из материалов первоклассного качества, они спроектированы так, чтобы максимально использовать пространство и естественное освещение, предлагая просторный, уютный дом, полный гармонии.

Дизайн и планировка

Жилой комплекс состоит из парных бунгало, что обеспечивает большую независимость и приватность, с прямым доступом с улицы.
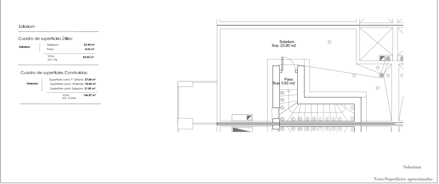
Каждое жилье оснащено приватной парковкой на поверхности, полностью завершённым подвалом и солярием на крыше, идеальным для наслаждения солнцем и видами.
Интерьер сочетает в себе элегантность и функциональность, с полуотдельной кухней, просторной гостиной-столовой и большими окнами, соединяющими с внешним миром.

Преимущества новостройки Marino

  • Площадь распределена на 3 этажах
  • 2 спальни и 2 ванные комнаты
  • Главная спальня с выходом на верхний балкон
  • Полностью меблированная полуотдельная кухня
  • Гостиная-столовая с большими окнами
  • Завершённый подвал и внутренний дворик
  • Приватный солярий на крыше
  • Общий бассейн и зеленые зоны
  • Внешняя парковка для личного использования
  • Материалы и отделка высокого качества
  • Система солнечной энергии с панелями и накопителем
  • Аэротермический нагреватель включён

Жизнь в городе Gran Alacant

Отделка и качество

  • Покрытие из керамогранита и керамические отделки высокого качества
  • Входная дверь с высокой степенью безопасности
  • Окна из белого алюминия с терморазрывом и двойным остеклением Climalit
  • Гладкая пластиковая краска на стенах и потолках белого цвета
  • Кухонная мебель из постформованного МДФ с работной поверхностью из композитного кварца
  • Система солнечной энергии для горячего водоснабжения
  • Конструкция с термо- и звукоизоляцией через двойной слой кирпича и минеральной ваты

Зоны общего пользования и окружение

В жилом комплексе имеется общий бассейн и обширные зеленые зоны, созданные для обеспечения спокойствия и благополучия всех жителей.
Расположен в привилегированном окружении, сочетающем природу, услуги и близость к морю.

📍 Приблизительные расстояния:

  • В 5 минутах от Международного аэропорта Аликанте-Эльче
  • В 5 минутах от пляжей Carabassí
  • Прямое соединение с дорогой N-332 и автострадой A-7
  • Близость к супермаркетам, магазинам и природным зонам

Дом, созданный для наслаждения

Эти дома сочетают средиземноморскую архитектуру с современным дизайном, создавая пространства, полные света, эффективности и уюта.
Каждый элемент был тщательно спланирован для того, чтобы предложить современный, устойчивый и близкий к морю образ жизни.
Уникальная возможность для жизни или инвестирования в консолидированной жилой зоне на Коста-Бланка.


Топ новостройки Испании

Обратите ваше внимание на эти ЖК

10 единиц

Nature Views 2

Аликанте, Торревьеха, Лос-Балконес - Лос-Альтос дель Эден, Denia s/n
310 000 € - 379 000 €
1 единиц

Hotel en venta en Benidorm centro

Аликанте, Бенидорм, Плая де Поньенте
2 250 000 € - 2 250 000 €
32 единиц

Residencial Los Balcones De Calpe

Аликанте, Кальпе, Кальпе Пуэбло, Avenida de Madrid, 1
299 000 € - 892 125 €
7 единиц

Nature Views

Аликанте, Торревьеха, Лаго Хардин II, Avenida Denia s/n
305 000 € - 330 000 €
5 единиц

ALONIS VILLAS

Аликанте, Ла Виллахойоса / Вила Хойоса, Платха де Торрес, Partida Torres s/n
675 000 € - 775 000 €
2 единиц

Residencial Royal Beach

Аликанте, Гуардамар-дель-Сегура, побло, Miguel Hernández 102
339 500 € - 345 500 €
8 единиц

Royal Star

Аликанте, Гуардамар-дель-Сегура
224 500 € - 264 500 €

Объекты в этом комплексе

Предоставленная информация о ценах, характеристиках и деталях этой акции может подвергаться изменениям и корректировкам в зависимости от источника. Таким образом, она не имеет самостоятельной коммерческой ценности, а предоставляется исключительно в информационных и ориентировочных целях. Этот веб-сайт не осуществляет коммерческую деятельность по продвижению этого проекта или недвижимости.

Название
Спальни
Ванные комнаты
Площадь
Этаж
Категория
Цена
246 2 2 118 m² Таунхаусы 299 000 € Visit
245 2 2 118 m² Таунхаусы 299 000 € Visit
244 2 2 118 m² Таунхаусы 299 000 € Visit
243 2 2 118 m² Таунхаусы 299 000 € Visit
234 2 2 118 m² Таунхаусы 305 000 € Visit
235 2 2 118 m² Таунхаусы 305 000 € Visit
237 2 2 118 m² Таунхаусы 305 000 € Visit
233 (esquina) 2 2 118 m² Таунхаусы 341 000 € Visit
242 (esquina) 2 2 118 m² Таунхаусы 341 000 € Visit
Эта информация получена из публичных источников и может быть устаревшей. Она не представляет собой связь с застройщиком.

Характеристики недвижимости

Complex information

  • Объектов
    9
  • Ценовой диапазон
    299 000 € - 341 000 €
  • Количество спален
    2
  • Площадь объекта
    118 m² - 118 m²
  • Типы недвижимости
    Таунхаусы

Информация о проекте / Статус работы

  • Год сдачи
    2026
  • Этап строительства
    В процессе строительства
  • Лицензия на строительство
    Предоставлено
  • Формат продвижения
    Свободный

Техническая спецификация

  • Напольные покрытия
    Порцеляновая плитка
  • Остекление
    Алюминий с тепловым разрывом, Двойное остекление, Климатит
  • Внутренняя столярка
    Бронированная дверь, Встроенные шкафы, Белые лакированные двери
  • Отопление
    Преинсталляция по каналу
  • Горячая вода
    Аэротермия
  • Опции настройки
    Цвет кухонной мебели, Персонализация покрытия пола, Персонализация бытовой техники, Тип кухни, Цвет краски

Данные о недвижимости

  • Тип кухни
    Американская кухня
  • Оборудование кухни
    С меблировкой
  • Гараж
    Включено в цену
  • M2 средние
    118 m²
  • Тип дизайна
    Современный
  • Тип недвижимости
    Новостройка

Base

  • Общее количество этажей
    3

Энергетическая сертификация

  • Состояние энергетического сертификата
    В ожидании получения
  • Энергетический сертификат
    B
  • CEE Эмиссия
    B

Удобства

Удобства жилья:

Частный бассейн

В здании:

Частная парковка
Подвал

Планы

Статистика рыночных цен на Marino

310 333 € (2 629 €/m2)
Средняя цена в комплексе
310 333 € (2 630 €/m2)
Средняя цена на 2-комнатные
308 087 € (2 493 €/m2)
Средняя цена на первичные Дома в городе Гран-Алакант

Карта

Аликанте, Гран-Алакант Поехать в это место
Оставьте отзыв о Marino
0
0 reviews
1
0% (0)
2
0% (0)
3
0% (0)
4
0% (0)
5
0% (0)
Masa
299 000 €
от 2 534 € / m2
Свяжитесь с рекламодателем

Для получения дополнительной информации свяжитесь с платформой

REF: 396856

Отзывы о Marino
Loading...

No reviews have been left for this object yet

Жилье с государственной защитой (ЖГЗ) 1207 Сдача в 2025 году 1861 Сдача в 2024 году 1472 Сдача в 2026 году 1984 Сдача в 2027 году 1540 На этапе строительства 1194 В строительстве 1607 Сданный в эксплуатацию новострой 1371 Новая постройка с видом на море 1434 Будущие акции 3089 Сдача в 2022 году 1167 Сдача в 2024 Аликанте 409 Сдача в 2025 году Аликанте 451 Новостройки с видом на море Аликанте 423 На этапе планировки Аликанте 353 В процессе строительства Аликанте 439 Новые построенные объекты Аликанте 392 Жилища (VPO) Аликанте 326 Сдача в 2026 году Аликанте 446 Сдача в 2027 году Аликанте 364 Сдача в 2023 году Аликанте 359 Будущие акции Аликанте 590 Сдача в 2022 году Аликанте 347 Сдача в 2028 году Аликанте 330 Новостройка с тренажерным залом Аликанте 388 Жилищный кооператив Аликанте 325 Сдача в 2024 году Гран-Алакант 4 Сдача в 2023 году Гран-Алакант 4 На этапе планировки Гран-Алакант 4 В процессе строительства Гран-Алакант 5 Новостройка завершена Гран-Алакант 4 Новостройка с видом на море Гран-Алакант 5 Жилища с государственной защитой (ЖГЗ) Гран-Алакант 4 Жилища ВПО Гран-Алакант 4 Сдача в 2025 году Гран-Алакант 5 Сдача в 2026 году Гран-Алакант 6 Будущие акции Гран-Алакант 8 Сдача в 2022 году Гран-Алакант 4 Сдача в 2027 году Гран-Алакант 5 Жилищный кооператив Гран-Алакант 4 Сдача в 2028 году Гран-Алакант 4

Ближайшие объекты

Исследуйте близлежащие объекты, которые мы обнаружили неподалеку от этого местоположения.

Obra nueva Residencial Claudia II en Elche / Elx

Аликанте, Эльче / Эльх, Ариналес дель Соль, Calle C/ Bahía, 65 y Avda. Costa Blanca, 22
-

Arenales es una de las mejores playas de la Costa Blanca. en sus aguas azules y...

0
0 отзывов

Obra nueva Edificio Claudia II en Elche / Elx

Аликанте, Эльче / Эльх, Ариналес дель Соль, Calle Bahia, 65
-

Все дома включают в себя подземное парковочное место и кладовую. Первый этаж с с...

0
0 отзывов

Obra nueva Edificio Marqués de Molins en Santa Pola

Аликанте, Санта Пола, Центро, Calle Marqués de Molins , 6
-

OBRA NUEVA EDIFICIO MARQUÉS DE MOLINSÁticos y viviendas de 2, 3 y 4 dormitorios...

0
0 отзывов

Obra nueva Residencial Playa Levante en Santa Pola

Аликанте, Санта Пола, Пляжа Леванте, Calle José Alejo Bonmatí s/n
-

RESIDENCIAL PLAYA LEVANTEEl es una promoción de obra nueva en Santa Pola que cu...

0
0 отзывов

Новая роскошная вилла в стиле средиземноморья расположена в живописной местности близ города Санта Пола.

Аликанте, Санта Пола, Калас де Сантяго Бернабеу, Avenida Maribel López Pérez Ojeda, 47
-

Эксклюзивный жилой комплекс с пентхаусами, бунгало и бассейном Откройте для себ...

0
0 отзывов

Новое строительство Aura от компании Nara в районе Гран Алакант.

Аликанте, Гран-Алакант, Монте и Мар, Calle Canarias, 6
-

Недвижимость в ЖК Aura by Nara Отключение, отдых, спокойствие. Природа, море, со...

0
0 отзывов
1 единиц

Новый жилой комплекс в Гран-Алаканте.

Аликанте, Гран-Алакант, Гран-Алакант, Calle Orden Dórico, 551
405 000 € - 405 000 €

Фаза 2: на продажу. Новые современные апартаменты с впечатляющими видами на море...

0
0 отзывов
1 единиц

Новое строительство в районе Амара, Гран Алакант.

Аликанте, Гран-Алакант, Гран Виста-Оливо де Оро, Avenida D'Escandinàvia s/n
315 000 € - 315 000 €

Недвижимость в ЖК Amara Откройте для себя новый жилой комплекс, состоящий из 120...

0
0 отзывов
10 единиц

Obra nueva Apartamentos en Gran Alacant en Gran Alacant

Аликанте, Гран-Алакант, Гран Виста-Оливо де Оро
300 000 € - 325 000 €

Nuevo residencial exclusivo de 120 viviendas en Gran Alacant. Disfruta de un apa...

0
0 отзывов
Звонок

Мы используем собственные и сторонние файлы cookie для анализа использования веб-сайта и показа вам рекламы, соответствующей вашим предпочтениям, на основе профиля, созданного по вашим привычкам просмотра (например, посещенные страницы). Подробнее. Вы принимаете файлы cookie?