Продажа отдельного шале в Pinar de Advocat-Cometa, Морайра

Аликанте, Морайра, Пинар де Адвокат-Комета, Pinar de Advocat-Cometa
1 549 000 €
2 630 € / m2
Оставить отзыв
Отдельный шале Тип недвижимости
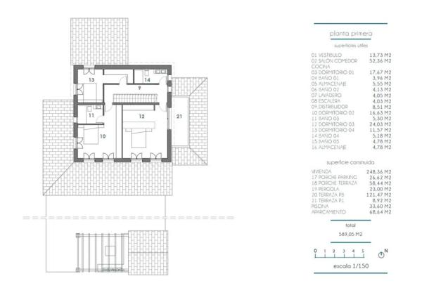
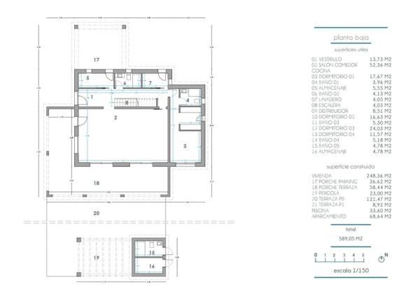
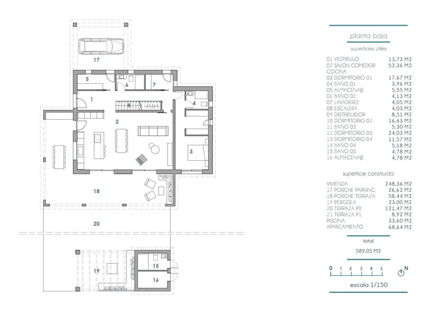
589 m² м2 построенных
5 Ванные комнаты
4 Спальни
Este hermoso proyecto de villa de estilo tradicional se presenta con un acabado interior más moderno de estilo ibicenco y está ubicado en una hermosa zona residencial nueva con muchos pinos, muy tranquila y a solo unos minutos a pie de la playa de arena de Moraira con acogedoras terrazas, muy buenos restaurantes, bonitas calles comerciales y plazas de pueblo sin coches con grandes árboles que proporcionan la sombra necesaria en verano. Moraira también tiene un puerto deportivo muy bien situado y una playa tipo laguna con hermosos colores y aguas poco profundas, ¡ideal para niños pequeños! Al entrar por el hall de entrada tienes a la izquierda una zona de almacenamiento, junto a un aseo de invitados con ducha, al lado del lavadero y el hueco de la escalera. Junto al pasillo se encuentra el dormitorio principal en suite con baño y vestidor. A la derecha del vestíbulo se accede al salón con cocina abierta. A través de la cocina se accede a la terraza cubierta y a la piscina. En la terraza hay una pérgola para crear un acogedor salón exterior con un baño con ducha y un espacio de almacenamiento al lado. La escalera interior conduce al 1er piso con un dormitorio en suite con baño y vestidor, un segundo dormitorio con vestidor y un tercer dormitorio con vestidor y baño al otro lado del pasillo. Este dormitorio también tiene una terraza privada. Este proyecto aún no cuenta con permiso de construcción, al firmar el contrato de compra se deben dejar aproximadamente 15 meses para la entrega de la villa. (sujeto a cambios) Aún se pueden realizar cambios previa consulta con los arquitectos. Los planos detallados sólo se pueden obtener previa cita con los arquitectos. Cada detalle se discute cuidadosamente de antemano con los arquitectos, esta empresa lo guiará de la A a la Z con todas las opciones posibles de materiales y decoración. ¡Una empresa realmente agradable que cumple lo que promete!

Характеристики недвижимости

Complex information

  • Тип недвижимости
    Отдельный шале

Данные о недвижимости

  • Тип кухни
    Американская кухня
  • Спальни
    4
  • Ванные комнаты
    5
  • м2 построенных
    589 m²
  • Тип недвижимости
    Вторичка

Удобства

В здании:

Бассейн
Частная парковка

Планы

Статистика рыночных цен на Chalet en Pinar de Advocat-Cometa

2 052 917 € (4 923 €/m2)
Средняя цена на первичные Отдельный шале в городе Морайра
1 231 553 € (4 057 €/m2)
Средняя цена на вторичные Отдельный шале в городе Морайра
1 921 429 € (5 140 €/m2)
Средняя цена на первичные Отдельный шале в районе Пинар де Адвокат-Комета
1 172 826 € (3 550 €/m2)
Средняя цена на вторичные Отдельный шале в районе Пинар де Адвокат-Комета

Карта

Аликанте, Морайра, Пинар де Адвокат-Комета, Pinar de Advocat-Cometa Поехать в это место
Оставьте отзыв о Chalet en Pinar de Advocat-Cometa
0
0 reviews
1
0% (0)
2
0% (0)
3
0% (0)
4
0% (0)
5
0% (0)
A&O Andrea Y Olaf Inmobiliaria Inmobiliaria
1 549 000 €
от 2 630 € / m2
Свяжитесь с рекламодателем

Для получения дополнительной информации свяжитесь с платформой

REF: 194770

Отзывы о Chalet en Pinar de Advocat-Cometa
Loading...

No reviews have been left for this object yet

Ближайшие объекты

Исследуйте близлежащие объекты, которые мы обнаружили неподалеку от этого местоположения.

Chalet independiente en Venta en Calle Leonardo da Vincci s/n, Jávea/Xàbia

Аликанте, Хавья/Хабия, Кап Марті - Піномар, Calle Leonardo da Vincci s/n
765 000 €

Situada en una zona residencial de alta calidad, a solo 8 minutos del mar, en un...

0
0 отзывов

Chalet independiente en Venta en Calle Leonardo da Vincci s/n, Jávea/Xàbia

Аликанте, Хавья/Хабия, Кап Марті - Піномар, Calle Leonardo da Vincci s/n
2 350 000 €

Una villa verdaderamente espectacular con un impresionante diseño contemporáneo...

0
0 отзывов

Chalet independiente en Venta en Calle Los molinos, 98, Benitachell

Аликанте, Бенитачель, Лес Фонте, Calle Los molinos, 98
895 000 €

Actualmente en construcción una nueva villa exclusiva de 4 dormitorios con una p...

0
0 отзывов

Chalet independiente en Venta en Pozo Urb Cumbre del Sol- Benitachell s/n, Benitachell

Аликанте, Бенитачель, Кумбре дель Соль, Pozo Urb Cumbre del Sol- Benitachell s/n
1 403 700 €

Villa Indigo, está ubicada en una parcela situada en Residencial Resort Cumbre d...

0
0 отзывов

Chalet independiente en Venta en Pozo Urb Cumbre del Sol- Benitachell s/n, Benitachell

Аликанте, Бенитачель, Кумбре дель Соль, Pozo Urb Cumbre del Sol- Benitachell s/n
2 720 000 €

Si hay una villa que destaca por su diseño y sus espacios diáfanos abiertos al m...

0
0 отзывов

Chalet independiente en Venta en Pozo Urb Cumbre del Sol- Benitachell s/n, Benitachell

Аликанте, Бенитачель, Кумбре дель Соль, Pozo Urb Cumbre del Sol- Benitachell s/n
3 882 000 €

Villa la Cala, una propiedad de grandes dimensiones situada en una parcela de 2....

0
0 отзывов

Chalet independiente en Venta en Pozo Urb Cumbre del Sol- Benitachell s/n, Benitachell

Аликанте, Бенитачель, Кумбре дель Соль, Pozo Urb Cumbre del Sol- Benitachell s/n
2 065 000 €

Relajarse y evadirse entorno a unas increíbles vistas al mar es posible en esta...

0
0 отзывов

Chalet independiente en Venta en Pozo Urb Cumbre del Sol- Benitachell s/n, Benitachell

Аликанте, Бенитачель, Кумбре дель Соль, Pozo Urb Cumbre del Sol- Benitachell s/n
2 456 000 €

En el Residential Resort Cumbre del Sol encontramos la villa Delfín, concretamen...

0
0 отзывов

Chalet independiente en Venta en Pozo Urb Cumbre del Sol- Benitachell s/n, Benitachell

Аликанте, Бенитачель, Кумбре дель Соль, Pozo Urb Cumbre del Sol- Benitachell s/n
4 817 000 €

Villa Marblau es una propiedad exclusiva con espacios independientes y amplios e...

0
0 отзывов
Звонок

Мы используем собственные и сторонние файлы cookie для анализа использования веб-сайта и показа вам рекламы, соответствующей вашим предпочтениям, на основе профиля, созданного по вашим привычкам просмотра (например, посещенные страницы). Подробнее. Вы принимаете файлы cookie?