Новостройка Casa independiente en calle Pablo Neruda в Торревьеха

Аликанте, Торревьеха, Ла Сиеста - Эль Саладо - Торрета, Calle Pablo Neruda
425 000 €
2 401 € / m2
Оставить отзыв
1981 Год сдачи
177 m² м2 построенных
800 m² Площадь участка
3 Ванные комнаты
5 Спальни
Включено в цену Гараж
Хорошее состояние Состояние недвижимости
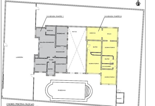
Casas Manuel Real Estate - Una oportunidad única para adquirir una propiedad verdaderamente singular y encantadora ubicada en la exclusiva zona residencial de Torreta Florida, a pocos pasos del emblemático lago salado rosa. Esta impresionante finca se asienta sobre una generosa parcela de 800 metros cuadrados y cuenta con dos viviendas separadas, lo que la convierte en la elección perfecta para familias numerosas, invitados o aquellos que buscan una disposición de vida versátil. Combinando espacio, encanto y una ubicación inmejorable, esta fabulosa propiedad en Torreta Florida ofrece la combinación perfecta de confort y estilo de vida mediterráneo. Una casa verdaderamente especial que debe ser vista para ser apreciada en su totalidad. Aspectos destacados de la propiedad Ubicación privilegiada: Situada en la prestigiosa zona de Torreta Florida, junto al famoso lago salado rosa. Parcela extensa: 800 metros cuadrados de terrenos bellamente ajardinados que ofrecen privacidad y tranquilidad. Dos viviendas: Ideal para familias extensas u oportunidades de alquiler. Piscina privada: Perfecta para refrescarse y disfrutar del clima mediterráneo. Vida al aire libre: Múltiples áreas de descanso soleadas y sombreadas diseñadas para la relajación y el entretenimiento. Aparcamiento fuera de la carretera: Aparcamiento seguro y conveniente dentro de la propiedad.

Топ новостройки Испании

Обратите ваше внимание на эти ЖК

10 единиц

Nature Views 2

Аликанте, Торревьеха, Лос-Балконес - Лос-Альтос дель Эден, Denia s/n
310 000 € - 379 000 €
1 единиц

Hotel en venta en Benidorm centro

Аликанте, Бенидорм, Плая де Поньенте
2 250 000 € - 2 250 000 €
32 единиц

Residencial Los Balcones De Calpe

Аликанте, Кальпе, Кальпе Пуэбло, Avenida de Madrid, 1
299 000 € - 892 125 €
7 единиц

Nature Views

Аликанте, Торревьеха, Лаго Хардин II, Avenida Denia s/n
305 000 € - 330 000 €
5 единиц

ALONIS VILLAS

Аликанте, Ла Виллахойоса / Вила Хойоса, Платха де Торрес, Partida Torres s/n
675 000 € - 775 000 €
2 единиц

Residencial Royal Beach

Аликанте, Гуардамар-дель-Сегура, побло, Miguel Hernández 102
339 500 € - 345 500 €
8 единиц

Royal Star

Аликанте, Гуардамар-дель-Сегура
224 500 € - 264 500 €

Характеристики недвижимости

Complex information

Информация о проекте / Статус работы

  • Год сдачи
    1981
  • Состояние недвижимости
    Хорошее состояние

Данные о недвижимости

  • Гараж
    Включено в цену
  • Спальни
    5
  • Ванные комнаты
    3
  • м2 построенных
    177 m²
  • Ориентация
    Западный
  • Тип недвижимости
    Вторичка

Площади

  • Площадь участка
    800 m²

Base

Энергетическая сертификация

  • Энергоаудитный сертификат
    E
  • CEE Эмиссия
    E

Удобства

Удобства жилья:

Кондиционер
Кладовка

В здании:

Бассейн
Сад
Частная парковка

Эстадо:

Хорошее состояние

Статистика рыночных цен на Casa independiente en calle Pablo Neruda

505 817 € (3 329 €/m2)
Средняя цена на первичные в городе Торревьеха
360 786 € (2 523 €/m2)
Средняя цена на вторичные в городе Торревьеха

Карта

Аликанте, Торревьеха, Ла Сиеста - Эль Саладо - Торрета, Calle Pablo Neruda Поехать в это место
Оставьте отзыв о Casa independiente en calle Pablo Neruda
0
0 reviews
1
0% (0)
2
0% (0)
3
0% (0)
4
0% (0)
5
0% (0)
Casas Manuel La Zenia
425 000 €
от 2 401 € / m2
Свяжитесь с рекламодателем

Для получения дополнительной информации свяжитесь с платформой

REF: 402663

Отзывы о Casa independiente en calle Pablo Neruda
Loading...

No reviews have been left for this object yet

Покинутые деревни 14776 Дома для ремонта 16962 Дешевые дома 43917 Дома до 50.000€ 15011 Дома класса люкс 20162 Квартиры с вторичном рынке 38174 Продажа домов с 2 спальнями Аликанте 13525 Продажа домов с 3 спальнями Аликанте 18642 Продажа домов с 4 комнатами Аликанте 15637 Дома в хорошем состоянии Аликанте 13834 Дома для ремонта Аликанте 12493 Дешевые дома Аликанте 30054 Недорогие отдельные шале Аликанте 18803 Покинутые деревни Аликанте 11017 Роскошные дома Аликанте 14331 Дома до 50.000€ Аликанте 11165 Вторичное жилье Аликанте 29322 Частные дома Аликанте 5714 Casas con terreno Аликанте 8947 Продажа домов с 2 спальнями Торревьеха 1420 Продажа домов с 3 спальнями Торревьеха 1499 Продажа домов с 4 спальнями Торревьеха 1381 Дома в хорошем состоянии Торревьеха 1354 Дома для ремонта Торревьеха 1270 Дешевые дома Торревьеха 1988 Недорогие отдельные дома Торревьеха 1354 Роскошные дома Торревьеха 1267 Дома до 50.000€ Торревьеха 1229 Вторичные дома Торревьеха 1942 Частные дома Торревьеха 729

Ближайшие объекты

Исследуйте близлежащие объекты, которые мы обнаружили неподалеку от этого местоположения.

Продается отдельный шале в живописном районе.

Аликанте, Лос-Монтесинос
439 900 €

Данный жилой комплекс расположен в известной урбанизации на благоухающей Costa B...

0
0 отзывов

Продается отдельный шале в живописном районе.

Аликанте, Лос-Монтесинос
389 900 €

Вилла расположена в известном жилом районе, который славится своей инфраструктур...

0
0 отзывов

Продается отдельный шале в живописной местности.

Аликанте, Лос-Монтесинос
439 900 €

Представляем вашему вниманию жилой комплекс, расположенный в известной урбанизац...

0
0 отзывов

Villas en Venta, Orihuela

Аликанте, Ориуэла, Орихела Коста
289 950 €

¡los apartamentos en planta baja, planta media y ático llave en mano disponibles...

0
0 отзывов

Villas en Venta, Orihuela

Аликанте, Ориуэла, Орихела Коста
295 600 €

¡los apartamentos en planta baja, planta media y ático llave en mano disponibles...

0
0 отзывов
Звонок

Мы используем собственные и сторонние файлы cookie для анализа использования веб-сайта и показа вам рекламы, соответствующей вашим предпочтениям, на основе профиля, созданного по вашим привычкам просмотра (например, посещенные страницы). Подробнее. Вы принимаете файлы cookie?