Terreno en Centro

Малага, Нерха, Центро, Centro
153 750 €
Оставить отзыв
Земля под застройку Тип недвижимости
160 m² Площадь участка
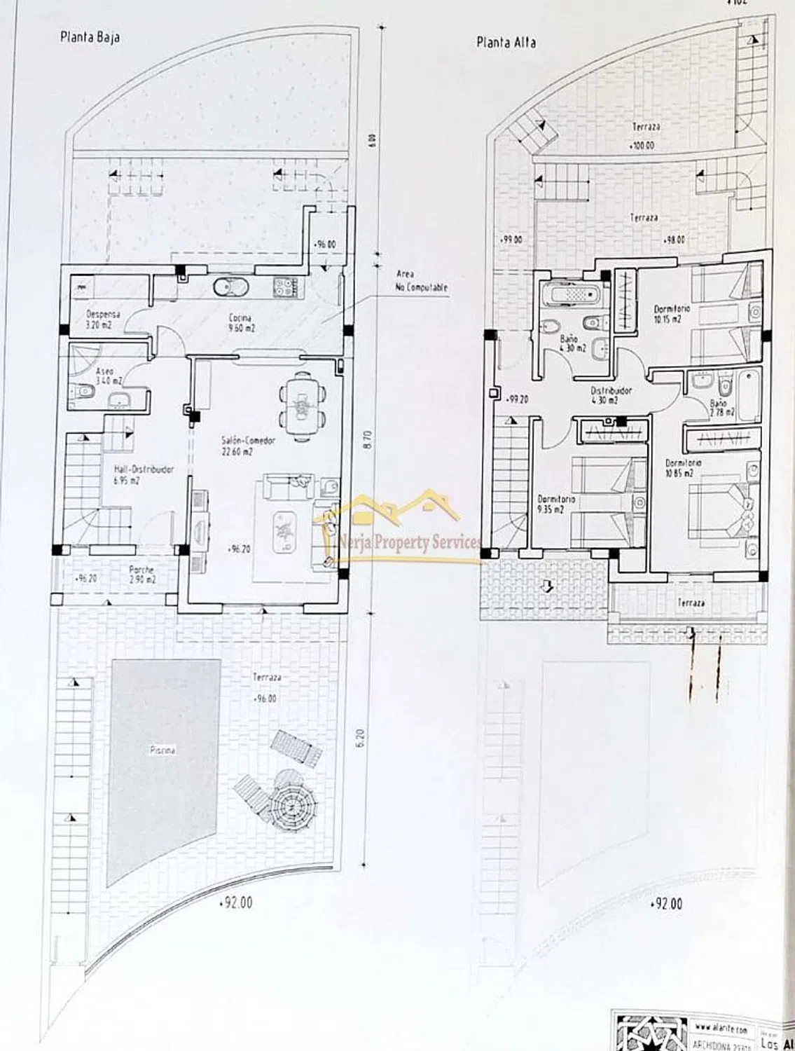
Libera el potencial de la casa de tus sueños con esta excepcional parcela urbanizable en venta en Nerja. Con los gastos de la calle ya liquidados y la parcela debidamente segregada con su propia escritura, esta parcela de 160 m2 ofrece un camino perfecto para hacer realidad su visión arquitectónica. Situada a solo 25 minutos a pie del icónico Balcón de Europa en Nerja, esta parcela goza de una ubicación privilegiada.   La parcela viene con gastos de calle pagados, por lo que es urbanizable y lista para el desarrollo. La parcela está cuidadosamente separada con su propia documentación legal, lo que garantiza un proceso fluido y sin complicaciones para su futura construcción. La parcela cuenta con un proyecto para una residencia de dos pisos completa con piscina privada y sótano. Esto sirve como un valioso punto de partida para imaginar las posibilidades que ofrece este lienzo para crear su hogar perfecto. Ya sea que aspire a construir un retiro, una casa familiar moderna o una propiedad de inversión, esta parcela proporciona el lienzo para su visión. Aproveche las bases que se han establecido para acelerar la realización de la residencia de sus sueños. No te pierdas la casa de tus sueños: ¡Actúe ahora! Aproveche la oportunidad de dar forma a su espacio vital ideal en una de las zonas más codiciadas de Nerja. No dejes escapar esta oportunidad, actúa ahora para transformar este lienzo en blanco en el hogar que siempre has imaginado. Póngase en contacto con nosotros hoy mismo para asegurar esta parcela urbanizable de primera calidad y embárquese en su viaje para vivir en Nerja.

Характеристики недвижимости

Complex information

  • Тип недвижимости
    Земля под застройку

Данные о недвижимости

  • Тип недвижимости
    Вторичка

Площади

  • Площадь участка
    160 m²

Base

Планы

Статистика рыночных цен на Terreno en Centro

Карта

Малага, Нерха, Центро, Centro Поехать в это место
Оставьте отзыв о Terreno en Centro
0
0 reviews
1
0% (0)
2
0% (0)
3
0% (0)
4
0% (0)
5
0% (0)
Nerja Property Services .
153 750 €
Свяжитесь с рекламодателем

Для получения дополнительной информации свяжитесь с платформой

REF: 244783

Отзывы о Terreno en Centro
Loading...

No reviews have been left for this object yet

Ближайшие объекты

Исследуйте близлежащие объекты, которые мы обнаружили неподалеку от этого местоположения.

Terreno en venta en El Peñoncillo

Малага, Торрокс, Эль Пеньонсилло
196 000 €

Parcela edificable en la zona de El Peñoncillo, en el URP-3 de Torrox. Esta parc...

0
0 отзывов

Terreno en venta en Urbanización Balcones del Peñoncillo s/n

Малага, Торрокс, Эль Пеньонсилло, Urbanización Balcones del Peñoncillo s/n
490 000 €

OPORTUNIDAD. ¡Oportunidad única de inversión! Se vende suelo urbanizable en la p...

0
0 отзывов

Terreno en calle Nuestra Señora de las Nieves, 80 Parc 80-82

Малага, Торрокс, Торрох Публо, Calle Nuestra Señora de las Nieves, 80 PARC 80-82
460 000 €

PARCELA URBANA o SOLAR de 693 m2 de superficie en TORROX con una edificabilidad...

0
0 отзывов

Terreno en Torrox Pueblo

Малага, Торрокс, Торрох Публо, Torrox Pueblo
1 150 000 €

A promotores constructores: venta suelo bruto en la ciudad turística de TORROX...

0
0 отзывов

Terreno en calle Carolina

Малага, Нерха, Чапариль - Торресилья - Пунта Лара, Calle Carolina
1 490 000 €

NO COBRAMOS COMISIÓN DE INTERMEDIACIÓN AL COMPRADOR ¡Una oportunidad privilegiad...

0
0 отзывов

Terreno en calle Elena Martin Vivaldi

Малага, Торрокс, Эль Пеньонсилло, Calle Elena Martin Vivaldi
595 000 €

Solar para 3 villas en Torrox Amplia parcela de 1500m2 en una de las mejores ubi...

0
0 отзывов

Terreno en el pino s/n

Малага, Торрокс, Торрох Публо, El pino s/n
68 000 €

Suelo urbanizable situado en la Urbanización Cerro Lago, en la localidad de Torr...

0
0 отзывов

Terreno en Diseminado Pago Carlaja, 1715

Малага, Торрокс, Эль Пеньонсилло, Diseminado Pago Carlaja, 1715
175 000 €

Suelo de uso residencial situado en la Urbanización Las Violetas, en el Peñoncil...

0
0 отзывов

Terreno en El Peñoncillo

Малага, Торрокс, Эль Пеньонсилло, El Peñoncillo
520 000 €

Se venden 5 parcelas urbanas ubicadas en una de las zonas con mayor proyección u...

0
0 отзывов
Звонок

Мы используем собственные и сторонние файлы cookie для анализа использования веб-сайта и показа вам рекламы, соответствующей вашим предпочтениям, на основе профиля, созданного по вашим привычкам просмотра (например, посещенные страницы). Подробнее. Вы принимаете файлы cookie?