New construction Casas Blancas de Vistabella in Orihuela

Alicante, Orihuela
from 389 000 €
2 819 € / m2
Leave review
2025 Year of delivery
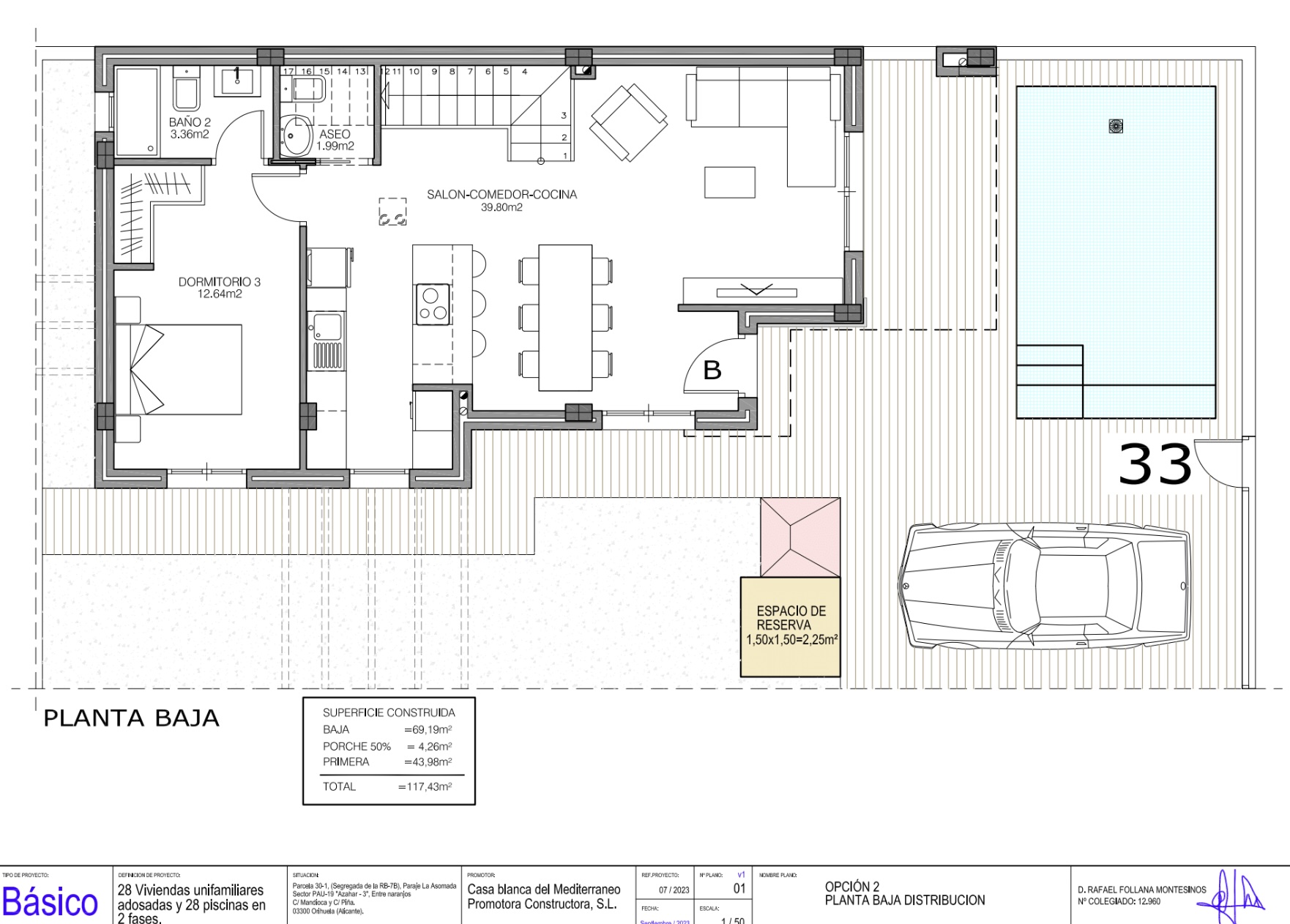
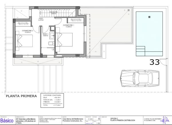
138 m² - 138 m² Property surfaces
3 Number of bedrooms
3 Bathrooms
### Real estate in

Discover the exquisite selection of newly constructed residences in Complex. This esteemed development comprises 16 villas situated in the picturesque surroundings of Vistabella Golf. Each villa is meticulously crafted on expansive plots starting from 174 m², featuring landscaped gardens, a private swimming pool, and convenient parking.

These stunning residences offer 3 spacious bedrooms and 3 bathrooms, complemented by an extensive living room with an open-concept kitchen. The design integrates modern amenities, including solar panels on the roof, with an option to add a terrace to soak in the abundant Spanish sunlight throughout the day. Each villa is completed with fully finished bathrooms equipped with underfloor heating, a fully fitted kitchen with high-end appliances, built-in wardrobes, and electric blinds.

### Advantages of a new building

Owning a property here not only means enjoying a contemporary living environment but also the peace of mind that comes with low-maintenance, eco-friendly living solutions. The inclusion of solar panels and underfloor heating emphasizes the commitment to sustainable and comfortable living.

### Life in the city Orihuela

Residing at Complex puts you at the heart of a vibrant lifestyle in Orihuela. The development is strategically situated with essential amenities such as a supermarket, bars, and restaurants easily accessible. For golfing enthusiasts, the 18-hole course at Vistabella Golf offers a serene escape in the midst of nature. The bustling town of Orihuela is just a stone's throw away, and the charming village of San Miguel de Salinas is a mere 10-minute drive. Additionally, the pristine beaches of Torrevieja are only 15 minutes away, offering the perfect coastal retreat.

Featured promotions in Spain

10 units

Nature Views 2

Alicante, Torrevieja, Los Balcones - The Heights of Eden, Denia s/n
310 000 € - 379 000 €
1 units

Hotel en venta en Benidorm centro

Alicante, Benidorm, Poniente Beach
2 250 000 € - 2 250 000 €
32 units

Residencial Los Balcones De Calpe

Alicante, Calpe, Calpe Town, Avenida de Madrid, 1
299 000 € - 892 125 €
7 units

Nature Views

Alicante, Torrevieja, Lago Jardín II, Avenida Denia s/n
305 000 € - 330 000 €
5 units

ALONIS VILLAS

Alicante, La Villajoyosa / Vila Joiosa, Torres Beach, Partida Torres s/n
675 000 € - 775 000 €
2 units

Residencial Royal Beach

Alicante, Guardamar del Segura, town, Miguel Hernández 102
339 500 € - 345 500 €
8 units

Royal Star

Alicante, Guardamar del Segura
224 500 € - 264 500 €

Properties in this complex

The information provided about prices, specifications, and details of this promotion is subject to possible variations and changes depending on the source. Therefore, it does not have commercial value in itself but is purely informative and indicative. This website does not market this project or property.

Name
Bedrooms
Bathrooms
Surface square
Floor
Category
Price
35 3 3 138 m² Villas 389 000 € Visit Planos
36 3 3 138 m² Villas 395 000 € Visit Planos
25 3 3 138 m² Villas Reserved
22 3 3 138 m² Villas 415 000 € Visit Planos
37 3 3 138 m² Villas 439 000 € Visit
23 3 3 138 m² Villas 465 000 € Visit Planos
This information has been obtained from public sources and may not be up to date. It does not represent a link with the developer.

Property characteristics

Complex information

  • Number of units
    5
  • Price range
    389 000 € - 465 000 €
  • Number of bedrooms
    3
  • Property surfaces
    138 m² - 138 m²
  • Types of properties
    Villas

Project information / Work status

  • Delivery year
    2025
  • Delivery date
    II Semester
  • Building State
    Under construction
  • Promotion format
    Free

Quality Report

  • Heating
    Radiant Floor

Property data

  • Type of kitchen
    Open kitchen
  • Kitchen equipment
    Equipped
  • Bedrooms
    3
  • Bathrooms
    3
  • Medium square meters
    138 m²
  • Property type
    New construction

Surfaces

  • Land Area
    174 m²

Base

  • Total properties
    16
  • Total floors
    2

Facilities

Housing Amenities:

Built-in wardrobes
Terrace

In building:

Swimming Pool
Solarium
Garden
Private parking

Type of kitchen:

Kitchen with Island

Documents: Casas Blancas de Vistabella

Plans

Video: Casas Blancas de Vistabella

Market price statistics for Casas Blancas de Vistabella

419 667 € (3 041 €/m2)
Average price in complex
419 667 € (3 041 €/m2)
Average price of 3-bedroom
230 973 € (2 637 €/m2)
Average price of primary Apartments in city Orihuela

Map

Alicante, Orihuela Going to this location!
Report about quality

ESTRUCTURA, CERRAMIENTOS Y FACHADA

  • Estructura reforzada de hormigón armado conforme a la normativa vigente, con aplicación de medidas antisísmicas.
  • Cerramientos exteriores con doble tabique, cámara de aire y aislamiento termoacústico de alta densidad, asegurando máximo confort, eficiencia energética y aislamiento.
  • Aislamiento termoacústico de alta densidad aplicado en tabiquería interior y exterior, suelos, pilares y forjados perimetrales.
  • Fachada acabada en mortero monocapa blanco con pintura plástica y detalles en gres porcelánico de acabado natural.

ACABADOS INTERIORES

  • Pavimento porcelánico de alta calidad en toda la vivienda.
  • Pavimento antideslizante en porches y terrazas.
  • Pintura lisa en toda la vivienda.
  • Revestimientos decorativos en salón con elementos cerámicos.

CARPINTERÍA EXTERIOR E INTERIOR

  • Carpintería exterior en PVC abatible y oscilobatiente.
  • Doble acristalamiento ClimaGuard® Premium, que mejora el confort térmico tanto en invierno como en verano.
  • Puerta de acceso a la vivienda acorazada con cerradura de seguridad y mirilla panorámica.
  • Puertas interiores lacadas en blanco.
  • Armarios empotrados lacados y forrados interiormente en todos los dormitorios. Dormitorio principal con cajoneras.

COCINA EQUIPADA

  • Muebles altos y bajos.
  • Encimera de compacto de cuarzo.
  • Fregadero bajo encimera de acero inoxidable.
  • Campana decorativa.
  • Instalación de tomas para horno, lavavajillas, lavadora y secadora.

INSTALACIONES SANITARIAS

  • Producción de agua caliente sanitaria mediante placa solar con termosifón de 160 L y termo eléctrico de apoyo de 50 L instalado en cocina.
  • Sanitarios con cisterna empotrada en todos los baños.
  • Muebles de baño con espejo, iluminación y grifería.
  • Columna de hidromasaje en baño principal.
  • Llaves de corte de agua en todas las zonas húmedas.

INSTALACIONES ELÉCTRICAS Y DOMÓTICA

  • Instalación de TV, teléfono e internet en salón y dormitorios.
  • Vídeo-portero electrónico.
  • Instalación de 3 paneles fotovoltaicos en cubierta para producción eléctrica.
  • Sistema eléctrico de alta seguridad adaptable.

CONFORT Y CLIMATIZACIÓN

  • Persianas automatizadas en salón, cocina y dormitorios.
  • Suelo radiante en todos los baños.
  • Preinstalación de aire acondicionado por conductos, con salidas en todas las estancias.

EXTERIORES

  • Parcela privada cerrada con muro de bloques y vallado metálico.
  • Jardín acabado estilo mediterráneo con césped artificial, grava ornamental, árbol frutal y palmera.
  • Piscina privada incluida (5 x 3 m o 6 x 3 m aprox. en parcelas de esquina), con revestimiento en mosaico vítreo, sistema de depuración, iluminación, cloración y ducha exterior.

SOLÁRIUM (OPCIONAL)

  • Cubierta impermeabilizada y aislada térmica y acústicamente.
  • Pavimento antideslizante y césped artificial.
  • Barandilla perimetral de vidrio.
  • Punto de luz, agua y zona para instalaciones.

GARANTÍAS

  • Todas las viviendas se entregan con Libro del Edificio, Certificado de Eficiencia Energética Categoría A y Seguro Decenal con cobertura durante 10 años para daños estructurales o en cimentación.


Leave a review about Casas Blancas de Vistabella
0
0 reviews
1
0% (0)
2
0% (0)
3
0% (0)
4
0% (0)
5
0% (0)
SUNA_Comercializadora
389 000 €
from 2 819 € / m2
Contact advertiser

For more information contact the platform

REF: 24992

Reviews about Casas Blancas de Vistabella
Loading...

No reviews have been left for this object yet

Nearest properties

Explore nearby properties we've discovered in close proximity to this location

3 units

Newly constructed villas available in the esteemed residential area of La Finca Golf, located in Algorfa.

Alicante, Algorfa
195 000 € - 215 000 €

Real Estate in Villas en Algorfa, La Finca Golf, Residencial In the heart of Al...

0
0 reviews
1 units

Newly constructed resort in San Miguel de Salinas.

Alicante, San Miguel de Salinas
279 900 € - 279 900 €

Real estate in Paradise Resort Discover the spectacular Complex offering 165 res...

0
0 reviews

New residential complex, Saoco II, located in San Miguel de Salinas.

Alicante, San Miguel de Salinas
-

Real estate in Saoco II This residential complex comprises 100 terraced homes de...

0
0 reviews

Introducing newly constructed villas in the picturesque area of Orihuela, inspired by the charm of Formentera.

Alicante, Orihuela, Desamparados-Hurchillo-Torremendo, URB. VISTABELLA GOLF s/n
-

Real Estate in Villas Formentera Experience a stunning villa just steps away fro...

0
0 reviews

Obra nueva Capri VIII en Orihuela

Alicante, Orihuela, Desamparados-Hurchillo-Torremendo, Urb. Vistabella Golf, 447
-

Disfruta de tu apartamento a pocos metros del Campo de Golf Vistabella.Apartamen...

0
0 reviews
5 units

New Development: Arena Beach III – La Finca in Algorfa.

Alicante, Algorfa
465 000 € - 965 000 €

Real Estate in Arena Beach III – La Finca Explore an exclusive selection of det...

0
0 reviews
6 units

New residential development located in Orihuela.

Alicante, Orihuela, Desamparados-Hurchillo-Torremendo, Calle Melocotonero s/n
349 000 € - 363 900 €

Real estate in Residencial Malé Discover an exceptional villa featuring 3 bedro...

0
0 reviews
9 units

Introducing the newly constructed residential developments located in San Miguel de Salinas: Los Alcores Villages I and Los Alcores Villages II.

Alicante, San Miguel de Salinas
153 000 € - 228 000 €

Real Estate in Los Alcores Villages I y Los Alcores Villages II Discover the di...

0
0 reviews
1 units

Brand new apartments available in the vibrant area of San Miguel de Salinas, offering contemporary living spaces designed for comfort and style.

Alicante, San Miguel de Salinas
159 900 € - 159 900 €

Real estate in Apartamentos San Miguel de Salinas This top-floor bungalow is sit...

0
0 reviews
Call

We use our own and third-party cookies to analyze website usage and show you advertisements related to your preferences based on a profile created from your browsing habits (e.g., pages visited). More information. Do you accept cookies?