New construction Pinasses 26 in Castellar del Vallès

Barcelona, Castellar del Vallès, Sant Feliu del Racó, Calle Pinasses, 26
from 349 000 €
2 458 € / m2
Leave review
142 m² - 142 m² Property surfaces
3 Number of bedrooms
3 Bathrooms

Real estate in Pinasses 26

Located in the scenic suburbs of Barcelona, in a charming area of Castellar del Vallès, this newly constructed semi-detached home offers impeccable living space. Nestled at a sought-after address, it promises a modern lifestyle in a serene environment.

Advantages of a new building

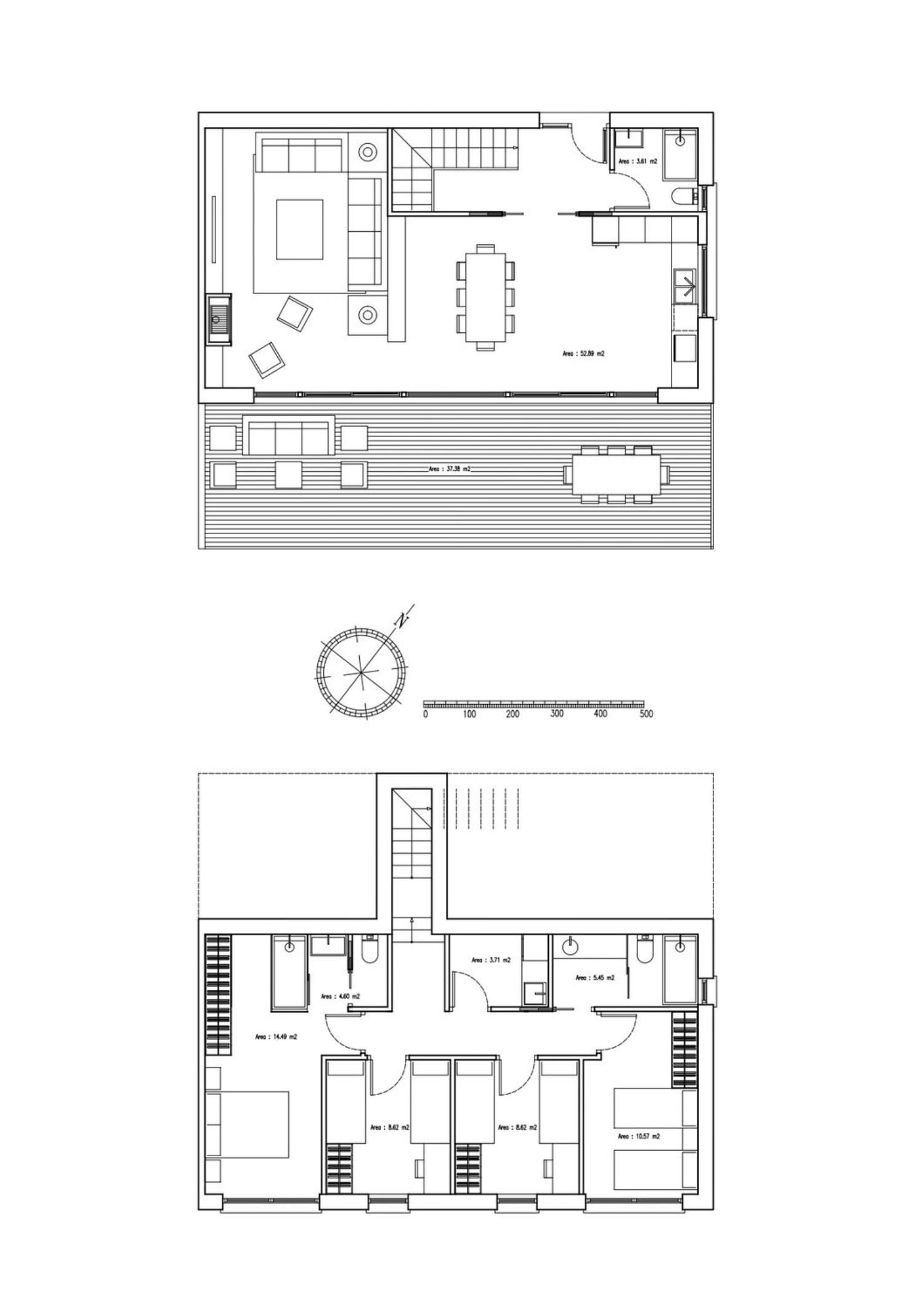
This beautifully designed property spans across two floors. The main entrance opens into the first floor where you will find a bright and welcoming area comprising a living room elegantly connected to the kitchen, alongside a bathroom and a foyer, designating this level as the day area. Accessed by stairs from the foyer, the lower floor provides a tranquil retreat with two bedrooms and a bathroom, in addition to a luxurious suite complete with an ensuite bathroom and a dressing room. This floor includes a convenient laundry area, highlighting the functionality and comfort of the home.

Life in the city Castellar del Vallès

Life in this delightful city offers an exceptional mix of modern comforts and traditional charm. With a surface area of 142 m² and a price point of 349,000 €, this property serves as an ideal family home, providing ample space with three bedrooms. The peaceful neighborhood and its proximity to the vibrant city of Barcelona enhance the allure of this residence, making it a perfect blend of urban convenience and suburban tranquility.

Featured promotions in Spain

10 units

Nature Views 2

Alicante, Torrevieja, Los Balcones - The Heights of Eden, Denia s/n
310 000 € - 379 000 €
1 units

Hotel en venta en Benidorm centro

Alicante, Benidorm, Poniente Beach
2 250 000 € - 2 250 000 €
28 units

Residencial Los Balcones De Calpe

Alicante, Calpe, Calpe Town, Avenida de Madrid, 1
299 000 € - 892 125 €
4 units

Nature Views

Alicante, Torrevieja, Lago Jardín II, Avenida Denia s/n
309 000 € - 330 000 €
5 units

ALONIS VILLAS

Alicante, La Villajoyosa / Vila Joiosa, Torres Beach, Partida Torres s/n
675 000 € - 775 000 €
1 units

Residencial Royal Beach

Alicante, Guardamar del Segura, town, Miguel Hernández 102
349 500 € - 349 500 €
7 units

Royal Star

Alicante, Guardamar del Segura
229 500 € - 269 500 €

Properties in this complex

The information provided about prices, specifications, and details of this promotion is subject to possible variations and changes depending on the source. Therefore, it does not have commercial value in itself but is purely informative and indicative. This website does not market this project or property.

Name
Bedrooms
Bathrooms
Surface square
Floor
Category
Price
3 3 142 m² 2 Terraced houses 349 000 € Visit
3 3 142 m² 349 000 € Visit
This information has been obtained from public sources and may not be up to date. It does not represent a link with the developer.

Property characteristics

Complex information

  • Number of units
    2
  • Price range
    349 000 € - 349 000 €
  • Number of bedrooms
    3
  • Property surfaces
    142 m² - 142 m²
  • Types of properties
    Terraced houses

Project information / Work status

  • Promotion format
    Free

Property data

  • Medium square meters
    142 m²
  • Property type
    New construction

Base

Energy certification

  • Energy consumption
    No indicado

Facilities

In building:

Bar

State:

New construction

Market price statistics for Pinasses 26

349 000 € (2 457 €/m2)
Average price in complex
349 000 € (2 458 €/m2)
Average price of 3-bedroom
389 333 € (1 910 €/m2)
Average price of primary Houses in city Castellar del Vallès
303 700 € (3 502 €/m2)
Average price of primary Apartments in city Castellar del Vallès

Map

Barcelona, Castellar del Vallès, Sant Feliu del Racó, Calle Pinasses, 26 Going to this location!
Leave a review about Pinasses 26
0
0 reviews
1
0% (0)
2
0% (0)
3
0% (0)
4
0% (0)
5
0% (0)
cero homes 2025
349 000 €
from 2 458 € / m2
Contact advertiser

For more information contact the platform

REF: 18833

Reviews about Pinasses 26
Loading...

No reviews have been left for this object yet

Nearest properties

Explore nearby properties we've discovered in close proximity to this location

1 units

New construction project by renowned architect Josep Valles located in the picturesque town of Matadepera.

Barcelona, Matadepera
675 000 € - 675 000 €

Real estate in Josep Valles Explore this exciting new real estate opportunity in...

0
0 reviews

New development on Avenida Sant Esteve in Castellar del Vallès.

Barcelona, Castellar del Vallès, Center, Avenida Sant Esteve, 60
-

Real Estate in Avenida Sant Esteve Discover a delightful new development in the...

0
0 reviews
16 units

New construction residential project in Castellar del Vallès.

Barcelona, Castellar del Vallès, Center, Ronda de Tolosa s/n
261 500 € - 400 000 €

Experience the charm of a peaceful and family-oriented environment with the exce...

0
0 reviews
1 units

New development located at Pompeu Fabra 65, featuring the Be Sweet warehouse outlet in Terrassa.

Barcelona, Terrassa, Saint Peter North - Ègara, Calle Pompeu Fabra, 65
320 000 € - 320 000 €

Real Estate in Pompeu Fabra 65, Outlet Be Sweet This brand-new property, develop...

0
0 reviews

New development project located on Font de la Tartana street, number 73, in the picturesque area of Matadepera.

Barcelona, Matadepera
-

Real Estate in Font de la Tartana 73 Discover an exceptional opportunity with th...

0
0 reviews
1 units

New construction located at Pl. Mestre Gelonch in Castellar del Vallès.

Barcelona, Castellar del Vallès, Center, Plaza Mestre Gelonch s/n
315 000 € - 315 000 €

Real estate in Pl. Mestre Gelonch Discover a meticulously designed residential...

0
0 reviews
5 units

New construction residential homes in Terrassa.

Barcelona, Terrassa, Sports Zone - Sant Pere, Carrer Jacint Badiella, 6
515 000 € - 529 000 €

Real estate in Terrassa Villages Discover a new development of exquisite semi-d...

0
0 reviews

Introducing a new housing project in the city of Terrassa, offering a modern and nature-integrated living experience.

Barcelona, Terrassa, La Grípia - Sant Llorenç, Carrer del Pedraforca s/n
-

Real estate in Illa Natura Discover a modern, newly completed residential projec...

0
0 reviews
5 units

Introducing the new Célere Moixeró development in Terrassa.

Barcelona, Terrassa, La Grípia - Sant Llorenç, Calle del Moixeró s/n
178 200 € - 365 100 €

Real Estate in Célere Moixeró Discover a remarkable collection of 54 newly const...

0
0 reviews

We use our own and third-party cookies to analyze website usage and show you advertisements related to your preferences based on a profile created from your browsing habits (e.g., pages visited). More information. Do you accept cookies?