España Urbano España Urbano A Coruña Urbano Ames Terreno en Aldea Eirapedriña

Terreno en Aldea Eirapedriña

A Coruña, Ames, Bugallido, Aldea Eirapedriña
50 000 €
Dejar reseña
Urbano Tipo de propiedad
676 m² Superficie del terreno
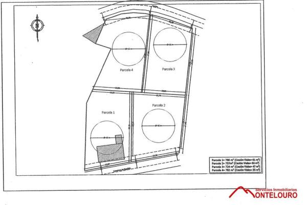
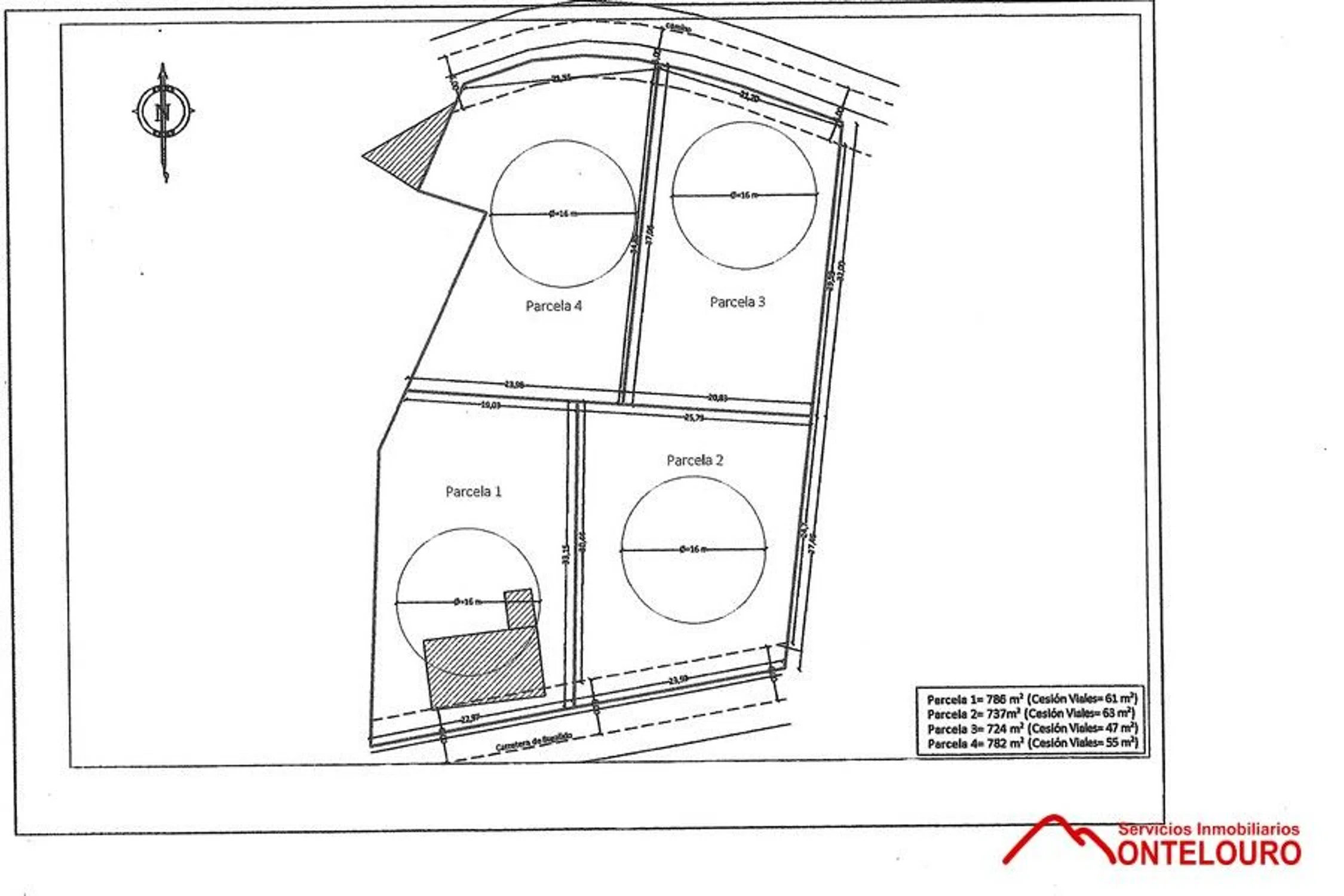
Solar urbano ubicado en el lugar de Eirapedriña, perteneciente al concello de Ames (A Coruña). Parcela de 676m2 ideal para vivienda unifamiliar. Cuenta con poca pendiente y terreno llano, lo que disminuye los costes de construcción. Con todos los servicios a pie de finca, se sitúa en una zona tranquila, a escasos minutos y perfectamente conectada a las localidades de Bertamiráns y Santiago de Compostela.

Características de la propiedad

Complex information

  • Tipo de propiedad
    Urbano

Datos de la propiedad

  • Tipo de la propiedad
    Segunda mano

Superficies

  • Superficie del terreno
    676 m²

Base

  • Suelo urbano
    Consolidado (Solar)

Planos

Estadísticas de precios del mercado para Terreno en Aldea Eirapedriña

Mapa

A Coruña, Ames, Bugallido, Aldea Eirapedriña Ir a la propiedad
Deja una opinión sobre Terreno en Aldea Eirapedriña
0
0 reseñas
1
0% (0)
2
0% (0)
3
0% (0)
4
0% (0)
5
0% (0)
Servicios Inmobiliarios Montelouro
50 000 €
Contactar con la plataforma

para obtener más información contacta con el catálogo

REF: 346459

Opiniones sobre Terreno en Aldea Eirapedriña
Loading...

No reviews have been left for this object yet

Propiedades más cercanas

Explora propiedades cercanas que hemos descubierto en las proximidades de esta ubicación.

Terreno en Campus sur - Santa Marta

A Coruña, Santiago de Compostela, Campus sur - Santa Marta, Campus sur - Santa Marta
27 000 €

Se vende este terreno de suelo urbano de 505m2 en Vilaño, a 2km de A Laracha, cu...

0
0 opiniones

Terreno en Lugar Brans de Abaixo, km 1

A Coruña, Brion
46 000 €

Finca urbana en Brión, en Brans de Abaixo. Moi luminosa, 925 metros cadrados. Mo...

0
0 opiniones

Terreno en Aldea Casanova s/n CasanovaAmes

A Coruña, Ames, O Milladoiro, Aldea Casanova s/n CasanovaAmes
86 000 €

Precioso terreno urbanizable en Raíces. Situado en una zona muy tranquila con ca...

0
0 opiniones

Terreno en Aldea Lombao

A Coruña, Ames, Área de Ames, Aldea Lombao
90 000 €

Se vende terreno edificable en una zona residencial y tranquila de la localidad...

0
0 opiniones

Terreno en Pedrido, 14

A Coruña, Santiago de Compostela, Campus sur - Santa Marta, Pedrido, 14
69 000 €

FINCA URBANA EN PEDRIDO - ROXOS Finca urbana en Pedrido a escasos minutos del ce...

0
0 opiniones

Terreno en avenida de Santa Minia s/n

A Coruña, Brion
303 000 €

Solar en Brión (A Coruña). Cuenta con una superficie de 2.912 m², dispone de pro...

0
0 opiniones

Terreno en calle Magdalena

A Coruña, Ames, O Milladoiro, Calle Magdalena
390 000 €

Excelente suelo urbano en Milladoiro, Se trata de una parcela con excelentes vis...

0
0 opiniones

Terreno en Aldea Cantalarrana, 11

A Coruña, Ames, Bertamirans, Aldea Cantalarrana, 11
120 000 €

Finca de 965 m2 con edificabilidad para una vivienda, situada en la zona de Cant...

0
0 opiniones

Terreno en Aldea Brionde Abaixo

A Coruña, Brion, Aldea Brionde Abaixo
43 000 €

Disponemos de dos parcelas urbanas en venta, cada una con una superficie de 1.09...

0
0 opiniones
Llamada

Utilizamos cookies propias y de terceros para analizar el uso del sitio web y mostrarte publicidad relacionada con tus preferencias sobre la base de un perfil elaborado a partir de tus hábitos de navegación (por ejemplo, páginas visitadas). Más información. ¿Aceptas las cookies?