España Urbano España Urbano A Coruña Urbano Cabanas Terreno en camino Cadivas, 13

Terreno en camino Cadivas, 13

A Coruña, Cabanas, Camino Cadivas, 13
85 000 €
Dejar reseña
Urbano Tipo de propiedad
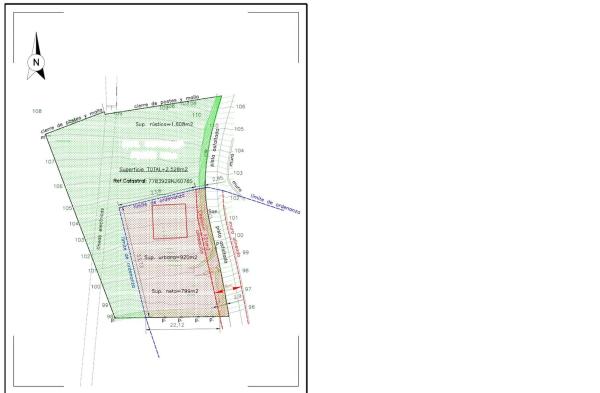
2 528 m² Superficie del terreno
2 Plantas edificables
920 Superficie edificable
Fantástico terreno con vistas en Cabanas. Vistas amplias y despejadas, de la desembocadura del rio Eume a la ria de Betanzos, se trata de una finca de 2600 metros, orientación sur y con calificación urbana consolidada ( 920 m2), con proyecto de obra y con licencia aprobada, susceptibles a ser modificadas. Ubicado en un entorno privilegiado, que conlleva muy buena comunicación con los demás municipios, como también mucha cercanía a servicios y comercios de la zona, fácil acceso a la AP-9, a 5 min de la playa de la Magdalena de Cabanas, y a la reserva natural fragas do Eume. Negociable.

Características de la propiedad

Complex information

  • Tipo de propiedad
    Urbano

Datos de la propiedad

  • Tipo de la propiedad
    Segunda mano

Superficies

  • Superficie del terreno
    2 528 m²

Base

  • Parcela minima venta
    2 528 m²
  • Plantas edificables
    2
  • Superficie edificable
    920

Planos

Estadísticas de precios del mercado para Terreno en camino Cadivas, 13

Mapa

A Coruña, Cabanas, Camino Cadivas, 13 Ir a la propiedad
Deja una opinión sobre Terreno en camino Cadivas, 13
0
0 reseñas
1
0% (0)
2
0% (0)
3
0% (0)
4
0% (0)
5
0% (0)
Nuria Salvador
85 000 €
Contactar con la plataforma

para obtener más información contacta con el catálogo

REF: 345414

Opiniones sobre Terreno en camino Cadivas, 13
Loading...

No reviews have been left for this object yet

Propiedades más cercanas

Explora propiedades cercanas que hemos descubierto en las proximidades de esta ubicación.

Terreno en carretera Barreiro Murgas, 17

A Coruña, Cabanas
75 000 €

Terreno de 808m2 en el ayuntamiento de Cabanas. Perfecto para vivienda unifamili...

0
0 opiniones

Terreno en Andel

A Coruña, Miño
65 000 €

Parcela con vistas a 2km de la playa de Perbes, CON LICENCIA Y PROYECTO, incluid...

0
0 opiniones

Terreno en Fene

A Coruña, Fene, Fene
100 000 €

O Castelo inmobiliaria vende terreno, en exclusiva, en Fene. A 100 metros de la...

0
0 opiniones

Terreno en camino Campaíña, 153

A Coruña, Pontedeume, Camino Campaíña, 153
76 000 €

SUELO URBANO en A CAMPAÍÑA - CAMPOLONGO (Parroquia de Andrade, Concello de Ponte...

0
0 opiniones

Terreno en camino Cabanas, 13

A Coruña, Fene, Camino Cabanas, 13
50 000 €

Ref. 256. - Se trata de dos fincas colindantes urbanas, una de ellas con una est...

0
0 opiniones

Terreno en calle Monteagudo

A Coruña, Miño, Calle Monteagudo
55 000 €

Parcela urbana y edificable en la zona baja de la urbanización Costa Miño (a 1,2...

0
0 opiniones

Terreno en N-651, 64

A Coruña, Fene, N-651, 64
45 000 €

URGENTE Y NEGOCIABLE A CORUÑA FENE FERROL OPORTUNIDAD 2025! NEGOCIABLE! ¡Increíb...

0
0 opiniones

Terreno en Ber

A Coruña, Pontedeume, Ber
100 000 €

100.000€ ¡Oportunidad única en la Playa de Ber, Pontedeume! Este terreno urbano...

0
0 opiniones

Terreno en camino do Sartego, 65 -61

A Coruña, Fene, Camino do Sartego, 65 -61
2 000 €

Suelo Urbano, ubicado en calle camino Sartego, en termino de Fene en La Coruña,...

0
0 opiniones
Llamada

Utilizamos cookies propias y de terceros para analizar el uso del sitio web y mostrarte publicidad relacionada con tus preferencias sobre la base de un perfil elaborado a partir de tus hábitos de navegación (por ejemplo, páginas visitadas). Más información. ¿Aceptas las cookies?