Edificio en calle Garbinet, 52

Alicante, Alicante / Alacant, Campoamor-Carolinas-Altozano, Calle Garbinet, 52
299 000 €
1 087 € / m2
Dejar reseña
Residencial Tipo de propiedad
275 m² m2 construidos
2 Total plantas
A reformar Estado inmueble
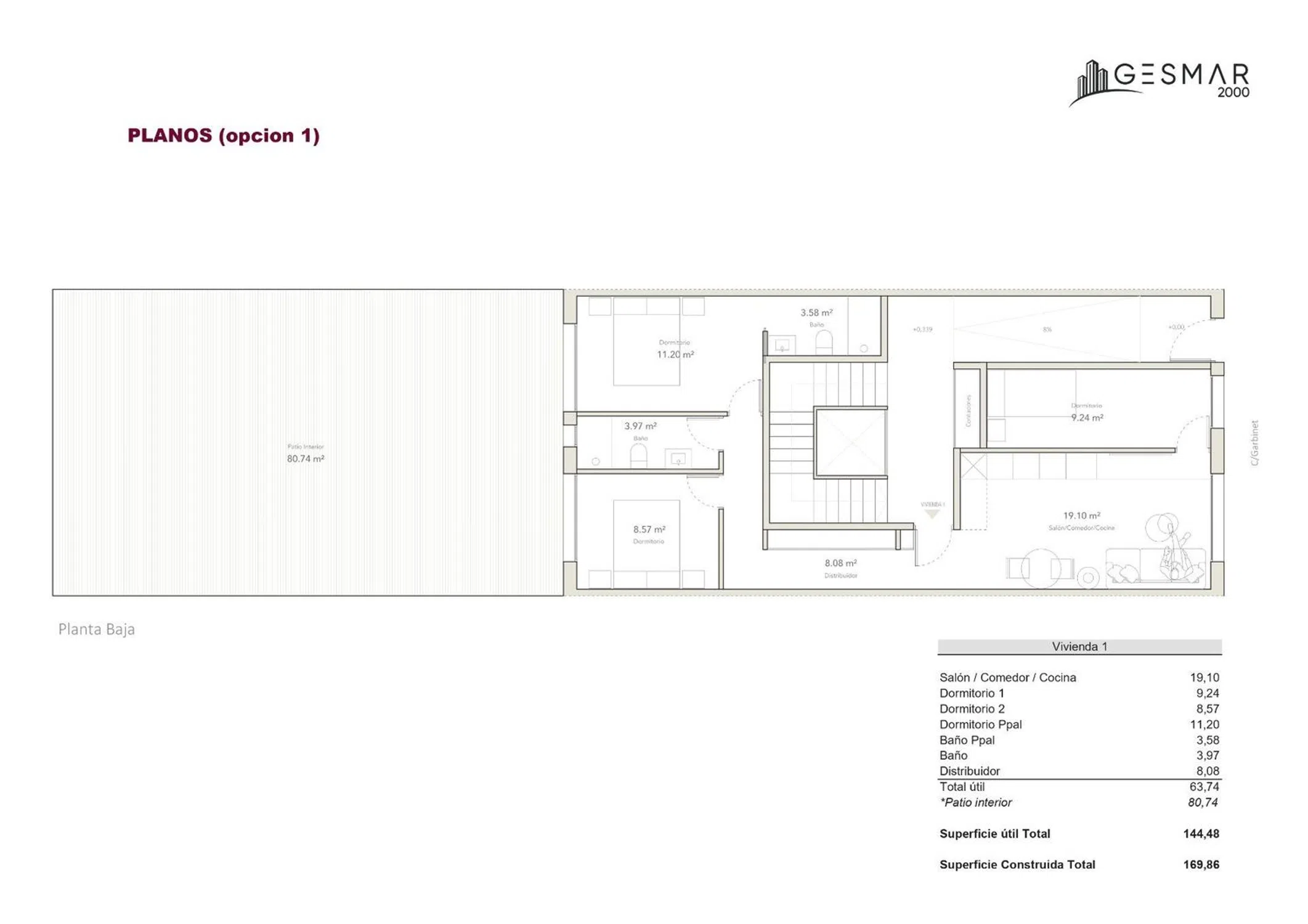
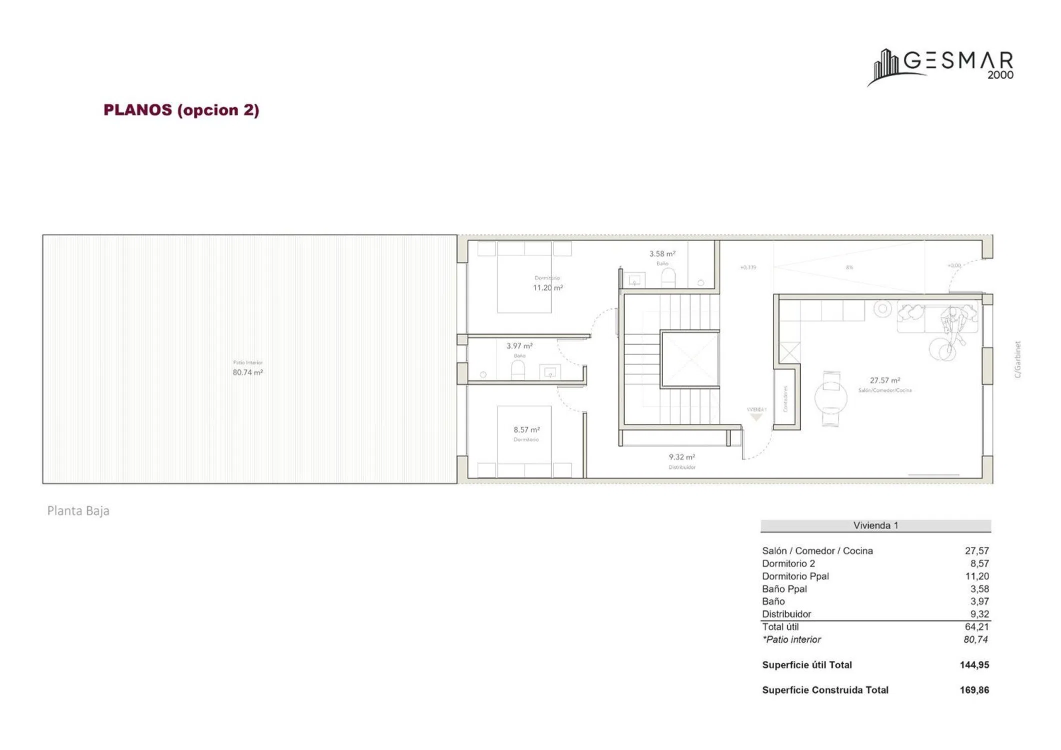
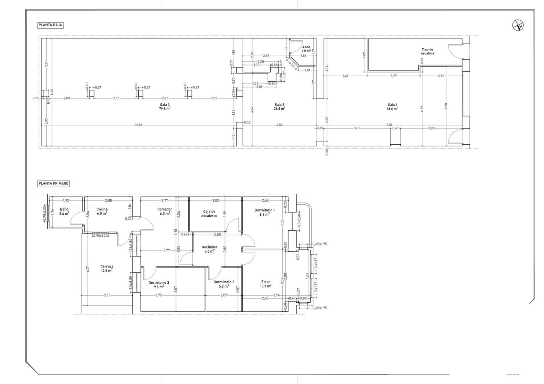
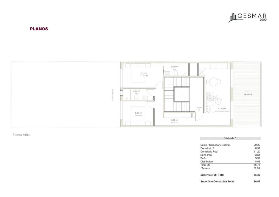
� EDIFICIO PARA REFORMAR O NUEVA PROMOCIÓN – 557 m² EDIFICABLES – SOLAR DE 192 m² – CALLE GARBINET, 52 – ALICANTE – 299.000 € � Precio de venta: 299.000 € � Dirección: Calle Garbinet, 52 – Alicante (03012) � Superficie del solar: 192 m² � Edificabilidad total permitida: 557 m² � Descripción del inmueble: Se vende edificio completo ubicado en el casco urbano de Alicante, en la zona de Garbinet. Actualmente compuesto por: � Local comercial en planta baja � Vivienda en primera planta El edificio se encuentra en estado de reforma integral o bien es ideal para derribo y desarrollo de una nueva promoción inmobiliaria. � El planeamiento urbanístico permite construir hasta 557 m², distribuidos en: Planta baja + 1ª planta + 2ª planta + 3ª planta + ático Potencial para 8 unidades residenciales � Sobre la zona: Calle Garbinet es una ubicación estratégica en Alicante, muy cercana al centro y perfectamente comunicada. Se trata de una zona residencial consolidada, con todos los servicios a pie de calle: supermercados, farmacias, colegios, centros de salud y transporte público. A tan solo unos minutos caminando del Mercado Central, el auditorio ADDA y zonas comerciales y de ocio. Ideal para desarrollar viviendas orientadas tanto a comprador final como para inversión en alquiler. Ideal para: Promotores inmobiliarios Constructoras Inversores con visión a medio plazo � Honorarios de agencia: 4,00% + IVA, no incluidos en el precio (a cargo del comprador) Aviso legal: Este anuncio puede contener errores. La información se muestra a título informativo, no comprometiendo contractualmente a la inmobiliaria. Tanto los datos, como las imágenes y planos pueden estar sujetos a cambios, por lo que le invitamos a que, si precisa una información más exacta y detallada, comprobar datos, así como situación jurídica de los inmuebles, contacte con nosotros y le atenderemos a la mayor brevedad posible. **Honorarios de inmobiliaria, gastos e impuestos no incluidos, consulte con nuestros asesores. **.

Características de la propiedad

Complex information

  • Tipo de propiedad
    Residencial

Información del proyecto / Estado de obra

  • Estado inmueble
    A reformar

Datos de la propiedad

  • m2 construidos
    275 m²
  • Tipo de la propiedad
    Segunda mano
  • Situación
    Sin inquilinos

Base

  • Total plantas
    2

Certificación energética

  • Consumo energético
    G
  • CEE Emisión
    G
  • Emisiones
    49 kg CO2/m² year
  • Consumo energético
    242 kwh/m² year

Instalaciones

Estado:

Para ser reformado

Estadísticas de precios del mercado para Edificio en calle Garbinet, 52

Mapa

Alicante, Alicante / Alacant, Campoamor-Carolinas-Altozano, Calle Garbinet, 52 Ir a la propiedad
Deja una opinión sobre Edificio en calle Garbinet, 52
0
0 reseñas
1
0% (0)
2
0% (0)
3
0% (0)
4
0% (0)
5
0% (0)
Gesmar 2000 Alicante
299 000 €
desde 1 087 € / m2
Contactar con la plataforma

para obtener más información contacta con el catálogo

REF: 403006

Opiniones sobre Edificio en calle Garbinet, 52
Loading...

No reviews have been left for this object yet

Propiedades más cercanas

Explora propiedades cercanas que hemos descubierto en las proximidades de esta ubicación.

Edificio residencial en venta en campoamor s/n

Alicante, Alicante / Alacant, Campoamor-Carolinas-Altozano, Campoamor s/n
380 000 €

¡Gran oportunidad de inversión en venta! Este espectacular edificio de tres plan...

0
0 opiniones

Edificio residencial

Alicante, Alicante / Alacant, Los Ángeles-Tómbola-San Nicolás, Barrio Los Ángeles
430 000 €

EL ANGEL INMOBILIARIA ofrece en venta Local comercial muy bien situad para cambi...

0
0 opiniones

Edificio en Barrio Ciudad de Asís - Font-Calent - El Bacarot

Alicante, Alicante / Alacant, Los Ángeles-Tómbola-San Nicolás, Barrio Ciudad de Asís - Font-Calent - El Bacarot
4 000 000 €

CAVALIER VENDE. Edificio de oficinas de 3200 m2 construidos con 3 plantas y 1 ga...

0
0 opiniones

Edificio en Barrio La Albufereta

Alicante, Alicante / Alacant, Playa de San Juan-El Cabo, Barrio La Albufereta
598 900 €

¡Atención Inversores! Oportunidad Única de Alta Rentabilidad en Alicante - Edifi...

0
0 opiniones

Edificio de uso mixto en calle Navas s/n

Alicante, Alicante / Alacant, Centro, Calle Navas s/n
780 000 €

! Edificio en venta en el centro Alicante! Se vende edificio completo de tres p...

0
0 opiniones

Edificio en Alcalde Felipe Mallol

Alicante, San Vicente del Raspeig, Alcalde Felipe Mallol, Alcalde Felipe Mallol
495 000 €

Edificio en excelente estado en el centro de San Vicente del Raspeig Se vende ma...

0
0 opiniones

Edificio en calle Jacinto Maltés

Alicante, Alicante / Alacant, Campoamor-Carolinas-Altozano, Calle Jacinto Maltés
850 000 €

COMPLEJO TURÍSTICO céntrico, a 20 minutos de la Playa del Postiguet, cercano a t...

0
0 opiniones

Edificio hotelero

Alicante, Alicante / Alacant, Playa de San Juan-El Cabo, Barrio Cabo de las Huertas
2 100 000 €

* OPORTUNIDAD INVERSORES * *** PRECIOSO HOSTAL A 700 METROS DEL MAR *** Se vende...

0
0 opiniones

Edificio en Barrio Raval Roig-Virgen del Socorro

Alicante, Alicante / Alacant, Plà del Bon Repòs-La Goteta-San Antón, Barrio Raval Roig-Virgen del Socorro
680 000 €

En una de las zonas más exclusivas de Alicante, se encuentra este espectacular e...

0
0 opiniones
Llamada

Utilizamos cookies propias y de terceros para analizar el uso del sitio web y mostrarte publicidad relacionada con tus preferencias sobre la base de un perfil elaborado a partir de tus hábitos de navegación (por ejemplo, páginas visitadas). Más información. ¿Aceptas las cookies?