Venta de piso en Calle Diputado Joaquín Fuster, Alicante / Alacant

Alicante, Alicante / Alacant, Virgen del Remedio - Juan XXIII, Calle Diputado Joaquín Fuster
Agotado
Dejar reseña
Apartamentos Tipo de propiedad
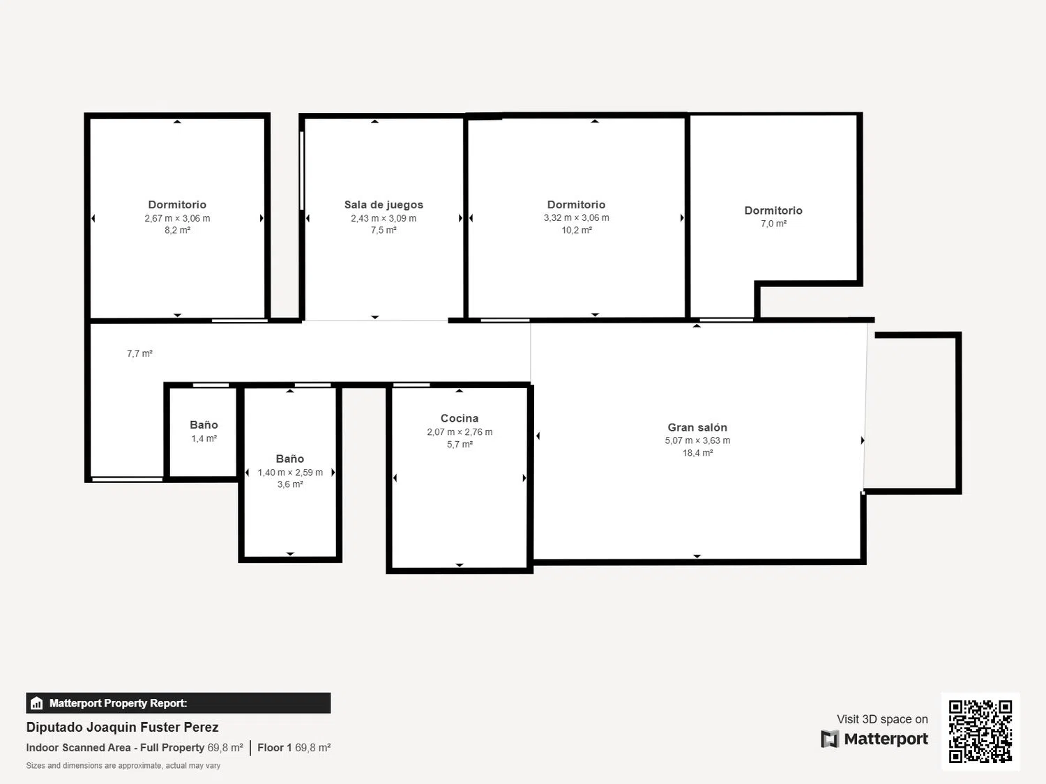
94 m² m2 construidos
2 Baños
4 Dormitorios
5 Planta
¡VIVIENDA EN EXCLUSIVA! SE TRATA DE UNA QUINTA PLANTA CON ASCENSOR DE 94 M2, COMPLETAMENTE REFORMADA, DE CUATRO HABITACIONES. LA FINCA ES DE 1974 MUY CUIDADA, ZONA A ESCASOS MINUTOS DEL CENTRO DE LA CIUDAD DE ALICANTE. Esta amplia y luminosa vivienda consta de 94 m2 distribuidos de la siguiente manera: - 3 habitaciones, 4 DE ORIGEN. Totalmente luminosas, acondicionadas, con gran amplitud y armarios empotrados. - 1 baño. Totalmente reformado y equipado, dispone de plato de ducha. - Cuarto de aseo. - Cocina. Equipada totalmente, donde poder disfrutar de cálidos momentos familiares. - Salón. Espectacular, de muy buen tamaño y luminoso, con salida a balcón. La vivienda posee aire acondicionado en el salón. La reforma que se hizo a la vivienda, se hizo íntegra y con los mejores materiales de construcción. La finca se encuentra en muy buen estado y es muy cuidada por la vecindad, además estando la vivienda rodeada de todos los servicios necesarios (farmacias, centros de salud de atención primaria, supermercados, transporte público, tanto autobús que conecta con todas las zonas de la ciudad de Alicante, bazares y tiendas multiprecio, carnicerías fruterías.. . ).

Características de la propiedad

Complex information

  • Tipo de propiedad
    Apartamentos

Datos de la propiedad

  • Planta
    5
  • Dormitorios
    4
  • Baños
    2
  • m2 construidos
    94 m²
  • Tipo de la propiedad
    Segunda mano

Instalaciones

En edificio:

Ascensor

Estado:

Para ser reformado
Buen estado

Planos

Estadísticas de precios del mercado para Piso en calle Diputado Joaquín Fuster

326 861 € (3 424 €/m2)
Precio promedio de propiedades primarias Apartamentos en la ciudad Alicante / Alacant
319 073 € (1 812 €/m2)
Precio promedio de propiedades secundarias Apartamentos en la ciudad Alicante / Alacant

Mapa

Alicante, Alicante / Alacant, Virgen del Remedio - Juan XXIII, Calle Diputado Joaquín Fuster Ir a la propiedad
Deja una opinión sobre Piso en calle Diputado Joaquín Fuster
0
0 reseñas
1
0% (0)
2
0% (0)
3
0% (0)
4
0% (0)
5
0% (0)
TECNOCASA LOS ÁNGELES- TÓMBOLA
Agotado
Contactar con la plataforma

para obtener más información contacta con el catálogo

REF: 169555

Opiniones sobre Piso en calle Diputado Joaquín Fuster
Loading...

No reviews have been left for this object yet

Propiedades más cercanas

Explora propiedades cercanas que hemos descubierto en las proximidades de esta ubicación.

Apartamentos en Venta en Calle Deportista Pitu Perramón, 3, Alicante / Alacant

Alicante, Alicante / Alacant, San Blas-Pau, Calle Deportista Pitu Perramón, 3
228 800 €

AEDAS Homes lanza una moderna y exclusiva promoción de 28 viviendas de 2 y 3 hab...

0
0 opiniones

Apartamentos en Venta en Calle Deportista Pitu Perramón, 3, Alicante / Alacant

Alicante, Alicante / Alacant, San Blas-Pau, Calle Deportista Pitu Perramón, 3
308 400 €

AEDAS Homes lanza una moderna y exclusiva promoción de 28 viviendas de 2 y 3 hab...

0
0 opiniones

Apartamentos en Venta en Calle Deportista Pitu Perramón, 3, Alicante / Alacant

Alicante, Alicante / Alacant, San Blas-Pau, Calle Deportista Pitu Perramón, 3
216 000 €

AEDAS Homes lanza una moderna y exclusiva promoción de 28 viviendas de 2 y 3 hab...

0
0 opiniones

Apartamentos en Venta en Calle Deportista Pitu Perramón, 3, Alicante / Alacant

Alicante, Alicante / Alacant, San Blas-Pau, Calle Deportista Pitu Perramón, 3
262 350 €

AEDAS Homes lanza una moderna y exclusiva promoción de 28 viviendas de 2 y 3 hab...

0
0 opiniones

Apartamentos en Venta en Calle Deportista Pitu Perramón, 3, Alicante / Alacant

Alicante, Alicante / Alacant, San Blas-Pau, Calle Deportista Pitu Perramón, 3
281 750 €

AEDAS Homes lanza una moderna y exclusiva promoción de 28 viviendas de 2 y 3 hab...

0
0 opiniones

Apartamentos en Venta en Calle Deportista Pitu Perramón, 3, Alicante / Alacant

Alicante, Alicante / Alacant, San Blas-Pau, Calle Deportista Pitu Perramón, 3
216 000 €

AEDAS Homes lanza una moderna y exclusiva promoción de 28 viviendas de 2 y 3 hab...

0
0 opiniones

Apartamentos en Venta en Calle Deportista Pitu Perramón, 3, Alicante / Alacant

Alicante, Alicante / Alacant, San Blas-Pau, Calle Deportista Pitu Perramón, 3
373 250 €

AEDAS Homes lanza una moderna y exclusiva promoción de 28 viviendas de 2 y 3 hab...

0
0 opiniones

Apartamentos en Venta en Calle Deportista Pitu Perramón, 3, Alicante / Alacant

Alicante, Alicante / Alacant, San Blas-Pau, Calle Deportista Pitu Perramón, 3
280 260 €

AEDAS Homes lanza una moderna y exclusiva promoción de 28 viviendas de 2 y 3 hab...

0
0 opiniones

Apartamentos en Venta en Calle Deportista Pitu Perramón, 3, Alicante / Alacant

Alicante, Alicante / Alacant, San Blas-Pau, Calle Deportista Pitu Perramón, 3
278 750 €

AEDAS Homes lanza una moderna y exclusiva promoción de 28 viviendas de 2 y 3 hab...

0
0 opiniones
Llamada

Utilizamos cookies propias y de terceros para analizar el uso del sitio web y mostrarte publicidad relacionada con tus preferencias sobre la base de un perfil elaborado a partir de tus hábitos de navegación (por ejemplo, páginas visitadas). Más información. ¿Aceptas las cookies?