Venta de piso en Calle General Elizaicin, Alicante / Alacant

Alicante, Alicante / Alacant, Campoamor-Carolinas-Altozano, Calle General Elizaicin
298 900 €
3 558 € / m2
Dejar reseña
Apartamentos Tipo de propiedad
2 Dormitorios
2026 Año de entrega
84 m² m2 construidos
74 m² m2 útiles
2 Baños
2 Planta
Buen estado Estado inmueble
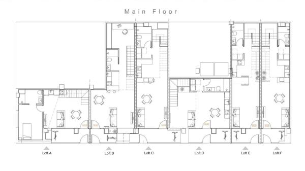
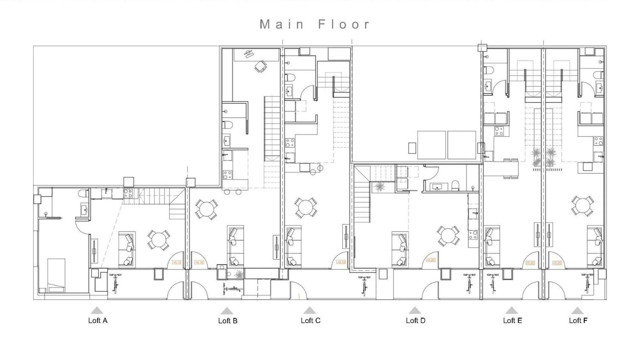
En el corazón de la vibrante vida urbana de Alicante, surge un nuevo y exclusivo proyecto residencial: modernos apartamentos dúplex que combinan la elegancia urbana con una sensación atemporal de espacio y luminosidad. Aquí, en el vibrante y popular Benalúa, se ofrece una vivienda que combina arquitectura, comodidad y el ritmo de la ciudad a tan solo unos pasos del vibrante paseo marítimo. El antiguo local comercial se ha transformado en seis elegantes lofts de dos plantas, cada uno con un diseño moderno y diáfano, e impresionantes techos de doble altura que permiten la entrada de luz natural desde la mañana hasta la noche. En la planta superior encontrará un dormitorio privado y un elegante baño: un oasis de privacidad que complementa el amplio espacio social de la planta baja. Con su propia entrada directamente desde la calle y una terraza privada, se obtiene una sensación de exclusividad y libertad, mientras que la casa está cuidadosamente diseñada con materiales de calidad y una paleta de colores armoniosa que crea un hogar acogedor y sofisticado. Como residente, también tendrá acceso a una piscina comunitaria, un lugar tranquilo donde podrá refrescarse en las tardes calurosas y disfrutar de los últimos rayos de sol. Todo esto enmarcado en una ubicación inmejorable: a solo unos cientos de metros de la principal calle comercial de Alicante, la estación de tren, hermosas plazas y el animado puerto con sus restaurantes, barcos y el sol brillando sobre el agua. Aquí vives cerca de todo lo que hace que Alicante sea tan atractivo: El paseo marítimo está a solo unos minutos, al igual que acogedores cafés, parques verdes y la rica oferta cultural de la ciudad. El aeropuerto está convenientemente ubicado a solo 12 kilómetros, lo que hace que la casa sea perfecta tanto para residentes permanentes como para quienes buscan una exclusiva casa de vacaciones con excelentes posibilidades de alquiler. Esta es una oportunidad única para conseguir un loft moderno en una de las zonas más atractivas de la ciudad: una residencia donde estilo, comodidad y ubicación se combinan a la perfección. Contáctanos para descubrir más y reservar tu futuro hogar en Alicante. Contáctenos para obtener más información o reservar una visita. Por supuesto, realizaremos visitas digitales si no puede asistir en persona.

Características de la propiedad

Complex information

  • Tipo de propiedad
    Apartamentos

Información del proyecto / Estado de obra

  • Año de entrega
    2026
  • Estado inmueble
    Buen estado

Datos de la propiedad

  • Planta
    2
  • Dormitorios
    2
  • Baños
    2
  • m2 construidos
    84 m²
  • m2 útiles
    74 m²
  • Tipo de la propiedad
    Segunda mano

Base

Certificación energética

  • Consumo energético
    B

Instalaciones

Comodidades de la vivienda:

Terraza

En edificio:

Piscina
Ascensor

Estado:

Buen estado

Estadísticas de precios del mercado para Piso en calle General Elizaicin

326 001 € (3 421 €/m2)
Precio promedio de propiedades primarias Apartamentos en la ciudad Alicante / Alacant
296 217 € (2 608 €/m2)
Precio promedio de propiedades secundarias Apartamentos en la ciudad Alicante / Alacant
222 477 € (3 197 €/m2)
Precio promedio de propiedades primarias Apartamentos en el distrito Campoamor-Carolinas-Altozano
183 079 € (1 544 €/m2)
Precio promedio de propiedades secundarias Apartamentos en el distrito Campoamor-Carolinas-Altozano

Mapa

Alicante, Alicante / Alacant, Campoamor-Carolinas-Altozano, Calle General Elizaicin Ir a la propiedad
Deja una opinión sobre Piso en calle General Elizaicin
0
0 reseñas
1
0% (0)
2
0% (0)
3
0% (0)
4
0% (0)
5
0% (0)
HusmanHagberg Costa Blanca South / Costa Calida
298 900 €
desde 3 558 € / m2
Contactar con la plataforma

para obtener más información contacta con el catálogo

REF: 428199

Opiniones sobre Piso en calle General Elizaicin
Loading...

No reviews have been left for this object yet

Pisos baratos 64626 Pisos para reformar 21902 Pisos hasta 50.000€ 18663 Pisos hasta 100.000€ 20261 Casas hasta 100.000€ 20261 Pisos con vistas al mar 19409 Pisos de lujo 19115 Pisos nuevos baratos 37510 Venta de pisos de 2 habitaciones Alicante 22543 Venta pisos 3 habitaciones Alicante 20511 Venta pisos 4 habitaciones Alicante 14419 Venta pisos 5 habitaciones Alicante 13153 Pisos buen estado Alicante 15864 Pisos para reformar Alicante 15406 Pisos segunda mano Alicante 33569 Pisos con vistas al mar Alicante 13120 Pisos baratos Alicante 34304 Pisos en venta con ascensor Alicante 27435 Pisos hasta 50.000€ Alicante 13233 Pisos hasta 100.000€ Alicante 14260 Pisos obra nueva Alicante 13671 Pisos de lujo Alicante 13110 Pisos exteriores Alicante 13134 Pisos nuevos baratos Alicante 13671 Pisos de Particulares Alicante 7881 Venta pisos 2 habitaciones Alicante / Alacant 150 Venta pisos 3 habitaciones Alicante / Alacant 140 Venta pisos 4 habitaciones Alicante / Alacant 117 Venta pisos 5 habitaciones Alicante / Alacant 111 Pisos buen estado Alicante / Alacant 111 Pisos para reformar Alicante / Alacant 111 Pisos segunda mano Alicante / Alacant 111 Pisos con vistas al mar Alicante / Alacant 117 Pisos baratos Alicante / Alacant 197 Pisos en venta con ascensor Alicante / Alacant 180 Pisos hasta 100.000€ Alicante / Alacant 111 Pisos obra nueva Alicante / Alacant 179 Pisos hasta 50.000€ Alicante / Alacant 111 Pisos de lujo Alicante / Alacant 111 Pisos exteriores Alicante / Alacant 114 Pisos nuevos baratos Alicante / Alacant 179 Pisos de Particulares Alicante / Alacant 106

Propiedades más cercanas

Explora propiedades cercanas que hemos descubierto en las proximidades de esta ubicación.

Apartamentos en Venta en Calle Deportista Pitu Perramón, 3, Alicante / Alacant

Alicante, Alicante / Alacant, San Blas-Pau, Calle Deportista Pitu Perramón, 3
228 800 €

AEDAS Homes lanza una moderna y exclusiva promoción de 28 viviendas de 2 y 3 hab...

0
0 opiniones

Apartamentos en Venta en Calle Deportista Pitu Perramón, 3, Alicante / Alacant

Alicante, Alicante / Alacant, San Blas-Pau, Calle Deportista Pitu Perramón, 3
308 400 €

AEDAS Homes lanza una moderna y exclusiva promoción de 28 viviendas de 2 y 3 hab...

0
0 opiniones

Apartamentos en Venta en Calle Deportista Pitu Perramón, 3, Alicante / Alacant

Alicante, Alicante / Alacant, San Blas-Pau, Calle Deportista Pitu Perramón, 3
216 000 €

AEDAS Homes lanza una moderna y exclusiva promoción de 28 viviendas de 2 y 3 hab...

0
0 opiniones

Apartamentos en Venta en Calle Deportista Pitu Perramón, 3, Alicante / Alacant

Alicante, Alicante / Alacant, San Blas-Pau, Calle Deportista Pitu Perramón, 3
262 350 €

AEDAS Homes lanza una moderna y exclusiva promoción de 28 viviendas de 2 y 3 hab...

0
0 opiniones

Apartamentos en Venta en Calle Deportista Pitu Perramón, 3, Alicante / Alacant

Alicante, Alicante / Alacant, San Blas-Pau, Calle Deportista Pitu Perramón, 3
281 750 €

AEDAS Homes lanza una moderna y exclusiva promoción de 28 viviendas de 2 y 3 hab...

0
0 opiniones

Apartamentos en Venta en Calle Deportista Pitu Perramón, 3, Alicante / Alacant

Alicante, Alicante / Alacant, San Blas-Pau, Calle Deportista Pitu Perramón, 3
216 000 €

AEDAS Homes lanza una moderna y exclusiva promoción de 28 viviendas de 2 y 3 hab...

0
0 opiniones

Apartamentos en Venta en Calle Deportista Pitu Perramón, 3, Alicante / Alacant

Alicante, Alicante / Alacant, San Blas-Pau, Calle Deportista Pitu Perramón, 3
373 250 €

AEDAS Homes lanza una moderna y exclusiva promoción de 28 viviendas de 2 y 3 hab...

0
0 opiniones

Apartamentos en Venta en Calle Deportista Pitu Perramón, 3, Alicante / Alacant

Alicante, Alicante / Alacant, San Blas-Pau, Calle Deportista Pitu Perramón, 3
280 260 €

AEDAS Homes lanza una moderna y exclusiva promoción de 28 viviendas de 2 y 3 hab...

0
0 opiniones

Apartamentos en Venta en Calle Deportista Pitu Perramón, 3, Alicante / Alacant

Alicante, Alicante / Alacant, San Blas-Pau, Calle Deportista Pitu Perramón, 3
278 750 €

AEDAS Homes lanza una moderna y exclusiva promoción de 28 viviendas de 2 y 3 hab...

0
0 opiniones
Llamada

Utilizamos cookies propias y de terceros para analizar el uso del sitio web y mostrarte publicidad relacionada con tus preferencias sobre la base de un perfil elaborado a partir de tus hábitos de navegación (por ejemplo, páginas visitadas). Más información. ¿Aceptas las cookies?