Local en avenida Doctor Gadea, Alicante

Alicante, Alicante / Alacant, Centro, Avenida Doctor Gadea, Alicante
925 000 €
3 700 € / m2
Dejar reseña
Locales comerciales Tipo de propiedad
250 m² m2 construidos
2 Baños
Buen estado Estado inmueble
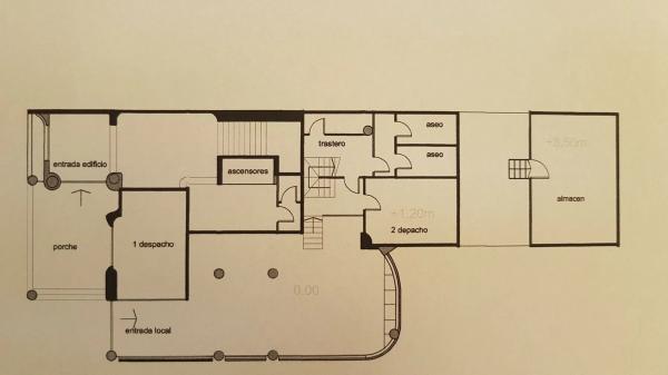
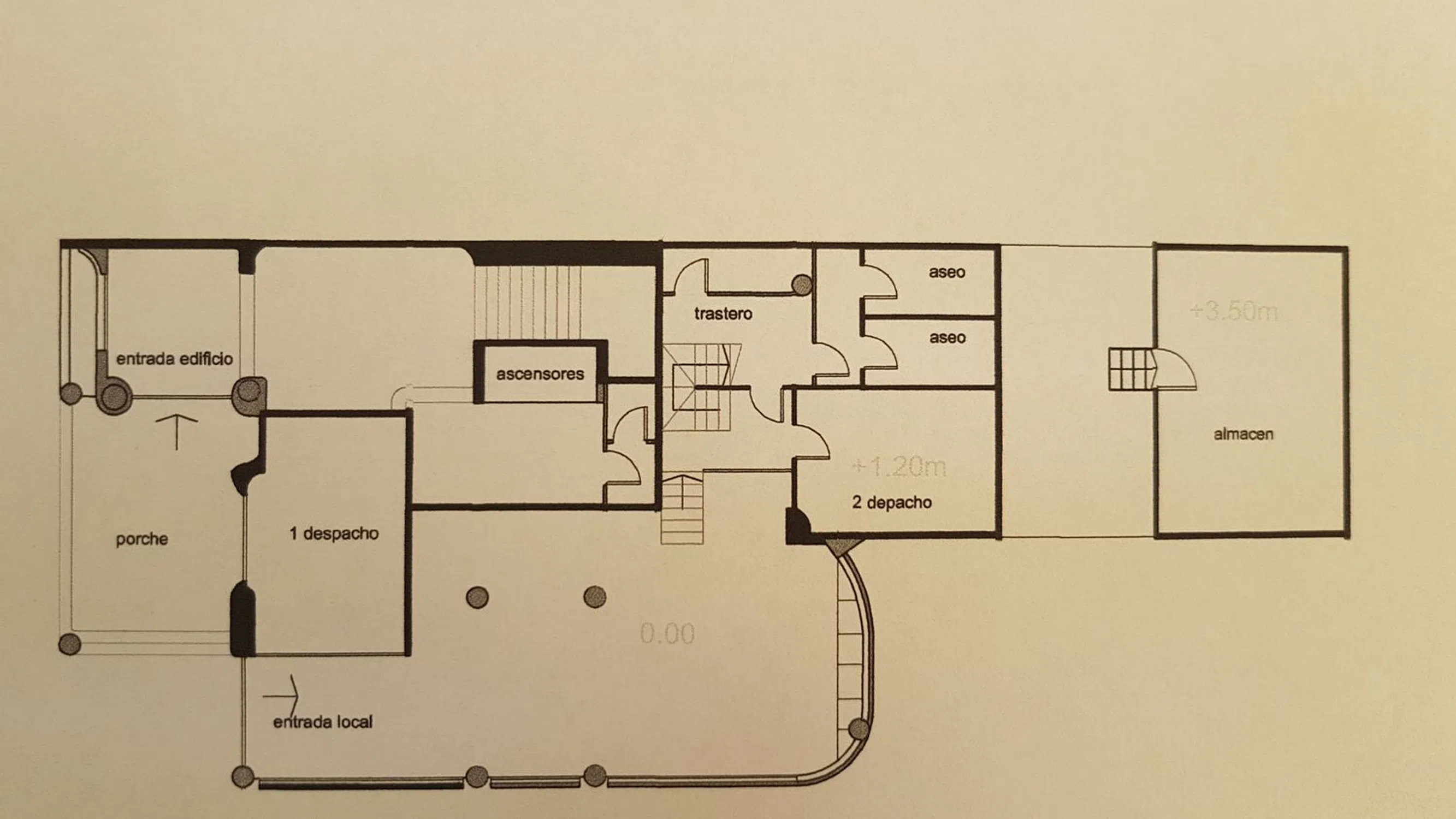
Local en pleno centro de Alicante. Magnifico local comercial en esquina. En pleno centro de Alicante, junto a El Corte Ingles. Zona de mucho paso. Estado impecable. Antigua sucursal bancaria Consta de 230 m2 divididos en: 160 m2 en planta baja con un despacho de dirección y el resto diáfano; 40 m2 en planta primera con un despacho y servicios; 30 m2 en planta segunda con una sala de reuniones Aire acondicionado por conductos, dotado con todas las instalaciones para telecomunicaciones. Con 7 cristaleras blindadas a la calle. Suelo de gres. Falso techo desmontable. Actualmente está alquilado. Se vende con inquilino.

Características de la propiedad

Complex information

  • Tipo de propiedad
    Locales comerciales

Información del proyecto / Estado de obra

  • Estado inmueble
    Buen estado

Datos de la propiedad

  • Baños
    2
  • m2 construidos
    250 m²
  • Tipo de la propiedad
    Segunda mano

Instalaciones

Comodidades de la vivienda:

Aire acondicionado

Estado:

Buen estado

Planos

Estadísticas de precios del mercado para Local en avenida Doctor Gadea, Alicante

Mapa

Alicante, Alicante / Alacant, Centro, Avenida Doctor Gadea, Alicante Ir a la propiedad
Deja una opinión sobre Local en avenida Doctor Gadea, Alicante
0
0 reseñas
1
0% (0)
2
0% (0)
3
0% (0)
4
0% (0)
5
0% (0)
inmobotto
925 000 €
desde 3 700 € / m2
Contactar con la plataforma

para obtener más información contacta con el catálogo

REF: 323252

Opiniones sobre Local en avenida Doctor Gadea, Alicante
Loading...

No reviews have been left for this object yet

Propiedades más cercanas

Explora propiedades cercanas que hemos descubierto en las proximidades de esta ubicación.

Locales comerciales en Venta en Calle San Vicente, 3, Alicante / Alacant

Alicante, Alicante / Alacant, Centro, Calle San Vicente, 3
1 550 000 €

Local de 700m2 en venta muy próximo al Mercado Central y la Rambla, y junto a un...

0
0 opiniones

Obra nueva Oficinas, Urb.El Parque - Alicante en Alicante / Alacant

Alicante, Alicante / Alacant, Centro, Carrer Arquebisbe Loaces
231 000 €

Promoción de oficinas y locales comerciales en venta en Alicante. ¿Buscas un inm...

0
0 opiniones

Obra nueva Irala en Alicante / Alacant

Alicante, Alicante / Alacant, San Blas-Pau, Plaza Juan Pablo II s/n
140 000 €

La promoción , compuesta por 173 viviendas de 1, 2, 3 y 4 dormitorios con plaza...

0
0 opiniones

Obra nueva Irala en Alicante / Alacant

Alicante, Alicante / Alacant, San Blas-Pau, Plaza Juan Pablo II s/n
145 000 €

La promoción , compuesta por 173 viviendas de 1, 2, 3 y 4 dormitorios con plaza...

0
0 opiniones

Obra nueva Irala en Alicante / Alacant

Alicante, Alicante / Alacant, San Blas-Pau, Plaza Juan Pablo II s/n
155 000 €

La promoción , compuesta por 173 viviendas de 1, 2, 3 y 4 dormitorios con plaza...

0
0 opiniones

Obra nueva Irala en Alicante / Alacant

Alicante, Alicante / Alacant, San Blas-Pau, Plaza Juan Pablo II s/n
165 000 €

La promoción , compuesta por 173 viviendas de 1, 2, 3 y 4 dormitorios con plaza...

0
0 opiniones

Obra nueva Irala en Alicante / Alacant

Alicante, Alicante / Alacant, San Blas-Pau, Plaza Juan Pablo II s/n
170 000 €

La promoción , compuesta por 173 viviendas de 1, 2, 3 y 4 dormitorios con plaza...

0
0 opiniones

Locales comerciales en Venta en Avenida Catedratico Soler, 5 M5, Alicante / Alacant

Alicante, Alicante / Alacant, Benalúa-La Florida-Babel-San Gabriel, Avenida Catedratico Soler, 5 M5
131 000 €

Metrovacesa te presenta Thalassa, promoción de 47 viviendas con 2, 3 y 4 habitac...

0
0 opiniones

Local en venta en Benalúa

Alicante, Alicante / Alacant, Benalúa-La Florida-Babel-San Gabriel
372 600 €

Este local comercial en venta, con una superficie de 256 m², se encuentra en una...

0
0 opiniones

Utilizamos cookies propias y de terceros para analizar el uso del sitio web y mostrarte publicidad relacionada con tus preferencias sobre la base de un perfil elaborado a partir de tus hábitos de navegación (por ejemplo, páginas visitadas). Más información. ¿Aceptas las cookies?