Terreno en avenida Europa

Alicante, Altea, Altea Hills, Avenida Europa
455 000 €
Dejar reseña
Urbano Tipo de propiedad
823 m² Superficie del terreno
Suelo Radiante Calefacción
Equipada Equipamiento de cocina
Si Suministro de agua
Acceso via urbana Tipo de acceso
Si Suministro de electricidad
Residencial Uso de parcela
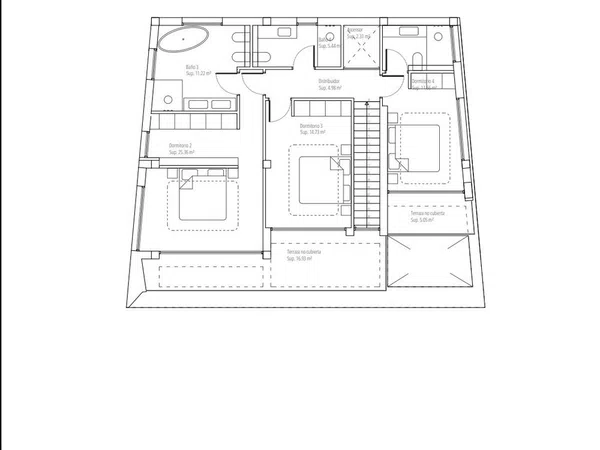
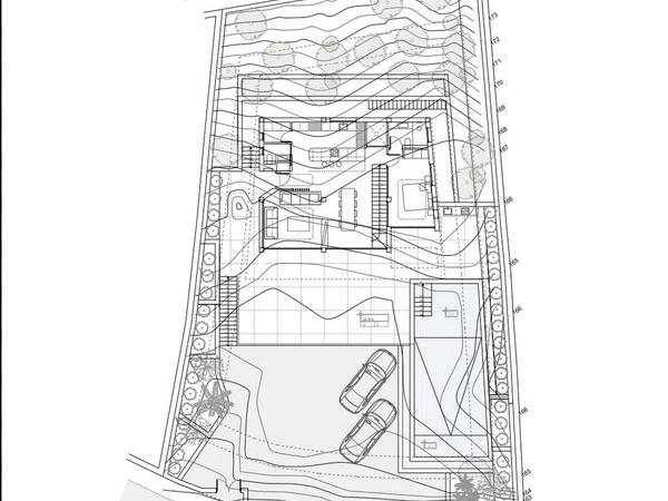
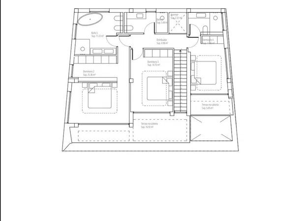
Parcela edificable con vistas al mar y licencia de obras en venta urbanización Altea Hills en Altea en la costa Blanca de Alicante en España,  823 m2 con vistas al mar y licencia de obras con proyecto de villa de lujo de diseño moderno en la urbanización Altea Hills, proyecto incluido para la construcción de una villa de 331 m2 construidos distribuidos en 2 alturas y está comunicada con escalera interior y ascensor, dispone de 4 dormitorios con baño en suite, 1 aseo, salon comedor, cocina abierta totalmente equipada con electrodomésticos, de 57 metros cuadrados con sistema de agua salina, jardín, garaje para 3 coches, calefacción por suelo radiante, aire acondicionado frio / calor,   trastero, lavadero, sistema de riego en jardín, alarma.

Características de la propiedad

Complex information

  • Tipo de propiedad
    Urbano

Memoria de Calidades

  • Calefacción
    Suelo Radiante

Datos de la propiedad

  • Tipo de cocina
    Cocina americana
  • Equipamiento de cocina
    Equipada
  • Tipo de diseño
    Moderno
  • Tipo de la propiedad
    Segunda mano

Superficies

  • Superficie del terreno
    823 m²

Base

  • Suministro de agua
    Si
  • Suelo urbano
    Consolidado (Solar)
  • Tipo de acceso
    Acceso via urbana
  • Suministro de electricidad
    Si
  • Uso de parcela
    Residencial

Instalaciones

Suministro:

Con agua
Con electricidad

Vistas:

Vistas al mar

Uso del suelo:

Residencial

Características adiciónales:

Terreno edificable

Instalaciones:

Agua de riego

Estadísticas de precios del mercado para Terreno en avenida Europa

Mapa

Alicante, Altea, Altea Hills, Avenida Europa Ir a la propiedad
Deja una opinión sobre Terreno en avenida Europa
0
0 reseñas
1
0% (0)
2
0% (0)
3
0% (0)
4
0% (0)
5
0% (0)
MG Villas Luxury Property
455 000 €
Contactar con la plataforma

para obtener más información contacta con el catálogo

REF: 159057

Opiniones sobre Terreno en avenida Europa
Loading...

No reviews have been left for this object yet

Propiedades más cercanas

Explora propiedades cercanas que hemos descubierto en las proximidades de esta ubicación.

Terreno en venta en calle Sondeo

Alicante, Altea, Altea la Vella, Calle Sondeo
2 197 400 €

Lote de solares desde 4.236 m² hasta 15.258 m², siendo una superficie total de 4...

0
0 opiniones

Terreno en venta en calle la Guatla

Alicante, Altea, Altea la Vella, Calle la Guatla
250 000 €

Parcela de 1.068 m² en una tranquila urbanización de Altea. Esta parcela viene c...

0
0 opiniones

Terreno en venta en Costera Pont del Montcau

Alicante, Altea, Altea Pueblo, Costera Pont del Montcau
238 000 €

Solar con edificación para demoler situado en la localidad de Altea, provincia A...

0
0 opiniones

Terreno en venta en calle Inglaterra

Alicante, Altea, Altea Hills, Calle Inglaterra
556 000 €

Solar Residencial en Altea, provincia de Alicante, de tipología unifamiliar aisl...

0
0 opiniones

Terreno en venta en calle Inglaterra

Alicante, Altea, Altea Hills, Calle Inglaterra
1 200 000 €

Solar situado en la Calle Gran Bretaña número 2028, parcela AH-AP3 situada dentr...

0
0 opiniones

Terreno en venta en Partida Empedrola II

Alicante, Calpe, Cometa-Carrió, Partida Empedrola II
145 000 €

Calpe Urb Empedrola II. Parcela de 1. 000 m2, apta para construir una vivienda u...

0
0 opiniones

Terreno en Altea Hills

Alicante, Altea, Altea Hills, Altea Hills
430 000 €

Situada en la prestigiosa y segura comunidad residencial de Altea Hills, esta am...

0
0 opiniones

Terreno en calle Italia, 63

Alicante, Altea, Altea Hills, Calle Italia, 63
215 000 €

Magnífica parcela en la prestigiosa urbanización Altea Hills. Urbanización con...

0
0 opiniones

Terreno en calle Italia, 62

Alicante, Altea, Altea Hills, Calle Italia, 62
215 000 €

Se vende PARCELA en la exclusiva Urbanización ALTEA HILLS, con excelentes vistas...

0
0 opiniones
Llamada

Utilizamos cookies propias y de terceros para analizar el uso del sitio web y mostrarte publicidad relacionada con tus preferencias sobre la base de un perfil elaborado a partir de tus hábitos de navegación (por ejemplo, páginas visitadas). Más información. ¿Aceptas las cookies?