España Urbano España Urbano Alicante Urbano Benissa Terreno en avenida de los Garcies, 116

Terreno en avenida de los Garcies, 116

Alicante, Benissa, Benissa pueblo, Avenida de los Garcies, 116
545 000 €
Dejar reseña
Urbano Tipo de propiedad
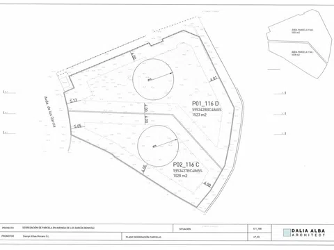
1 565 m² Superficie del terreno
4 Plantas edificables
450 Superficie edificable
Frutales Cultivos
Fantástica parcela edificable con vistas panorámicas al mar desde Calpe a Moraira en venta en Benissa costa  Esta parcela de 1.565 m2 tiene una ubicación muy tranquila y privada. Esta ubicación privilegiada es única y puedes disfrutar de las vistas al mar desde Moraira hasta el Peñón de Ifach en Calpe.   A la izquierda de la propiedad hay una zona verde con pinos y a la derecha solo hay una parcela edificable que también se puede comprar. Estaremos encantados de proporcionarle más información si está interesado en la compra. Las conexiones de luz y agua ya están disponibles, al igual que una acera. Toda la infraestructura, ya que hemos construido todas las villas en esta pequeña y lujosa urbanización. La parcela está orientada al sureste y está oculta, ya que el camino de acceso está detrás de la casa. Nuestro equipo le ayudará a crear la casa de sus sueños. Nuestra arquitecta multilingüe Dalia Alba es conocida por su excelente diseño. Junto a nuestra interiorista Luna Alba y nuestro jefe de proyecto, Design Villas Moraira estará a su lado durante toda la fase de construcción.   Con nuestro equipo de construcción, todo está en una mano, desde la planificación y la construcción hasta el final de la fase de construcción. Por lo tanto, podemos garantizarle un proceso fluido y bien organizado. La conocida playa de arena La Fustera en Benissa está a tan solo 5 minutos en coche. Allí se encuentran numerosos bares de cócteles y exquisitos restaurantes. Benissa también tiene un pequeño puerto deportivo con varios deportes acuáticos.   Esperamos su llamada y le asesoraremos en su lengua materna.   Nuestra arquitecta Dalia Alba  Nuestra interiorista Luna Alba - Lemon Design Studio Design Villas Moraira tiene su propio equipo de construcción.

Características de la propiedad

Complex information

  • Tipo de propiedad
    Urbano

Datos de la propiedad

  • Tipo de la propiedad
    Segunda mano

Superficies

  • Superficie del terreno
    1 565 m²

Base

  • Parcela minima venta
    1 565 m²
  • Plantas edificables
    4
  • Superficie edificable
    450
  • Cultivos
    Frutales

Instalaciones

Vistas:

Vistas al mar

Cultivo:

Сultivo de alimentos
Árboles frutales

Características adiciónales:

Terreno edificable

Planos

Estadísticas de precios del mercado para Terreno en avenida de los Garcies, 116

Mapa

Alicante, Benissa, Benissa pueblo, Avenida de los Garcies, 116 Ir a la propiedad
Deja una opinión sobre Terreno en avenida de los Garcies, 116
0
0 reseñas
1
0% (0)
2
0% (0)
3
0% (0)
4
0% (0)
5
0% (0)
Design Villas Moraira
545 000 €
Contactar con la plataforma

para obtener más información contacta con el catálogo

REF: 208059

Opiniones sobre Terreno en avenida de los Garcies, 116
Loading...

No reviews have been left for this object yet

Propiedades más cercanas

Explora propiedades cercanas que hemos descubierto en las proximidades de esta ubicación.

Terreno en venta en Urbanización Solana

Alicante, Jalón
242 000 €

Suelo urbano no consolidado con una superficie total aproximada de 35.141 m² en...

0
0 opiniones

Terreno en venta en Grupo Pinos los Urban

Alicante, Calpe, Cometa-Carrió, Grupo Pinos los Urban
149 000 €

Descubre una oportunidad única para construir la casa de tus sueños en una parce...

0
0 opiniones

Terreno en venta en Benissa pueblo

Alicante, Benissa, Benissa pueblo
180 000 €

Descubre 15,000 m2 de paraíso en la codiciada costa de Benissa, a solo 7 minutos...

0
0 opiniones

Terreno en venta en Partida Empedrola II

Alicante, Calpe, Cometa-Carrió, Partida Empedrola II
145 000 €

Calpe Urb Empedrola II. Parcela de 1. 000 m2, apta para construir una vivienda u...

0
0 opiniones

Se vende atractivo solar urbano de 1350m2 en urbanización de lujo entre Calpe y Moraira

Alicante, Benissa
184 000 €

El solar de 1350m2 está ubicado en un área tranquila, ofrece conexiones de luz y...

0
0 opiniones

En venta solar urbano de 1350m2 en urbanización de lujo entre Calpe y Moraira

Alicante, Benissa
175 000 €

El solar de 1350m2 está ubicado en un área tranquila, ofrece conexiones de luz y...

0
0 opiniones

Terreno en Benissa pueblo

Alicante, Benissa, Benissa pueblo, Benissa pueblo
90 000 €

Esta espaciosa parcela rural de poco más de 8000 m² ofrece un remanso de paz y m...

0
0 opiniones

Terreno en Teulada

Alicante, Teulada
275 000 €

Esta impresionante parcela de terreno rústico tiene una extensión de 10.400 metr...

0
0 opiniones

Terreno en Cometa-Carrió

Alicante, Calpe, Cometa-Carrió, Cometa-Carrió
1 100 000 €

Oportunidad de Inversión, 856 m2 parcela para la construcción de un chalet de lu...

0
0 opiniones
Llamada

Utilizamos cookies propias y de terceros para analizar el uso del sitio web y mostrarte publicidad relacionada con tus preferencias sobre la base de un perfil elaborado a partir de tus hábitos de navegación (por ejemplo, páginas visitadas). Más información. ¿Aceptas las cookies?