Terreno en Barrio Centro

Alicante, Elche / Elx, Elche Ciudad, Barrio Centro
295 000 €
Dejar reseña
Urbano Tipo de propiedad
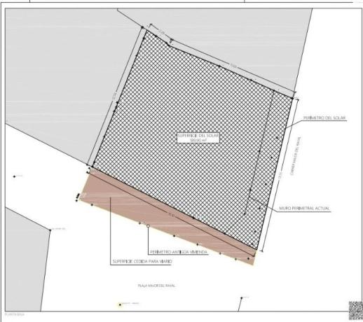
189 m² Superficie del terreno
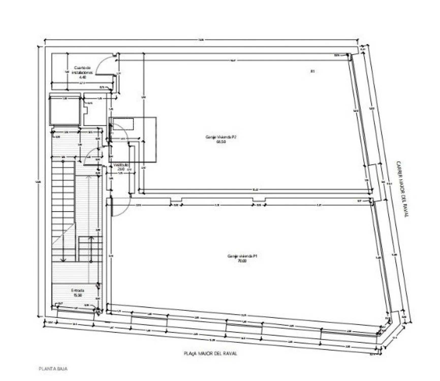
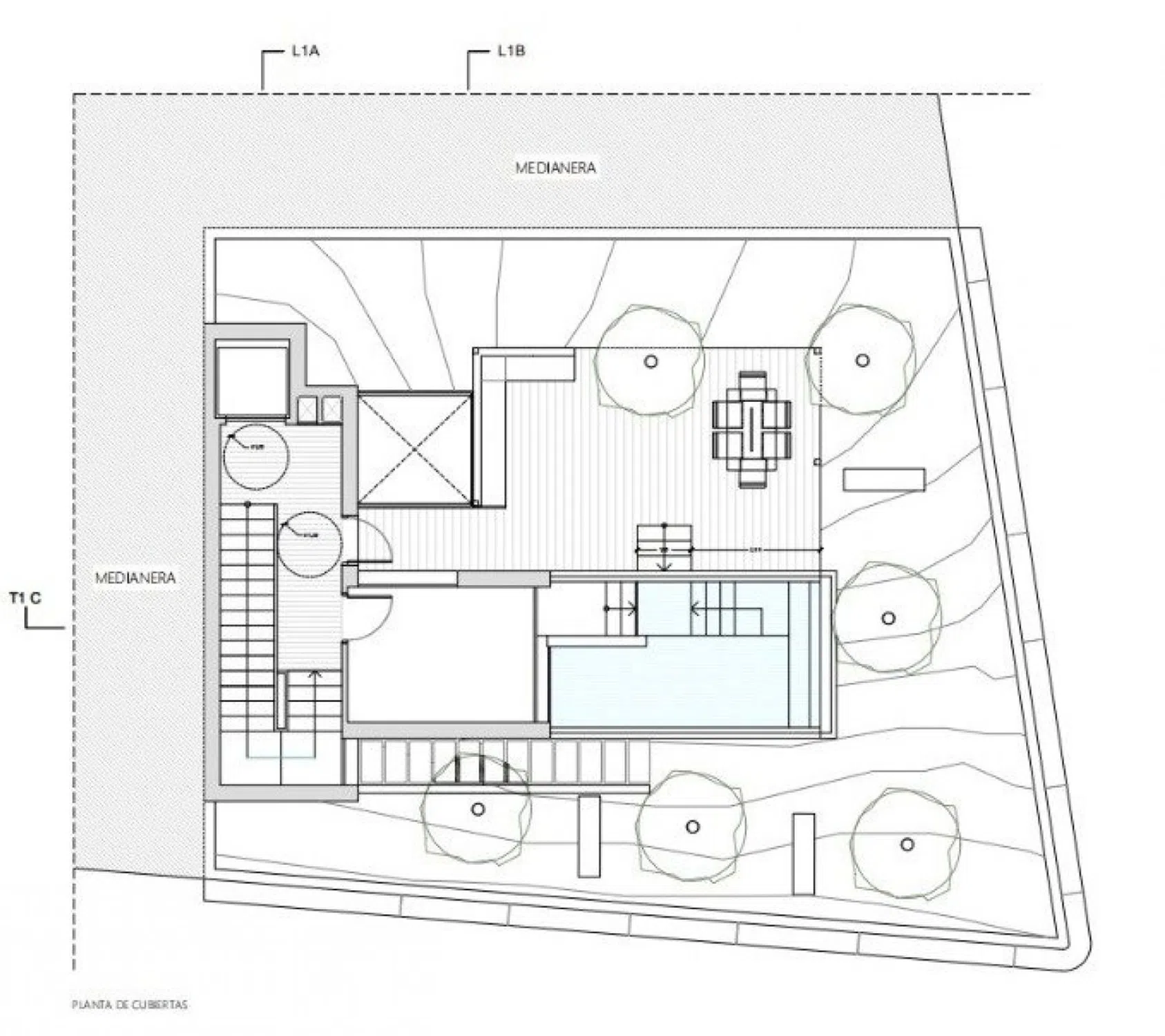
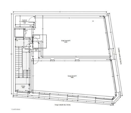
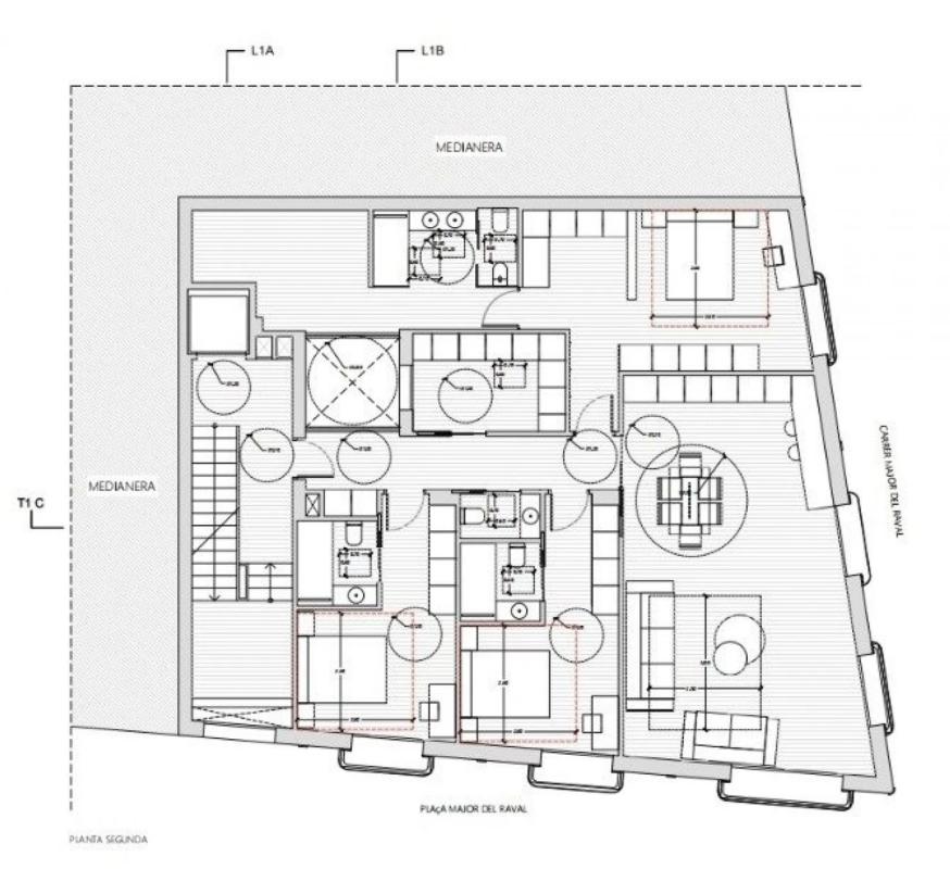
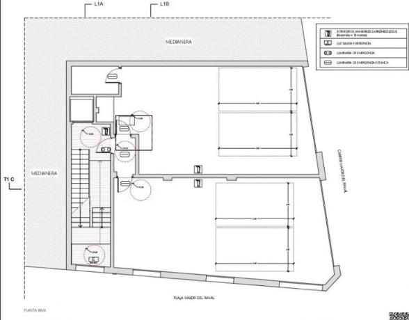
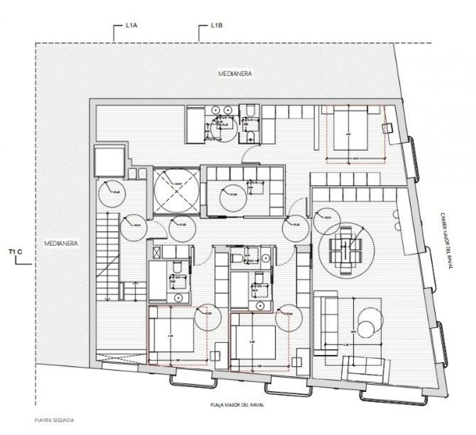
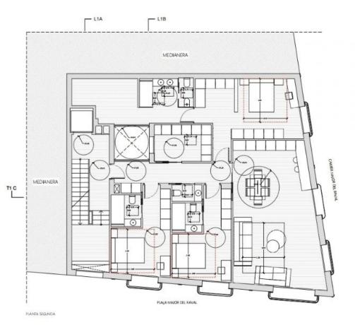
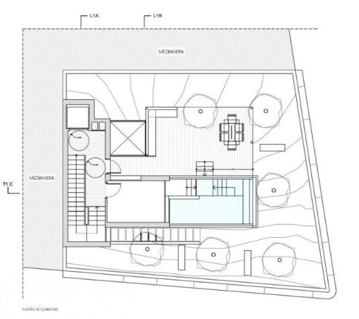
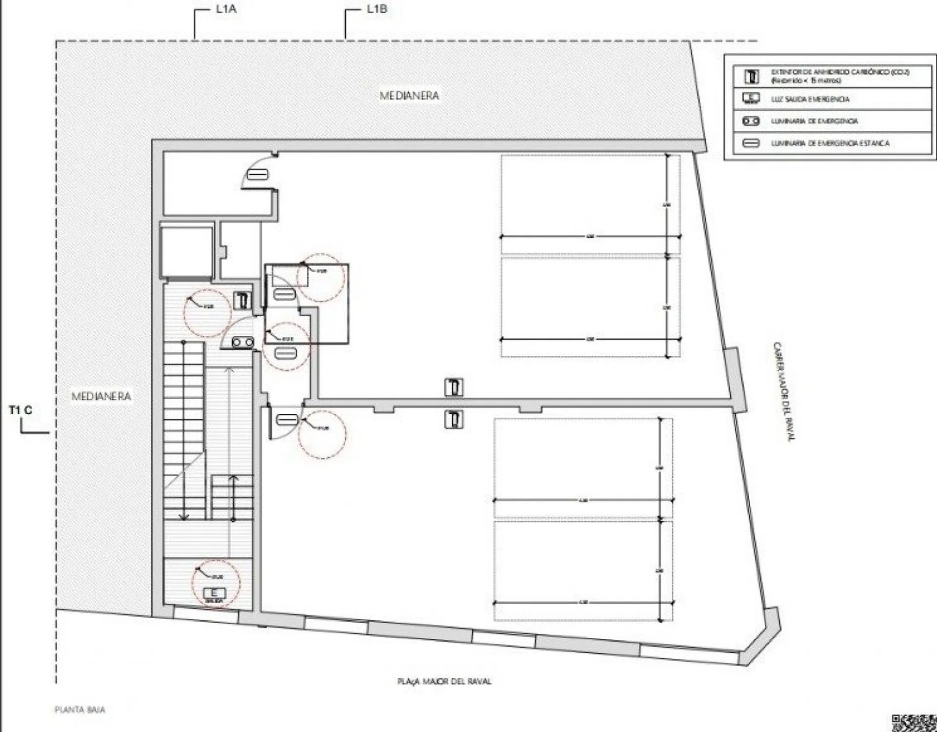
En venta SOLAR URBANO + PROYECTO + LICENCIAS CONCEDIDAS en el corazón del BARRIO RAVAL DE ELCHE, en la Plaza Mayor del Raval. Una ubicación idónea para construir una vivienda unifamiliar o plurifamiliar. Ubicado en una calle semi-peatonal con fachada principal de 16,10m. y fachada lateral de 13,55m. , teniendo un solar uniforme con una superficie de 189 m2. Actualmente existe un proyecto con licencias concedidas para la edificación de un edificio familiar que consta de planta baja+2 alturas. En la planta baja se encuentra la entrada principal del edificio por la fachada que recae a la PlaÇa Major del Raval, además un aparcamiento exclusivo para cada una de las dos viviendas del edificio. En las plantas superiores encontramos una vivienda por planta, disponiendo cada una de ellas de tres dormitorios, distribuidor, salón-comedor-cocina, lavadero, vestidor, un aseo, patio interior descubierto y tres baños. La planta de cubiertas se encuentra distribuida en las siguientes dependencias: distribuidor, cuarto de instalaciones y piscina. El resto de cubierta se destina a cubierta verde ajardinada. Se prevé un aparcamiento para el uso exclusivo de cada una de las viviendas, con entradas independientes desde el exterior del edificio y comunicación con la zona de entrada mediante vestíbulo de independencia. La ejecución material de la construcción no está incluida en el precio.

Características de la propiedad

Complex information

  • Tipo de propiedad
    Urbano

Datos de la propiedad

  • Tipo de la propiedad
    Segunda mano

Superficies

  • Superficie del terreno
    189 m²

Base

  • Suelo urbano
    Consolidado (Solar)

Estadísticas de precios del mercado para Terreno en Barrio Centro

Mapa

Alicante, Elche / Elx, Elche Ciudad, Barrio Centro Ir a la propiedad
Deja una opinión sobre Terreno en Barrio Centro
0
0 reseñas
1
0% (0)
2
0% (0)
3
0% (0)
4
0% (0)
5
0% (0)
Devalls&Escandell Asesores Inmobiliarios
295 000 €
Contactar con la plataforma

para obtener más información contacta con el catálogo

REF: 235218

Opiniones sobre Terreno en Barrio Centro
Loading...

No reviews have been left for this object yet

Propiedades más cercanas

Explora propiedades cercanas que hemos descubierto en las proximidades de esta ubicación.

Terreno en venta en Pont Nou-Corazón de Jesús

Alicante, Elche / Elx, Elche Ciudad
178 000 €

en Elche zona Centro, 105 m. de superficie, 4 habitaciones dobles, 2 baños, prop...

0
0 opiniones

Terreno en Barrio Ciudad Jardín

Alicante, Elche / Elx, Elche Ciudad, Barrio Ciudad Jardín
415 000 €

Esta parcela se encuentra en la zona de Altabix exactamente el barrio llamado Ci...

0
0 opiniones

Terreno en La Hoya-Daimes-El Derramador

Alicante, Elche / Elx, La Hoya-Daimes-El Derramador, La Hoya-Daimes-El Derramador
93 000 €

¡Oportunidad única de inversión en una ubicación privilegiada! Se vende solar de...

0
0 opiniones

Terreno en calle Porta Oriola, 3 a

Alicante, Elche / Elx, Elche Ciudad, Calle Porta Oriola, 3 A
61 000 €

Solar cuyo uso ha sido cedido temporalmente al Ayuntamiento de Elche para intere...

0
0 opiniones

Terreno en Barrio Centro

Alicante, Elche / Elx, Elche Ciudad, Barrio Centro
135 000 €

A la venta solar en el Raval, para planta baja mas dos alturas. El derribo esta...

0
0 opiniones

Terreno en Barrio Pont Nou-Corazón de Jesús

Alicante, Elche / Elx, Elche Ciudad, Barrio Pont Nou-Corazón de Jesús
162 750 €

BH Inmobiliaria vende la parcela que estabas buscando, para hacer tu casa UNICA....

0
0 opiniones

Terreno en calle Conrado del Campo, 68

Alicante, Elche / Elx, Elche Ciudad, Calle Conrado del Campo, 68
190 000 €

Solar urbano orientado a este, cuenta con una superficie de 203m2, 9m2 de facha...

0
0 opiniones

Terreno en Barrio Ciudad Jardín

Alicante, Elche / Elx, Elche Ciudad, Barrio Ciudad Jardín
315 000 €

Te ofrecemos este solar totalmente urbano junto al barrio de Altabix (SECTOR A....

0
0 opiniones

Terreno en avenida de l'Altet, 9050

Alicante, Elche / Elx, Elche Ciudad, Avenida de l'Altet, 9050
167 000 €

Suelo urbanizable ordenado en Elche, Alicante, destinado a un uso residencial pl...

0
0 opiniones
Llamada

Utilizamos cookies propias y de terceros para analizar el uso del sitio web y mostrarte publicidad relacionada con tus preferencias sobre la base de un perfil elaborado a partir de tus hábitos de navegación (por ejemplo, páginas visitadas). Más información. ¿Aceptas las cookies?