Obra nueva Casa independiente en Finestrat (Revista)

Alicante, Finestrat, Balcón de Finestrat-Terra Marina, Balcón de Finestrat-Terra Marina
1 060 000 €
5 096 € / m2
Dejar reseña
208 m² m2 construidos
4 Baños
4 Dormitorios
Equipada Equipamiento de cocina
Estas magníficas villas de tres plantas ofrecen la combinación perfecta de diseño moderno y confort, con amplios interiores e impresionantes vistas al mar. En la planta baja, encontrará un amplio salón-comedor de planta abierta y una cocina totalmente equipada, con una elegante isla y una despensa. Unas grandes puertas de cristal dan a una terraza. Esta planta también cuenta con un dormitorio de buen tamaño y un cuarto de baño. La primera planta cuenta con dos amplios dormitorios, ambos con sus propios cuartos de baño. Uno de los dormitorios disfruta de su propia terraza privada, ofreciendo un espacio exclusivo para disfrutar de las vistas de los alrededores. En la planta superior, un dormitorio adicional con baño en suite y terraza privada completa esta impresionante propiedad. Todos los dormitorios cuentan con armarios empotrados, lo que garantiza un amplio espacio de almacenamiento, y la propiedad incluye preinstalación de aire acondicionado. La villa también cuenta con un sistema de intercomunicación y un cómodo ascensor que conecta todos los niveles. En el exterior, encontrará una piscina privada, una bonita zona ajardinada y aparcamiento cerrado. Con una ubicación ideal, esta villa está a sólo 10 minutos en coche de atracciones populares, incluyendo parques temáticos, parques acuáticos, zoológicos, un campo de golf, supermercados, centros comerciales y la playa. *La información de este anuncio es meramente informativa y pueden producirse errores. [IW].

Promociones destacadas en España

10 unidades

Nature Views 2

Alicante, Torrevieja, Los Balcones - Los Altos del Edén, Denia s/n
310 000 € - 379 000 €
1 unidades

Hotel en venta en Benidorm centro

Alicante, Benidorm, Playa de Poniente
2 250 000 € - 2 250 000 €
28 unidades

Residencial Los Balcones De Calpe

Alicante, Calpe, Calpe Pueblo, Avenida de Madrid, 1
299 000 € - 892 125 €
7 unidades

Nature Views

Alicante, Torrevieja, Lago Jardín II, Avenida Denia s/n
305 000 € - 330 000 €
5 unidades

ALONIS VILLAS

Alicante, La Villajoyosa / Vila Joiosa, Platja de Torres, Partida Torres s/n
675 000 € - 775 000 €
1 unidades

Residencial Royal Beach

Alicante, Guardamar del Segura, pueblo, Miguel Hernández 102
349 500 € - 349 500 €
7 unidades

Royal Star

Alicante, Guardamar del Segura
229 500 € - 269 500 €

Características de la propiedad

Complex information

Datos de la propiedad

  • Equipamiento de cocina
    Equipada
  • Dormitorios
    4
  • Baños
    4
  • m2 construidos
    208 m²
  • Tipo de diseño
    Moderno
  • Tipo de la propiedad
    Segunda mano

Instalaciones

Comodidades de la vivienda:

Terraza

En edificio:

Piscina
Jardin

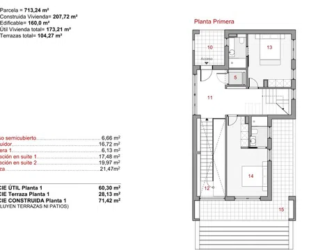
Planos

Estadísticas de precios del mercado para Casa independiente

735 823 € (3 451 €/m2)
Precio promedio de propiedades primarias en la ciudad Finestrat
820 205 € (3 137 €/m2)
Precio promedio de propiedades secundarias en la ciudad Finestrat

Mapa

Alicante, Finestrat, Balcón de Finestrat-Terra Marina, Balcón de Finestrat-Terra Marina Ir a la propiedad
Deja una opinión sobre Casa independiente
0
0 reseñas
1
0% (0)
2
0% (0)
3
0% (0)
4
0% (0)
5
0% (0)
Luminar Estates
1 060 000 €
desde 5 096 € / m2
Contactar con la plataforma

para obtener más información contacta con el catálogo

REF: 203057

Opiniones sobre Casa independiente
Loading...

No reviews have been left for this object yet

Propiedades más cercanas

Explora propiedades cercanas que hemos descubierto en las proximidades de esta ubicación.

Chalet independiente en Venta en Calle roma, 23, Finestrat

Alicante, Finestrat, Golf Bahía, Calle roma, 23
1 750 000 €

Nueva villa terminada en Sierra Cortina de Finestrat (Alicante).Les ofrecemos un...

0
0 opiniones

Chalet independiente en Venta en Calle d'Equador s/n, Finestrat

Alicante, Finestrat, Balcón de Finestrat-Terra Marina, Calle d'Equador s/n
545 000 €

Este exclusivo complejo residencial de nueva construcción se ubica en una encant...

0
0 opiniones

Chalet independiente en Venta en Calle d'Equador s/n, Finestrat

Alicante, Finestrat, Balcón de Finestrat-Terra Marina, Calle d'Equador s/n
635 000 €

Este moderno complejo residencial, ubicado en la hermosa localidad de Finestrat,...

0
0 opiniones

Chalet independiente en Venta en Calle d'Equador s/n, Finestrat

Alicante, Finestrat, Balcón de Finestrat-Terra Marina, Calle d'Equador s/n
1 250 000 €

Este moderno complejo residencial, ubicado en una zona privilegiada, ofrece una...

0
0 opiniones

Chalet independiente en Venta en Calle d'Equador s/n, Finestrat

Alicante, Finestrat, Balcón de Finestrat-Terra Marina, Calle d'Equador s/n
550 000 €

Este impresionante complejo residencial de nueva construcción está situado en la...

0
0 opiniones

Chalet independiente en Venta en Calle d'Equador s/n, Finestrat

Alicante, Finestrat, Balcón de Finestrat-Terra Marina, Calle d'Equador s/n
640 000 €

Este nuevo complejo residencial está ubicado en una encantadora zona de Finestra...

0
0 opiniones

Chalet independiente en Venta en Calle d'Equador s/n, Finestrat

Alicante, Finestrat, Balcón de Finestrat-Terra Marina, Calle d'Equador s/n
645 000 €

Este moderno complejo residencial se ubica en Finestrat y presenta una variada o...

0
0 opiniones

Obra nueva Campana Garden en Finestrat

Alicante, Finestrat, Balcón de Finestrat-Terra Marina, Calle d'Equador s/n
639 000 €

Este complejo residencial de obra nueva se encuentra en Finestrat y ofrece vivie...

0
0 opiniones

Obra nueva Campana Garden en Finestrat

Alicante, Finestrat, Balcón de Finestrat-Terra Marina, Calle d'Equador s/n
1 900 000 €

Este complejo residencial de obra nueva se encuentra en Finestrat y ofrece vivie...

0
0 opiniones
Llamada

Utilizamos cookies propias y de terceros para analizar el uso del sitio web y mostrarte publicidad relacionada con tus preferencias sobre la base de un perfil elaborado a partir de tus hábitos de navegación (por ejemplo, páginas visitadas). Más información. ¿Aceptas las cookies?