Local en Finestrat Pueblo

Alicante, Finestrat, Finestrat Pueblo, Finestrat Pueblo
280 000 €
3 733 € / m2
Dejar reseña
Locales comerciales Tipo de propiedad
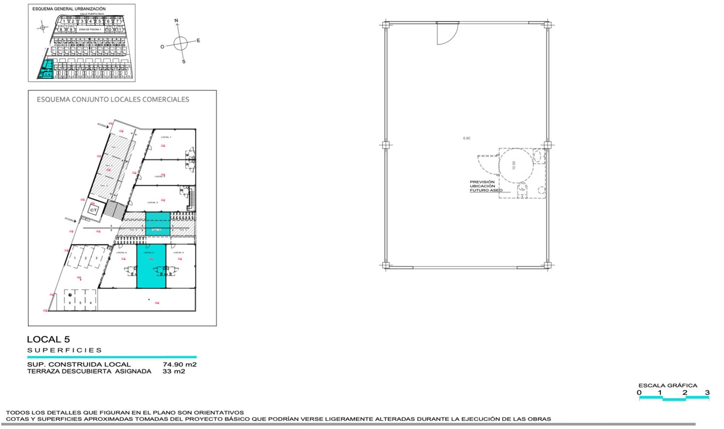
75 m² m2 construidos
Buen estado Estado inmueble
Si Suministro de electricidad
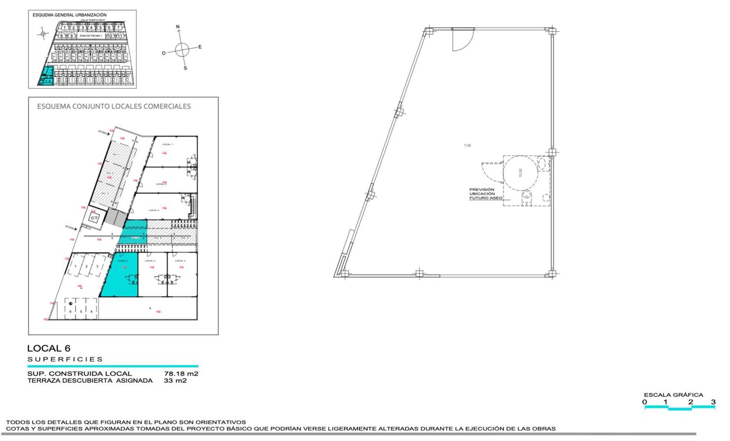
Una oportunidad excepcional para establecer su negocio en una de las zonas más prometedoras y de rápido crecimiento de la Costa Blanca. Estos locales comerciales de nueva construcción se encuentran dentro de una urbanización residencial de alta calidad en Finestrat, a pocos minutos de Benidorm, las playas, los campos de golf y los principales centros comerciales. Rodeado de una comunidad creciente de residentes y turistas, esta ubicación garantiza un excelente tráfico peatonal y una visibilidad a largo plazo para su negocio. Hay dos locales comerciales disponibles: 75 m² de superficie construida. 78 m² de superficie construida (local en esquina - 330 000 €). El local en esquina ofrece mayor visibilidad y luz natural, lo que lo convierte en un lugar ideal para cafeterías, boutiques, estudios de bienestar u oficinas profesionales. Ambos locales se benefician de modernos estándares de construcción, techos altos y distribuciones versátiles que se pueden adaptar a una amplia gama de tipos de negocios. Tanto si es usted empresario, inversor o está ampliando su negocio actual, estas instalaciones le ofrecen una oportunidad única de conseguir un espacio comercial en un centro residencial en auge. Póngase en contacto con nosotros hoy mismo para obtener más detalles y explorar las opciones disponibles. No pierda la oportunidad de formar parte de esta nueva y dinámica comunidad. *La información de este anuncio es meramente informativa y puede contener errores. [IW].

Características de la propiedad

Complex information

  • Tipo de propiedad
    Locales comerciales

Información del proyecto / Estado de obra

  • Estado inmueble
    Buen estado

Datos de la propiedad

  • m2 construidos
    75 m²
  • Tipo de la propiedad
    Segunda mano

Base

  • Suministro de electricidad
    Si

Instalaciones

Suministro:

Con electricidad

Estado:

Buen estado

Planos

Estadísticas de precios del mercado para Local en Finestrat Pueblo

Mapa

Alicante, Finestrat, Finestrat Pueblo, Finestrat Pueblo Ir a la propiedad
Deja una opinión sobre Local en Finestrat Pueblo
0
0 reseñas
1
0% (0)
2
0% (0)
3
0% (0)
4
0% (0)
5
0% (0)
Luminar Estates
280 000 €
desde 3 733 € / m2
Contactar con la plataforma

para obtener más información contacta con el catálogo

REF: 324657

Opiniones sobre Local en Finestrat Pueblo
Loading...

No reviews have been left for this object yet

Propiedades más cercanas

Explora propiedades cercanas que hemos descubierto en las proximidades de esta ubicación.

Local en venta en Playa de Poniente

Alicante, Benidorm, Playa de Poniente
120 000 €

Esta descripción ha sido traducida automáticamente y puede que no sea muy precis...

0
0 opiniones

Local en venta en Centro Urbano

Alicante, La Villajoyosa / Vila Joiosa, Centro urbano
105 000 €

Local en el centro de Villajoyosa, con luz y agua, con una fachada de 10 metros...

0
0 opiniones

Local en Playa de Poniente

Alicante, Benidorm, Playa de Poniente, Playa de Poniente
115 000 €

Local totalmente reformado y listo para usar con acabados de alta calidad; suelo...

0
0 opiniones

Local en calle Pajares

Alicante, Benidorm, Playa de Poniente, Calle Pajares
115 000 €

**Local en Venta en Benidorm - Oportunidad Única para Inversores** Descubre este...

0
0 opiniones

Local en calle de la Torre les Maçanes, 12

Alicante, Benidorm, Playa de Poniente, Calle de la Torre les Maçanes, 12
125 000 €

Se vende local comercial de 73 m² en una ubicación privilegiada, en el complejo...

0
0 opiniones

Local en calle Santander

Alicante, Benidorm, Playa de Poniente, Calle Santander
880 000 €

Fantastica oportunidad de inversión. Negocio en pleno funcionamiento. Se vende p...

0
0 opiniones

Local en calle del Actor Luis Prendes

Alicante, Benidorm, Playa de Poniente, Calle del Actor Luis Prendes
180 000 €

Fantástico local comercial situado en Cala de Benidorm - Zona Hotel Bali, situad...

0
0 opiniones

Local en calle Santander, 16

Alicante, Benidorm, Playa de Poniente, Calle Santander, 16
350 000 €

Se vende fabuloso local de esquina en 2ª línea de la Playa de Poniente de Benido...

0
0 opiniones

Local en calle Pajares, 1

Alicante, Benidorm, Playa de Poniente, Calle Pajares, 1
115 000 €

Se vende local comercial nuevo, llave en mano – 115.000 € a pie de la calle ubic...

0
0 opiniones
Llamada

Utilizamos cookies propias y de terceros para analizar el uso del sitio web y mostrarte publicidad relacionada con tus preferencias sobre la base de un perfil elaborado a partir de tus hábitos de navegación (por ejemplo, páginas visitadas). Más información. ¿Aceptas las cookies?