Terreno en Cap Martí - Pinomar

Alicante, Jávea/Xàbia, Cap Martí - Pinomar, Cap Martí - Pinomar
249 000 €
Dejar reseña
Urbano Tipo de propiedad
1 024 m² Superficie del terreno
Si Suministro de electricidad
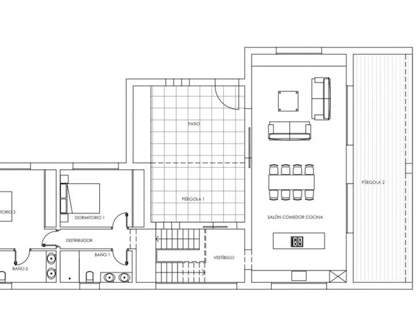
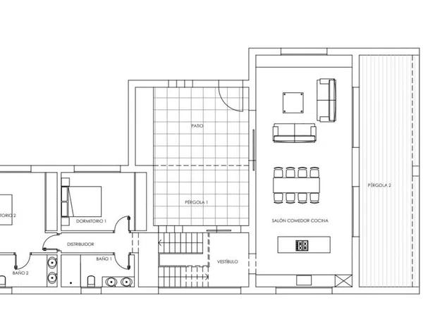
Esta parcela tiene 1024 m2 y existe un proyecto con licencia de construcción. El proyecto es para construir una villa de diseño moderno con 2 plantas. Tiene 3 dormitorios, 2 baños, un amplio salón, terraza cubierta, piscina infinita, patio en la villa y carport.  La propiedad se encuentra en un callejón sin salida y por lo tanto en un entorno tranquilo, la playa del arenal es de unos 7-10 minutos en coche. La villa tiene una superficie habitable de 190m2 y también hay un sótano extra donde se puede hacer algunos dormitorios, baños, gimnasio. La villa puede tener una construcción extra de 30 m2 de superficie habitable Las fotos de la villa construida solo muestran el diseño del proyecto de construcción, la propiedad a construir será diferente La parcela está a 8 km de la ciudad, a 9 km de la playa, a 10 km de la autopista y a 103 km del aeropuerto de Alicante.

Características de la propiedad

Complex information

  • Tipo de propiedad
    Urbano

Datos de la propiedad

  • Tipo de diseño
    Moderno
  • Tipo de la propiedad
    Segunda mano

Superficies

  • Superficie del terreno
    1 024 m²

Base

  • Suministro de electricidad
    Si

Instalaciones

Suministro:

Con electricidad

Planos

Estadísticas de precios del mercado para Terreno en Cap Martí - Pinomar

Mapa

Alicante, Jávea/Xàbia, Cap Martí - Pinomar, Cap Martí - Pinomar Ir a la propiedad
Deja una opinión sobre Terreno en Cap Martí - Pinomar
0
0 reseñas
1
0% (0)
2
0% (0)
3
0% (0)
4
0% (0)
5
0% (0)
Select Estates Altea
249 000 €
Contactar con la plataforma

para obtener más información contacta con el catálogo

REF: 178770

Opiniones sobre Terreno en Cap Martí - Pinomar
Loading...

No reviews have been left for this object yet

Propiedades más cercanas

Explora propiedades cercanas que hemos descubierto en las proximidades de esta ubicación.

Terreno en venta en calle del Mar de Bering s/n

Alicante, Jávea/Xàbia, Partida Comunes-Adsubia, Calle del Mar de Bering s/n
280 000 €

Esta descripción ha sido traducida automáticamente y puede que no sea muy precis...

0
0 opiniones

Parcela bien situada con proyecto para construir una villa moderna Javea (Cansalades)

Alicante, Jávea/Xàbia
1 089 000 €

Esta villa con arquitectura moderna será construida por un promotor francés con...

0
0 opiniones

Terreno en calle Vicent Boix, 333

Alicante, Jávea/Xàbia, La Granadella - Costa Nova, Calle Vicent Boix, 333
145 000 €

Parcela en venta en Javea Costa Nova. Esta parcela plana de 1.000m2 se encuentra...

0
0 opiniones

Terreno en Cap Martí - Pinomar

Alicante, Jávea/Xàbia, Cap Martí - Pinomar, Cap Martí - Pinomar
269 000 €

Parcela de 1000 m2 para construir un chalet de lujo de 190 m2 Posible con proyec...

0
0 opiniones

Terreno en La Granadella - Costa Nova

Alicante, Jávea/Xàbia, La Granadella - Costa Nova, La Granadella - Costa Nova
157 500 €

RANDOF Real Estate con oficinas ubicadas en Dénia, Jávea y Moraira le ofrece una...

0
0 opiniones

Terreno en Partida Comunes-Adsubia

Alicante, Jávea/Xàbia, Partida Comunes-Adsubia, Partida Comunes-Adsubia
240 000 €

RANDOF Real Estate con oficinas ubicadas en Dénia, Jávea y Moraira le ofrece est...

0
0 opiniones

Terreno en La Granadella - Costa Nova

Alicante, Jávea/Xàbia, La Granadella - Costa Nova, La Granadella - Costa Nova
2 000 000 €

Parcela con orientación sur en venta junto a la playa de la Granadella. Esta par...

0
0 opiniones

Terreno en Portichol - Balcón al Mar

Alicante, Jávea/Xàbia, Portichol - Balcón al Mar, Portichol - Balcón al Mar
300 000 €

Parcela con una bonita vista y con posibilidad de comprar la parcela colindante.

0
0 opiniones

Terreno en calle de la Violeta

Alicante, Jávea/Xàbia, Cap Martí - Pinomar, Calle de la Violeta
220 000 €

Parcela Urbana en Venta en Tosalet III, Jávea, Costa Blanca. Esta bonita parcela...

0
0 opiniones
Llamada

Utilizamos cookies propias y de terceros para analizar el uso del sitio web y mostrarte publicidad relacionada con tus preferencias sobre la base de un perfil elaborado a partir de tus hábitos de navegación (por ejemplo, páginas visitadas). Más información. ¿Aceptas las cookies?