España Urbano España Urbano Alicante Urbano Jávea/Xàbia Terreno en Urbanizacion Balcon al Mar c

Terreno en Urbanizacion Balcon al Mar c

Alicante, Jávea/Xàbia, Portichol - Balcón al Mar, Urbanizacion Balcon al Mar C
225 000 €
Dejar reseña
Urbano Tipo de propiedad
844 m² Superficie del terreno
Concedida Licencia de obra
Si Suministro de agua
Acceso via urbana Tipo de acceso
Si Suministro de electricidad
Residencial Uso de parcela
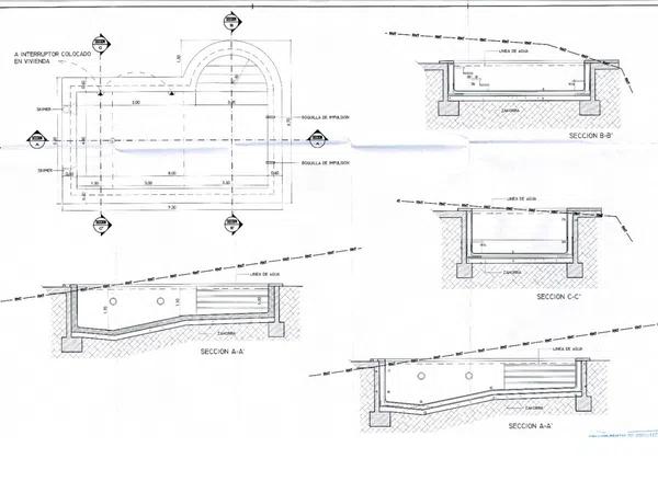
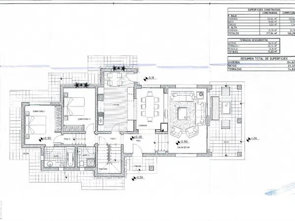
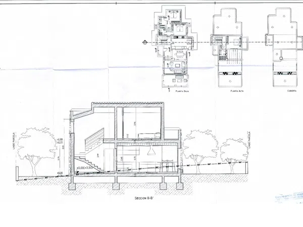
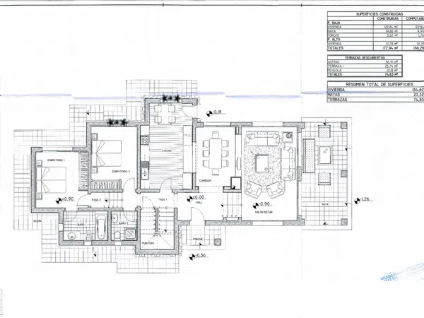
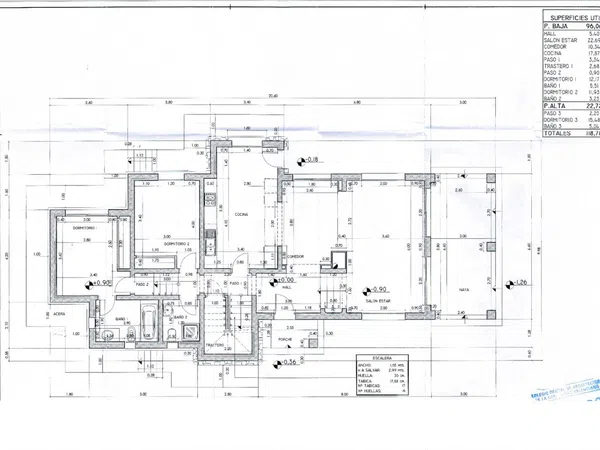
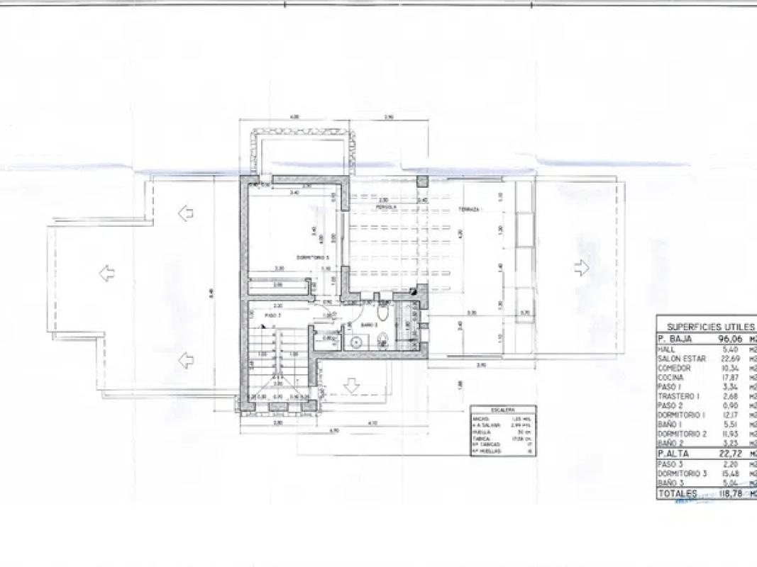
Parcela a la Venta en Balcon al Marcon licencia de Construccion concedida, a pocos minutos del arenal y todos sus servicios. Parcela urbana con una suave pendiente y de 844m2, y con una construccion total de 177 m2. Parcela con proyecto ylicencia concedida, listo para empezar a construir, villa distribuida en 2plantas, con tresdormitorios, 3baños, (2en suite), living y comedor con amplios ventanales hacia la terraza, cocina semi integrada, lavadero, piscina de 8 x 4 mts, estacionamiento para 3 coches. Consulte con nuestros agentespor Mayor Informacion!

Características de la propiedad

Complex information

  • Tipo de propiedad
    Urbano

Información del proyecto / Estado de obra

  • Licencia de obra
    Concedida

Datos de la propiedad

  • Tipo de la propiedad
    Segunda mano

Superficies

  • Superficie del terreno
    844 m²

Base

  • Suministro de agua
    Si
  • Suelo urbano
    Consolidado (Solar)
  • Tipo de acceso
    Acceso via urbana
  • Suministro de electricidad
    Si
  • Uso de parcela
    Residencial

Instalaciones

Suministro:

Con agua
Con electricidad

Uso del suelo:

Residencial

Estadísticas de precios del mercado para Terreno en Urbanizacion Balcon al Mar c

Mapa

Alicante, Jávea/Xàbia, Portichol - Balcón al Mar, Urbanizacion Balcon al Mar C Ir a la propiedad
Deja una opinión sobre Terreno en Urbanizacion Balcon al Mar c
0
0 reseñas
1
0% (0)
2
0% (0)
3
0% (0)
4
0% (0)
5
0% (0)
MG Villas Luxury Property
225 000 €
Contactar con la plataforma

para obtener más información contacta con el catálogo

REF: 161201

Opiniones sobre Terreno en Urbanizacion Balcon al Mar c
Loading...

No reviews have been left for this object yet

Propiedades más cercanas

Explora propiedades cercanas que hemos descubierto en las proximidades de esta ubicación.

Parcela bien situada con proyecto para construir una villa moderna Javea (Cansalades)

Alicante, Jávea/Xàbia
1 089 000 €

Esta villa con arquitectura moderna será construida por un promotor francés con...

0
0 opiniones

Terreno en calle Vicent Boix, 333

Alicante, Jávea/Xàbia, La Granadella - Costa Nova, Calle Vicent Boix, 333
145 000 €

Parcela en venta en Javea Costa Nova. Esta parcela plana de 1.000m2 se encuentra...

0
0 opiniones

Terreno en Cap Martí - Pinomar

Alicante, Jávea/Xàbia, Cap Martí - Pinomar, Cap Martí - Pinomar
269 000 €

Parcela de 1000 m2 para construir un chalet de lujo de 190 m2 Posible con proyec...

0
0 opiniones

Terreno en La Granadella - Costa Nova

Alicante, Jávea/Xàbia, La Granadella - Costa Nova, La Granadella - Costa Nova
157 500 €

RANDOF Real Estate con oficinas ubicadas en Dénia, Jávea y Moraira le ofrece una...

0
0 opiniones

Terreno en Partida Comunes-Adsubia

Alicante, Jávea/Xàbia, Partida Comunes-Adsubia, Partida Comunes-Adsubia
240 000 €

RANDOF Real Estate con oficinas ubicadas en Dénia, Jávea y Moraira le ofrece est...

0
0 opiniones

Terreno en La Granadella - Costa Nova

Alicante, Jávea/Xàbia, La Granadella - Costa Nova, La Granadella - Costa Nova
2 000 000 €

Parcela con orientación sur en venta junto a la playa de la Granadella. Esta par...

0
0 opiniones

Terreno en Portichol - Balcón al Mar

Alicante, Jávea/Xàbia, Portichol - Balcón al Mar, Portichol - Balcón al Mar
300 000 €

Parcela con una bonita vista y con posibilidad de comprar la parcela colindante.

0
0 opiniones

Terreno en calle de la Violeta

Alicante, Jávea/Xàbia, Cap Martí - Pinomar, Calle de la Violeta
220 000 €

Parcela Urbana en Venta en Tosalet III, Jávea, Costa Blanca. Esta bonita parcela...

0
0 opiniones

Terreno en Polígon Pp Cds Girasoles, 70

Alicante, Benitachell, Cumbre del Sol, Polígon Pp Cds Girasoles, 70
150 000 €

"Construye tu paraíso en Cumbre del Sol. Esta parcela, estratégicamente ubicada,...

0
0 opiniones
Llamada

Utilizamos cookies propias y de terceros para analizar el uso del sitio web y mostrarte publicidad relacionada con tus preferencias sobre la base de un perfil elaborado a partir de tus hábitos de navegación (por ejemplo, páginas visitadas). Más información. ¿Aceptas las cookies?