Venta de piso en Calle Patricio Perez, Torrevieja

Alicante, Torrevieja, centro, Calle Patricio Perez
299 000 €
1 087 € / m2
Dejar reseña
Apartamentos Tipo de propiedad
5 Dormitorios
1968 Año de entrega
275 m² m2 construidos
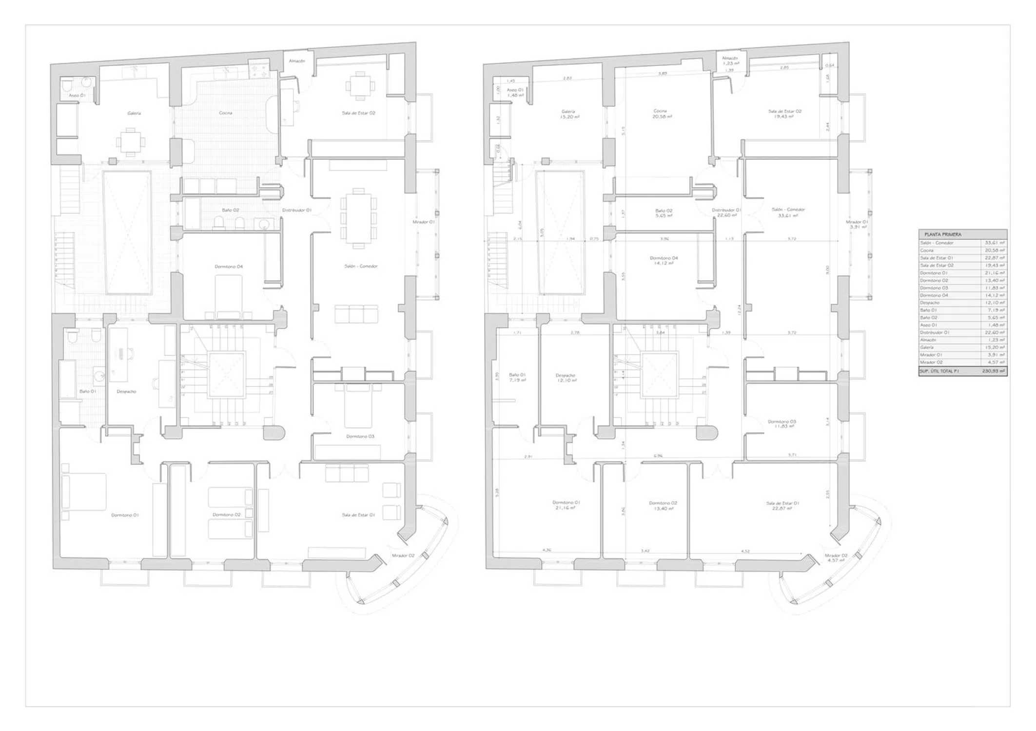
230 m² m2 útiles
2 Baños
1 Planta
A reformar Estado inmueble
**Piso en Venta en el Corazón de Torrevieja** ¡Descubre este impresionante piso de 5 dormitorios en el centro de Torrevieja! Con una superficie construida de 275 m² y 230 m² útiles, este amplio espacio ofrece un sinfín de posibilidades. Situado en la primera planta de un edificio sin ascensor, cuenta con dos amplios salones que invitan a disfrutar de momentos inolvidables en familia o con amigos. La gran cocina, que se conecta a una terraza acristalada, es el lugar perfecto para dar rienda suelta a la creatividad culinaria. Este inmueble no solo es ideal para quienes buscan un hogar espacioso, sino que también presenta una excelente oportunidad de inversión. Con la posibilidad de convertirlo en tres apartamentos independientes, puedes aprovechar su gran potencial para alquiler o venta separada. Además, cuenta con armarios empotrados que optimizan el espacio y ofrecen comodidad. A pesar de ser una propiedad de segunda mano y necesitar reformas, su ubicación privilegiada y su distribución hacen de este piso una opción única en el mercado. No dejes pasar la oportunidad de adquirir este gran piso en Torrevieja, donde la vida urbana se combina con la cercanía a las hermosas playas. ¡Contáctanos para más información y ven a verlo!

Características de la propiedad

Complex information

  • Tipo de propiedad
    Apartamentos

Información del proyecto / Estado de obra

  • Año de entrega
    1968
  • Estado inmueble
    A reformar

Datos de la propiedad

  • Planta
    1
  • Dormitorios
    5
  • Baños
    2
  • m2 construidos
    275 m²
  • m2 útiles
    230 m²
  • Tipo de la propiedad
    Segunda mano

Base

Certificación energética

  • Consumo energético
    G

Instalaciones

Comodidades de la vivienda:

Terraza

Estado:

Para ser reformado

Estadísticas de precios del mercado para Piso en calle Patricio Perez

291 329 € (3 238 €/m2)
Precio promedio de propiedades primarias Apartamentos en la ciudad Torrevieja
185 610 € (2 309 €/m2)
Precio promedio de propiedades secundarias Apartamentos en la ciudad Torrevieja

Mapa

Alicante, Torrevieja, centro, Calle Patricio Perez Ir a la propiedad
Deja una opinión sobre Piso en calle Patricio Perez
0
0 reseñas
1
0% (0)
2
0% (0)
3
0% (0)
4
0% (0)
5
0% (0)
House in Spain Invest
299 000 €
desde 1 087 € / m2
Contactar con la plataforma

para obtener más información contacta con el catálogo

REF: 385983

Opiniones sobre Piso en calle Patricio Perez
Loading...

No reviews have been left for this object yet

Propiedades más cercanas

Explora propiedades cercanas que hemos descubierto en las proximidades de esta ubicación.

Apartamentos en Venta en Calle Pleamar, 22, Torrevieja

Alicante, Torrevieja, El Acequión - Los Náufragos, Calle Pleamar, 22
393 000 €

Un sueño, el mar, tu hogar Ocean Dream by TM se encuentra en la privilegiada zon...

0
0 opiniones

Apartamentos en Venta en Calle Pleamar, 22, Torrevieja

Alicante, Torrevieja, El Acequión - Los Náufragos, Calle Pleamar, 22
246 000 €

Un sueño, el mar, tu hogar Ocean Dream by TM se encuentra en la privilegiada zon...

0
0 opiniones

Apartamentos en Venta en Calle Pleamar, 22, Torrevieja

Alicante, Torrevieja, El Acequión - Los Náufragos, Calle Pleamar, 22
336 000 €

Un sueño, el mar, tu hogar Ocean Dream by TM se encuentra en la privilegiada zon...

0
0 opiniones

Apartamentos en Venta en Calle Pleamar, 22, Torrevieja

Alicante, Torrevieja, El Acequión - Los Náufragos, Calle Pleamar, 22
260 000 €

Un sueño, el mar, tu hogar Ocean Dream by TM se encuentra en la privilegiada zon...

0
0 opiniones

Apartamentos en Venta en Calle Pleamar, 22, Torrevieja

Alicante, Torrevieja, El Acequión - Los Náufragos, Calle Pleamar, 22
407 000 €

Un sueño, el mar, tu hogar Ocean Dream by TM se encuentra en la privilegiada zon...

0
0 opiniones

Apartamentos en Venta en Calle Pleamar, 22, Torrevieja

Alicante, Torrevieja, El Acequión - Los Náufragos, Calle Pleamar, 22
310 000 €

Un sueño, el mar, tu hogar Ocean Dream by TM se encuentra en la privilegiada zon...

0
0 opiniones

Apartamentos en Venta en Calle Pleamar, 22, Torrevieja

Alicante, Torrevieja, El Acequión - Los Náufragos, Calle Pleamar, 22
303 000 €

Un sueño, el mar, tu hogar Ocean Dream by TM se encuentra en la privilegiada zon...

0
0 opiniones

Apartamentos en Venta en Calle Pleamar, 22, Torrevieja

Alicante, Torrevieja, El Acequión - Los Náufragos, Calle Pleamar, 22
280 000 €

Un sueño, el mar, tu hogar Ocean Dream by TM se encuentra en la privilegiada zon...

0
0 opiniones

Apartamentos en Venta en Calle Pleamar, 22, Torrevieja

Alicante, Torrevieja, El Acequión - Los Náufragos, Calle Pleamar, 22
293 000 €

Un sueño, el mar, tu hogar Ocean Dream by TM se encuentra en la privilegiada zon...

0
0 opiniones
Llamada

Utilizamos cookies propias y de terceros para analizar el uso del sitio web y mostrarte publicidad relacionada con tus preferencias sobre la base de un perfil elaborado a partir de tus hábitos de navegación (por ejemplo, páginas visitadas). Más información. ¿Aceptas las cookies?