Venta de ático en CL RODRIGO, 389, Torrevieja

Alicante, Torrevieja, La Siesta - El Salado - Torreta, CL RODRIGO, 389
140 000 €
2 545 € / m2
Dejar reseña
Áticos Tipo de propiedad
1997 Año de entrega
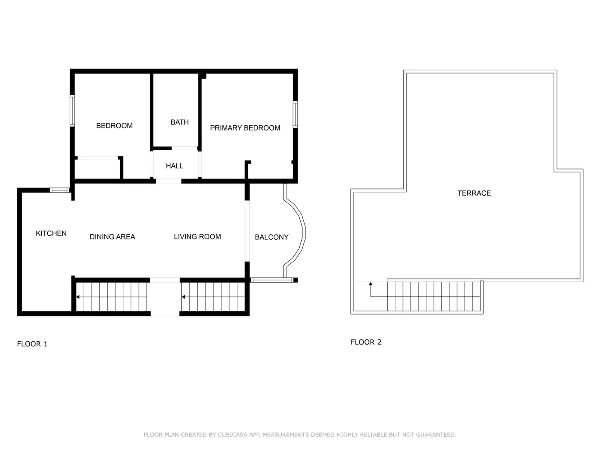
55 m² m2 construidos
1 Baños
2 Dormitorios
Bomba de frío/calor Calefacción
1 Planta
Buen estado Estado inmueble
Bienvenido al ambiente tranquilo de El Chaparral, un barrio donde el calor del Mediterráneo se encuentra con senderos naturales y la emblemática laguna rosa. Este encantador bungalow en planta alta ofrece una vivienda acogedora y un solárium privado donde la rutina diaria se convierte en vacaciones. Distribución funcional y solárium privado La vivienda dispone de dos dormitorios, un baño, cocina y un salón que da acceso a un balcón cubierto. Cuenta con tres bombas de calor (aire acondicionado inverter), una en cada estancia principal, lo que garantiza un ambiente confortable durante todo el año. Una escalera exterior conduce al solárium privado: un espacio ideal para tomar el sol, hacer barbacoas o disfrutar del primer café del día mientras amanece sobre la ciudad y el cielo se extiende en todas direcciones. Piscina comunitaria para mayor comodidad La comunidad dispone de una piscina que añade valor a la vivienda y ofrece la posibilidad de refrescarse en los días cálidos. Es un extra que convierte la rutina en un estilo de vida relajado, sin salir de casa. El entorno tranquilo y bien conectado de El Chaparral El Chaparral es conocido por su entorno apacible, calles verdes y cercanía a la naturaleza. En la zona encontrarás restaurantes, cafeterías y servicios esenciales. También hay un gran parque municipal muy popular con pistas de pádel, zonas infantiles y gimnasio al aire libre. Además, a pocos pasos se encuentra el parque natural de Torrevieja–La Mata, ideal para paseos tranquilos y actividades al aire libre. Este bungalow es ideal para quienes buscan una vida fácil y agradable con espacio exterior privado, en un entorno natural pero con todos los servicios cerca. Ven a visitarlo – este hogar te enamorará con su encanto.

Características de la propiedad

Complex information

  • Tipo de propiedad
    Áticos

Información del proyecto / Estado de obra

  • Año de entrega
    1997
  • Estado inmueble
    Buen estado

Memoria de Calidades

  • Calefacción
    Bomba de frío/calor

Datos de la propiedad

  • Planta
    1
  • Dormitorios
    2
  • Baños
    1
  • m2 construidos
    55 m²
  • Orientación
    Sur
  • Tipo de la propiedad
    Segunda mano

Base

Certificación energética

  • Estado de certificado energético
    En tramite

Instalaciones

Comodidades de la vivienda:

Aire acondicionado
Terraza

En edificio:

Piscina

Estado:

Buen estado

Estadísticas de precios del mercado para Ático en CL Rodrigo, 389

375 614 € (2 873 €/m2)
Precio promedio de propiedades primarias Áticos en la ciudad Torrevieja
230 528 € (2 632 €/m2)
Precio promedio de propiedades secundarias Áticos en la ciudad Torrevieja
342 500 € (2 238 €/m2)
Precio promedio de propiedades primarias Áticos en el distrito La Siesta - El Salado - Torreta
133 520 € (1 925 €/m2)
Precio promedio de propiedades secundarias Áticos en el distrito La Siesta - El Salado - Torreta

Mapa

Alicante, Torrevieja, La Siesta - El Salado - Torreta, CL RODRIGO, 389 Ir a la propiedad
Deja una opinión sobre Ático en CL Rodrigo, 389
0
0 reseñas
1
0% (0)
2
0% (0)
3
0% (0)
4
0% (0)
5
0% (0)
OnsaleHomes Real Estate S.l
140 000 €
desde 2 545 € / m2
Contactar con la plataforma

para obtener más información contacta con el catálogo

REF: 433434

Opiniones sobre Ático en CL Rodrigo, 389
Loading...

No reviews have been left for this object yet

Propiedades más cercanas

Explora propiedades cercanas que hemos descubierto en las proximidades de esta ubicación.

Ático en calle Villa Madrid, 43

Alicante, Torrevieja, Centro, Calle Villa Madrid, 43
175 000 €

¡Descubre tu nuevo hogar en este espectacular ático ubicado en el corazón de Tor...

0
0 opiniones

Ático en calle Maria Parodi

Alicante, Torrevieja, Centro, Calle Maria Parodi
290 000 €

Descubre este exclusivo penthouse en Torrevieja, una propiedad única con vistas...

0
0 opiniones

Ático en avenida Diego Ramírez Pastor

Alicante, Torrevieja, Centro, Avenida Diego Ramírez Pastor
139 900 €

Ático en Torrevieja zona torrevieja, 62 m. de superficie, 15 m2 de terraza, 750...

0
0 opiniones

Áticos en Venta en Ramón Gallud 211, Torrevieja

Alicante, Torrevieja, Playa El Cura, Ramón Gallud 211
329 000 €

0
0 opiniones

Áticos en Venta en La Loma 55, Torrevieja

Alicante, Torrevieja, centro, La Loma 55
270 000 €

0
0 opiniones

Áticos en Venta en Mar Báltico esq Islandia , Los Alcázares

Murcia, Los Alcázares, Los Locos, Mar Báltico esq Islandia
449 950 €

0
0 opiniones

Áticos en Venta en Mar Báltico esq Islandia , Los Alcázares

Murcia, Los Alcázares, Los Locos, Mar Báltico esq Islandia
425 950 €

0
0 opiniones

Áticos en Venta en Mar Baltico 27, Torrevieja

Alicante, Torrevieja, Playa de los Locos, Mar Baltico 27
459 900 €

0
0 opiniones

Áticos en Venta en Mar Baltico 27, Torrevieja

Alicante, Torrevieja, Playa de los Locos, Mar Baltico 27
425 950 €

0
0 opiniones
Llamada

Utilizamos cookies propias y de terceros para analizar el uso del sitio web y mostrarte publicidad relacionada con tus preferencias sobre la base de un perfil elaborado a partir de tus hábitos de navegación (por ejemplo, páginas visitadas). Más información. ¿Aceptas las cookies?