Local en rentabilidad en calle Segovia

Alicante, Torrevieja, La Mata, Calle Segovia
225 000 €
563 € / m2
Dejar reseña
Locales comerciales Tipo de propiedad
400 m² m2 construidos
1 Baños
Buen estado Estado inmueble
Se vende local comercial en funcionamiento con negocio de trasteros – Rentabilidad del 7% Oportunidad de inversión en La Loma de la Mata, Torrevieja, una zona de alta demanda gracias al turismo y la presencia de numerosas segundas residencias. El local cuenta actualmente con 19 trasteros en funcionamiento, generando una rentabilidad neta del 7%, con posibilidad de ampliación hasta el doble de unidades, lo que incrementaría significativamente la rentabilidad del negocio. Negocio consolidado, ideal para inversores que buscan una inversión segura, rentable y con gestión sencilla. La zona ofrece una gran demanda de almacenamiento por parte de residentes, propietarios de segundas viviendas y pequeños negocios locales. No dudes en pedir más información o concertar una visita.

Características de la propiedad

Complex information

  • Tipo de propiedad
    Locales comerciales

Información del proyecto / Estado de obra

  • Estado inmueble
    Buen estado

Datos de la propiedad

  • Baños
    1
  • m2 construidos
    400 m²
  • Tipo de la propiedad
    Segunda mano

Instalaciones

Estado:

Buen estado

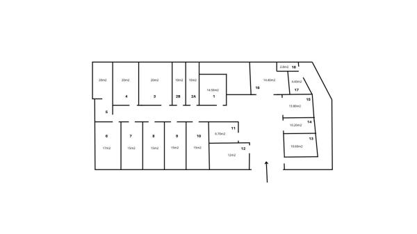
Planos

Estadísticas de precios del mercado para Local en rentabilidad en calle Segovia

Mapa

Alicante, Torrevieja, La Mata, Calle Segovia Ir a la propiedad
Deja una opinión sobre Local en rentabilidad en calle Segovia
0
0 reseñas
1
0% (0)
2
0% (0)
3
0% (0)
4
0% (0)
5
0% (0)
SolerSáez
225 000 €
desde 563 € / m2
Contactar con la plataforma

para obtener más información contacta con el catálogo

REF: 321444

Opiniones sobre Local en rentabilidad en calle Segovia
Loading...

No reviews have been left for this object yet

Propiedades más cercanas

Explora propiedades cercanas que hemos descubierto en las proximidades de esta ubicación.

Local en venta en avenida del Mar

Alicante, Ciudad Quesada
3 800 000 €

Nos complace presentarles este compejo empresarial en el cual se integran 4 nego...

0
0 opiniones

Local en venta en avenida de Holanda

Alicante, Torrevieja, La Mata, Avenida de Holanda
175 000 €

Gran Oportunidad, se trata de cuatro bajos comerciales en planta baja y sótano p...

0
0 opiniones

Local en venta en calle José Martínez Ruiz Azorín

Alicante, Torrevieja, Centro, Calle José Martínez Ruiz Azorín
650 000 €

Local diáfano de 200m2 construidos en 2 plantas, con 100m2 en planta calle, 80m2...

0
0 opiniones

Local en camino del Raso, 15

Alicante, Guardamar del Segura, Urbanizaciones, Camino del Raso, 15
25 000 €

Negocio existente en venta, cafetería dominical en Gardamar, mercado del limoner...

0
0 opiniones

Local en Urbanizaciones

Alicante, Guardamar del Segura, Urbanizaciones, Urbanizaciones
160 000 €

LOCAL COMERCIAL con TERRAZA en EL RASO PROPIEDAD: REF (CM002-N-D) ENTREGA IN...

0
0 opiniones

Local en calle el Moll

Alicante, Guardamar del Segura, Urbanizaciones, Calle el Moll
1 800 000 €

Gran Edificio comercial de 2.640 m2 en Guardamar, a tan solo 200mts de la Playa...

0
0 opiniones

Local en calle de Orihuela

Alicante, Torrevieja, Centro, Calle de Orihuela
295 000 €

Local comercial en venta de 305 m² con opción de dividir en 4 espacios y traster...

0
0 opiniones

Local en Barrio Centro - Muelle Pesquero

Alicante, Torrevieja, Centro, Barrio Centro - Muelle Pesquero
110 000 €

Presentamos este amplio local de 178 m² ubicado en pleno centro de Torrevieja (A...

0
0 opiniones

Local en Barrio Centro - Muelle Pesquero

Alicante, Torrevieja, Centro, Barrio Centro - Muelle Pesquero
121 050 €

Local en Venta en Torrevieja - Oportunidad Única para Inversores Descubre esta f...

0
0 opiniones

Utilizamos cookies propias y de terceros para analizar el uso del sitio web y mostrarte publicidad relacionada con tus preferencias sobre la base de un perfil elaborado a partir de tus hábitos de navegación (por ejemplo, páginas visitadas). Más información. ¿Aceptas las cookies?