España Obra nueva España Obra nueva Asturias Obra nueva Siero San Angel Casa o chalet independiente en venta en Urbanizacion Barganiza, 601

Venta de chalet independiente en Urbanización Barganiza, 601, Siero

Asturias, Siero, Parroquias Norte, Urbanización Barganiza, 601
Agotado
Dejar reseña
Chalet independiente Tipo de propiedad
2027 Año de entrega
215 m² m2 construidos
5 Baños
4 Dormitorios
Incluido en el precio Garaje
1 Planta
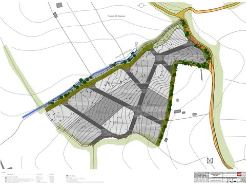
Tierra Verde Real Estate pone a la venta San Ángel, una urbanización exclusiva de 10 chalets en régimen de autopromotor. Ubicada en un entorno privilegiado en Siero, esta urbanización se encuentra a tan solo 12 minutos de Oviedo, 15 minutos de Gijón y 20 minutos de Avilés, brindando una conexión excelente con las principales ciudades de la región. A pocos metros de la propiedad se encuentra el Club de Golf La Barganiza, y la zona está rodeada de excelentes colegios privados como El Colegio Inglés y el Colegio Peñamayor, lo que la convierte en un lugar ideal para familias. El proyecto está diseñado por los prestigiosos VA Arquitectos, con el diseño de interiores a cargo de la renombrada Claudia Ornelas. Las parcelas, con orientación sur, ofrecen vistas impresionantes y aprovechan al máximo la luz natural, y cada una tiene un tamaño que varía entre 1.250 m² y 1.500 m². La calificación energética A garantiza una alta eficiencia y sostenibilidad, lo que hace de este proyecto una opción ideal para quienes buscan vivir en armonía con la naturaleza, sin sacrificar la comodidad ni el diseño moderno. El proyecto incluye trámites, certificación y construcción, adaptándose a las necesidades de cada comprador en función de los metros de construcción deseados. Ya sea para quienes buscan un hogar exclusivo en un entorno tranquilo, rodeados de naturaleza, o para aquellos que desean invertir en una propiedad con alto potencial de alquiler, San Ángel ofrece una opción única.

Características de la propiedad

Complex information

  • Complejo residencial
    San Angel
  • Tipo de propiedad
    Chalet independiente

Información del proyecto / Estado de obra

  • Año de entrega
    2027

Datos de la propiedad

  • Garaje
    Incluido en el precio
  • Planta
    1
  • Dormitorios
    4
  • Baños
    5
  • m2 construidos
    215 m²
  • Tipo de diseño
    Moderno
  • Tipo de la propiedad
    Obra nueva

Certificación energética

  • Consumo energético
    A

Planos

Estadísticas de precios del mercado para Casa o chalet independiente en venta en Urbanizacion Barganiza, 601

612 562 € (2 706 €/m2)
Precio promedio de propiedades primarias Chalet independiente en la ciudad Siero
664 615 € (2 977 €/m2)
Precio promedio de propiedades primarias Chalet independiente en el distrito Parroquias Norte

Mapa

Asturias, Siero, Parroquias Norte, Urbanización Barganiza, 601 Ir a la propiedad
Deja una opinión sobre Casa o chalet independiente en venta en Urbanizacion Barganiza, 601
0
0 reseñas
1
0% (0)
2
0% (0)
3
0% (0)
4
0% (0)
5
0% (0)
San Angel
Complejo residencial
Agotado
Contactar con la plataforma

para obtener más información contacta con el catálogo

REF: 211743

Opiniones sobre Casa o chalet independiente en venta en Urbanizacion Barganiza, 601
Loading...

No reviews have been left for this object yet

Propiedades más cercanas

Explora propiedades cercanas que hemos descubierto en las proximidades de esta ubicación.

Casa en venta de 413 m² Camino Del Pimpam, (Viella) 33429 Siero (Asturias)

Asturias, Siero
460 000 €

Llámanos y visita esta vivienda. Gran casa de 413 m² de superficie y 1400 m² de...

0
0 opiniones

Chalet en venta de 304 m² Calle las Gardenias33423 Llanera (Asturias)

Lleida, Llanera
348 000 €

De particular a particular. Llámanos y visita esta vivienda. Gran chalet de 304...

0
0 opiniones

Casa o chalet independiente en venta en El Pico Llanera s/n

Asturias, Llanera
319 000 €

Descubre los inmuebles disponibles en la exclusiva zona de El pico de Pruvia. Se...

0
0 opiniones

Casa o chalet independiente en venta en El Pico Llanera s/n

Asturias, Llanera
359 000 €

Descubre los inmuebles disponibles en la exclusiva zona de El pico de Pruvia. Se...

0
0 opiniones

Casa o chalet independiente en venta en El Pico Llanera s/n

Asturias, Llanera
319 000 €

Descubre los inmuebles disponibles en la exclusiva zona de El pico de Pruvia. Se...

0
0 opiniones

Casa o chalet independiente en venta en El Pico Llanera s/n

Asturias, Llanera
319 000 €

Descubre los inmuebles disponibles en la exclusiva zona de El pico de Pruvia. Se...

0
0 opiniones

Casa o chalet independiente en venta en El Pico Llanera s/n

Asturias, Llanera
319 000 €

Descubre los inmuebles disponibles en la exclusiva zona de El pico de Pruvia. Se...

0
0 opiniones

Casa o chalet independiente en venta en El Pico Llanera s/n

Asturias, Llanera
319 000 €

Descubre los inmuebles disponibles en la exclusiva zona de El pico de Pruvia. Se...

0
0 opiniones

Casa o chalet independiente en venta en El Pico Llanera s/n

Asturias, Llanera
319 000 €

Descubre los inmuebles disponibles en la exclusiva zona de El pico de Pruvia. Se...

0
0 opiniones

Utilizamos cookies propias y de terceros para analizar el uso del sitio web y mostrarte publicidad relacionada con tus preferencias sobre la base de un perfil elaborado a partir de tus hábitos de navegación (por ejemplo, páginas visitadas). Más información. ¿Aceptas las cookies?