Viviendas y Talleres nuevos disponibles en este proyecto singular diseñado para crear un entorno moderno, sostenible y saludable, con todas las comodidades en el centro de Barcelona.Se trata de una rehabilitación integral de una antigua fábrica textil de 1833, creando un total de 50 viviendas de estilo neoyorquino de diferentes tipologías con 1, 2 o 3 habitaciones, zonas comunes incluyen piscina y zona solárium con impresionantes vistas a la ciudad. Las viviendas en la última planta tendrán asignado el uso privativo de terrazas en la cubierta. Todas las viviendas son exteriores o calle con balcones o a zona comunitaria con galería. Además el edificio contará con huertos urbanos, jardines verticales, sistema de climatización por Aero termia, servicio conserjería, video vigilancia 24h, reciclaje de aguas pluviales, parking para bicicletas y un atrio en medio del complejo lleno de tragaluces y árboles.Todas las viviendas se han provisto de materiales naturales de la más alta calidad y disponen de algunos elementos recuperados. Las cocinas están totalmente equipadas. Los apartamentos y lofts disponen de grandes ventanales, con acceso directo a jardines o terrazas o balcones, según su ubicación.Una oportunidad única para vivir una nueva experiencia en la ciudad.
Características de la propiedad
Complex information
Complejo residencial
Calle Riereta
Tipo de propiedad
Apartamentos
Datos de la propiedad
Equipamiento de cocina
Equipada
Dormitorios
1
Baños
1
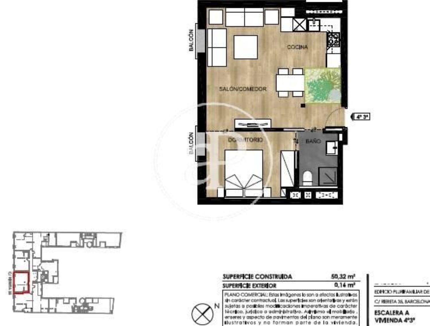
m2 construidos
50 m²
Tipo de la propiedad
Obra nueva
Certificación energética
Consumo energético
C
Instalaciones
Comodidades de la vivienda:
Calefacción
Ventana exterior
Terraza
Balcón
Suministro:
Con agua
En edificio:
Piscina
Ascensor
Bar
Jardin
Estado:
Obra nueva
Estadísticas de precios del mercado para Piso en venta en calle Riereta
775 962 € (7 954 €/m2)
Precio promedio de propiedades primarias Apartamentos en la ciudad Barcelona
434 385 € (4 489 €/m2)
Precio promedio de propiedades secundarias Apartamentos en la ciudad Barcelona
573 061 € (6 961 €/m2)
Precio promedio de propiedades primarias Apartamentos en el distrito Ciutat Vella
Piso de 219m² con 4 habitaciones y terraza comunitaria con piscina en 2ª planta...
0
0 opiniones
La finalidad de la recogida de sus datos es para poder atender a su solicitud de información, a través de la propia empresa gestora de la vivienda, sin cederlos a otros terceros, siendo responsable del tratamiento Propiedad Inmobiliaria Online SL La legitimación se basa en su propio consentimiento, teniendo usted derecho a acceder, rectificar y suprimir los datos, así como otros derechos, tal y como se explica en Política de Privacidad
Utilizamos cookies propias y de terceros para analizar el uso del sitio web y mostrarte publicidad relacionada con tus preferencias sobre la base de un perfil elaborado a partir de tus hábitos de navegación (por ejemplo, páginas visitadas). Más información. ¿Aceptas las cookies?
¡Descubra las ventajas de registrarse!
Le invitamos a registrarse para aprovechar una serie de ventajas:
Posibilidad de guardar objetos favoritos
Guardar búsquedas para un acceso rápido
Acceso a contactos directos
Autocompletar sus datos en los formularios
¡Y esto es solo una pequeña parte! Descubra muchas otras funciones y ventajas disponibles exclusivamente para los usuarios registrados.
Una cookie es un pequeño archivo de información que se guarda en su navegador cada vez que visita nuestra página web. Su utilidad es guardar el historial de su actividad en nuestra página web, de manera que, cuando la visite nuevamente, ésta pueda identificarle y configurar el contenido de la misma en base a sus hábitos de navegación, identidad y preferencias.
Las cookies pueden ser aceptadas, rechazadas, bloqueadas y borradas, según desee. Ello podrá hacerlo mediante las opciones disponibles en la presente ventana o a través de la configuración de su navegador, según el caso.
En caso de que rechace las cookies no podremos asegurarle el correcto funcionamiento de las distintas funcionalidades de nuestra página web.
Permiten al usuario la navegación a través de una página web, plataforma o aplicación y la utilización de las diferentes opciones o servicios que en ella existan como, por ejemplo, controlar el tráfico y la comunicación de datos, identificar la sesión, acceder a partes de acceso restringido, recordar los elementos que integran un pedido, realizar el proceso de compra de un pedido, realizar la solicitud de inscripción o participación en un evento, utilizar elementos de seguridad durante la navegación, almacenar contenidos para la difusión de vídeos o sonido.
Estas cookies son necesarias para el buen funcionamiento de la web y no se pueden desactivar.
Analíticas
Son aquéllas que permiten al responsable de las mismas, el seguimiento y análisis del comportamiento de los usuarios de los sitios web a los que están vinculadas.
La información recogida mediante este tipo de cookies se utiliza en la medición de la actividad de los sitios web, aplicación o plataforma y para la elaboración de perfiles de navegación de los usuarios de dichos sitios, aplicaciones y plataformas, con el fin de introducir mejoras en función del análisis de los datos de uso que hacen los usuarios del servicio.
Redes sociales
Cookies de redes sociales externas: se utilizan para que los visitantes del sitio web puedan publicar contenido del mismo en las redes sociales o interactuar con las diferentes plataformas sociales de las que son usuarios (Facebook, Twitter, Whatsapp, Pinterest, LinkedIn, etc.). Las condiciones de utilización de estas cookies y la información recopilada se recogen y regulan en la política de privacidad de la red social correspondiente.