Venta de chalet adosado en Laureà Miró , Sant Feliu de Llobregat

Barcelona, Sant Feliu de Llobregat, Centre, Laureà Miró
Agotado
Dejar reseña
Adosados Tipo de propiedad
5 Dormitorios
1950 Año de entrega
362 m² m2 construidos
2 Baños
Eléctrica Calefacción
4 Planta
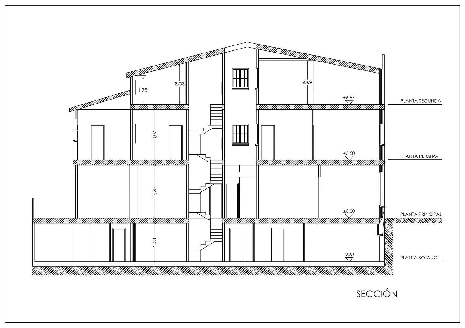
Promogar Finques conectamos personas con hogares.CASA en el centro de Sant Feliu de Llobregat, estratégicamente ubicada cerca de la estación de rodalias RENFE, paradas de autobús y tranvía.Esta impresionante casa de 365 m2 se distribuye en cuatro plantas, ofreciendo un espacio excepcional para disfrutar de una vida cómoda y elegante. La planta principal, con 94 m2, cuenta con un espacioso comedor, sala de estar, zona de cocina, lavadero, aseo de cortesía y una elegante escalera que conecta todas las plantas. Además, dispone de una encantadora terraza en la parte posterior que invita a momentos de relax y disfrute al aire libre. La planta primera ofrece otros 94 m2 de espacio habitable, la segunda planta cuenta con 77 m2, y la planta subterránea, con 106 m2, proporciona versatilidad y posibilidades infinitas.Con cinco dormitorios y dos baños, esta residencia se adapta perfectamente a las necesidades de su familia. La estructura sólida, construida con vigas metálicas IPN y revestimiento cerámico a la catalana, garantiza la durabilidad y la seguridad a largo plazo.Aunque la casa está actualmente habitable, queremos destacar que disponemos de un emocionante proyecto de reforma para elevar esta propiedad a nuevas alturas de elegancia y modernidad. Adjuntamos los planos y secciones de esta propuesta, respaldada por nuestro competente equipo de técnicos y constructores que estarán encantados de llevar a cabo la reforma según sus preferencias y necesidades específicas. Importe de la reforma no incluida en el precio de venta.Le extendemos una cordial invitación a visitar esta propiedad con nosotros, donde encontrará no solo una casa, sino una oportunidad excepcional para vivir con estilo o realizar una inversión inteligente. No dude en contactarnos para programar su visita y explorar todas las posibilidades que esta finca tiene para ofrecer. Estamos comprometidos a hacer realidad el hogar de sus sueños.

Características de la propiedad

Complex information

  • Tipo de propiedad
    Adosados

Información del proyecto / Estado de obra

  • Año de entrega
    1950

Memoria de Calidades

  • Calefacción
    Eléctrica

Datos de la propiedad

  • Planta
    4
  • Dormitorios
    5
  • Baños
    2
  • m2 construidos
    362 m²
  • Tipo de la propiedad
    Segunda mano

Certificación energética

  • Consumo energético
    E

Instalaciones

Comodidades de la vivienda:

Aire acondicionado
Armarios empotrados
Trastero
Calefacción
Terraza
Balcón

En edificio:

Seguridad
Spa
Trastero

Estado:

Buen estado

Estadísticas de precios del mercado para Chalet adosado en venta en Laureà Miró

Mapa

Barcelona, Sant Feliu de Llobregat, Centre, Laureà Miró Ir a la propiedad
Deja una opinión sobre Chalet adosado en venta en Laureà Miró
0
0 reseñas
1
0% (0)
2
0% (0)
3
0% (0)
4
0% (0)
5
0% (0)
PROMOGAR FINQUES
Agotado
Contactar con la plataforma

para obtener más información contacta con el catálogo

REF: 30708

Opiniones sobre Chalet adosado en venta en Laureà Miró
Loading...

No reviews have been left for this object yet

Propiedades más cercanas

Explora propiedades cercanas que hemos descubierto en las proximidades de esta ubicación.

Obra nueva Nueva Zelanda en Madrid

Madrid, Madrid, Moncloa, Calle Nueva Zelanda
1 375 000 €

Boss Inmobiliaria comercializa promoción de 3 viviendas unifamiliares de obra nu...

0
0 opiniones

Obra nueva Nueva Zelanda en Madrid

Madrid, Madrid, Moncloa, Calle Nueva Zelanda
1 250 000 €

Boss Inmobiliaria comercializa promoción de 3 viviendas unifamiliares de obra nu...

0
0 opiniones

Obra nueva Nueva Zelanda en Madrid

Madrid, Madrid, Moncloa, Calle Nueva Zelanda
1 350 000 €

Boss Inmobiliaria comercializa promoción de 3 viviendas unifamiliares de obra nu...

0
0 opiniones

Pareados en Venta en Calle Jose Fentanes, 110, Madrid

Madrid, Madrid, Moncloa, Calle Jose Fentanes, 110
1 550 000 €

LICENCIA DE OBRA CONCEDIDA, OBRA COMENZADA.ULTIMAS VIVIENDASPRECIO SIN IVA Puert...

0
0 opiniones

Adosados en Venta en Calle Jose Fentanes, 110, Madrid

Madrid, Madrid, Moncloa, Calle Jose Fentanes, 110
1 550 000 €

LICENCIA DE OBRA CONCEDIDA, OBRA COMENZADA.ULTIMAS VIVIENDASPRECIO SIN IVA Puert...

0
0 opiniones

Chalet adosado en venta en Gilet

Valencia, Gilet
195 000 €

Fantástico chalet adosado situado en un entorno natural a las faldas de la Sierr...

0
0 opiniones

Chalet adosado en venta en Pulpi

Almería, Pulpi
145 000 €

Se presenta una extraordinaria oportunidad en el centro de Pulpí con esta espaci...

0
0 opiniones

Chalet adosado en venta en Lavadores

Pontevedra, Vigo, Lavadores
260 000 €

No tiene terreno. Casa adosada de dos plantas de 100m², totalmente amueblada, co...

0
0 opiniones

Chalet pareado en venta en Las Castañeras - Bulevar

Madrid, Arroyomolinos, Las Castañeras - Bulevar
375 000 €

¡No pierdas la oportunidad de adquirir este magnífico Casa / Chalet pareado en l...

0
0 opiniones

Utilizamos cookies propias y de terceros para analizar el uso del sitio web y mostrarte publicidad relacionada con tus preferencias sobre la base de un perfil elaborado a partir de tus hábitos de navegación (por ejemplo, páginas visitadas). Más información. ¿Aceptas las cookies?