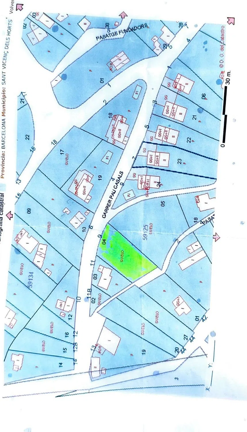
Terreno en calle Pau Casals, 9

Barcelona, Sant Vicenç Dels Horts, Calle Pau Casals, 9
80 000 €
Dejar reseña
Urbano Tipo de propiedad
553 m² Superficie del terreno
Terreno urbanizable de 553 m² en la zona de Sant Antonio, con excelente ubicación; muy cerca del pueblo, a escasos minutos del Centro del pueblo, con parada del bus en la misma callle Zona urbanizada compuesta de chalets, naturaleza y tranquilidad. A 5 minutos de la autovia/autopista direccion Barcelona. Con certificado de aprovechamiento urbanistico del ayuntamiento Subzona VII, unifamiliar, clave 20a/10 con ocupación máxima de un 30% con un máximo de B+2.

Características de la propiedad

Complex information

  • Tipo de propiedad
    Urbano

Datos de la propiedad

  • Tipo de la propiedad
    Segunda mano

Superficies

  • Superficie del terreno
    553 m²

Base

Estadísticas de precios del mercado para Terreno en calle Pau Casals, 9

Mapa

Barcelona, Sant Vicenç Dels Horts, Calle Pau Casals, 9 Ir a la propiedad
Deja una opinión sobre Terreno en calle Pau Casals, 9
0
0 reseñas
1
0% (0)
2
0% (0)
3
0% (0)
4
0% (0)
5
0% (0)
ESPAI CENTRE IMMOBLES SL
80 000 €
Contactar con la plataforma

para obtener más información contacta con el catálogo

REF: 374462

Opiniones sobre Terreno en calle Pau Casals, 9
Loading...

No reviews have been left for this object yet

Propiedades más cercanas

Explora propiedades cercanas que hemos descubierto en las proximidades de esta ubicación.

Terreno en venta en calle de Sant Domènec, 1

Barcelona, Sant Vicenç Dels Horts
880 000 €

Este terreno se encuentra en Sant Domenech, 1-9 Sant Vicenç dels Horts, Barcelon...

0
0 opiniones

Terreno en venta en carretera de Santboi

Barcelona, Sant Climent de Llobregat
195 000 €

Solar en venta en la localidad de Sant Climent, justo al principio de la carrete...

0
0 opiniones

TERRENO EDIFICABLE EN COLLSEROLA, A 15MN DE BARCELONA.

Barcelona, Molins de Rei
110 000 €

TERRENO 530m2 EDIFICABLE EN COLLSEROLA, A 15MN DE BARCELONA. Terreno de 530m2 en...

0
0 opiniones

TERRENO EDIFICABLE EN COLLSEROLA, A 15MN DE BARCELONA.

Barcelona, Molins de Rei
145 000 €

TERRENO 543m2 EDIFICABLE EN COLLSEROLA, A 15MN DE BARCELONA. Terreno de 543m2 en...

0
0 opiniones

TERRENO RESIDENCIAL INVERSORES DE 1042M2 EN VALLIRANA

Barcelona, Vallirana
33 000 €

Amplia parcela de 1042 m2 en plena naturaleza en la urbanización de Peña Forcada...

0
0 opiniones

TERRENO URBANO LISTO PARA CONSTRUIR con PROYECTO PAGADO

Barcelona, Cervelló
59 000 €

Proyecto para amplia vivienda unifamiliar en la urbanización de Torre Vileta per...

0
0 opiniones

TERRENO URBANO CON PROYECTO PREPARADO EN CERVELLÓ. A 18 MIN DE BCN

Barcelona, Cervelló
78 000 €

Proyecto para vivienda de 2 habitaciones y estudio sobre amplia parcela urbana d...

0
0 opiniones

TERRENO RESIDENCIAL 1.628 m2 EN URB. LA PINATELLA

Barcelona, Vallirana
113 000 €

Finca situada en la cota más alta de la urbanización Pinatella Dispone de todos...

0
0 opiniones

TERRENO RESIDENCIAL 688 m2 URB. LA SELVA NEGRA

Barcelona, Vallirana
59 500 €

Parcela situada muy cerca del Restaurant Selva Negra y frente colegio. Dispone d...

0
0 opiniones

Utilizamos cookies propias y de terceros para analizar el uso del sitio web y mostrarte publicidad relacionada con tus preferencias sobre la base de un perfil elaborado a partir de tus hábitos de navegación (por ejemplo, páginas visitadas). Más información. ¿Aceptas las cookies?