Apartamentos en Venta, Terrassa

Barcelona, Terrassa, Can Palet - Xúquer
Agotado
Dejar reseña
Apartamentos Tipo de propiedad
75 m² m2 construidos
2 Baños
2 Dormitorios
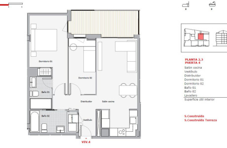
Promoción de Obra Nueva ubicada en Terrassa, se encuentra en Terrassa a escasos 30 min de Barcelona. Compuesta por viviendas de 2 y 3 dormitorios (9 dúplex). Con unas fantásticas visitas al parque de Vallparadís y situado en un consolidado barrio que ofrece una gran variedad de servicios y una excelente red de comunicaciones. Piso de obra nueva de 69,68 m², según proyecto, junto al parque de Vallparadís. Planta baja que constará de amplio salón-comedor-cocina con salida a balcón, de 16,77 m² útiles, que dotará la estancia de mucha luminosidad. Dispondrá de 2 habitaciones, 1 doble en suite y una individual. Dos baños completos, uno con bañera y otro con plato de ducha (suite). Cocina abierta en salón-comedor, equipada con armarios modulares y encimera tipo Silestone o equivalente. Campana extractora, placa de inducción y horno eléctrico. Instalación completa de aire acondicionado y calefacción mediante bomba frio/calor con distribución por conductos en falso techo. La producción de agua caliente será individual, mediante sistema de aerotermia con acumulador de agua caliente. Finca con ascensor. Plazas de parking y trasteros disponibles en la misma finca. ¡Ésta es tu oportunidad! Empieza una nueva vida en un entorno privilegiado frente al parque, disfrutando de la comodidad y bienestar de un hogar funcional rodeado de todos los servicios necesarios; deportivos, educativos, sanitarios, comerciales y de ocio. FORCADELL le ofrece asesoramiento y le ayuda en las gestiones para la obtención de la hipoteca. FINCAS FORCADELL, SLU AICAT 163 Pl. Universitat, 3 Baixos. Barcelona.

Características de la propiedad

Complex information

  • Complejo residencial
    Terrassa I
  • Tipo de propiedad
    Apartamentos

Datos de la propiedad

  • Tipo de cocina
    Cocina americana
  • Dormitorios
    2
  • Baños
    2
  • m2 construidos
    75 m²
  • Tipo de la propiedad
    Obra nueva

Certificación energética

  • Consumo energético
    B

Instalaciones

Comodidades de la vivienda:

Trastero

En edificio:

Ascensor
Bar
Trastero

Estado:

Obra nueva

Estadísticas de precios del mercado para Piso en venta en Can Palet

274 323 € (2 598 €/m2)
Precio promedio de propiedades primarias Apartamentos en la ciudad Terrassa
275 751 € (1 063 €/m2)
Precio promedio de propiedades secundarias Apartamentos en la ciudad Terrassa

Mapa

Barcelona, Terrassa, Can Palet - Xúquer Ir a la propiedad
Deja una opinión sobre Piso en venta en Can Palet
0
0 reseñas
1
0% (0)
2
0% (0)
3
0% (0)
4
0% (0)
5
0% (0)
Terrassa I
Complejo residencial
Agotado
Contactar con la plataforma

para obtener más información contacta con el catálogo

REF: 16579

Opiniones sobre Piso en venta en Can Palet
Loading...

No reviews have been left for this object yet

Propiedades más cercanas

Explora propiedades cercanas que hemos descubierto en las proximidades de esta ubicación.

Apartamentos en Venta en Calle Pere Fizes, 2, Terrassa

Barcelona, Terrassa, Zona Esportiva - Sant Pere, Calle Pere Fizes, 2
315 000 €

Presentamos este magnífico edificio de comunidad reducida, tan solo 8 propietari...

0
0 opiniones

Apartamentos en Venta en Calle Pere Fizes, 2, Terrassa

Barcelona, Terrassa, Zona Esportiva - Sant Pere, Calle Pere Fizes, 2
385 000 €

Presentamos este magnífico edificio de comunidad reducida, tan solo 8 propietari...

0
0 opiniones

Apartamentos en Venta en Calle Pere Fizes, 2, Terrassa

Barcelona, Terrassa, Zona Esportiva - Sant Pere, Calle Pere Fizes, 2
267 000 €

Presentamos este magnífico edificio de comunidad reducida, tan solo 8 propietari...

0
0 opiniones

Apartamentos en Venta en Calle Pere Fizes, 2, Terrassa

Barcelona, Terrassa, Zona Esportiva - Sant Pere, Calle Pere Fizes, 2
275 000 €

Presentamos este magnífico edificio de comunidad reducida, tan solo 8 propietari...

0
0 opiniones

Apartamentos en Venta en Calle Pere Fizes, 2, Terrassa

Barcelona, Terrassa, Zona Esportiva - Sant Pere, Calle Pere Fizes, 2
375 000 €

Presentamos este magnífico edificio de comunidad reducida, tan solo 8 propietari...

0
0 opiniones

Apartamentos en Venta en Calle Pere Fizes, 2, Terrassa

Barcelona, Terrassa, Zona Esportiva - Sant Pere, Calle Pere Fizes, 2
254 000 €

Presentamos este magnífico edificio de comunidad reducida, tan solo 8 propietari...

0
0 opiniones

Apartamentos en Venta en Carrer del Pare Font s/n, Terrassa

Barcelona, Terrassa, Segle XX, Carrer del Pare Font s/n
189 000 €

Gasòmetre es una promoción ubicada en Terrassa, en pleno barrio Segle XX. Un pro...

0
0 opiniones

Apartamentos en Venta en Carrer del Pare Font s/n, Terrassa

Barcelona, Terrassa, Segle XX, Carrer del Pare Font s/n
251 000 €

Gasòmetre es una promoción ubicada en Terrassa, en pleno barrio Segle XX. Un pro...

0
0 opiniones

Apartamentos en Venta en Carrer del Pare Font s/n, Terrassa

Barcelona, Terrassa, Segle XX, Carrer del Pare Font s/n
251 000 €

Gasòmetre es una promoción ubicada en Terrassa, en pleno barrio Segle XX. Un pro...

0
0 opiniones

Utilizamos cookies propias y de terceros para analizar el uso del sitio web y mostrarte publicidad relacionada con tus preferencias sobre la base de un perfil elaborado a partir de tus hábitos de navegación (por ejemplo, páginas visitadas). Más información. ¿Aceptas las cookies?