España Adosados España Adosados Cádiz Adosados Algeciras Chalet adosado en venta en Centro

Venta de chalet adosado en Centro , Algeciras

Cádiz, Algeciras, Centro
Agotado
Dejar reseña
Adosados Tipo de propiedad
1960 Año de entrega
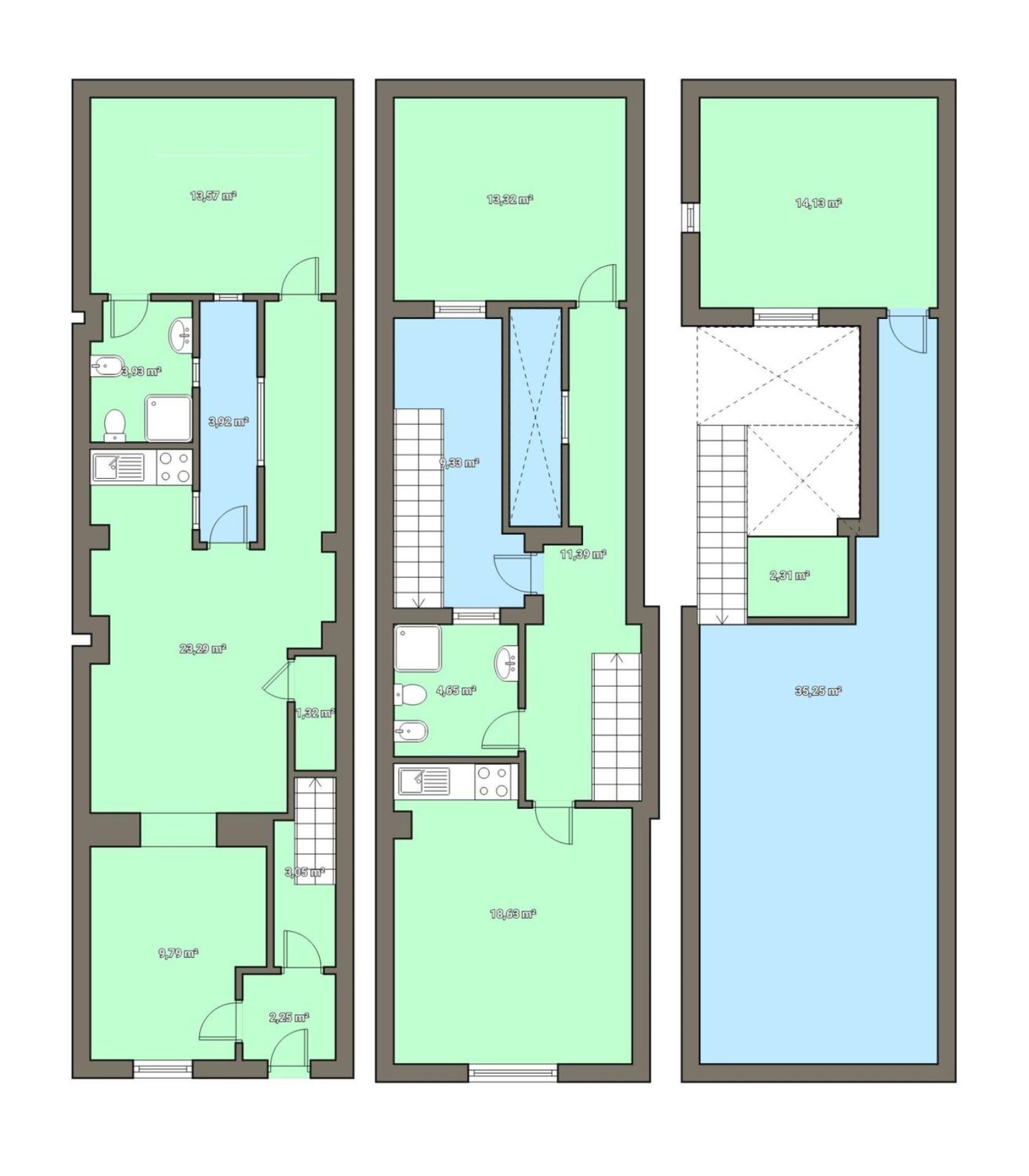
152 m² m2 construidos
2 Baños
2 Dormitorios
No tiene calefacción Calefacción
2 Planta
VIVIENDA CENTRICA EN SAN ISIDRO EN PERIODO DE PUJAS AL ALZA DESDE 03/01/24 HASTA 24/01/24Maravillosa transformación realizada para convertir esta residencia en dos apartamentos. Estratégicamente ubicados en el codiciado barrio de San Isidro, en el corazón de la bulliciosa ciudad de Algeciras, estos apartamentos ofrecen una opción única para disfrutar de la vida urbana con estilo.La planta baja ha sido ingeniosamente diseñada para albergar un apartamento completo, que incluye un luminoso salón, una cocina comedor, un patio interior, un baño completo y una espaciosa habitación doble.La escalera conduce a la segunda planta, donde se ha creado otro apartamento independiente. Aquí, un amplio salón con cocina integrada se convierte en el epicentro de la vivienda, acompañado por un baño completo y otra habitación doble.La guinda del pastel se encuentra en la tercera planta, donde la gran azotea se ha concebido para disfrutar al aire libre y deleitarse con vistas panorámicas. Además, se ha habilitado una habitación trastero para satisfacer todas las necesidades de almacenamiento.Esta renovación excepcional no solo ofrece dos apartamentos con estilo.¿Prefieres una vivienda de 152 metros y tres dormitorios en el centro de Algeciras? con una pequeña obra lo conseguirás.¡Descubre la versatilidad y el atractivo único que esta vivienda te puede ofrecer!Informamos a nuestros clientes que los gastos de notaría, registro, gestoría, impuestos y los honorarios de la agencia que ascienden a un 3% + IVA con un mínimo de 3.630€ NO están incluidos en el precio.

Características de la propiedad

Complex information

  • Tipo de propiedad
    Adosados

Información del proyecto / Estado de obra

  • Año de entrega
    1960

Memoria de Calidades

  • Calefacción
    No tiene calefacción

Datos de la propiedad

  • Tipo de cocina
    Cocina americana
  • Planta
    2
  • Dormitorios
    2
  • Baños
    2
  • m2 construidos
    152 m²
  • Tipo de la propiedad
    Segunda mano

Instalaciones

Comodidades de la vivienda:

Trastero
Calefacción
Ventanas interiores
Terraza
Balcón

En edificio:

Bar
Spa
Trastero

Estado:

Buen estado

Estadísticas de precios del mercado para Chalet adosado en venta en Centro

326 810 € (2 240 €/m2)
Precio promedio de propiedades primarias Adosados en el distrito Centro

Mapa

Cádiz, Algeciras, Centro Ir a la propiedad
Deja una opinión sobre Chalet adosado en venta en Centro
0
0 reseñas
1
0% (0)
2
0% (0)
3
0% (0)
4
0% (0)
5
0% (0)
Olga Ortiz
Agotado
Contactar con la plataforma

para obtener más información contacta con el catálogo

REF: 28913

Opiniones sobre Chalet adosado en venta en Centro
Loading...

No reviews have been left for this object yet

Propiedades más cercanas

Explora propiedades cercanas que hemos descubierto en las proximidades de esta ubicación.

Adosados en Venta en Calle Cabo Tres Forcas s/n, Algeciras

Cádiz, Algeciras, El Rinconcillo - San José Artesano, Calle Cabo Tres Forcas s/n
185 000 €

Chalets de 2 y 3 dormitorios en el Rinconcillo de Algeciras. A diez minutos de l...

0
0 opiniones

Adosados en Venta en Calle Cabo Tres Forcas s/n, Algeciras

Cádiz, Algeciras, El Rinconcillo - San José Artesano, Calle Cabo Tres Forcas s/n
149 950 €

Chalets de 2 y 3 dormitorios en el Rinconcillo de Algeciras. A diez minutos de l...

0
0 opiniones

Adosados en Venta en Calle Cabo Tres Forcas s/n, Algeciras

Cádiz, Algeciras, El Rinconcillo - San José Artesano, Calle Cabo Tres Forcas s/n
152 000 €

Chalets de 2 y 3 dormitorios en el Rinconcillo de Algeciras. A diez minutos de l...

0
0 opiniones

Adosados en Venta en Calle Cabo Tres Forcas s/n, Algeciras

Cádiz, Algeciras, El Rinconcillo - San José Artesano, Calle Cabo Tres Forcas s/n
161 000 €

Chalets de 2 y 3 dormitorios en el Rinconcillo de Algeciras. A diez minutos de l...

0
0 opiniones

Adosados en Venta en Calle VICTORIA EUGENIA s/n, Algeciras

Cádiz, Algeciras, Saladillo - La Piñera, Calle VICTORIA EUGENIA s/n
118 600 €

OBRA COMENZADASituado en el corazón de Algeciras, cerca del Hotel Reina Cristina...

0
0 opiniones

Adosados en Venta en Calle VICTORIA EUGENIA s/n, Algeciras

Cádiz, Algeciras, Saladillo - La Piñera, Calle VICTORIA EUGENIA s/n
135 000 €

OBRA COMENZADASituado en el corazón de Algeciras, cerca del Hotel Reina Cristina...

0
0 opiniones

Adosados en Venta en Calle VICTORIA EUGENIA s/n, Algeciras

Cádiz, Algeciras, Saladillo - La Piñera, Calle VICTORIA EUGENIA s/n
129 900 €

OBRA COMENZADASituado en el corazón de Algeciras, cerca del Hotel Reina Cristina...

0
0 opiniones

Adosados en Venta en Calle VICTORIA EUGENIA s/n, Algeciras

Cádiz, Algeciras, Saladillo - La Piñera, Calle VICTORIA EUGENIA s/n
128 000 €

OBRA COMENZADASituado en el corazón de Algeciras, cerca del Hotel Reina Cristina...

0
0 opiniones

Adosados en Venta en Calle VICTORIA EUGENIA s/n, Algeciras

Cádiz, Algeciras, Saladillo - La Piñera, Calle VICTORIA EUGENIA s/n
130 000 €

OBRA COMENZADASituado en el corazón de Algeciras, cerca del Hotel Reina Cristina...

0
0 opiniones
Llamada

Utilizamos cookies propias y de terceros para analizar el uso del sitio web y mostrarte publicidad relacionada con tus preferencias sobre la base de un perfil elaborado a partir de tus hábitos de navegación (por ejemplo, páginas visitadas). Más información. ¿Aceptas las cookies?