España Urbano España Urbano Madrid Urbano Alcorcón Terreno en Barrio Campodón - Ventorro del Cano

Terreno en Barrio Campodón - Ventorro del Cano

Madrid, Alcorcón, Campodón - Ventorro del Cano, Barrio Campodón - Ventorro del Cano
2 400 000 €
Dejar reseña
Urbano Tipo de propiedad
6 927 m² Superficie del terreno
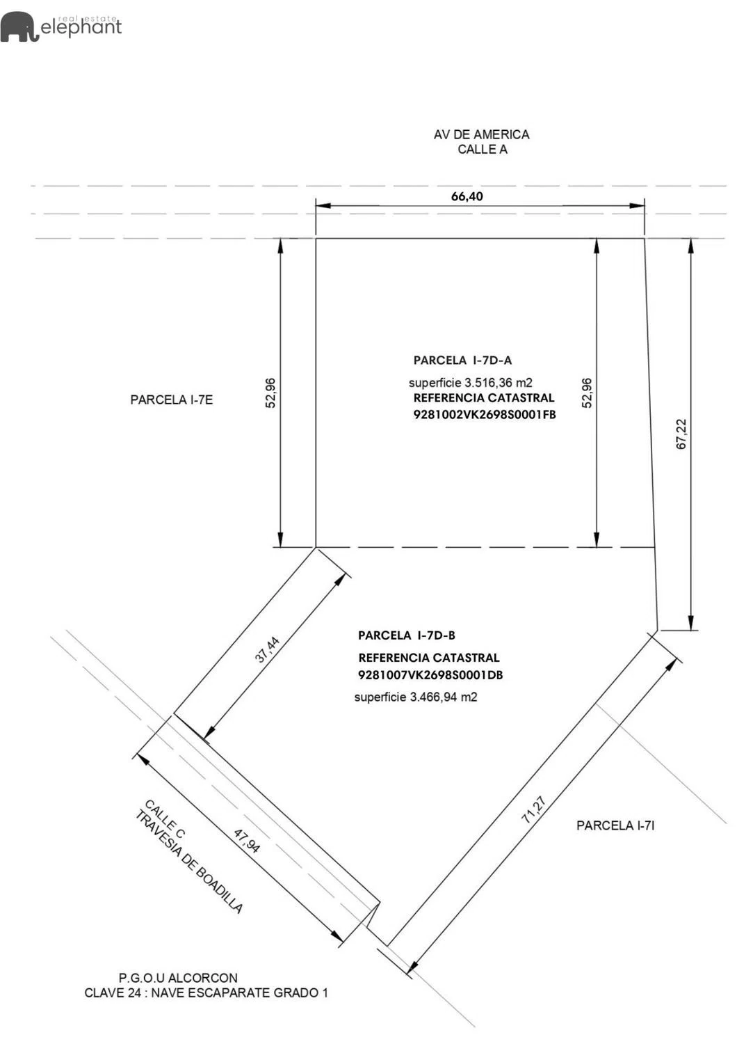
Esta parcela es especial porque ofrece una combinación única de versatilidad y ubicación estratégica en un área en crecimiento. - Uso Versátil: Esta parcela está clasificada para uso comercial, industrial o terciario, lo que permite una amplia gama de posibilidades de desarrollo. Desde la construcción de locales comerciales y oficinas hasta instalaciones industriales, la flexibilidad de uso es una gran ventaja. - Ubicación Estratégica: Situada en una zona de alta visibilidad y fácil acceso, la parcela se beneficia de un flujo constante de tráfico, lo que la convierte en un lugar ideal para negocios que buscan atraer a clientes. La cercanía a las principales vías de comunicación facilita el transporte de mercancías y el acceso para empleados. - Entorno en Crecimiento: Alcorcón es una ciudad en expansión, con un entorno empresarial en desarrollo. La demanda de espacios comerciales y de oficinas está en aumento, lo que representa una oportunidad significativa para los inversores. - Infraestructura y Servicios: La parcela está rodeada de una infraestructura sólida, incluyendo servicios públicos, transporte público y áreas de estacionamiento. Esto no solo mejora la accesibilidad, sino que también aumenta el atractivo. - Proximidad a Zonas Residenciales: La cercanía a áreas residenciales garantiza un mercado potencial constante para cualquier negocio que se establezca en la parcela, ya que atraerá tanto a clientes locales como a trabajadores de la zona. Situación urbanística Terreno urbanizable Calificado para terciario comercial oficinas, hoteles, industrial. 2 plantas edificables.

Características de la propiedad

Complex information

  • Tipo de propiedad
    Urbano

Datos de la propiedad

  • Tipo de la propiedad
    Segunda mano

Superficies

  • Superficie del terreno
    6 927 m²

Base

Estadísticas de precios del mercado para Terreno en Barrio Campodón - Ventorro del Cano

Mapa

Madrid, Alcorcón, Campodón - Ventorro del Cano, Barrio Campodón - Ventorro del Cano Ir a la propiedad
Deja una opinión sobre Terreno en Barrio Campodón - Ventorro del Cano
0
0 reseñas
1
0% (0)
2
0% (0)
3
0% (0)
4
0% (0)
5
0% (0)
Elephant Room Madrid
2 400 000 €
Contactar con la plataforma

para obtener más información contacta con el catálogo

REF: 371184

Opiniones sobre Terreno en Barrio Campodón - Ventorro del Cano
Loading...

No reviews have been left for this object yet

Propiedades más cercanas

Explora propiedades cercanas que hemos descubierto en las proximidades de esta ubicación.

Terreno en calle de la Lonja de la Seda

Madrid, Madrid, Carabanchel, Calle de la Lonja de la Seda
2 622 000 €

Este solar de 533 m² ofrece una oportunidad excepcional para desarrolladores e i...

0
0 opiniones

Terreno en calle Tordesillas

Madrid, Madrid, Carabanchel, Calle Tordesillas
2 850 000 €

Retail vende magnífico solar residencial en Carabanchel - Madrid. Característica...

0
0 opiniones

Terreno en Tordesillas, 25

Madrid, Madrid, Carabanchel, TORDESILLAS, 25
2 850 000 €

Situado en la calle Tordesillas núm 23, con fachada a la calle de nuevo trazado,...

0
0 opiniones

Terreno en paseo de Extremadura

Madrid, Madrid, Latina, Paseo de Extremadura
4 000 000 €

SP SERVICIOS INMOBILIARIOS pone a la venta TERRENO de 23000 m2 incluido en la OP...

0
0 opiniones

Terreno en calle de Daniel Segovia, 43

Madrid, Madrid, Latina, Calle de Daniel Segovia, 43
475 000 €

Proyecto de edificio con viviendas plurifamiliares, trastero y local comercial e...

0
0 opiniones

Terreno en calle Maravilla, 12

Madrid, Madrid, Latina, Calle Maravilla, 12
460 000 €

Se vende terreno en Colonia Militar. Con licencia de construcción de casa unifam...

0
0 opiniones

Terreno en Urb. este - Montepríncipe

Madrid, Boadilla del Monte, Urb. este - Montepríncipe, Urb. este - Montepríncipe
1 640 000 €

Lucas Fox se complace en presentar esta irrepetible oportunidad, tanto para quie...

0
0 opiniones

Terreno en Impresores, 18

Madrid, Boadilla del Monte, Urb. este - Montepríncipe, Impresores, 18
3 000 000 €

BOADILLA DEL MONTE, TERRENO urbano de 3.102 m2, USO TERCIARIO COMERCIAL, ubicado...

0
0 opiniones

Terreno en Urb. este - Montepríncipe

Madrid, Boadilla del Monte, Urb. este - Montepríncipe, Urb. este - Montepríncipe
2 999 999 €

¡Oportunidad única en la Comunidad de Madrid! Descubre este impresionante terren...

0
0 opiniones

Utilizamos cookies propias y de terceros para analizar el uso del sitio web y mostrarte publicidad relacionada con tus preferencias sobre la base de un perfil elaborado a partir de tus hábitos de navegación (por ejemplo, páginas visitadas). Más información. ¿Aceptas las cookies?