España Urbano España Urbano Madrid Urbano Majadahonda Terreno en travesía Cerro del Aire, 14

Terreno en travesía Cerro del Aire, 14

Madrid, Majadahonda, Zona Carretera del Plantío, Travesía Cerro del Aire, 14
5 900 000 €
Dejar reseña
Urbano Tipo de propiedad
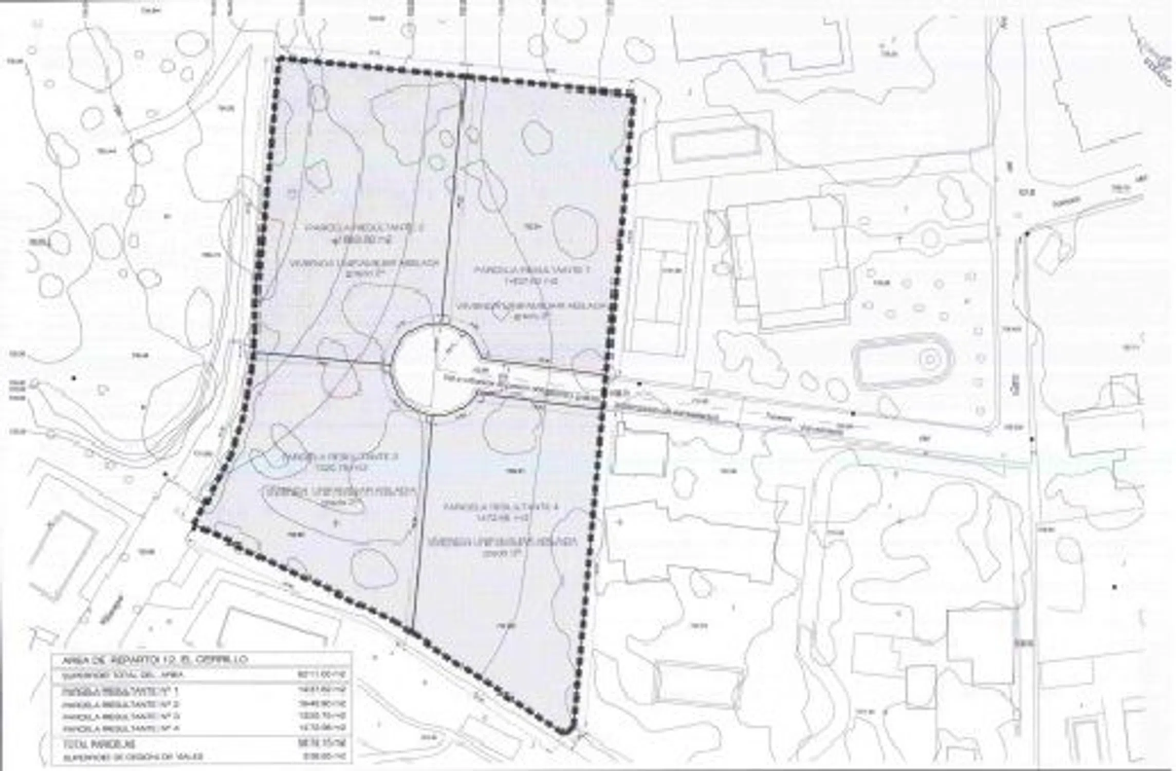
5 872 m² Superficie del terreno
2 Plantas edificables
2 400 m² Superficie edificable
Disponibles 4 parcelas 1437m2 1640m2 1320m2 1472m2 Ya urbanizado Vivienda unifamiliar aislada Ocupación máxima 30% Edificabilidad máxima 0,40m2/m2.

Características de la propiedad

Complex information

  • Tipo de propiedad
    Urbano

Datos de la propiedad

  • Tipo de la propiedad
    Segunda mano

Superficies

  • Superficie del terreno
    5 872 m²

Base

  • Parcela minima venta
    1 320 m²
  • Plantas edificables
    2
  • Superficie edificable
    2 400 m²

Estadísticas de precios del mercado para Terreno en travesía Cerro del Aire, 14

Mapa

Madrid, Majadahonda, Zona Carretera del Plantío, Travesía Cerro del Aire, 14 Ir a la propiedad
Deja una opinión sobre Terreno en travesía Cerro del Aire, 14
0
0 reseñas
1
0% (0)
2
0% (0)
3
0% (0)
4
0% (0)
5
0% (0)
Rubén Toribio Adame
5 900 000 €
Contactar con la plataforma

para obtener más información contacta con el catálogo

REF: 370021

Opiniones sobre Terreno en travesía Cerro del Aire, 14
Loading...

No reviews have been left for this object yet

Propiedades más cercanas

Explora propiedades cercanas que hemos descubierto en las proximidades de esta ubicación.

Terreno en Barrio El Plantío

Madrid, Madrid, Moncloa, Barrio El Plantío
1 874 000 €

GILMAR Pozuelo - Aravaca presenta una excelente oportunidad de construcción sobr...

0
0 opiniones

Terreno en Barrio Aravaca

Madrid, Madrid, Moncloa, Barrio Aravaca
2 500 000 €

**Terreno en Venta en Aravaca - ¡Una Oportunidad Única! ** REMAX CENTRAL VENDE:...

0
0 opiniones

Terreno en calle Gobelas

Madrid, Madrid, Moncloa, Calle Gobelas
2 100 000 €

Exclusiva finca urbana, llana, sin arbolado, y acceso directo a la calle, ideal...

0
0 opiniones

Terreno en Barrio El Plantío

Madrid, Madrid, Moncloa, Barrio El Plantío
1 200 000 €

Parcela de 1.200 m² llana y sin arbolado para la construcción de una vivienda in...

0
0 opiniones

Terreno en calle de Somera

Madrid, Madrid, Moncloa, Calle de Somera
2 950 000 €

SOLAR URBANO TERCIARIO EN URBANIZACIÓN LA FLORIDA. MADRID. Parcela terciaria-dot...

0
0 opiniones

Terreno en Barrio El Plantío

Madrid, Madrid, Moncloa, Barrio El Plantío
1 100 000 €

Parcela llana y sin arbolado de 1.000 m² para la construcción de una vivienda in...

0
0 opiniones

Terreno en Barrio El Plantío

Madrid, Madrid, Moncloa, Barrio El Plantío
1 850 000 €

La mejor parcela de La Florida, situada en una zona muy tranquila con fantástica...

0
0 opiniones

Terreno en Barrio Valdemarín

Madrid, Madrid, Moncloa, Barrio Valdemarín
2 500 000 €

Valdemarín: chalet independiente en 1 sola planta de 500m2 sobre parcela de 2.50...

0
0 opiniones

Terreno en Barrio El Plantío

Madrid, Madrid, Moncloa, Barrio El Plantío
1 500 000 €

Estupenda parcela de 2.640 m² con pozo propio en Colonia Casa Quemada, junto a l...

0
0 opiniones

Utilizamos cookies propias y de terceros para analizar el uso del sitio web y mostrarte publicidad relacionada con tus preferencias sobre la base de un perfil elaborado a partir de tus hábitos de navegación (por ejemplo, páginas visitadas). Más información. ¿Aceptas las cookies?