España Urbanizable España Urbanizable Malaga Urbanizable Estepona Terreno en Zona Sup-C14 la Panera, km 2

Terreno en Zona Sup-C14 la Panera, km 2

Malaga, Estepona, Selwo, Zona Sup-C14 la Panera, km 2
1 250 000 €
Dejar reseña
Urbanizable Tipo de propiedad
4 890 m² Superficie del terreno
2 Plantas edificables
650 Superficie edificable
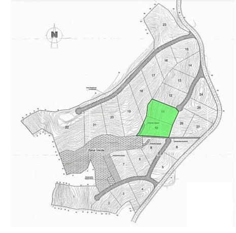
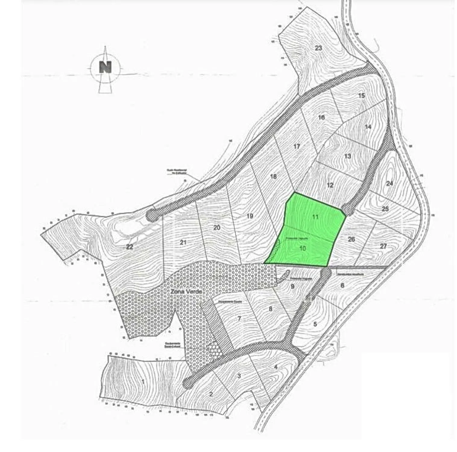
Exclusiva parcela urbana combinada de 10+11, 4890m2, situada en la prestigiosa urbanización de La Panera más un proyecto de villa aprobado arquitectónicamente por el Ayuntamiento. La parcela es adyacente a villas de lujo ya construidas y goza de magníficas vistas panorámicas al mar Mediterráneo y Gibraltar. Ubicación única - cerca tanto de Marbella como de Estepona, a sólo 5 minutos en coche de la playa y sin embargo lejos del tráfico ruidoso, en medio de una enorme zona verde protegida. La posición de la parcela 10+11 dentro de la urbanización también es privilegiada porque: - la vista panorámica del mar y Gibraltar no puede ser bloqueada por otras casas construidas en el futuro, - la privacidad es alta porque la distancia a las otras casas de la urbanización desde la fachada de la casa es significativa. Electricidad, agua y alcantarillado están conectados a la parcela. Existe una villa moderna de 627m2 con seis dormitorios proyecto aprobada por el Ayuntamiento de Estepona, lo que le permitirá empezar a construir inmediatamente, sin tener que pasar cerca de un año obteniendo la licencia necesaria y ahorrándole una considerable cantidad de dinero. Si desea crear su propio proyecto, la parcela permitida es de 650m² más sótano, lo que le permitirá construir una magnífica villa de 900 - 1000m² con fantásticas vistas al mar y a la montaña y una orientación sur que le garantiza luz natural durante todo el día.

Características de la propiedad

Complex information

  • Tipo de propiedad
    Urbanizable

Datos de la propiedad

  • Tipo de la propiedad
    Segunda mano

Superficies

  • Superficie del terreno
    4 890 m²

Base

  • Parcela minima venta
    4 890 m²
  • Suelo no urbanizable
    Protegido
  • Plantas edificables
    2
  • Superficie edificable
    650

Instalaciones

Suministro:

Alcantarillado

Vistas:

Vistas al mar

Planos

Estadísticas de precios del mercado para Terreno en Zona Sup-C14 la Panera, km 2

Mapa

Malaga, Estepona, Selwo, Zona Sup-C14 la Panera, km 2 Ir a la propiedad
Deja una opinión sobre Terreno en Zona Sup-C14 la Panera, km 2
0
0 reseñas
1
0% (0)
2
0% (0)
3
0% (0)
4
0% (0)
5
0% (0)
Michael Wennesheimer
1 250 000 €
Contactar con la plataforma

para obtener más información contacta con el catálogo

REF: 243385

Opiniones sobre Terreno en Zona Sup-C14 la Panera, km 2
Loading...

No reviews have been left for this object yet

Propiedades más cercanas

Explora propiedades cercanas que hemos descubierto en las proximidades de esta ubicación.

Terreno en Barrio El Velerín

Malaga, Estepona, Selwo, Barrio El Velerín
895 000 €

Terreno de 4.200 m2 en El Velerin con una casa de 165 m2 en una sola planta, con...

0
0 opiniones

Terreno en calle Isabel Allende

Malaga, Benahavís, Montemayor-Marbella Club, Calle Isabel Allende
295 000 €

Una oportunidad excepcional para adquirir una amplia parcela residencial en la p...

0
0 opiniones

Terreno en calle Gladiolo, 19 -1

Malaga, Estepona, Benamara - Atalaya, Calle Gladiolo, 19 -1
3 150 000 €

Se trata de dos parcelas localizadas en segunda línea de playa, en el Paraiso Ba...

0
0 opiniones

Terreno en Altos de Estepona

Malaga, Estepona, Altos de Estepona, Altos de Estepona
380 000 €

Parcela rústica a la venta en la zona de Los Reales con 36.865 metros de terreno...

0
0 opiniones

Terreno en C. Clarin

Malaga, Estepona, Benamara - Atalaya, C. Clarin
550 000 €

Parcela prestigiosa Con una ubicación excepcional, la parcela de 822.13m2 está b...

0
0 opiniones

Terreno en Barrio Centro

Malaga, Estepona, Estepona Pueblo, Barrio Centro
280 000 €

Oportunidad única de adquirir una estupenda parcela de 630 m² a tan solo 5 minut...

0
0 opiniones

Terreno en Montemayor-Marbella Club

Malaga, Benahavís, Montemayor-Marbella Club, Montemayor-Marbella Club
6 400 000 €

Una oportunidad única de poseer una villa de lujo totalmente terminada en una pa...

0
0 opiniones

Terreno en La Panera s/n

Malaga, Estepona, Selwo, La Panera s/n
1 950 000 €

Os presentamos estas increíbles parcelas con impresionantes vistas al mar, ubica...

0
0 opiniones

Terreno en Barrio La Concha-Resina Golf

Malaga, Estepona, Selwo, Barrio La Concha-Resina Golf
1 950 000 €

Parcela de 4.553 metros cuadrados, situada en un enclave privilegiado que ofrece...

0
0 opiniones
Llamada

Utilizamos cookies propias y de terceros para analizar el uso del sitio web y mostrarte publicidad relacionada con tus preferencias sobre la base de un perfil elaborado a partir de tus hábitos de navegación (por ejemplo, páginas visitadas). Más información. ¿Aceptas las cookies?