España Urbano España Urbano Malaga Urbano Málaga Terreno en calle Jardinera

Terreno en calle Jardinera

Malaga, Málaga, Campanillas, Calle Jardinera
299 000 €
Dejar reseña
Urbano Tipo de propiedad
1 775 m² Superficie del terreno
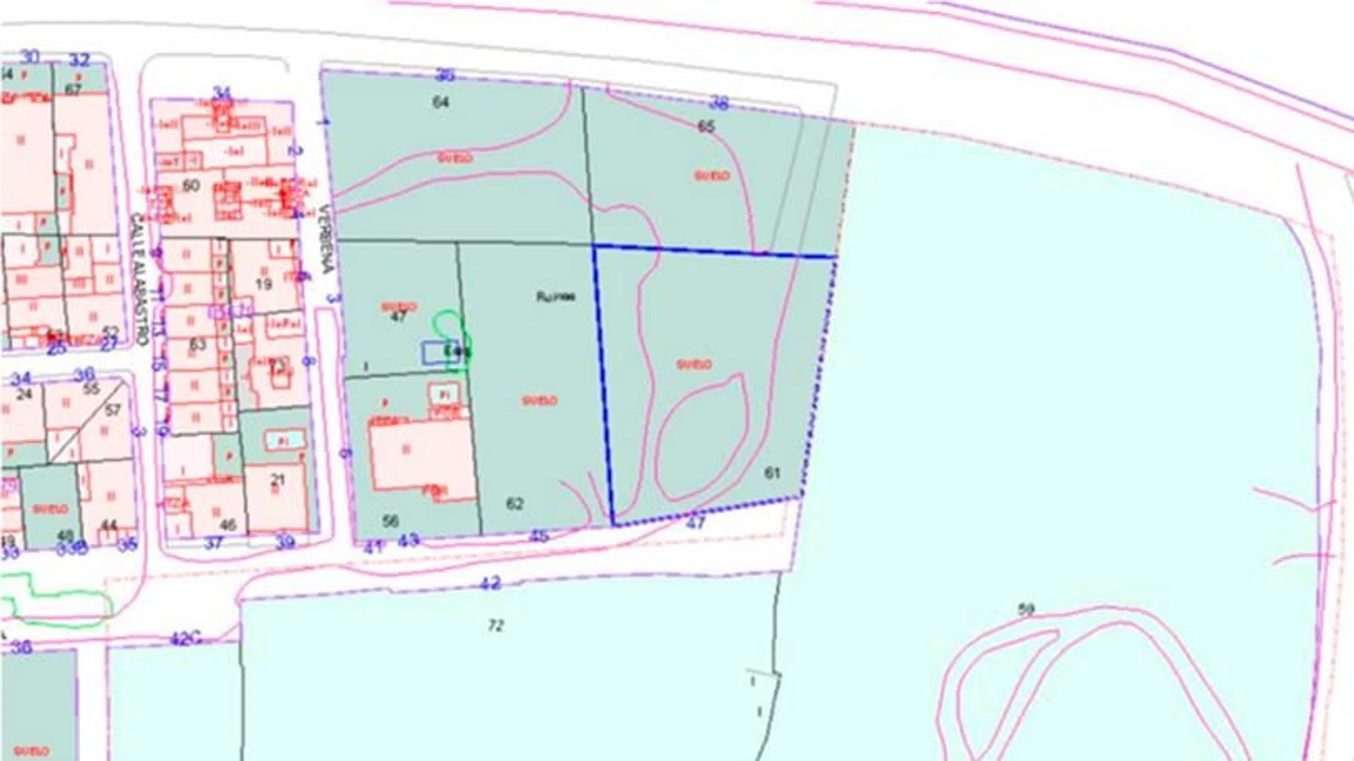
Suelo urbano consolidado con una superficie de 1.218, 36 m2s tras viales y cesión al Ayto. y con un techo máximo de 1.949, 37 m2, con uso Edificación Tradicional Popular, ubicado en el barrio de Santa Rosalía, Málaga.

Características de la propiedad

Complex information

  • Tipo de propiedad
    Urbano

Datos de la propiedad

  • Tipo de la propiedad
    Segunda mano

Superficies

  • Superficie del terreno
    1 775 m²

Base

  • Suelo urbano
    Consolidado (Solar)

Planos

Estadísticas de precios del mercado para Terreno en calle Jardinera

Mapa

Malaga, Málaga, Campanillas, Calle Jardinera Ir a la propiedad
Deja una opinión sobre Terreno en calle Jardinera
0
0 reseñas
1
0% (0)
2
0% (0)
3
0% (0)
4
0% (0)
5
0% (0)
Aliseda Inmobiliaria
299 000 €
Contactar con la plataforma

para obtener más información contacta con el catálogo

REF: 242139

Opiniones sobre Terreno en calle Jardinera
Loading...

No reviews have been left for this object yet

Propiedades más cercanas

Explora propiedades cercanas que hemos descubierto en las proximidades de esta ubicación.

Terreno en venta en Cártama pueblo

Malaga, Cártama, Cártama pueblo
66 000 €

Terreno → Terreno urbano en Cártama zona Costa del Sol, 223 m. superficie parcel...

0
0 opiniones

Terreno en venta en calle Juan Carlos I, 94

Malaga, Cártama, Cártama pueblo, Calle Juan Carlos I, 94
61 000 €

OPORTUNIDAD. ¡Una oportunidad única para construir el hogar de tus sueños! Esta...

0
0 opiniones

Terreno en venta en Diseminado Poligono 20

Malaga, Cártama, Estación, Diseminado Poligono 20
400 000 €

¡No pierdas la oportunidad de adquirir esta finca única en Cártama! Ubicada en l...

0
0 opiniones

Terreno en venta en El Romeral-Peñón de Zapata

Malaga, Alhaurín de la Torre, El Romeral-Peñón de Zapata
40 000 €

Ubicados en una localidad con todos los servicios básicos necesarios, cerca de s...

0
0 opiniones

Terreno en El Romeral-Peñón de Zapata

Malaga, Alhaurín de la Torre, El Romeral-Peñón de Zapata, El Romeral-Peñón de Zapata
400 000 €

**Terreno Urbano en Alhaurín de la Torre - ¡Tu Oportunidad de Construcción! ** D...

0
0 opiniones

Terreno en calle Blas Infante

Malaga, Cártama, Estación, Calle Blas Infante
1 600 000 €

Suelo URBANO CONSOLIDADO céntrico de 1.182m2, hasta 22 viviendas. Suelo urbano c...

0
0 opiniones

Terreno en Estación

Malaga, Cártama, Estación, Estación
260 000 €

SE VENDE. PARCELA RÚSTICA EN CAMINO ARROYO DE LOS MORENOS, MÁLAGA. Parcela de 2....

0
0 opiniones

Terreno en camino Finca Los Sánchez s/n

Malaga, Málaga, Campanillas, Camino Finca Los Sánchez s/n
99 900 €

REFERENCIA: 68A77 TERRENO URBANO NO CONSOLIDADO IDEAL PARA INVERTIR A la venta,...

0
0 opiniones

Terreno en Barrio Campanillas

Malaga, Málaga, Campanillas, Barrio Campanillas
88 900 €

CAMPANILLAS Referencia 204 Solar urbano de 124m2 con una edificabilidad de 144m2...

0
0 opiniones
Llamada

Utilizamos cookies propias y de terceros para analizar el uso del sitio web y mostrarte publicidad relacionada con tus preferencias sobre la base de un perfil elaborado a partir de tus hábitos de navegación (por ejemplo, páginas visitadas). Más información. ¿Aceptas las cookies?