Terreno en calle Jubrique

Malaga, Marbella, Nagüeles-Milla de Oro, Calle Jubrique
3 500 000 €
Dejar reseña
Urbanizable Tipo de propiedad
2 335 m² Superficie del terreno
4 Planta
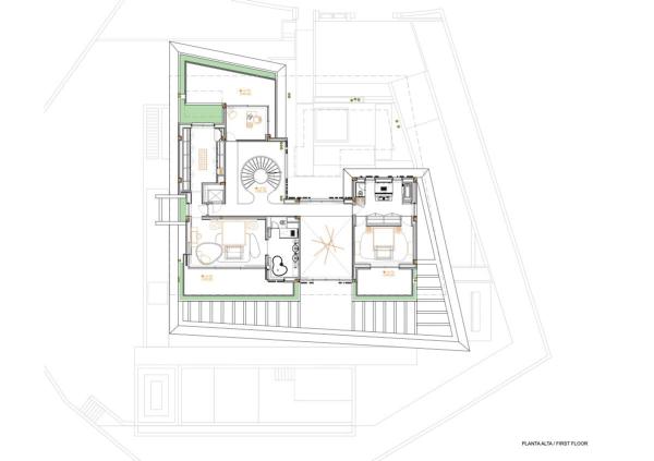
Este impresionante proyecto de villa de lujo ofrece la combinación perfecta de elegancia, diseño moderno y comodidad, ideal para el comprador exigente que desea crear la casa de sus sueños en una de las ubicaciones más prestigiosas de Marbella. Importante: El precio indicado incluye la parcela y el proyecto arquitectónico, pero no cubre el coste de la construcción. Esto brinda una oportunidad única para personalizar la edificación según sus preferencias y especificaciones. Con una extensa parcela de 2.335 m² y 1.300 m² de espacio habitable meticulosamente diseñado, esta villa es una verdadera obra maestra. La propiedad incluirá 7 amplios dormitorios, incluyendo una impresionante suite principal, y 9 lujosos cuartos de baño para el máximo confort. Perfectamente orientada al sur, la villa disfruta de abundante luz solar durante todo el día, con un impresionante espacio exterior que cuenta con 597 m² de terrazas, ideales para el entretenimiento al aire libre o simplemente para relajarse junto a la piscina privada. La villa está diseñada para un estilo de vida sofisticado, con una planta principal de planta abierta que incluye una moderna cocina totalmente equipada y amplias zonas de comedor que fluyen a la perfección en las amplias zonas de estar. Este nivel también ofrece 2 dormitorios en suite con amplios armarios, proporcionando comodidad y privacidad para la familia o los invitados. En la primera planta, encontrará 2 dormitorios más, incluida la lujosa suite principal, así como una elegante oficina que podría convertirse fácilmente en un dormitorio adicional si lo desea. El nivel inferior de la villa ofrece espacios versátiles y amplios, ideales para crear un gimnasio en casa, una sala de cine o una zona de entretenimiento diseñada a medida. Además, esta planta incluye 2 amplios dormitorios, cada uno con su propio cuarto de baño privado, que ofrecen comodidad y privacidad. Este nivel también cuenta con un garaje con espacio para hasta 3 coches, proporcionando un cómodo acceso al resto de la propiedad. El punto culminante de la villa es su terraza en la azotea, que ofrece vistas panorámicas de Marbella y las montañas circundantes. Este nivel cuenta con una elegante piscina de inmersión, una zona de entretenimiento con espacio para comer y zonas de descanso adicionales, por lo que es el escenario perfecto para cócteles al atardecer o entretener a los invitados bajo las estrellas. Situada a sólo 5 minutos en coche de la playa y de Marbella, esta villa se encuentra muy cerca de servicios de primera clase, tiendas, restaurantes, campos de golf y colegios internacionales, lo que garantiza lo mejor de la comodidad y la exclusividad Póngase en contacto con nosotros para reservar una cita personalizada y descubrir la visión de este excepcional proyecto de villa.

Características de la propiedad

Complex information

  • Tipo de propiedad
    Urbanizable

Datos de la propiedad

  • Planta
    4
  • Tipo de la propiedad
    Segunda mano

Superficies

  • Superficie del terreno
    2 335 m²

Base

Planos

Estadísticas de precios del mercado para Terreno en calle Jubrique

Mapa

Malaga, Marbella, Nagüeles-Milla de Oro, Calle Jubrique Ir a la propiedad
Deja una opinión sobre Terreno en calle Jubrique
0
0 reseñas
1
0% (0)
2
0% (0)
3
0% (0)
4
0% (0)
5
0% (0)
Marbella West Engel & Völkers
3 500 000 €
Contactar con la plataforma

para obtener más información contacta con el catálogo

REF: 242301

Opiniones sobre Terreno en calle Jubrique
Loading...

No reviews have been left for this object yet

Propiedades más cercanas

Explora propiedades cercanas que hemos descubierto en las proximidades de esta ubicación.

Terreno en Diseminado Poligono 06, 8

Malaga, Marbella, Marbella Pueblo, Diseminado Poligono 06, 8
1 242 500 €

Parcela a 3 minutos del centro comercial la cañada, actualmente es rustico, pero...

0
0 opiniones

Terreno en calle Jubrique, 29 -49

Malaga, Marbella, Nagüeles-Milla de Oro, Calle Jubrique, 29 -49
3 500 000 €

Esta asombrosa parcela con proyecto está situada en la prestigiosa zona de Nagüe...

0
0 opiniones

Terreno en calle San Ramón

Malaga, Marbella, Marbella Pueblo, Calle San Ramón
450 000 €

Terreno con Proyecto Residencial Aprobado en el Casco Antiguo de Marbella Este e...

0
0 opiniones

Terreno en Urbanizacion el Herrojo, 129

Malaga, Benahavís, La Quinta, Urbanizacion el Herrojo, 129
790 000 €

Terreno Urbano Exclusivo en La Quinta, Costa del Sol. Magnífica parcela de 1320...

0
0 opiniones

Terreno en calle Marqués de Revilla, 20 -4

Malaga, Benahavís, La Quinta, Calle Marqués de Revilla, 20 -4
995 000 €

Parcela residencial situada en La Quinta, cerca de uno de los mejores hoteles de...

0
0 opiniones

Terreno en calle Albinoni s/n

Malaga, Marbella, Nagüeles-Milla de Oro, Calle Albinoni s/n
3 700 000 €

¡No se pierda esta oportunidad única y excelente inversión! Esta espectacular pa...

0
0 opiniones

Terreno en Barrio Sierra Blanca

Malaga, Marbella, Nagüeles-Milla de Oro, Barrio Sierra Blanca
2 000 000 €

Ubicada en el corazón de una de las zonas residenciales más exclusivas y codicia...

0
0 opiniones

Terreno en Barrio Huerta del Prado-La Montua

Malaga, Marbella, Marbella Pueblo, Barrio Huerta del Prado-La Montua
1 400 000 €

Ubicada en la prestigiosa zona residencial de La Montua, esta parcela representa...

0
0 opiniones

Terreno en Barrio Huerta del Prado-La Montua

Malaga, Marbella, Marbella Pueblo, Barrio Huerta del Prado-La Montua
890 000 €

Esta es una rara oportunidad de adquirir una parcela elevada de 2.111 m2 en la p...

0
0 opiniones
Llamada

Utilizamos cookies propias y de terceros para analizar el uso del sitio web y mostrarte publicidad relacionada con tus preferencias sobre la base de un perfil elaborado a partir de tus hábitos de navegación (por ejemplo, páginas visitadas). Más información. ¿Aceptas las cookies?