Terreno en Barrio Campo de Mijas

Malaga, Mijas, Campo de Mijas, Barrio Campo de Mijas
225 000 €
Dejar reseña
Urbanizable Tipo de propiedad
725 m² Superficie del terreno
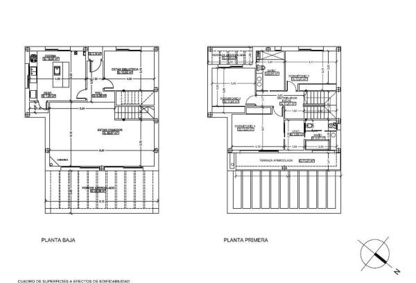
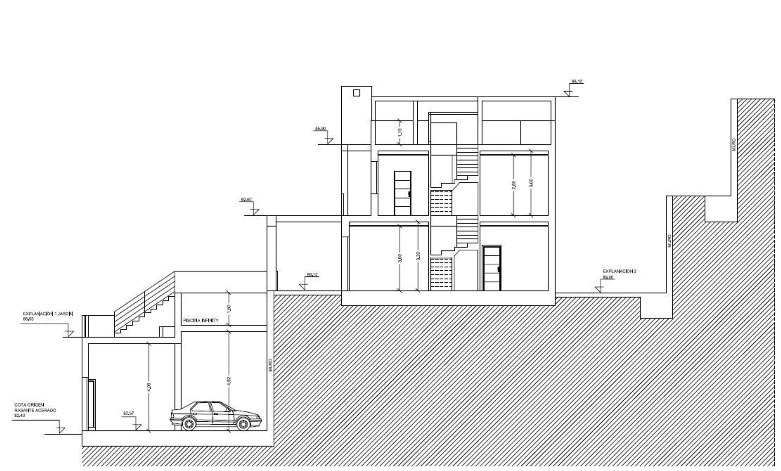
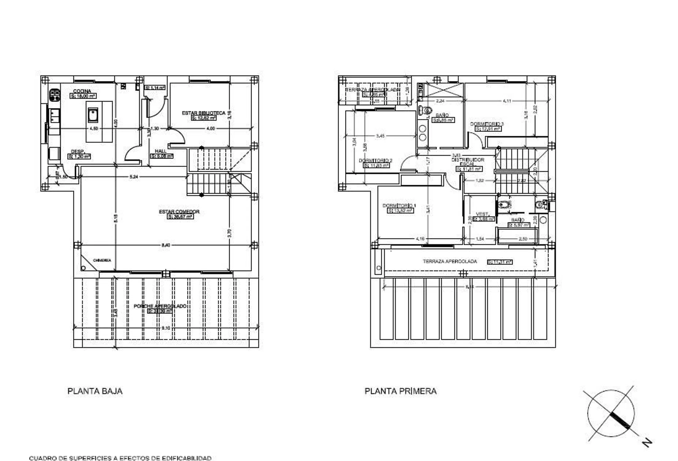
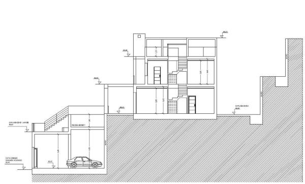
Esta parcela en La Sierrezuela es una opción ideal para aquellos que buscan construir una vivienda en un entorno tranquilo y cercano a la playa. Situada en una zona tranquila entre Fuengirola y Mijas, a solo 10 minutos en coche de la playa, La parcela tiene una extensión de 725 metros cuadrados, ofreciendo un amplio espacio para la construcción y el disfrute exterior. Una Ubicación ideal para quienes buscan paz y serenidad, con la ventaja de estar cerca de servicios y la playa. Con Proyecto Aprobado por lo que lleva a un ahorro de tiempo y trámites. Tanto la parcela como la vivienda ofrecen un amplio espacio para personalizar y adaptar según las necesidades y gustos personales. Esta parcela con proyecto de vivienda es una oportunidad excepcional para construir una casa en un entorno deseable, combinando tranquilidad, proximidad a la costa y eficiencia energética. No deje pasar esta oportunidad! Llámenos sin compromiso! // En el decreto 218/2005, de 11 de octubre, por el que se aprueba el reglamento de información al consumidor en la compraventa y arrendamiento de viviendas en Andalucía, se informa al cliente que en el precio indicado no están incluidos los gastos derivados de la compraventa de la propiedad según las leyes vigentes (ITP, gastos notariales y en caso de obra nueva el impuesto de IVA). Le ofrecemos un estudio financiero GRATIS y sin compromiso.

Características de la propiedad

Complex information

  • Tipo de propiedad
    Urbanizable

Datos de la propiedad

  • Tipo de la propiedad
    Segunda mano

Superficies

  • Superficie del terreno
    725 m²

Base

Planos

Estadísticas de precios del mercado para Terreno en Barrio Campo de Mijas

Mapa

Malaga, Mijas, Campo de Mijas, Barrio Campo de Mijas Ir a la propiedad
Deja una opinión sobre Terreno en Barrio Campo de Mijas
0
0 reseñas
1
0% (0)
2
0% (0)
3
0% (0)
4
0% (0)
5
0% (0)
W-Home Inmobiliaria
225 000 €
Contactar con la plataforma

para obtener más información contacta con el catálogo

REF: 244401

Opiniones sobre Terreno en Barrio Campo de Mijas
Loading...

No reviews have been left for this object yet

Propiedades más cercanas

Explora propiedades cercanas que hemos descubierto en las proximidades de esta ubicación.

Terreno en venta en La Cala Golf - Lagar Martell

Malaga, Mijas, La Cala Golf - Lagar Martell
300 000 €

Oportunidad única en La Cala Golf: ¡Construya la casa de sus sueños en el paraís...

0
0 opiniones

Terreno en Arrabal Sup C12, 1 a

Malaga, Mijas, Calaburra - Chaparral, Arrabal Sup C12, 1 A
440 000 €

El concepto de diseño más universal y fundamental define una de las promociones...

0
0 opiniones

Terreno en Arrabal Sup C12, 1 a

Malaga, Mijas, Calaburra - Chaparral, Arrabal Sup C12, 1 A
400 000 €

El concepto de diseño más universal y fundamental define una de las promociones...

0
0 opiniones

Terreno en Arrabal Sup C12, 43

Malaga, Mijas, Calaburra - Chaparral, Arrabal Sup C12, 43
420 000 €

El concepto de diseño más universal y fundamental define una de las promociones...

0
0 opiniones

Terreno en Tn Ur-9

Malaga, Fuengirola, Torreblanca del Sol, TN UR-9
165 000 €

UBICACIÓN PRIVILEGIADA EN UNA ZONA TRANQUILA, PRIVADA Y EN PLENO DESARROLLO URBA...

0
0 opiniones

Terreno en Urbanización la Sierrezuela

Malaga, Mijas, Campo de Mijas, Urbanización la Sierrezuela
412 000 €

¡Descubre la oportunidad que estabas esperando en Mijas! Este terreno urbanizabl...

0
0 opiniones

Terreno en Arrabal Sup C12, 12

Malaga, Mijas, Calaburra - Chaparral, Arrabal Sup C12, 12
370 000 €

El concepto de diseño más universal y fundamental define una de las promociones...

0
0 opiniones

Terreno en Arrabal Sup C12, 11

Malaga, Mijas, Calaburra - Chaparral, Arrabal Sup C12, 11
386 000 €

El concepto de diseño más universal y fundamental define una de las promociones...

0
0 opiniones

Terreno en la alqueria

Malaga, Mijas, Mijas Pueblo, La Alquería
162 000 €

¡ OPORTUNIDAD ÚNICA INVERSORES – VENTA URGENTE POR MOTIVOS DE SALUD ! EN VENTA:...

0
0 opiniones
Llamada

Utilizamos cookies propias y de terceros para analizar el uso del sitio web y mostrarte publicidad relacionada con tus preferencias sobre la base de un perfil elaborado a partir de tus hábitos de navegación (por ejemplo, páginas visitadas). Más información. ¿Aceptas las cookies?