Terreno en paseo del Castillo

Malaga, Ojén, Ojén pueblo, Paseo del Castillo
3 000 000 €
Dejar reseña
Urbanizable Tipo de propiedad
50 000 m² Superficie del terreno
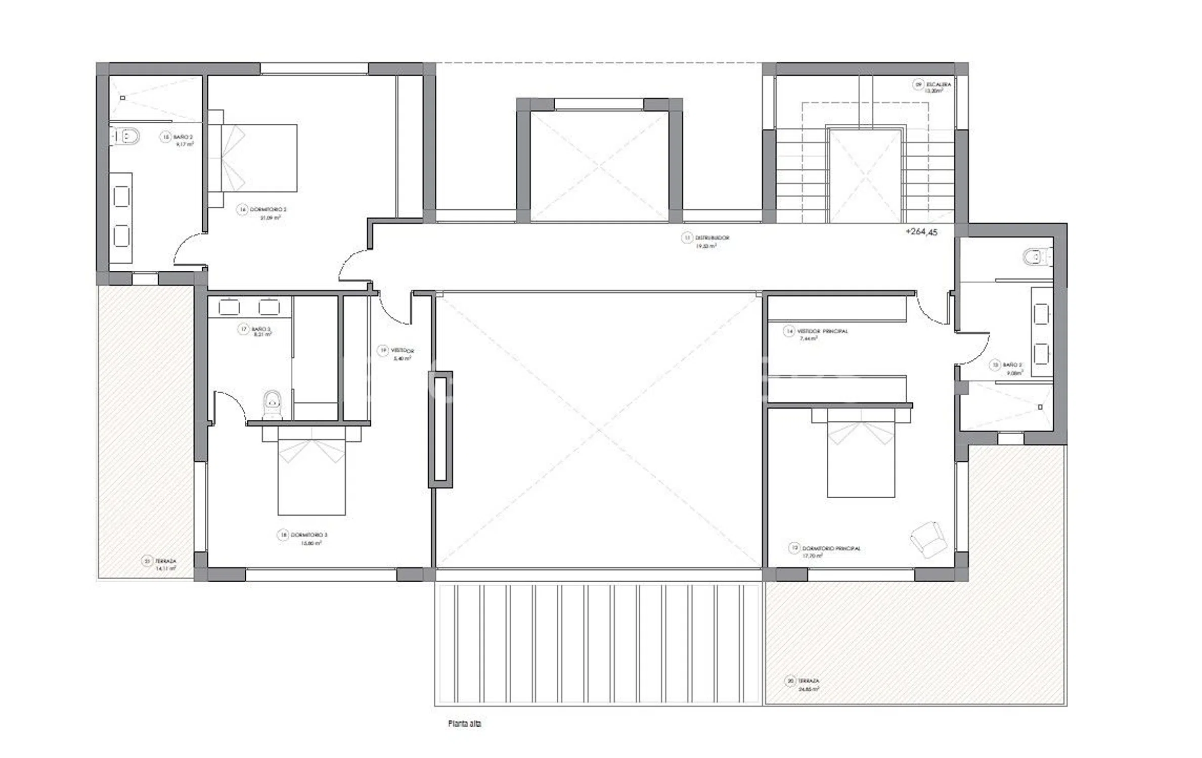
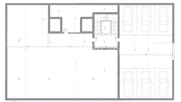
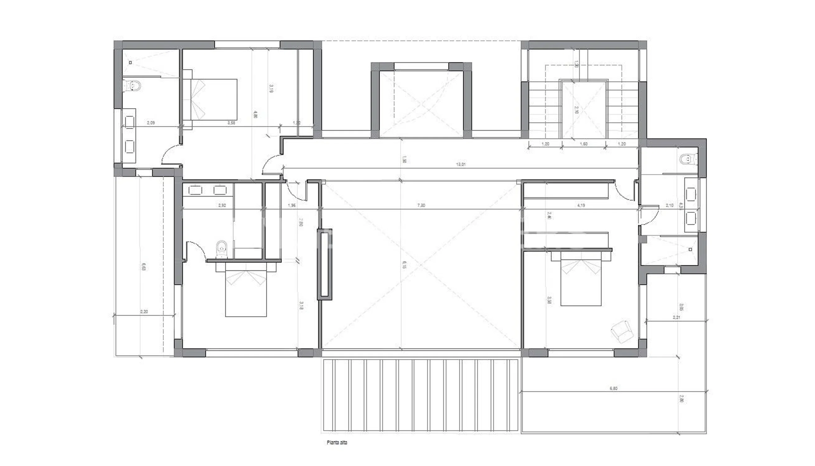
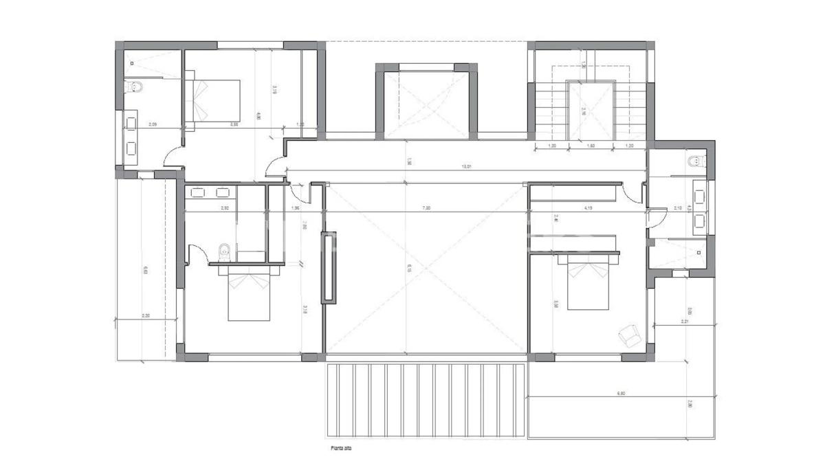
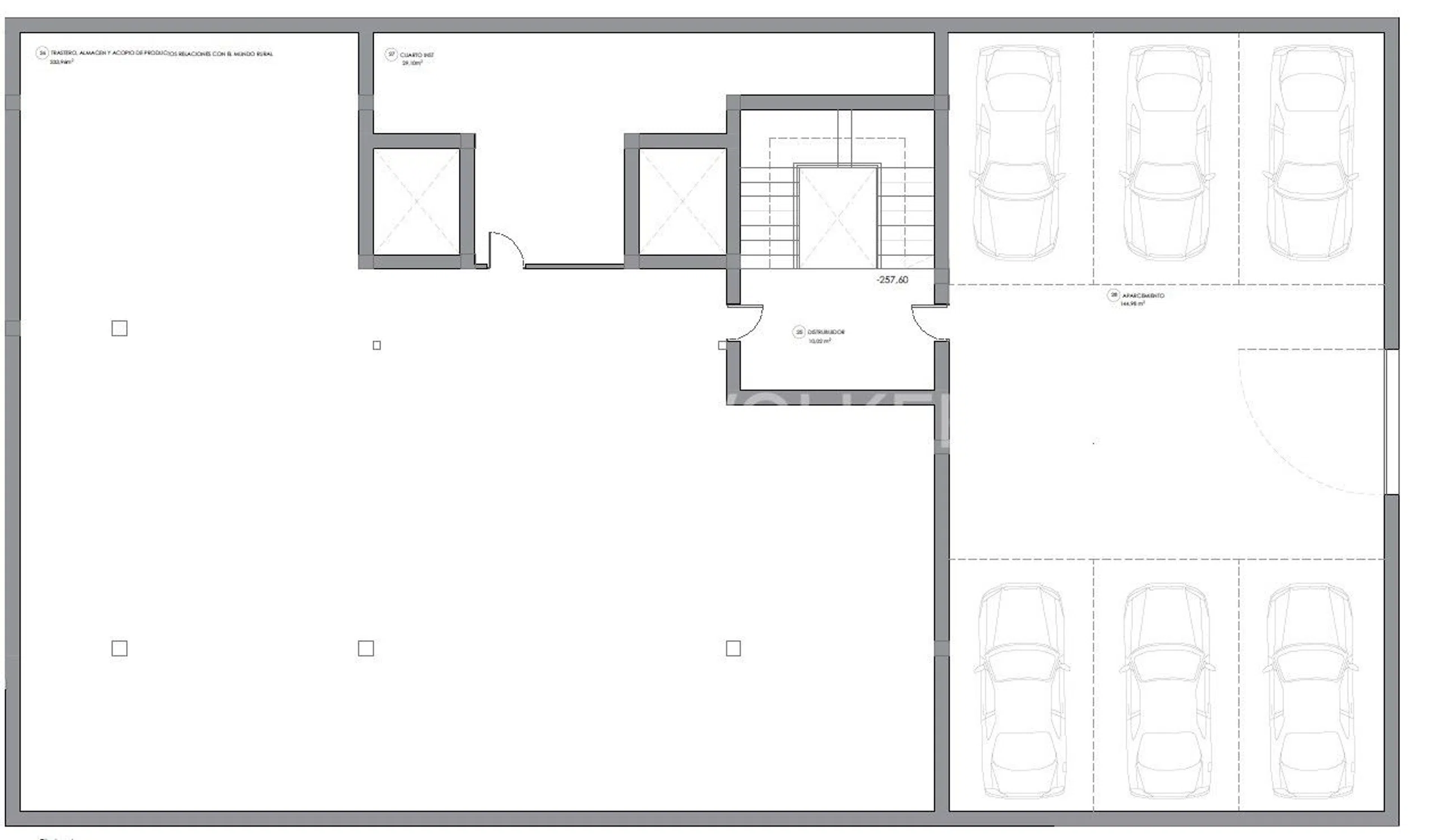
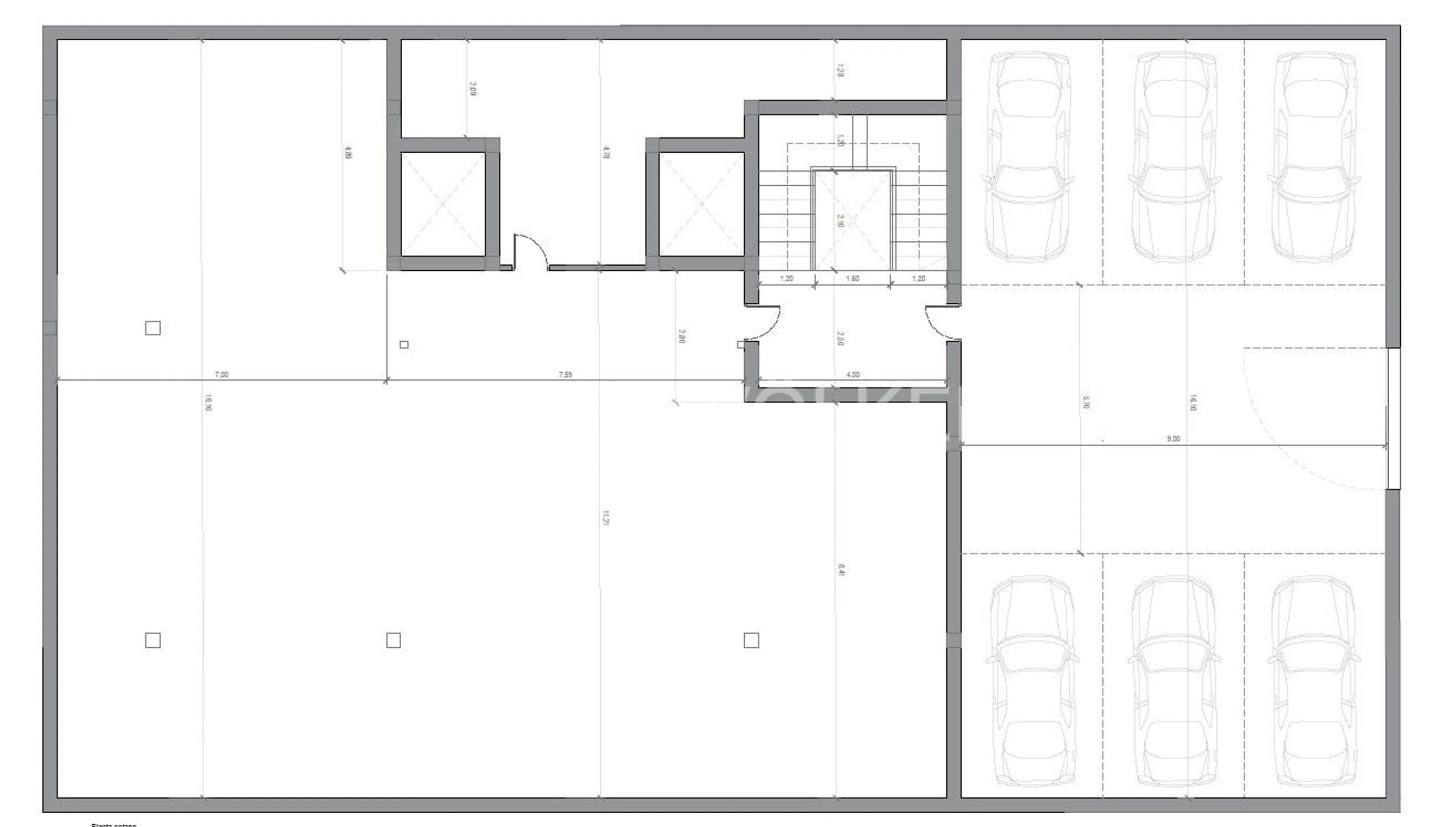
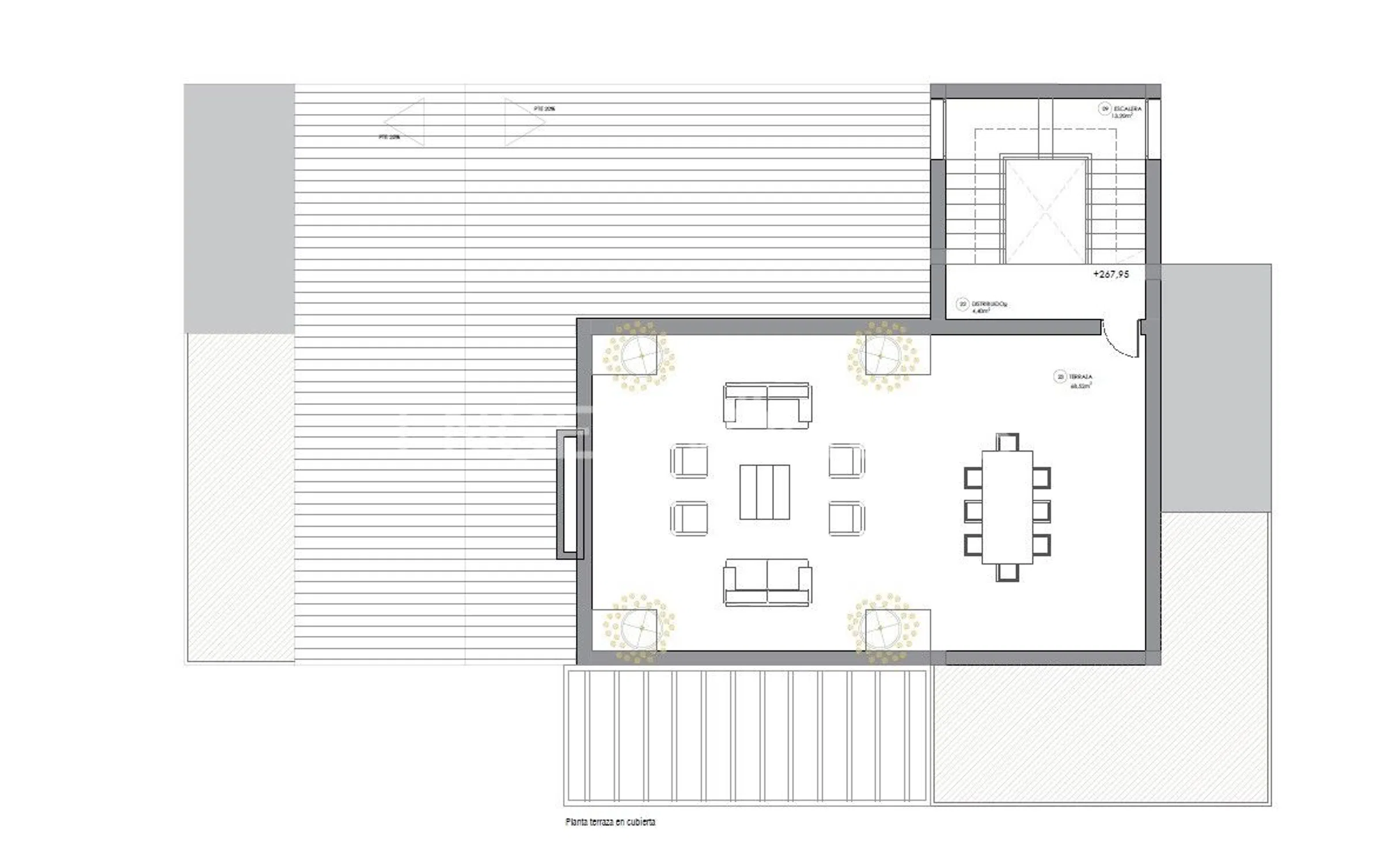
Descubra una oportunidad excepcional de adquirir un trozo de paraíso en la apreciada región de La Mairena. Esta mansión sobre plano, situada en una amplia parcela de 50.000 metros cuadrados, ofrece una experiencia de vida inigualable con 1.000 metros cuadrados de diseño elegante y moderno. Se prevé que la licencia de obras se expida en 2025 y que la fase de construcción finalice en 2027. Desde todos los ángulos de esta impresionante propiedad, disfrutará de impresionantes vistas despejadas de las montañas circundantes, los valles y el lejano mar Mediterráneo. Los 1.000 metros cuadrados de superficie construida de la mansión ofrecen un amplio espacio para una vida de lujo, con amplios interiores diseñados con los más altos estándares. Convenientemente situada, la propiedad garantiza que su retiro privado esté aislado y sea fácilmente accesible. Hay dos opciones de compra flexibles disponibles para esta propiedad. Puede asegurarse la parcela por 3.000. 000 de euros, lo que le permitirá diseñar la casa de sus sueños. Alternativamente, puede elegir la mansión terminada y totalmente terminada por 5.000. 000 €, que ofrece una experiencia de mudanza sin complicaciones con todos los lujos ya incluidos. Esta mansión sobre plano representa una oportunidad de inversión única en una de las ubicaciones más deseadas. Tanto si decide desarrollar la propiedad según su visión o mudarse a una obra maestra terminada, esta finca ofrece un valor y una exclusividad excepcionales. No se pierda esta rara oportunidad de poseer una mansión sobre plano en La Mairena, con vistas panorámicas, fácil acceso y lujosos espacios habitables. Póngase en contacto con nosotros hoy mismo para obtener más información sobre esta oportunidad exclusiva y para programar una visita.

Características de la propiedad

Complex information

  • Tipo de propiedad
    Urbanizable

Datos de la propiedad

  • Tipo de la propiedad
    Segunda mano

Superficies

  • Superficie del terreno
    50 000 m²

Base

Estadísticas de precios del mercado para Terreno en paseo del Castillo

Mapa

Malaga, Ojén, Ojén pueblo, Paseo del Castillo Ir a la propiedad
Deja una opinión sobre Terreno en paseo del Castillo
0
0 reseñas
1
0% (0)
2
0% (0)
3
0% (0)
4
0% (0)
5
0% (0)
3 000 000 €
Contactar con la plataforma

para obtener más información contacta con el catálogo

REF: 242958

Opiniones sobre Terreno en paseo del Castillo
Loading...

No reviews have been left for this object yet

Propiedades más cercanas

Explora propiedades cercanas que hemos descubierto en las proximidades de esta ubicación.

Terreno en Diseminado Poligono 06, 8

Malaga, Marbella, Marbella Pueblo, Diseminado Poligono 06, 8
1 242 500 €

Parcela a 3 minutos del centro comercial la cañada, actualmente es rustico, pero...

0
0 opiniones

Terreno en Barrio Alto de los Monteros

Malaga, Marbella, Rio Real-Los Monteros, Barrio Alto de los Monteros
590 000 €

Solar en Marbella, Málaga con vistas al mar y a tan solo 8 minutos del hospital...

0
0 opiniones

Terreno en Barrio Sierra Blanca

Malaga, Marbella, Nagüeles-Milla de Oro, Barrio Sierra Blanca
2 000 000 €

Ubicada en el corazón de una de las zonas residenciales más exclusivas y codicia...

0
0 opiniones

Terreno en Barrio Huerta del Prado-La Montua

Malaga, Marbella, Marbella Pueblo, Barrio Huerta del Prado-La Montua
1 400 000 €

Ubicada en la prestigiosa zona residencial de La Montua, esta parcela representa...

0
0 opiniones

Terreno en Barrio Huerta del Prado-La Montua

Malaga, Marbella, Marbella Pueblo, Barrio Huerta del Prado-La Montua
890 000 €

Esta es una rara oportunidad de adquirir una parcela elevada de 2.111 m2 en la p...

0
0 opiniones

Terreno en paseo del Chifle, 1

Malaga, Ojén, Ojén pueblo, Paseo del Chifle, 1
55 000 €

Solar urbanizable para hacer una casa.

0
0 opiniones

Terreno en Barrio Alto de los Monteros

Malaga, Marbella, Rio Real-Los Monteros, Barrio Alto de los Monteros
1 100 000 €

Ubicada en un entorno privilegiado, esta magnífica parcela ofrece la combinación...

0
0 opiniones

Terreno en Urbanizacion los Altos de los Monteros s/n

Malaga, Marbella, Rio Real-Los Monteros, Urbanizacion los Altos de los Monteros s/n
9 000 000 €

¡Oportunidad única para promotores e inversores! Presentamos un espectacular ter...

0
0 opiniones

Terreno en Barrio Sierra Blanca

Malaga, Marbella, Nagüeles-Milla de Oro, Barrio Sierra Blanca
6 900 000 €

Una de las mejores y últimas parcelas de la ultra exclusiva Cascada de Camojan,...

0
0 opiniones

Utilizamos cookies propias y de terceros para analizar el uso del sitio web y mostrarte publicidad relacionada con tus preferencias sobre la base de un perfil elaborado a partir de tus hábitos de navegación (por ejemplo, páginas visitadas). Más información. ¿Aceptas las cookies?