Obra nueva Promenade Ribera en San Javier (Revista)

Murcia, San Javier
desde 425 000 €
3 761 € / m2
Dejar reseña
2025 Año de entrega
113 m² - 113 m² Superficie
3 Cantidad de dormitorios
3 Baños

Inmuebles en Promenade Ribera

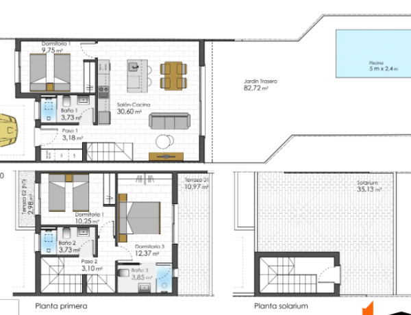
Nuestro exclusivo conjunto de villas en esta ubicación ofrece una experiencia inigualable a pocos pasos de las playas de aguas cristalinas. Cada propiedad se compone de tres dormitorios y tres baños, complementados con un solárium privado y piscina, distribuidos en dos niveles que optimizan el diseño del espacio.

En la planta baja, destaca un amplio salón con cocina americana luminosa, junto a un dormitorio doble equipado con armarios empotrados y un baño completo. Desde el salón, se accede a una acogedora terraza y a una piscina privada, perfectas para disfrutar del clima local.

La planta superior alberga dos dormitorios dobles con armarios empotrados y dos baños, uno de ellos en suite junto al dormitorio principal. Este último ofrece acceso a un encantador balcón de aproximadamente 11 m², ideal para disfrutar del aire fresco.

El amplio solárium de unos 35 m² ofrece la oportunidad de crear un espacio único, ya sea para una cocina al aire libre, jacuzzi o área de relax personal.

Ventajas de una nueva construcción Promenade Ribera

Con una ubicación privilegiada cerca de playas y del centro de San Javier, estas villas brindan acceso rápido a una variedad de restaurantes, tiendas y bares. La cercanía a un aeropuerto local a solo cinco minutos en coche, y a 45 minutos del aeropuerto principal, facilita la movilidad. Además, los alrededores son ideales para amantes del golf y explorar maravillas como las Salinas y Arenales de San Pedro.

Las opciones de ocio y compras están aseguradas con la proximidad a un centro comercial y un importante boulevard comercial a solo 20 minutos, permitiendo disfrutar al máximo de todas las comodidades modernas.

Vida en la ciudad San Javier

Situada en la Costa Cálida, San Javier ofrece 4 km de playas para disfrutar de aguas tranquilas, convirtiéndose en un destino apreciado por aquellos que buscan combinar relajación con entretenimiento. Gracias a su ubicación estratégica, es fácilmente accesible desde ciudades como Cartagena y Murcia.

La ciudad se destaca no solo por su entorno natural, sino también por su rica oferta gastronómica y diversidad de servicios, consolidándose como un destino popular en la región. Para quienes buscan una vida cerca del mar y con comodidades modernas, estas villas ofrecen una opción inmejorable. Animamos a aquellos interesados a visitarnos para descubrir en persona todo lo que estas propiedades tienen para ofrecer.

Promociones destacadas en España

10 unidades

Nature Views 2

Alicante, Torrevieja, Los Balcones - Los Altos del Edén, Denia s/n
310 000 € - 379 000 €
1 unidades

Hotel en venta en Benidorm centro

Alicante, Benidorm, Playa de Poniente
2 250 000 € - 2 250 000 €
28 unidades

Residencial Los Balcones De Calpe

Alicante, Calpe, Calpe Pueblo, Avenida de Madrid, 1
299 000 € - 892 125 €
4 unidades

Nature Views

Alicante, Torrevieja, Lago Jardín II, Avenida Denia s/n
309 000 € - 330 000 €
5 unidades

ALONIS VILLAS

Alicante, La Villajoyosa / Vila Joiosa, Platja de Torres, Partida Torres s/n
675 000 € - 775 000 €
1 unidades

Residencial Royal Beach

Alicante, Guardamar del Segura, pueblo, Miguel Hernández 102
349 500 € - 349 500 €
7 unidades

Royal Star

Alicante, Guardamar del Segura
229 500 € - 269 500 €

Propiedades en este complejo

La información aportada de precios, especificaciones y detalles de esta promoción es susceptible de posibles variaciones y cambios según el fuente. Por lo que no dispone de un valor comercial en sí misma, sino que es meramente informativa y orientativa. Esta web no comercializa este proyecto o inmueble .

Nombre
Habitaciones
Baños
Superficie construida
Planta
Categoría
Precio
N2 3 3 113 m² Adosados 425 000 € Visit
V10 3 3 113 m² Duplexes 465 000 € Visit
Esta información ha sido obtenida de fuentes públicas y puede no estar actualizada. No representa un vínculo con la promotora

Características de la propiedad

Complex information

  • Número de unidades
    2
  • Rango de precios
    425 000 € - 465 000 €
  • Cantidad de dormitorios
    3
  • Superficie
    113 m² - 113 m²
  • Tipos de inmuebles
    Duplexes, Adosados

Información del proyecto / Estado de obra

  • Año de entrega
    2025
  • Fecha de entrega
    Septiembre
  • Estado Promoción
    En construcción
  • Regimen
    Libre

Datos promoción

  • Piso piloto
    Si

Datos de la propiedad

  • Tipo de cocina
    Cocina americana
  • Dormitorios
    3
  • Baños
    3
  • M2 medios
    113 m²
  • Tipo de la propiedad
    Obra nueva

Superficies

  • Superficie de solarium
    35 m²

Cerca de:

  • Distancia Aeropuerto
    41.80 km
  • Distancia al mar
    100.00 m

Base

  • Total plantas
    2

Instalaciones

Comodidades de la vivienda:

Aire acondicionado
Piscina privada
Armarios empotrados

En edificio:

Piscina
Solárium
Parking privado

Documentos: de Promenade Ribera

Planos

Estadísticas de precios del mercado para Promenade Ribera

445 000 € (3 938 €/m2)
Precio medio en el complejo
445 000 € (3 938 €/m2)
Precio promedio de apartamentos de 3 habitaciones
428 457 € (2 987 €/m2)
Precio promedio de propiedades primarias Casas en la ciudad San Javier
337 292 € (2 263 €/m2)
Precio promedio de propiedades primarias Pisos en la ciudad San Javier

Mapa

Murcia, San Javier Ir a la propiedad
Deja una opinión sobre Promenade Ribera
0
0 reseñas
1
0% (0)
2
0% (0)
3
0% (0)
4
0% (0)
5
0% (0)
Margove
425 000 €
desde 3 761 € / m2
Contactar con la plataforma

para obtener más información contacta con el catálogo

REF: 25085

Opiniones sobre Promenade Ribera
Loading...

No reviews have been left for this object yet

Propiedades más cercanas

Explora propiedades cercanas que hemos descubierto en las proximidades de esta ubicación.

17 unidades

Obra nueva Residencial Belich III en San Pedro del Pinatar

Murcia, San Pedro del Pinatar, Los Peñascos-El Salero-Los Imbernones, Calle Valle del Silencio , 2
245 000 € - 350 000 €

Inmuebles en Residencial Belich IIIExplora un refugio paradisíaco en la costa me...

0
0 opiniones
2 unidades

Obra nueva Higuericas Beach en Pilar de la Horadada

Alicante, Pilar de la Horadada, El Mojón, Calle Juan Ramon Jimenez, 9
445 000 € - 550 000 €

VIVIENDAS DE LUJO CON VISTAS AL MAR, 3 habitaciones, 3 baños, piscina en terraza...

0
0 opiniones
1 unidades

Obra nueva Villamar Luxury Villas X en Pilar de la Horadada

Alicante, Pilar de la Horadada
370 000 € - 370 000 €

Inmuebles en Villamar Luxury Villas X Explora las impresionantes villas modernas...

0
0 opiniones
7 unidades

Obra nueva Bahia Homes Horadada en Pilar de la Horadada

Alicante, Pilar de la Horadada
344 900 € - 384 900 €

Adosados y pareados modernos de nueva construcción en una zona tranquila de Pila...

0
0 opiniones
3 unidades

Obra nueva Bella Salina Villas en San Javier

Murcia, San Javier
476 900 € - 521 900 €

Las villas en Bella Salina destacan por ofrecer espacios amplios y modernos, con...

0
0 opiniones
1 unidades

Obra nueva Porto Marina Higuericas en Pilar de la Horadada

Alicante, Pilar de la Horadada
460 000 € - 460 000 €

Inmuebles en Porto Marina Higuericas Esta atractiva promoción de obra nueva se...

0
0 opiniones

Obra nueva Marvic II en Pilar de la Horadada

Alicante, Pilar de la Horadada
-

Bienvenido a este hermoso proyecto de nueva construcción en el corazón de Pilar...

0
0 opiniones

Obra nueva VISTA AZUL XXXVI_Higuericas Beach en Pilar de la Horadada

Alicante, Pilar de la Horadada
-

El VISTA AZUL XXXVI HIGUERICAS BEACH está situado muy cerca del Campo de Golf de...

0
0 opiniones
1 unidades

Obra nueva Playamar XII-XIII en Pilar de la Horadada

Alicante, Pilar de la Horadada
264 900 € - 264 900 €

Inmuebles en Playamar Este exclusivo residencial se caracteriza por notable...

0
0 opiniones
Llamada

Utilizamos cookies propias y de terceros para analizar el uso del sitio web y mostrarte publicidad relacionada con tus preferencias sobre la base de un perfil elaborado a partir de tus hábitos de navegación (por ejemplo, páginas visitadas). Más información. ¿Aceptas las cookies?