Apartamentos en Venta en Calle Francisco Herrera s/n, Seseña

Toledo, Seseña, El Quiñón, Calle Francisco Herrera s/n
Agotado
Dejar reseña
Apartamentos Tipo de propiedad
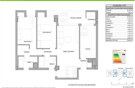
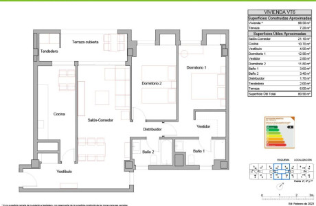
91 m² m2 construidos
2 Baños
2 Dormitorios
En construcción Estado Promoción
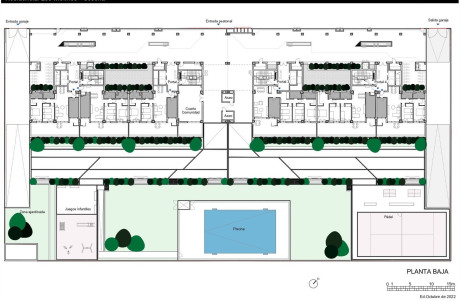
OBRAS INICIADAS/ VISITA PISO PILOTOVenta de pisos de obra nueva sobre plano.Nueva promoción de obra nueva de 156 viviendas con terrazas de 1, 2, 3 y 4 dormitorios, incluyendo plaza de garaje y trastero, en El Quiñón – Seseña.La urbanización dispone de zonas comunes pensadas para toda la familia. Cuenta con piscina, pista de padel y parque infantil.Tendrá la opción de poder ELEGIR LAS CALIDADES de su vivienda sin ningún coste adicional dentro de la gama que les ofrecemos y así poder personalizarla a su gusto, eligiendo tarima, alicatados, solados, carpintería, muebles de baño, muebles de cocina y pintura.El conjunto residencial se encuentra en una zona muy consolidada, con todos los servicios a tu alcance, como supermercados, restauración, veterinarios, colegios, parques, etc…Si estás buscando una zona tranquila donde vivir y a tan solo 30 minutos de Madrid, no lo dudes y llámanos, estaremos encantados de informarte.Promueve Grupo Ferrocarril.

Características de la propiedad

Complex information

  • Complejo residencial
    Residencial Los Molinos
  • Tipo de propiedad
    Apartamentos

Información del proyecto / Estado de obra

  • Estado Promoción
    En construcción

Datos de la propiedad

  • Dormitorios
    2
  • Baños
    2
  • m2 construidos
    91 m²
  • Tipo de la propiedad
    Obra nueva

Certificación energética

  • Consumo energético
    A

Instalaciones

Comodidades de la vivienda:

Muebles
Trastero
Terraza

En edificio:

Piscina
Garaje
Ascensor
Pista de pádel
Área infantil
Zonas huertos
Trastero
Zonas verdes

Estado:

Obra nueva

Estadísticas de precios del mercado para Piso en venta en calle Francisco Herrera s/n

188 753 € (1 879 €/m2)
Precio promedio de propiedades primarias Apartamentos en la ciudad Seseña
188 753 € (1 879 €/m2)
Precio promedio de propiedades primarias Apartamentos en el distrito El Quiñón

Mapa

Toledo, Seseña, El Quiñón, Calle Francisco Herrera s/n Ir a la propiedad
Deja una opinión sobre Piso en venta en calle Francisco Herrera s/n
0
0 reseñas
1
0% (0)
2
0% (0)
3
0% (0)
4
0% (0)
5
0% (0)
Residencial Los Molinos
Complejo residencial
Agotado
Contactar con la plataforma

para obtener más información contacta con el catálogo

REF: 18443

Opiniones sobre Piso en venta en calle Francisco Herrera s/n
Loading...

No reviews have been left for this object yet

Propiedades más cercanas

Explora propiedades cercanas que hemos descubierto en las proximidades de esta ubicación.

Obra nueva Torres Lucientes en Seseña

Toledo, Seseña, El Quiñón, Calle Francisco de Goya, 10
59 897 €

PROMOCIÓN ESPECIAL PRIMAVERA: Todas las viviendas que se reserven antes del 30 d...

0
0 opiniones

Obra nueva Torres Lucientes en Seseña

Toledo, Seseña, El Quiñón, Calle Francisco de Goya, 10
139 770 €

PROMOCIÓN ESPECIAL PRIMAVERA: Todas las viviendas que se reserven antes del 30 d...

0
0 opiniones

Obra nueva Torres Lucientes en Seseña

Toledo, Seseña, El Quiñón, Calle Francisco de Goya, 10
61 790 €

PROMOCIÓN ESPECIAL PRIMAVERA: Todas las viviendas que se reserven antes del 30 d...

0
0 opiniones

Obra nueva Torres Lucientes en Seseña

Toledo, Seseña, El Quiñón, Calle Francisco de Goya, 10
171 107 €

PROMOCIÓN ESPECIAL PRIMAVERA: Todas las viviendas que se reserven antes del 30 d...

0
0 opiniones

Apartamentos en Venta en Calle Francisco de Goya, 10, Seseña

Toledo, Seseña, El Quiñón, Calle Francisco de Goya, 10
175 659 €

PROMOCIÓN ESPECIAL PRIMAVERA: Todas las viviendas que se reserven antes del 30 d...

0
0 opiniones

Apartamentos en Venta en Calle Francisco de Goya, 10, Seseña

Toledo, Seseña, El Quiñón, Calle Francisco de Goya, 10
150 956 €

PROMOCIÓN ESPECIAL PRIMAVERA: Todas las viviendas que se reserven antes del 30 d...

0
0 opiniones

Apartamentos en Venta en Calle Francisco de Goya, 10, Seseña

Toledo, Seseña, El Quiñón, Calle Francisco de Goya, 10
181 607 €

PROMOCIÓN ESPECIAL PRIMAVERA: Todas las viviendas que se reserven antes del 30 d...

0
0 opiniones

Apartamentos en Venta en Calle Francisco de Goya, 10, Seseña

Toledo, Seseña, El Quiñón, Calle Francisco de Goya, 10
184 513 €

PROMOCIÓN ESPECIAL PRIMAVERA: Todas las viviendas que se reserven antes del 30 d...

0
0 opiniones

Apartamentos en Venta en Calle Alarcón , 6, Valdemoro

Madrid, Valdemoro, Centro, Calle Alarcón , 6
127 416 €

Las cimas de Valdemoro es una promoción de 32 viviendas con plaza de garaje, pis...

0
0 opiniones

Utilizamos cookies propias y de terceros para analizar el uso del sitio web y mostrarte publicidad relacionada con tus preferencias sobre la base de un perfil elaborado a partir de tus hábitos de navegación (por ejemplo, páginas visitadas). Más información. ¿Aceptas las cookies?