10 fotos



Obra nueva Célere Eirís en A Coruña (Revista)
desde 241 000 €
desde 2 317 € / m²A Coruña, A Coruña, Eirís, Calle de Ferrer s/n
Ref: 11895
Inmuebles en Célere Eirís
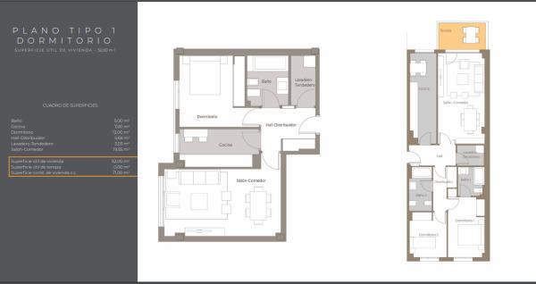
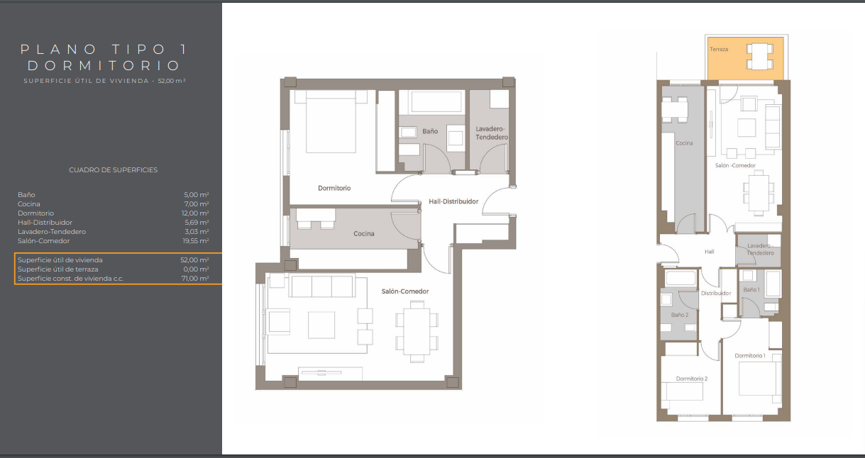
Estamos emocionados de presentar una nueva fase en la residencia, diseñada específicamente para proporcionar comodidad a ti y tu familia. Este conjunto de viviendas consta de 101 unidades plurifamiliares de dos dormitorios, todas con una superficie de 104 m². Cada residencia está en construcción y ya cuenta con la licencia de obra. Además, cada vivienda incluye una plaza de garaje y un trastero, garantizando así un espacio adicional para almacenamiento. Las propiedades también están perfectamente combinadas con áreas comunes bien desarrolladas.
Ventajas de una nueva construcción Célere Eirís
Los residentes podrán disfrutar de una exclusiva sala social-gourmet, un espacio totalmente equipado para reuniones familiares y con amigos. Para los más pequeños, hay un área de juegos diseñada para su diversión. Además, la comodidad se amplía con un aparcamiento para bicicletas y un espacio cardioprotegido con un desfibrilador externo, listo para ser usado en caso de emergencia cardiaca.
Cada detalle ha sido cuidadosamente planificado para ofrecer la máxima calidad y diseño moderno. La promoción posee una calificación energética de clase A, lo que asegura un ahorro energético y económico significativo. La calefacción se realiza mediante un sistema de suelo radiante, y la cocina es independiente y equipada. Las ventanas son de aluminio con rotura de puente térmico, mientras que los suelos son de tarima laminada.
Vida en la ciudad A Coruña
Vivir en la vibrante ciudad de A Coruña te ofrece una combinación perfecta de vida urbana y serenidad hogar. Además de las facilidades dentro de la residencia, el proyecto incorpora un kit de hogar inteligente que incluye un altavoz Amazon Echo Dot. Esta tecnología te permitirá manejar las zonas comunes con control de voz, haciendo tu día a día más sencillo y conectado.
El precio de estas propiedades comienza en 241 000 €, pero es importante recordar que no incluye IVA.
Propiedades
La información aportada de precios, especificaciones y detalles de esta promoción es susceptible de posibles variaciones y cambios según el fuente. Por lo que no dispone de un valor comercial en sí misma, sino que es meramente informativa y orientativa. Esta web no comercializa este proyecto o inmueble.
No se encontraron resultados.
Cambie la configuración del filtro.
Complex information
- Número de unidades1
- Rango de precios241 000 € - 241 000 €
Información del proyecto / Estado de obra
- Estado PromociónEn construcción
- Licencia de obraConcedida
- Formato de la promociónLibre
Memoria de Calidades
- PavimentoTarima laminada
- CarpinteríaAluminio Lacado, Aluminio Rotura Puente Térmico
- CalefacciónSuelo Radiante
Datos de la propiedad
- Tipo de cocinaCocina independiente
- Equipamiento de cocinaEquipada
- m2 construidos104 m²
- Tipo de la propiedadObra nueva
Base
- Total inmuebles101
Certificación energética
- Consumo energético A
- CEE EmisiónA
Promociones destacadas en España
Facilidades
Comodidades de la vivienda
- Trastero
En edificio
- Garaje
- Ascensor
- Spa
- Área infantil
- Trastero
Documentos
Planos
Dirección
A Coruña, A Coruña, Eirís, Calle de Ferrer s/n
Going to this location!

