10 fotos



Obra nueva Navio en Alhaurín de la Torre (Revista)
desde 850 000 €
desde 3 373 € / m²Malaga, Alhaurín de la Torre, Capellanía - Retamar, Calle Navío, 43
Ref: 167094
Propiedades
La información aportada de precios, especificaciones y detalles de esta promoción es susceptible de posibles variaciones y cambios según el fuente. Por lo que no dispone de un valor comercial en sí misma, sino que es meramente informativa y orientativa. Esta web no comercializa este proyecto o inmueble.
No se encontraron resultados.
Cambie la configuración del filtro.
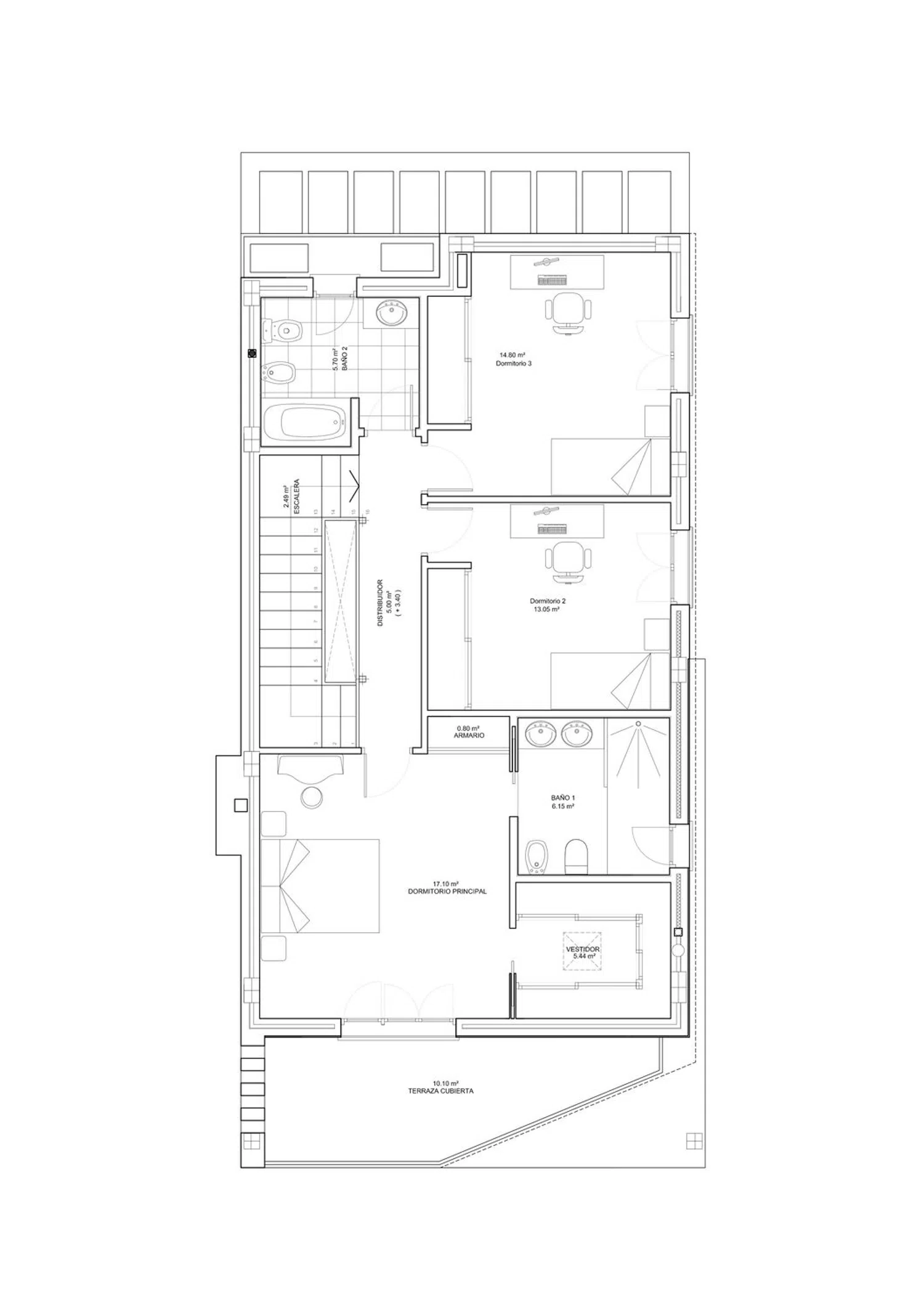
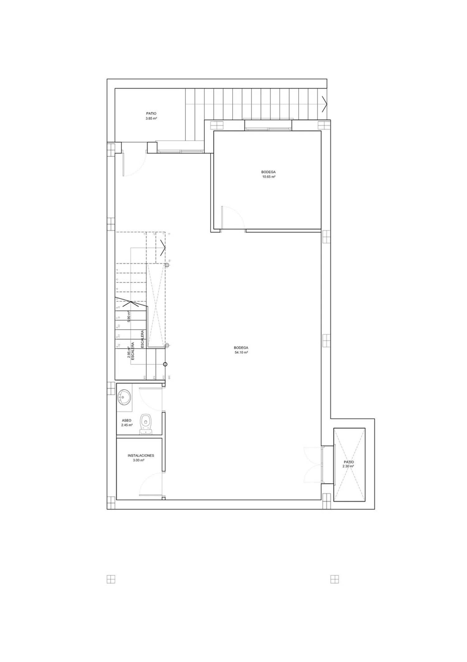
Información del proyecto / Estado de obra
- Año de entrega2025
- Fecha de entregaI Trimestre
- Regimen Libre
Datos de la propiedad
- Tipo de cocinaCocina americana
- m2 construidos252 m²
- Tipo de la propiedadObra nueva
Certificación energética
- Estado de certificado energéticoEn tramite
- Consumo energéticoEn trámite
Promociones destacadas en España
Facilidades
En edificio
- Piscina
- Jardin
- Sótano
Planos
Dirección
Malaga, Alhaurín de la Torre, Capellanía - Retamar, Calle Navío, 43
Going to this location!

