Obra nueva Urbanización en Oleiros (Revista)

A Coruña, Oleiros, Liáns, Calle Adolfo Suarez Gonzalez, 1
Agotado
Dejar reseña
2024 Año de entrega
Superficie
Cantidad de dormitorios
Baños
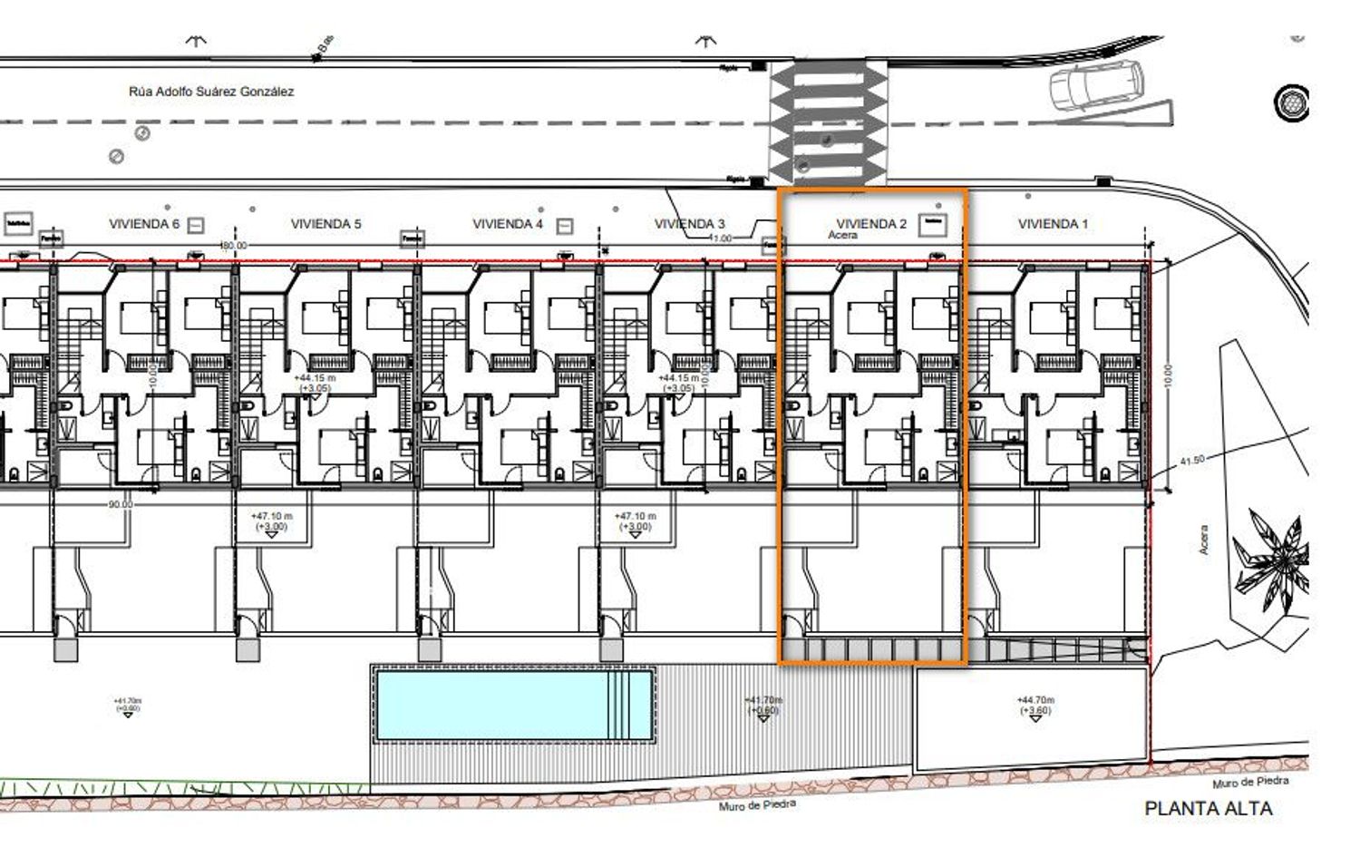
Bonito chalet unifamiliar obra nueva en residencial Galeras - Santa Cruz (Oleiros)La UBICACIÓNA dos calles del centro de la bonita Villa marinera de Santa Cruz, con todos los servicios (alimentación y comercio, restauración, colegios, centro de salud, etc.) a un paseo de 10 minutos … y con autobús a la ciudad cada 15.Integrada en la urbanización única: GALERAS, pensada en clave de tranquilidad, amplitud, luz … junto a la mejor playa del entorno: Bastiagueiro.El PROYECTOEsta vivienda unifamiliar se acoge dentro de un conjunto de chalets en construcción, en formato adosado.El espacio de esta urbanización privada ofrece, además de este chalet unifamiliar, un soplo de aire puro en sus zonas comunes: jardines, piscina y vestuarios … con total privacidad.La superficie construida, en cada inmueble, supera los 220 metros cuadrados, sobre una estudiada geometría de los espacios y, además, las zonas comunes.La CONSTRUCCION … eficienteVivienda ejecutada con una cuidada selección de los mejores materiales y acabados. Construcción estructural en muros de hormigón armado. Fachada en fábrica de ladrillo con trasdosado interior de tabiquería seca. Cubierta aislada y transitable.Eficiencia energética A y certificación verde (3 hojas). Sistema de calefacción por suelo radiante-refrescante. Confort térmico y acústico total.DISTRIBUCIONFormato de tres plantas con acceso directo desde la vía pública en rasante, perfectamente orientado para recoger la luz este-sur-oeste.Planta CEROUn amplio espacio de vida/día con una práctica distribución para SALON-COMEDOR-COCINA (37 m2), orientado a la parcela (Sur) con acceso directo a la terraza cubierta, a través de grandes puertas correderas. Lavandería independiente. Baño (ducha).Planta UNOLa suite, con amplio vestidor y baño privado, sobre más de 24 metros cuadrados. Terraza al sur.Dos dormitorios y un baño en común.ATICOHabitación-dormitorio-estudio-gimnasio de 12,50 metros cuadrados + terraza transitable de 42 metros.SOTANOPlanta garaje con dos cómodas plazas.MEMORIA DE CALIDADES/ACABADOS.Carpintería exterior de aluminio lacado y acristalamiento doble climalit (Cortizo) con rotura de puente térmico y filtro bajo emisivo + solar. Barandillas en vidrio laminado/acero.Carpintería interior lacada en blanco con armarios terminados. Puertas interiores de suelo a techo. Puerta de seguridad en la entrada. Armarios revestidos y distribuidos.Cocina totalmente equipada con muebles altos/bajos e isla central. Electrodomésticos de marca y bajo consumo. Encimera Silestone/Compac.Baños terminados y equipados con piezas cerámicas y griferías de marca, gama alta.Pavimentos interiores porcelánicos o tarima de madera tricapa. Escaleras en madera maciza de roble.Instalación de calefacción mediante aerotermia con suelo radiante/refrescante. Sistema de renovación de aire.Instalación de datos y Tv en todas las habitaciones. Domótica.Garaje con dos plazas y puerta automática. Toma de electricidad en garaje para vehículo eléctrico.Urbanización comunitaria con piscina, vestuarios y local social. Solarium.VALOR/PRECIOEl precio de venta de este chalet unifamiliar con parcela en Galeras-Santa Cruz-Oleiros es de 585.000 euros (negociable según acabados).Si desea visitar este bonito chalet sólo tiene que ponerse en contacto con nosotros en el teléfono de referencia (Antonio Casal).ACS Oleiros suelo&inmobiliariaChe Guevara 33 bajo (junto a Mapfre)Santa Cristina (Oleiros).

Promociones destacadas en España

10 unidades

Nature Views 2

Alicante, Torrevieja, Los Balcones - Los Altos del Edén, Denia s/n
310 000 € - 379 000 €
1 unidades

Hotel en venta en Benidorm centro

Alicante, Benidorm, Playa de Poniente
2 250 000 € - 2 250 000 €
32 unidades

Residencial Los Balcones De Calpe

Alicante, Calpe, Calpe Pueblo, Avenida de Madrid, 1
299 000 € - 892 125 €
7 unidades

Nature Views

Alicante, Torrevieja, Lago Jardín II, Avenida Denia s/n
305 000 € - 330 000 €
10 unidades

ALONIS VILLAS

Alicante, La Villajoyosa / Vila Joiosa, Platja de Torres, Partida Torres s/n
675 000 € - 775 000 €
2 unidades

Residencial Royal Beach

Alicante, Guardamar del Segura, pueblo, Miguel Hernández 102
339 500 € - 345 500 €
8 unidades

Royal Star

Alicante, Guardamar del Segura
224 500 € - 264 500 €
Esta información ha sido obtenida de fuentes públicas y puede no estar actualizada. No representa un vínculo con la promotora

Características de la propiedad

Complex information

Información del proyecto / Estado de obra

  • Año de entrega
    2024
  • Estado Promoción
    En construcción

Memoria de Calidades

  • Calefacción
    Suelo Radiante

Datos de la propiedad

  • M2 medios
    220 m²
  • Tipo de la propiedad
    Obra nueva

Certificación energética

  • Consumo energético
    A

Instalaciones

Comodidades de la vivienda:

Antena de TV
Muebles
Cuarto de ropa
Cabina de baño
Calefacción
Ventanas interiores
Ventana exterior
Terraza

En edificio:

Piscina
Gimnasio
Seguridad
Bar
Zonas huertos
Zonas verdes
Solárium
Jardin

Estado:

Obra nueva
En construcción

Estadísticas de precios del mercado para Urbanización

627 054 € (2 086 €/m2)
Precio promedio de propiedades primarias Casas en la ciudad Oleiros
401 181 € (3 500 €/m2)
Precio promedio de propiedades primarias Pisos en la ciudad Oleiros
412 826 € (3 391 €/m2)
Precio promedio de propiedades primarias Pisos en el distrito Liáns

Mapa

A Coruña, Oleiros, Liáns, Calle Adolfo Suarez Gonzalez, 1 Ir a la propiedad
Deja una opinión sobre Urbanización
0
0 reseñas
1
0% (0)
2
0% (0)
3
0% (0)
4
0% (0)
5
0% (0)
Agotado
Contactar con la plataforma

para obtener más información contacta con el catálogo

REF: 68777

Opiniones sobre Urbanización
Loading...

No reviews have been left for this object yet

Propiedades más cercanas

Explora propiedades cercanas que hemos descubierto en las proximidades de esta ubicación.

2 unidades

Obra nueva Brasil 5 y Méjico 8 en A Coruña

A Coruña, A Coruña, Cuatro Caminos - Plaza de la Cubela, Calle Méjico, 8
435 000 € - 435 000 €

Descubre nuestra exclusiva oferta de obra nueva en la vibrante ciudad de A Coruñ...

0
0 opiniones

Obra nueva An7 Colegio Cristo Rey en Oleiros

A Coruña, Oleiros, Nós, Calle Rua Cascaxeira, 38
-

AN7 es un proyecto pensado para los más exigentes tanto por su diseño moderno co...

0
0 opiniones
1 unidades

Obra nueva Terra Oleiros II en Oleiros

A Coruña, Oleiros, Oleiros, Calle do Lio, 2
459 000 € - 459 000 €

Inmuebles en Terra Oleiros II En el corazón de Oleiros, A Coruña, se presenta un...

0
0 opiniones

Obra nueva Edificio Ártabros en Oleiros

A Coruña, Oleiros, Perillo, Avenida Che Guevara, 41
-

EDIFICIO ARBATROS. EL DISEÑO LLEGA A OLEIROS.Solo 10 exclusivas viviendas y 5 im...

0
0 opiniones

Obra nueva Antonio Viñes en A Coruña

A Coruña, A Coruña, Os Mallos, Calle Antonio Viñes, 19
-

Viviendas de 1, 2 y 3 dormitorios sitas en la Calle ANTONIO VIÑES 19Carpintería...

0
0 opiniones

Obra nueva Anella Coruña en A Coruña

A Coruña, A Coruña, Ensanche - Juan Florez, Ronda Nelle, 90
-

¡Últimas viviendas! Tu nuevo hogar cada día mas cerca. ¡Plazas de garaje disponi...

0
0 opiniones
1 unidades

Obra nueva Domus Maianca en Oleiros

A Coruña, Oleiros, Maianca, Calle Rio do Campo s/n
425 000 € - 425 000 €

Vivienda unifamiliar de 4 dormitorios desarrollada en 3 plantas, con garaje, tra...

0
0 opiniones

Obra nueva Edificio Vioño en A Coruña

A Coruña, A Coruña, Vioño, Calle Revolución Francesa, 11
-

PISOS DE OBRA NUEVA.Ubicados en el Parque Vioño con fácil acceso.Tenemos disponi...

0
0 opiniones

Obra nueva Xaz Natura Villas en Oleiros

A Coruña, Oleiros, Liáns, Calle Italia s/n
-

El conjunto XAZ NATURA Villas, se encuentra ubicado en Oleiros, A Coruña, a esca...

0
0 opiniones

Utilizamos cookies propias y de terceros para analizar el uso del sitio web y mostrarte publicidad relacionada con tus preferencias sobre la base de un perfil elaborado a partir de tus hábitos de navegación (por ejemplo, páginas visitadas). Más información. ¿Aceptas las cookies?