Новостройка El Putxet i el Farro в Барселона

Барселона, Барселона, Саррия-Сант-Жерваси, Calle de Guillem Tell s/n
Распродано
Оставить отзыв
Площадь объекта
Количество спален
Ванные комнаты
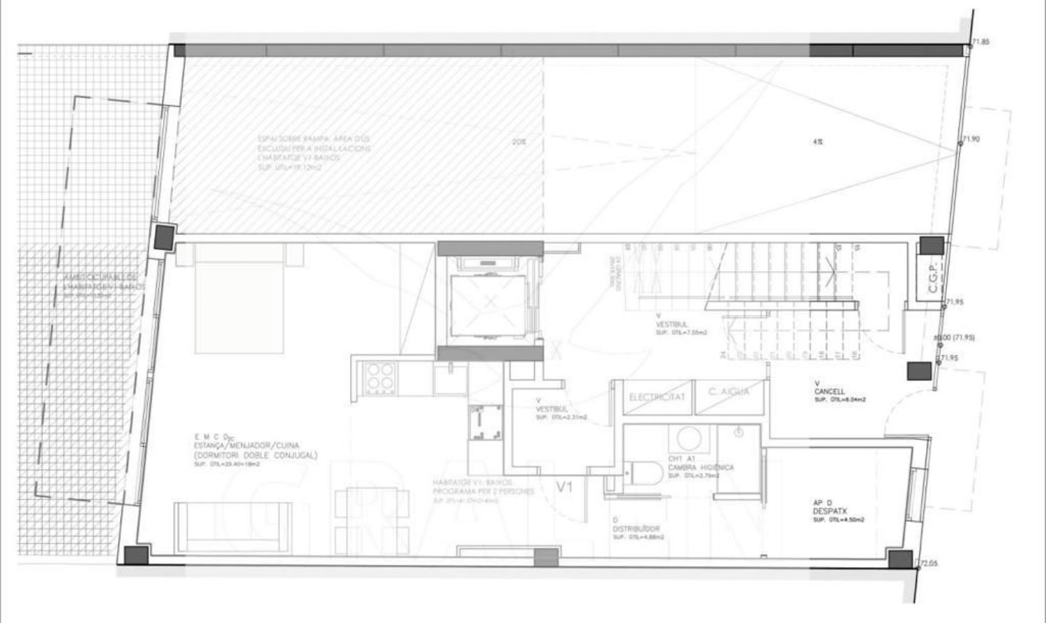
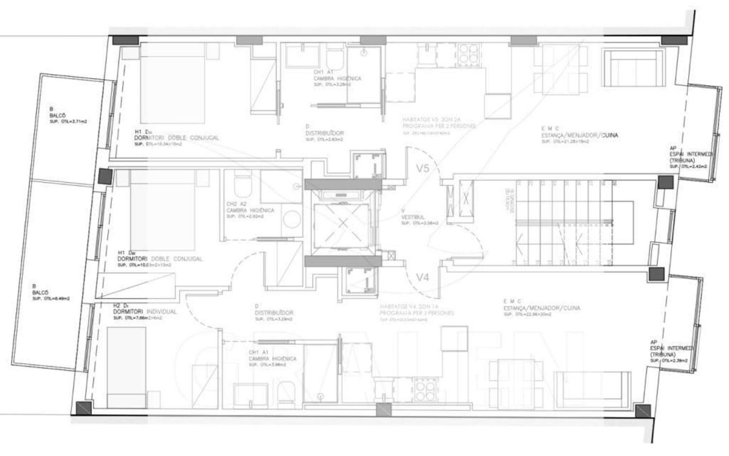
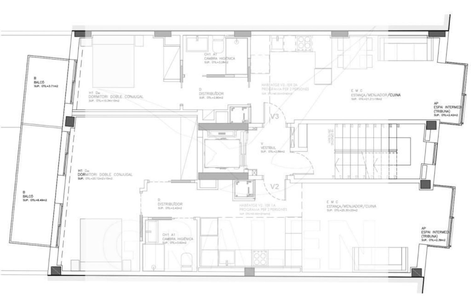
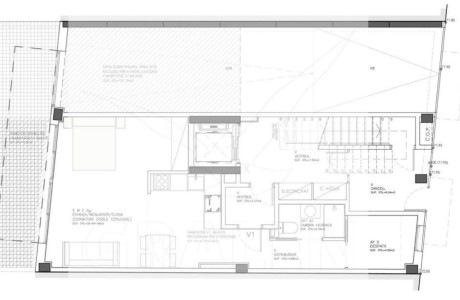
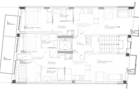
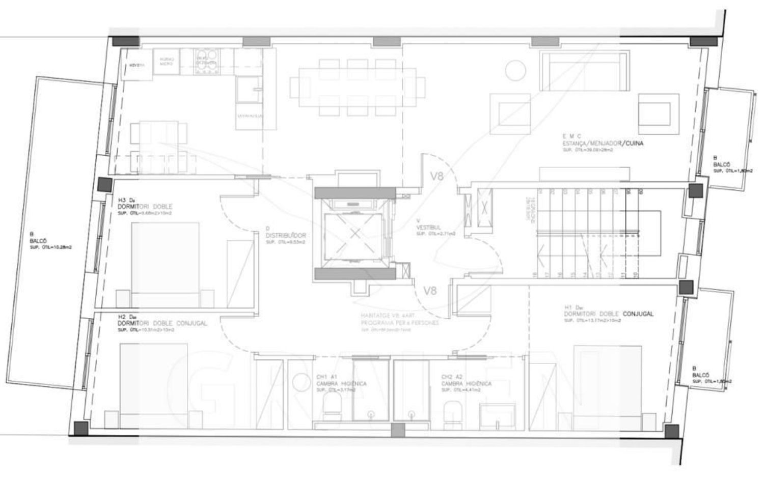
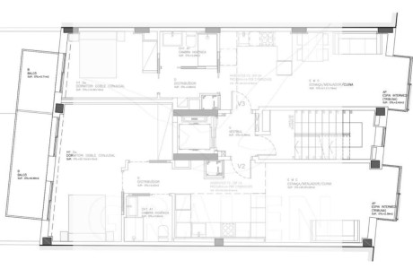
Preciosos apartamentos con terraza comunitaria de 49m2 con piscina en la cubierta del edificio. Ubicados en un edificio de obra nueva en el exclusivo barrio del Putxet i Farró, a escasos minutos de la Plaza Lesseps y la Plaza Molina.Los apartamentos de este edificio combinan a la perfección un estilo moderno minimalista con la mayor exclusividad, con acabados de altas calidades, como lo son los suelos de parquet flotante de madera de roble en todas las estancias y de gres en los cuartos de baño y cocina, armarios empotrados, puertas lacadas, aire acondicionado y bomba de calor por sistema de aerotermia, carpintería interior de madera lacada blanco con pernos de pala ancha de acero inoxidable, carpintería exterior de aluminio, doble puerta de acceso al edificio con cerradura eléctrica, sistema de seguridad formado por cámaras de seguridad y grabación digital centralizada.Por Último, encontramos una terraza comunitaria de 49m2 con piscina y zona de chill out, todo un oasis ideal para relajarse y disfrutar del agradable clima que ofrece Barcelona. Estas viviendas están ubicadas en una zona privilegiada, muy bien comunicada y que dispone de toda clase de servicios, comercios, restaurantes, colegios internacionales, universidades y centros médicos de prestigio. Sant Gervasi es célebre por ser una zona residencial exclusiva, que ofrece una gran tranquilidad a sus vecinos. Además de contar con una comunicación excelente, tanto en transporte público como privado.

Топ новостройки Испании

Обратите ваше внимание на эти ЖК

10 единиц

Nature Views 2

Аликанте, Торревьеха, Лос-Балконес - Лос-Альтос дель Эден, Denia s/n
310 000 € - 379 000 €
1 единиц

Hotel en venta en Benidorm centro

Аликанте, Бенидорм, Плая де Поньенте
2 250 000 € - 2 250 000 €
28 единиц

Residencial Los Balcones De Calpe

Аликанте, Кальпе, Кальпе Пуэбло, Avenida de Madrid, 1
299 000 € - 892 125 €
4 единиц

Nature Views

Аликанте, Торревьеха, Лаго Хардин II, Avenida Denia s/n
309 000 € - 330 000 €
5 единиц

ALONIS VILLAS

Аликанте, Ла Виллахойоса / Вила Хойоса, Платха де Торрес, Partida Torres s/n
675 000 € - 775 000 €
1 единиц

Residencial Royal Beach

Аликанте, Гуардамар-дель-Сегура, побло, Miguel Hernández 102
349 500 € - 349 500 €
7 единиц

Royal Star

Аликанте, Гуардамар-дель-Сегура
229 500 € - 269 500 €
Эта информация получена из публичных источников и может быть устаревшей. Она не представляет собой связь с застройщиком.

Характеристики недвижимости

Complex information

Информация о проекте / Статус работы

  • Этап строительства
    ЖК сдан

Данные о недвижимости

  • M2 средние
    110 m²
  • Тип дизайна
    Современный
  • Тип недвижимости
    Новостройка

Энергетическая сертификация

  • Энергетический сертификат
    C

Удобства

Удобства жилья:

Кондиционер
Встроенные шкафы
Внутренние окна
Внешнее окно
Терасса

В здании:

Бассейн
Лифт
Безопасность
Бар
Зоны огороды
Зеленые зоны
Общественная терраса

Эстадо:

Новое строительство

Статистика рыночных цен на El Putxet i el Farro

958 625 € (8 754 €/m2)
Средняя цена в комплексе
1 815 854 € (6 646 €/m2)
Средняя цена на первичные Дома в городе Барселона
858 904 € (8 156 €/m2)
Средняя цена на первичные Квартиры в городе Барселона
1 615 429 € (9 828 €/m2)
Средняя цена на первичные Квартиры в районе Саррия-Сант-Жерваси

Карта

Барселона, Барселона, Саррия-Сант-Жерваси, Calle de Guillem Tell s/n Поехать в это место
Оставьте отзыв о El Putxet i el Farro
0
0 reviews
1
0% (0)
2
0% (0)
3
0% (0)
4
0% (0)
5
0% (0)
Распродано
Свяжитесь с рекламодателем

Для получения дополнительной информации свяжитесь с платформой

REF: 20205

Отзывы о El Putxet i el Farro
Loading...

No reviews have been left for this object yet

Ближайшие объекты

Исследуйте близлежащие объекты, которые мы обнаружили неподалеку от этого местоположения.

Obra nueva Carrer Vinya 28 en Barcelona

Барселона, Барселона, Хорта Гинардо, Calle Vinya , 28
-

Promoción de obra nueva para seis viviendas, dos oficinas y aparcamiento, en una...

0
0 отзывов
1 единиц

Новостройки No|ba Homes в Эсплугес-де-Льобрегат.

Барселона, Эсплюгес-де-Льобрегат, Ла Плана - Монтеса, Calle de Sant Antoni Maria Claret
439 000 € - 439 000 €

Недвижимость в ЖК No|ba Homes Строительство начато. Недалеко от центра Барселоны...

0
0 отзывов

Obra nueva Villarroel en Barcelona

Барселона, Барселона, Эйшампле, Calle Villarroel
-

En el corazón del Eixample Izquierdo de Barcelona, frente al hospital Clínico, e...

0
0 отзывов

Obra nueva Sagrera Privilege en Barcelona

Барселона, Барселона, Сант Андреу, Calle Berenguer de Palou, 58
-

OBRAS INICIADAS. Pisos de obra nueva de 2 y 3 dormitorios en la mejor zona de La...

0
0 отзывов

Obra nueva Passeig de Gràcia en Barcelona

Барселона, Барселона, Эйшампле
-

Paseo de Gracia 30 es una de las promociones de obra nueva más exclusivas del Cu...

0
0 отзывов
8 единиц

Новое здание с роскошными лофтами в Барселоне.

Барселона, Барселона, Сант-Марті, Calle Emilia Coranty, 33
760 000 € - 1 395 000 €

Недвижимость в ЖК Can Ricart Lofts Этот уникальный проект преобразует четыре ист...

0
0 отзывов
2 единиц

Новый жилой комплекс в Эсплугес-де-Льобрегат на местности Серра-дель-Монцек.

Барселона, Эсплюгес-де-Льобрегат, Ла Плана - Монтеса, Calle Serra Montsec s/n
390 000 € - 396 000 €

Недвижимость в ЖК Serra del Montsec Этот жилой комплекс, расположенный в Барсело...

0
0 отзывов
5 единиц

Obra nueva Parc dels Cirers en Hospitalet de Llobregat

Барселона, Госпиталет-де-Льобрегат, Центр, Calle d'l Emigrant, 13
325 000 € - 425 000 €

La promoción de obra nueva pensada en tu comodidad y la de tu familia, rodeada d...

0
0 отзывов
3 единиц

Новое строительство на проспекте Марагаль, 368 в Барселоне.

Барселона, Барселона, Ноу Баррис, Paseo de Maragall, 368
400 000 € - 468 000 €

Недвижимость в ЖК Pg. Maragall, 368 Великолепная новая застройка в самом сердце...

0
0 отзывов

Мы используем собственные и сторонние файлы cookie для анализа использования веб-сайта и показа вам рекламы, соответствующей вашим предпочтениям, на основе профиля, созданного по вашим привычкам просмотра (например, посещенные страницы). Подробнее. Вы принимаете файлы cookie?